Hallo Forengemeinde,
wir haben jetzt den 2 Entwurf von unserem Haus bekommen und würden ihn gern gern mal bewerten lassen.
Bebauungsplan/Einschränkungen
Größe des Grundstücks: 660 m²
Hang
Grundflächenzahl: 0,4
Baufenster, Baulinie und -grenze: siehe Bebauungsplan
Randbebauung: siehe Bebauungsplan
Anzahl Stellplatz: 2
Geschossigkeit: 2
Dachform: Walmdach
Anforderungen der Bauherren
Stilrichtung, Dachform, Gebäudetyp: Walmdach, Stadtvilla
Keller, Geschosse: 0, 2 Vollgeschosse
Anzahl der Personen, Alter: 2 Erwachsene u, 2 Kinder
Raumbedarf im EG, OG: ca 150 qm
Büro: Homeoffice
offene oder geschlossene Architektur: geschlossene
offene Küche, Kochinsel: nein, ja
Anzahl Essplätze: 4-6
Kamin: nein
Balkon, Dachterrasse: Terrasse
Garage, Carport: Garage (6x7m)
Hausentwurf
Von wem stammt die Planung: Planer eines Bauunternehmens
Was gefällt besonders? Warum?: Die Raumaufteilung- bzw. Größe im OG
Was gefällt nicht? Warum?: EG Größe von Wohn/Esszimmer u. Küche
favorisierte Heiztechnik: Gas mit Solarthermie

wir haben jetzt den 2 Entwurf von unserem Haus bekommen und würden ihn gern gern mal bewerten lassen.
Bebauungsplan/Einschränkungen
Größe des Grundstücks: 660 m²
Hang
Grundflächenzahl: 0,4
Baufenster, Baulinie und -grenze: siehe Bebauungsplan
Randbebauung: siehe Bebauungsplan
Anzahl Stellplatz: 2
Geschossigkeit: 2
Dachform: Walmdach
Anforderungen der Bauherren
Stilrichtung, Dachform, Gebäudetyp: Walmdach, Stadtvilla
Keller, Geschosse: 0, 2 Vollgeschosse
Anzahl der Personen, Alter: 2 Erwachsene u, 2 Kinder
Raumbedarf im EG, OG: ca 150 qm
Büro: Homeoffice
offene oder geschlossene Architektur: geschlossene
offene Küche, Kochinsel: nein, ja
Anzahl Essplätze: 4-6
Kamin: nein
Balkon, Dachterrasse: Terrasse
Garage, Carport: Garage (6x7m)
Hausentwurf
Von wem stammt die Planung: Planer eines Bauunternehmens
Was gefällt besonders? Warum?: Die Raumaufteilung- bzw. Größe im OG
Was gefällt nicht? Warum?: EG Größe von Wohn/Esszimmer u. Küche
favorisierte Heiztechnik: Gas mit Solarthermie
Hallo!
Ich geb mal meinen Senf dazu 😉
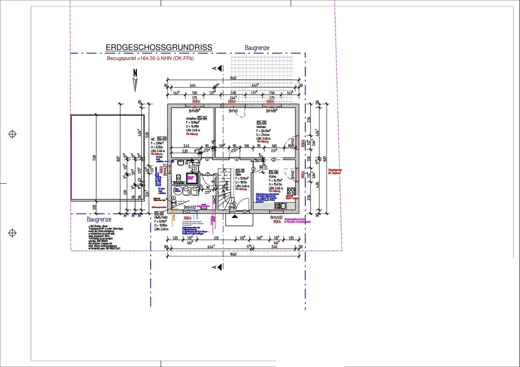
EG:
- Küche ist schwierig zu möblieren, finde ich.
- Türe ins Wohnzimmer würde ich die Öffnungsrichtung drehen, damit man in den Raum geht und nicht auf die Planlinke Wand zu.
- Überhaupt würde mich die möblierung des Wohn/Essraum interessieren.
- Wo Kommt die Garderobe hin? Unter die Treppe?
OG:
- Wollt ihr im Hauptbad im OG wirklich keine Dusche?
- Laut Plan kommt beim Fenster für die Ankleide kein Rollladenkasten hin, ist das richtig? Wie verdunkelt ihr dann das Schlafzimmer, da das ja ohne Türe mit der Ankleide verbunden ist?
- Die Ankleide an sich wird sehr Eng mit geschätzten 1,3m Breite.
- Selbes Spiel beim Abstellraum.
Grüße
Ich geb mal meinen Senf dazu 😉
EG:
- Küche ist schwierig zu möblieren, finde ich.
- Türe ins Wohnzimmer würde ich die Öffnungsrichtung drehen, damit man in den Raum geht und nicht auf die Planlinke Wand zu.
- Überhaupt würde mich die möblierung des Wohn/Essraum interessieren.
- Wo Kommt die Garderobe hin? Unter die Treppe?
OG:
- Wollt ihr im Hauptbad im OG wirklich keine Dusche?
- Laut Plan kommt beim Fenster für die Ankleide kein Rollladenkasten hin, ist das richtig? Wie verdunkelt ihr dann das Schlafzimmer, da das ja ohne Türe mit der Ankleide verbunden ist?
- Die Ankleide an sich wird sehr Eng mit geschätzten 1,3m Breite.
- Selbes Spiel beim Abstellraum.
Grüße
R
RobsonMKK22.03.17 18:41Schließe mich Matte an.
Keine Dusche im Hauptbad, immer nach unten laufen zum duschen?
Die Ankleide ist auf jeden Fall zu klein.
Zum Platz im EG: das Büro ist riesig! 14 qm ist eine Ansage. Wenn dazu noch ein HAR/Hauswirtschaftsraum und ein Duschbad da sind, dann bleibt nicht mehr viel Platz für Essen und Wohnen.
Keine Dusche im Hauptbad, immer nach unten laufen zum duschen?
Die Ankleide ist auf jeden Fall zu klein.
Zum Platz im EG: das Büro ist riesig! 14 qm ist eine Ansage. Wenn dazu noch ein HAR/Hauswirtschaftsraum und ein Duschbad da sind, dann bleibt nicht mehr viel Platz für Essen und Wohnen.
_Cone_ schrieb:
wir haben jetzt den 2 Entwurf von unserem Haus bekommenDas macht mich neugierig(er) auf den Ersten.
_Cone_ schrieb:
Von wem stammt die Planung: Planer eines BauunternehmensEhrlich gesagt: so sieht sie auch aus. Ordentlich Gewaschen und gekämmt, aber sonst: ohne Liebe zu den Bewohnern geplant.
matte1987 schrieb:
Ich geb mal meinen Senf dazu 😉Da setz ich schon´mal voll meinen Stempel drunter.
Was mir noch so auffiel:
Der Planer ist wohl ein Symmetriefan, was die Lage der Fenster angeht. Im Wohnzimmer ist der Fensteranschlag an der "Schrank-Wand" mindestens optisch knauserig geraten. Beide benachbarten Fenstertüren (Wohnzimmer / Küche) schlagen in potentielle Esstisch-Aufstellplätze. Die Treppe wirkt gequetscht und wäre mir einen Tick zu steil. Eine Dusche im EG fast auf einem anderen Kontinent als die Ankleide frißt den Pluspunkt wieder auf, den ich für den Ausguß im Hauswirtschaftsraum gegeben hätte.
Weg mit dieser Dusche, Hauswirtschaftsraum Zugang durchs Bad, und schon kann man die Treppe verschieben. Dann kommt oben der Witz von Abstellräumchen weg, und die Ankleide kann größer werden.
Die Ankleide taugt nämlich garnichts. Da steht man vor dem Schrank wie zur Erschießung mit dem Rücken an der Wand und klemmt sich die Finger beim Öffnen der Türen. Die Schrankmeter reichen da ohnehin nur für einen (alleinstehenden) Mann. Zur Ankleide schlängelt man sich am Bett vorbei wie in einem überfüllten Zug. Ob das Bett planrechts oder planunten steht, ist egal: man hat so oder so ein Fenster über dem Kopfende. Die Akrobatik, die Einschubtreppe zu betreten, stelle ich mir gar nicht erst vor.
Für die Bauzeichner-Berufsschule ganz nette Übungszeichnungen, aber bauen wollte ich so nicht.
https://www.instagram.com/11antgmxde/
https://www.linkedin.com/company/bauen-jetzt/
R
RobsonMKK22.03.17 19:37Durchs Gäste-WC in den Hauswirtschaftsraum? Na klar, und nächstes Jahr Weltmeister im Slalom in Kitzbühel oder was?
RobsonMKK schrieb:
Durchs Gäste-WC in den Hauswirtschaftsraum? Na klar, und nächstes Jahr Weltmeister im Slalom in Kitzbühel oder was?Was für einen Grundriss siehst du?!
Ähnliche Themen