ᐅ Stadtvilla
Erstellt am: 23.05.15 21:40
Hallo zusammen,
wir planen aktuell eine Stadtvilla.
Bebauungsplan/Einschränkungen
Gebaut wird das ganze auf dem Grundstück meiner Eltern. Platz ist genügend vorhanden.
Geschossigkeit - 2 volle Geschosse
wir waren bei der Gemeinde und Landkreis - es gibt für unsere Ortschaft keinen bebauungsplan aber man hat uns bereits grünes Licht signalisiert.
Anforderungen der Bauherren
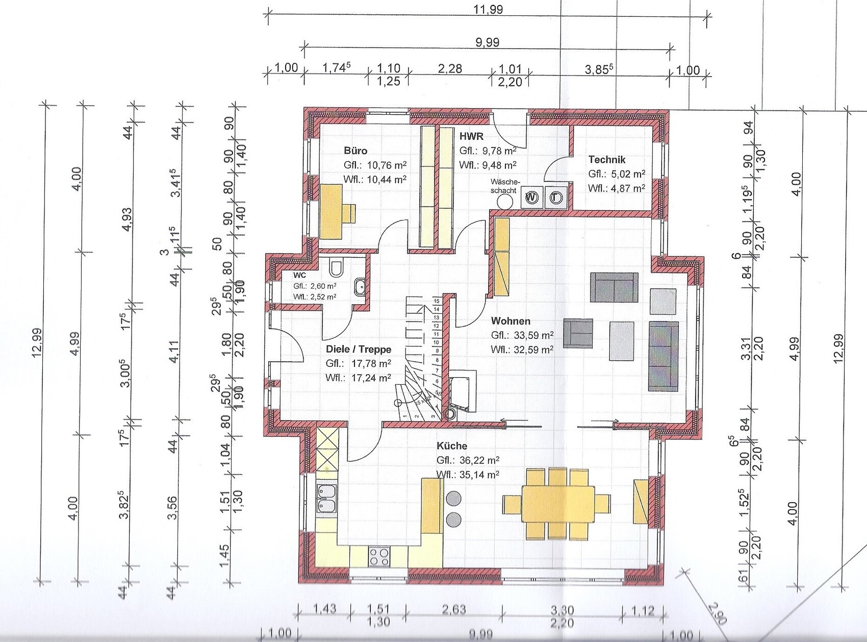
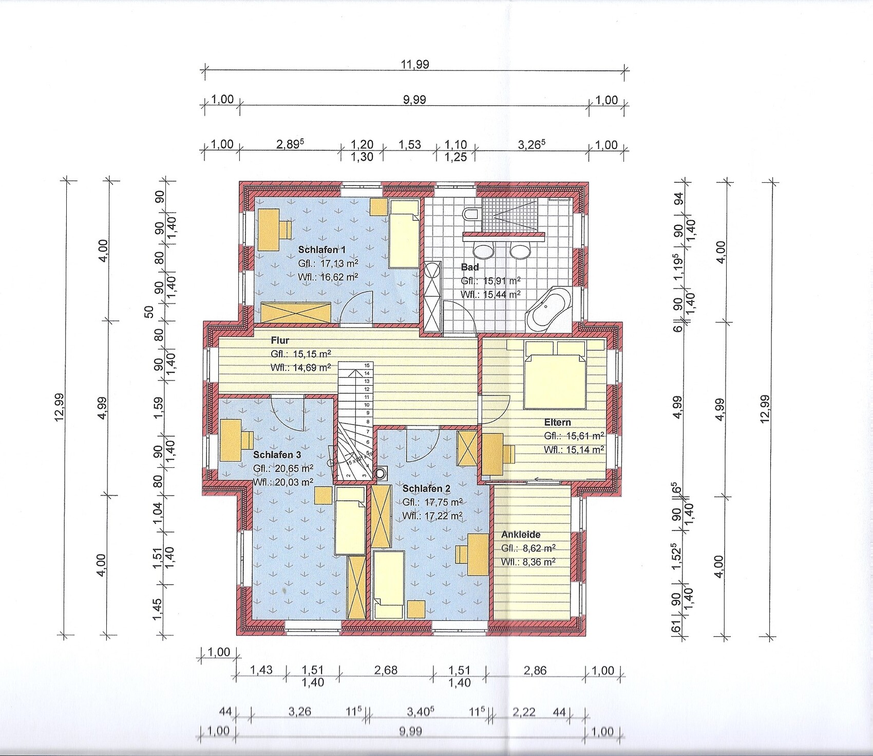
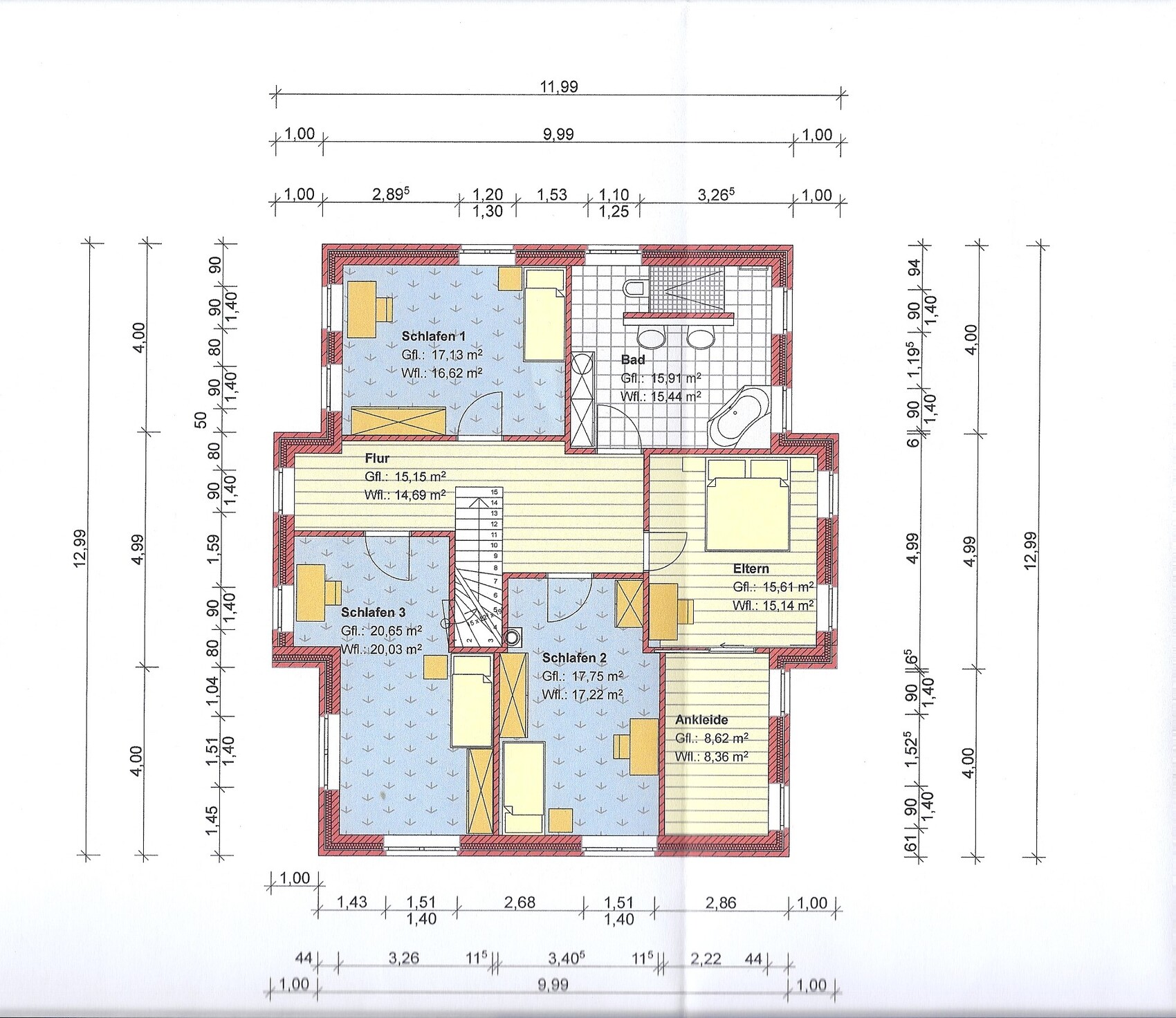
keinen Keller, Keine Dachschrägen in OG. Groszügige Zimmer
Anzahl der Personen, Alter: 2 Erwachsene (28 und 26) 3 Kinder sind geplant
Küche mit Esszimmer inkl. Trennung zum Wohnzimmer.
Heiztechnik:
Ist noch in Klärung
Dies ist der 2. Entwurf von unserer Architektin.Was könnte man anders machen?
Ein paar Sachen sind uns bereits aufgefallen:
- Ein paar weniger Fenster tuns auch 😉
- Oben ist der Abstand von Treppe zur Wand recht gering.
- Wir wissen noch nicht wie wir die Fassade gestalten...Daher sind bei den Bildern unterschiedliche Varianten zu sehen.
Wir sind über Tipps und Ideen sehr dankbar! Falls noch etwas unklar sein sollte, dann meldet euch. Danke






wir planen aktuell eine Stadtvilla.
Bebauungsplan/Einschränkungen
Gebaut wird das ganze auf dem Grundstück meiner Eltern. Platz ist genügend vorhanden.
Geschossigkeit - 2 volle Geschosse
wir waren bei der Gemeinde und Landkreis - es gibt für unsere Ortschaft keinen bebauungsplan aber man hat uns bereits grünes Licht signalisiert.
Anforderungen der Bauherren
keinen Keller, Keine Dachschrägen in OG. Groszügige Zimmer
Anzahl der Personen, Alter: 2 Erwachsene (28 und 26) 3 Kinder sind geplant
Küche mit Esszimmer inkl. Trennung zum Wohnzimmer.
Heiztechnik:
Ist noch in Klärung
Dies ist der 2. Entwurf von unserer Architektin.Was könnte man anders machen?
Ein paar Sachen sind uns bereits aufgefallen:
- Ein paar weniger Fenster tuns auch 😉
- Oben ist der Abstand von Treppe zur Wand recht gering.
- Wir wissen noch nicht wie wir die Fassade gestalten...Daher sind bei den Bildern unterschiedliche Varianten zu sehen.
Wir sind über Tipps und Ideen sehr dankbar! Falls noch etwas unklar sein sollte, dann meldet euch. Danke
Wenns es wirklich drei Kinder werden, würde ich mir irgendwo im Haus noch ne zweite Dusche einbauen (Insbesondere wenn die Damen die Herrschaft übernehmen). Vergleichsgrundrisse für 3 Kinderzimmer im OG gibts viele im Internet - musst mal schauen, ob Euch vielleicht was anderes besser gefällt.
N
nordanney23.05.15 22:45merlin83 schrieb:
Wenns es wirklich drei Kinder werden, würde ich mir irgendwo im Haus noch ne zweite Dusche einbauen (Insbesondere wenn die Damen die Herrschaft übernehmen). Vergleichsgrundrisse für 3 Kinderzimmer im OG gibts viele im Internet - musst mal schauen, ob Euch vielleicht was anderes besser gefällt.Verkleinert auf jeden Fall die (Kinder)Zimmer und nehmt ein Kinderbad mit auf. Ich habe hier drei Mädel und würde später wahrscheinlich nie ins Bad kommen, wenn wir nur ein Bad hätten.hm, wir haben das gleiche Raumprogramm, aber unseres ist nicht so verwinkelt (besonders das OG) und wir haben im OG noch ein Kinderbad (dafür allerdings keine Ankleide, sondern "nur" nen begehbaren Schrank.
küche-Ess-Wohnbereich gefällt mir eigentlich ganz gut. Nur der Weg zum Hauswirtschaftsraum wäre mir zu weit, von der Küche aus.
Die Diele ist zwar groß, aber dennoch irgendwie kein/kaum Platz für ne gescheite Garderobe für 5 Personen + Besucher.
Zugang zum Wohnzimmer zu verwinkelt. Zugang zum Essbereich nur durch Küche bzw. Wohnzimmer möglich.Gefällt mir so nicht.
Im OG Schlafen 2 und 3 zu verwinkelt. Überhaupt gibt es im OG viel zu viele Winkel und Vor- und Rücksprünge.
Würde mal versuchen die Treppe anders zu planen. Irgendwie verhunzt euch die Treppe, so wie sie jetzt ist, den kompletten Grundriss. Und damit heißt es: Neuanfang die Dritte.
küche-Ess-Wohnbereich gefällt mir eigentlich ganz gut. Nur der Weg zum Hauswirtschaftsraum wäre mir zu weit, von der Küche aus.
Die Diele ist zwar groß, aber dennoch irgendwie kein/kaum Platz für ne gescheite Garderobe für 5 Personen + Besucher.
Zugang zum Wohnzimmer zu verwinkelt. Zugang zum Essbereich nur durch Küche bzw. Wohnzimmer möglich.Gefällt mir so nicht.
Im OG Schlafen 2 und 3 zu verwinkelt. Überhaupt gibt es im OG viel zu viele Winkel und Vor- und Rücksprünge.
Würde mal versuchen die Treppe anders zu planen. Irgendwie verhunzt euch die Treppe, so wie sie jetzt ist, den kompletten Grundriss. Und damit heißt es: Neuanfang die Dritte.
Irgendwie groß und kostspielig, aber wenig Details, die das Haus wertig machen.
WC ist auf ein Minimum an Fläche reduziert, die Sanitärmöbel sind auf einem QM gequetscht.
Küche hat jetzt nicht wirklich einen vorteilhaften Status, dort haben gerade mal zwei Hochschränke Platz und der Abstand zwischen den Arbeitsflächen ist mit > 2 Metern zu groß. Wohnzimmer finde ich persönlich ungemütlich. Gesamter Koch-Essbereich ist zu lang.
Bei 5 Personen fehlt die zweite Dusche (wohlgemerkt ich bin kein Freund von Kinderbädern), dennoch macht es wohl bei dreien Sinn.
Garderobe? Wo? Rummelige Treppe?
Haus präsentiert von außen, aber nicht konsequent: wo bleibt die visuelle Symmetrie, zumindest auf der Eingangsseite?
Fakt: zu viel Hauskosten für wenig Qualität. Wenn ich soviel Geld ausgeben könnte, würde ich nicht einfach nur ein annähernd quadratisches Haus auf Grund hinklatschen, sondern mindestens einen Winkel einbauen, der Schutz auf der Terrasse gibt, eventuell einen sinnvollen Unterstand bauen und ein gemütliches Wohnzimmer mit Stellwand für das Sofa und adäquatem Zugang, der nicht gerade ggü dem Hauswirtschaftsraum liegt.
Davon gänzlich abgesehen mag ich den Bereich des HWRs und des Flures, aber nicht in der Gesamtheit.
Im OG kann man auch viel verbessern, das wurde auch weiter oben schon erwähnt.
WC ist auf ein Minimum an Fläche reduziert, die Sanitärmöbel sind auf einem QM gequetscht.
Küche hat jetzt nicht wirklich einen vorteilhaften Status, dort haben gerade mal zwei Hochschränke Platz und der Abstand zwischen den Arbeitsflächen ist mit > 2 Metern zu groß. Wohnzimmer finde ich persönlich ungemütlich. Gesamter Koch-Essbereich ist zu lang.
Bei 5 Personen fehlt die zweite Dusche (wohlgemerkt ich bin kein Freund von Kinderbädern), dennoch macht es wohl bei dreien Sinn.
Garderobe? Wo? Rummelige Treppe?
Haus präsentiert von außen, aber nicht konsequent: wo bleibt die visuelle Symmetrie, zumindest auf der Eingangsseite?
Fakt: zu viel Hauskosten für wenig Qualität. Wenn ich soviel Geld ausgeben könnte, würde ich nicht einfach nur ein annähernd quadratisches Haus auf Grund hinklatschen, sondern mindestens einen Winkel einbauen, der Schutz auf der Terrasse gibt, eventuell einen sinnvollen Unterstand bauen und ein gemütliches Wohnzimmer mit Stellwand für das Sofa und adäquatem Zugang, der nicht gerade ggü dem Hauswirtschaftsraum liegt.
Davon gänzlich abgesehen mag ich den Bereich des HWRs und des Flures, aber nicht in der Gesamtheit.
Im OG kann man auch viel verbessern, das wurde auch weiter oben schon erwähnt.
Ähnliche Themen