ᐅ Grundriss Reiheneckhaus in Planung - Änderungsvorschläge?
Erstellt am: 20.08.22 21:05
B
Bauherrin123B
Bauherrin12322.08.22 00:38K a t j a schrieb:
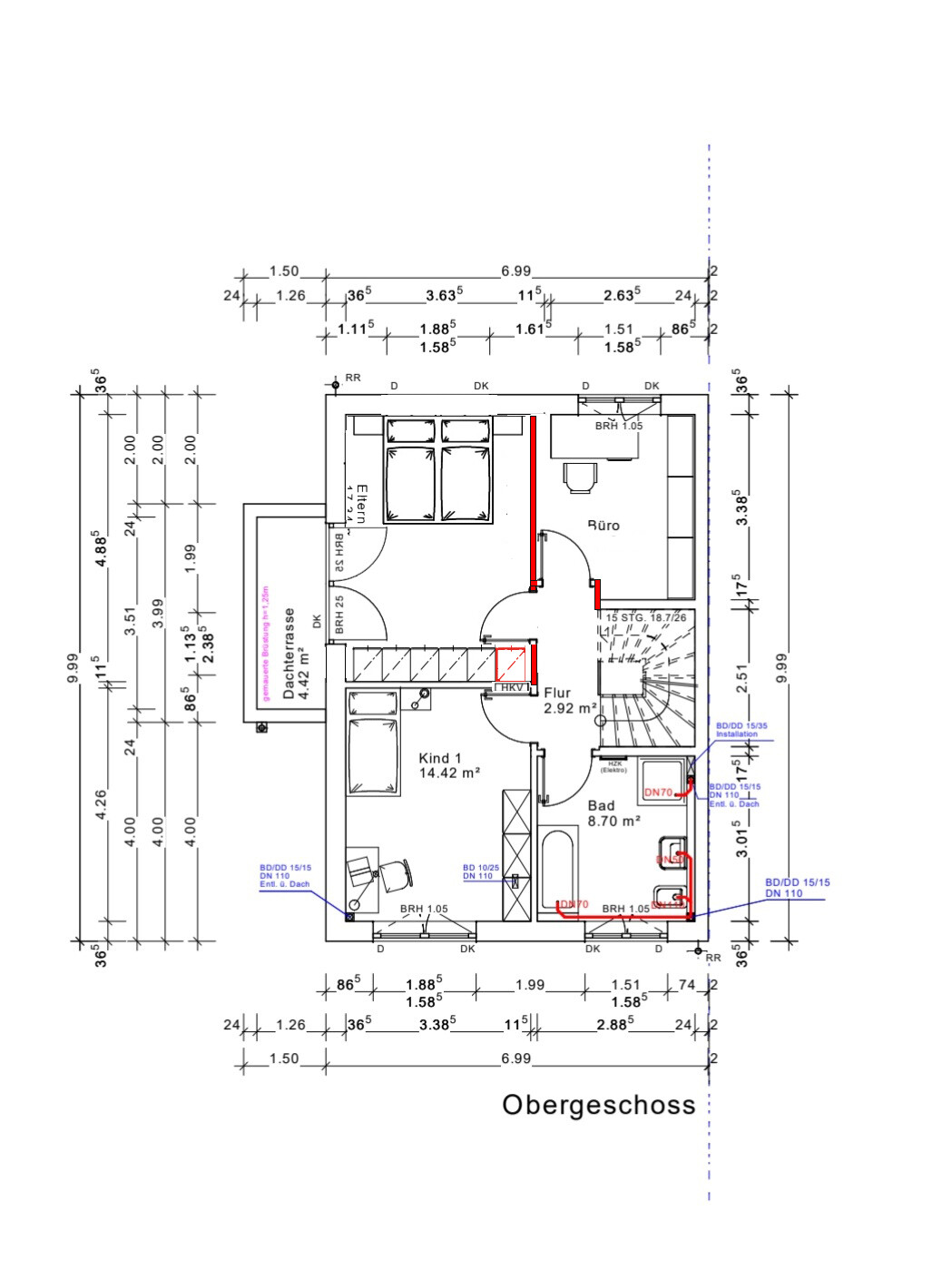
Die Bürotür ist wirklich eine Gefahr. Das ist schon sehr unschön. Hier 2 Änderungsvarianten, wobei immer ein Haken bei der Sache bleibt
Variante 1 büßt Du Stellfläche ein. In so einem kleinen Haus ein echter Verlust. Aber immer noch besser, als die Tür vor die Nase geschmettert zu bekommen.
[ATTACH alt="bürotür1.jpg"]74140[/ATTACH]
[ATTACH alt="bürotür2.jpg"]74141[/ATTACH]
Hat jemand noch andere Vorschläge hier, wie man die Wand und Tür einzeichnen kann? Ich bin bereit, auf 250cm schrank zu bleiben, dafür muss die Bürotür aufjedenfall nach Innen aufgehen,... Danke
Der Küchenplan passt nicht zur geplanten Küche gemäß Grundriss. Im Grundriss ist die Spüle und deren Anschlüsse nicht vorm Fenster.
Falls Ihr die Spüle vor dem Fenster haben wollt, ist bei einer Brüstungshöhe von 105 auch darauf zu achten, ob ihr das Fenster überhaupt wie geplant nach innen öffnen könnt. Stichwort Wasserhahn.
Falls Ihr die Spüle vor dem Fenster haben wollt, ist bei einer Brüstungshöhe von 105 auch darauf zu achten, ob ihr das Fenster überhaupt wie geplant nach innen öffnen könnt. Stichwort Wasserhahn.
evelinoz schrieb:
und das bisschen Küche soll für 5 P reichen und mehrere Jahre mit babies?

das ist eine typische Mietwohnungsküche. Wo sind eure Vorräte?Naja, man muss die Kirche auch im Dorf lassen. Wäre mehr Platz da, würde ich auch mehr Stauraum empfehlen. Bei dem Grundriss muss man sich halt etwas einschränken. Und ja: So eine Küche reicht auch. Wird halt gedrängt, aber sie reicht. Unsere Küche hat auch nicht mehr Stauraum und wir sind zu 6.Davon unabhängig werden wir bei uns in der nächsten Küche auch mehr Platz vorsehen.
B
Bauherrin12322.08.22 07:41Ja es ist ein Problem des Platzmengels, hier haben ja schon einige geraten die Küche zu verschmälern,
Das ist das! Mir wurde ja schon hier geraten,
Erstmal allgemein, die Küche im Grundriss ist nur ein Muster, das wird im Werkvertrag erst entschieden, deshalb hat die Architektin es so gelassen, daß spielt keine Rolle. Ich habe allerdings die Maße genommen und war bereits bei der Küchenplanung um zuschauen, wieviel da reinpasst. Geplant ist die Küche wie ich sie dann später gepostet habe.
Ich muss sagen, dass die Küchenplaner schon sehr gut waren, haben mir auch mehr Schränke, in dem der Schrank neben dem Backofen höher war, angeboten. Quasi war dass dann so, dass der Apothekerschrank, der kleine ganz links wegfällt, und zwischen Backofen und Kühlschrank dafür ein großer in voller Höhe. Ich zeig euch gleich mal das Bild, aber dann fehlen mir 30 cm oder 40 cm Arbeitsfläche und es sah mit zu voll aus. Mir fehlt aber auch Platz.
Das Problem, ich hab nicht viel mehr Platz,....mir wurde ja schon geraten, die Küche zu verschmälern, für.die Garderobe, das will ich nicht deshalb nicht, weil da noch ein kleiner Esstisch rein soll. Für den Alltag will ich mit den Kindern und Mann in der Küche essen,... finde ich praktisch!
Die einzige Möglichkeit wäre die Küchentür nach Links zu versetzen um auch bis hinter der Tür Schränke zu haben oder es so zu machen, wie in den Grundriss eingetragen. Aber im Flur soll ein Schuhschrank rein. Dann fehlt da die Wand, das ist blöd. Deshalb bleibt die Tür da.
Ich will auch noch ein großes Gefrierfach haben. In der Abstellkammer soll ein Gefrierfach hin , in der Küche hätte keins gepasst und die Einbaugeräte sind zu teuer. Das Kombi Gefrierfach, ist mir viel zu klein. Also muss im Vorratsraum: Gefrierfach, Regal für Vorräte, Staubsauger,und Wischzeug, wobei ich dachte dass kann auch oben im Hauswirtschaftsraum, aber mal.schauen und die Garderobe rein. Für die Garderobe nehme ich die Wand rechts im.Vorratsraum, einfache Hacken, eventuell auch and der Tür ubd an der Wand rechts. Restlichen Platz für die anderen Sachen...ich muss das abmessen noch, was da reinpasst....in welcher Größer, aber viel Alternativen habe ich nicht, ich muss das nehmen was das Platz hergibt.
Das Einzihe was ich noch ändern kann ist, das Fenster in der Küche ist mittig platziert. Wenn ich das weiter Richtung Küchenschränke mache, dh. Weiter rechts, habe ich links vom Waschbecken 65 cm statt wie jetzt 50 und kann da was hohes noch hinbauen. Auch das meinten alle Küchenplaner, dass es nicht gut aussehen wird und mir geht Arbeitsfläche verloren. Mikrowelle kommt über den Backofen, sonst muss ich ja noch irgendwo Kaffeemaschine, Wasserkocher, Teigmaschine, usw. hinstellen können?...
Waschbecken bleibt vor dem Fenster und wird ein extra Wasserhahn haben, dass man lösen und runtrernehmen kann, damit das Genster aufgeht. Daran habe ich auch gedacht, weil ich es im Forum irgendwo gelesen habe.


SoL schrieb:
Naja, man muss die Kirche auch im Dorf lassen. Wäre mehr Platz da, würde ich auch mehr Stauraum empfehlen. Bei dem Grundriss muss man sich halt etwas einschränken. Und ja: So eine Küche reicht auch. Wird halt gedrängt, aber sie reicht. Unsere Küche hat auch nicht mehr Stauraum und wir sind zu 6.
Davon unabhängig werden wir bei uns in der nächsten Küche auch mehr Platz vorsehen.
Das ist das! Mir wurde ja schon hier geraten,
SoL schrieb:
Naja, man muss die Kirche auch im Dorf lassen. Wäre mehr Platz da, würde ich auch mehr Stauraum empfehlen. Bei dem Grundriss muss man sich halt etwas einschränken. Und ja: So eine Küche reicht auch. Wird halt gedrängt, aber sie reicht. Unsere Küche hat auch nicht mehr Stauraum und wir sind zu 6.
Davon unabhängig werden wir bei uns in der nächsten Küche auch mehr Platz vorsehen.
Erstmal allgemein, die Küche im Grundriss ist nur ein Muster, das wird im Werkvertrag erst entschieden, deshalb hat die Architektin es so gelassen, daß spielt keine Rolle. Ich habe allerdings die Maße genommen und war bereits bei der Küchenplanung um zuschauen, wieviel da reinpasst. Geplant ist die Küche wie ich sie dann später gepostet habe.
Ich muss sagen, dass die Küchenplaner schon sehr gut waren, haben mir auch mehr Schränke, in dem der Schrank neben dem Backofen höher war, angeboten. Quasi war dass dann so, dass der Apothekerschrank, der kleine ganz links wegfällt, und zwischen Backofen und Kühlschrank dafür ein großer in voller Höhe. Ich zeig euch gleich mal das Bild, aber dann fehlen mir 30 cm oder 40 cm Arbeitsfläche und es sah mit zu voll aus. Mir fehlt aber auch Platz.
Das Problem, ich hab nicht viel mehr Platz,....mir wurde ja schon geraten, die Küche zu verschmälern, für.die Garderobe, das will ich nicht deshalb nicht, weil da noch ein kleiner Esstisch rein soll. Für den Alltag will ich mit den Kindern und Mann in der Küche essen,... finde ich praktisch!
Die einzige Möglichkeit wäre die Küchentür nach Links zu versetzen um auch bis hinter der Tür Schränke zu haben oder es so zu machen, wie in den Grundriss eingetragen. Aber im Flur soll ein Schuhschrank rein. Dann fehlt da die Wand, das ist blöd. Deshalb bleibt die Tür da.
Ich will auch noch ein großes Gefrierfach haben. In der Abstellkammer soll ein Gefrierfach hin , in der Küche hätte keins gepasst und die Einbaugeräte sind zu teuer. Das Kombi Gefrierfach, ist mir viel zu klein. Also muss im Vorratsraum: Gefrierfach, Regal für Vorräte, Staubsauger,und Wischzeug, wobei ich dachte dass kann auch oben im Hauswirtschaftsraum, aber mal.schauen und die Garderobe rein. Für die Garderobe nehme ich die Wand rechts im.Vorratsraum, einfache Hacken, eventuell auch and der Tür ubd an der Wand rechts. Restlichen Platz für die anderen Sachen...ich muss das abmessen noch, was da reinpasst....in welcher Größer, aber viel Alternativen habe ich nicht, ich muss das nehmen was das Platz hergibt.
Das Einzihe was ich noch ändern kann ist, das Fenster in der Küche ist mittig platziert. Wenn ich das weiter Richtung Küchenschränke mache, dh. Weiter rechts, habe ich links vom Waschbecken 65 cm statt wie jetzt 50 und kann da was hohes noch hinbauen. Auch das meinten alle Küchenplaner, dass es nicht gut aussehen wird und mir geht Arbeitsfläche verloren. Mikrowelle kommt über den Backofen, sonst muss ich ja noch irgendwo Kaffeemaschine, Wasserkocher, Teigmaschine, usw. hinstellen können?...
Waschbecken bleibt vor dem Fenster und wird ein extra Wasserhahn haben, dass man lösen und runtrernehmen kann, damit das Genster aufgeht. Daran habe ich auch gedacht, weil ich es im Forum irgendwo gelesen habe.
Wie gesagt, schließe den Raum unter der Treppe im EG. Du wirst ihn brauchen. Das ist sonst viel zu wenig Abstellfläche.

Schlafzimmer einfach schmaler machen und Bett drehen. Leider kann ich die Maße jetzt nicht exakt sagen. Das wüßte man gern genau, ob das noch bequem neben dem Bett begehbar ist. Rein optisch würde es gehen, denke ich und der 3m Schrank ist jetzt auch wieder eine Option.
Bauherrin123 schrieb:Ja, einen hab ich noch:
Hat jemand noch andere Vorschläge hier, wie man die Wand und Tür einzeichnen kann? Ich bin bereit, auf 250cm Schrank zu bleiben, dafür muss die Bürotür aufjedenfall nach Innen aufgehen,... Danke
Schlafzimmer einfach schmaler machen und Bett drehen. Leider kann ich die Maße jetzt nicht exakt sagen. Das wüßte man gern genau, ob das noch bequem neben dem Bett begehbar ist. Rein optisch würde es gehen, denke ich und der 3m Schrank ist jetzt auch wieder eine Option.
Ähnliche Themen