Hausbau - Ratgeber
Bauherrenhilfe
- Bauherrenhilfe vor Vertragsabschluss
-- Warum einen unabhängigen Baubetreuer?
-- Vertragsgrundlagen
-- Bausumme
-- Zahlungsplan zur Kostenkontrolle
-- Pflichten des Bauherren vor Vertragsabschluss
-- Unterlagen beim Hausbau vor Vertragsabschluss
- Bauherrenhilfe nach Vertragsabschluss
-- Bauantrag bei Behörden
-- Bau-Genehmigungsverfahren bei Baubehörden
-- Bauspezifische Versicherungen
-- Bauzeitenplan
-- Baubeginn - die Letzten Pflichten der Bauherrschaft
- Bauherrenhilfe während der Bauzeit
- Gewährleistungsansprüche
- Bauabnahme
Baufinanzierung
- Baufinanzierung - Allgemeine Fragen
- Kreditarten
- Kredit-Konditionen
- Bausparen
- Staatliche Förderungen
- Verkehrswert
- Haushaltsrechnung und Bonität
Hausbau Planung
- Haustypen
- Hausbau Vorbereitungsarbeiten
- Das Baugrundstück
- Baugrund beim Hausbau
- Baurecht
- Gebäudeschutz
- Erdarbeiten und Wasserhaltung
- Stützmauern
- Einfriedung
- Untergeschoss
- Kanalisation
- Tragende Elemente
- Nichttragende Innenwände
- Fundation / Fundament
- Deckenkonstruktionen
- Dächer
- Kaminanlagen
- Treppen Rampen Leitern
- Dachbeläge und Spengler
- Fenster
- Sonnen und Wetterschutz
- Aussenputze
- Einbauten, Küchen, Türen
- Bodenbeläge und Unterlagsböden
- Parkett
- Gips, Wand, Decke
Haustechnik und Energie
- Heiztechnik
- Lüftung und Klimatechnik
- Sanitärtechnik
- Elektrotechnik
- Erneuerbare Energie
Whirlpools / Jacuzzi
Hausbau Magazin
- Baufinanzierung trotz Krise?
- Das Blockhaus
- Moderne Dämmstoffe im Vergleich
- Erker Vor- und Nachteile
- Glasflächen beim Hausbau
- Günstig ein Haus Bauen
- Mediterraner Hausbaustil
- Mehrgenerationenhaus
- Moderne Architektur
- Gartengestaltung leicht gemacht
- Traditioneller Ziegelbau
- Villa als höchster Traum
- Im Eigenheim Ruhestand geniessen
- Altbau sanieren
- Kauf einer Holzgarage
- Immobilienmakler
- Arbeitshandschuhe für den Winter
- Zuhause verschönern
- Outdoor-Plissees
- Schlafzimmer planen
- Terrassenüberdachung
- Wohngebäudeversicherung
- Zaunarten und Eigenschaften
- Hauseingang gestalten
- Der perfekte Grundriss
- Sparsamer heizen im Altbau
- Einfamilienhaus smart finanzieren
- Planung einer PV-Anlage
- Neues Haus
- Immobilienfinanzierung
- Installation einer Photovoltaikanlage
- Asbest erkennen und entfernen
- Gartenpflege im Frühling – worauf achten
- Sauna im Fokus - Wellness zuhause
- Erfolgreich vermieten
- Die perfekte Winterbekleidung
- Das Niedrigenergiehaus
- Der April und seine Stürme
- Architektonische Vielfalt
- Ökologisch und nachhaltig bauen
- Das perfekte Schlafzimmer
- Nachhaltige Energieversorgung
- Zukunftsorientiert bauen
- Nachhaltigkeit beim Hausbau
- Tiny Houses
- Wärmepumpen als nachhaltige Heizvariante
- Maßgeschneiderten Kleiderschrank
- Der richtige Baukredit
- Ratgeber für erfolgreichen Hausbau
- Haus als Altersvorsorge
Do-it-yourself Anleitungen
- Verlegeanleitung für Bodenbeläge und Parkett
- Bodenbeläge und Parkett reinigen und pflegen
- Malerarbeiten am Haus
- Garten Tipps
- Umzug und Reinigung

ᐅ Grundriss Reiheneckhaus in Planung - Änderungsvorschläge?

Erstellt am: 20.08.22 21:05
B
Bauherrin123
kbt0922.08.22 08:23
Bauherrin123 schrieb:

weil da noch ein kleiner Esstisch rein soll. Für den Alltag will ich mit den Kindern und Mann in der Küche essen,... finde ich praktisch!
Ich erwähnte ja schon, dass man gerade für Kleinkinder gerne die Tripp Trapp Stühle nimmt. Und so ganz verstehe ich nicht, dass man einen großen Tisch vorsieht und dann 4 m daneben sich auf einen kleinen Tisch, der auch noch etwas im Weg steht, einschießen will.

Evelin hat in diesem Beitrag eigentlich ein sehr praktisches Küchenbeispiel gepostet, da könnte man Küche vom Essen mit einer Schiebetür trennen, die Tripp Trapps stehen gleich passend.

Und, man hätte für Schuhe und Garderobe die 240 cm schrank im Flur und kann die Abstellkammer für all das nutzen, was du selbst erwähnst, z. B. auch zusätzlichen TK-Schrank usw. Ich selber habe in meiner Garderobe immer ca. 2 bis 3 unterschiedliche Jahreszeitjacken, Tücher usw. hängen, die ich dann je nach Bedarf wähle. Für Kinder hat man da unter Umständen noch etwas mehr hängen, die Spielhose, die Wind- und Regensachen für die Kita, die normale Jacke usw.
kbt0922.08.22 08:25
Katja Schlafzimmervorschlag .. da wäre meine Empfehlung Bett 180 cm Matratzenbreite, dann sollten die Gänge rechts und links noch gut gehen, auch zum Bettwäschewechsel etc.

Und planunten darauf achten, dass planunterhalb der Tür rund 70 cm Tiefe zur Verfügung stehen. Pax-Kleiderschränke sind z. B. mit Schiebetüren 66 cm tief.
B
Bauherrin123
22.08.22 08:47
K a t j a schrieb:

Wie gesagt, schließe den Raum unter der Treppe im EG. Du wirst ihn brauchen. Das ist sonst viel zu wenig Abstellfläche.


Ja, einen hab ich noch:
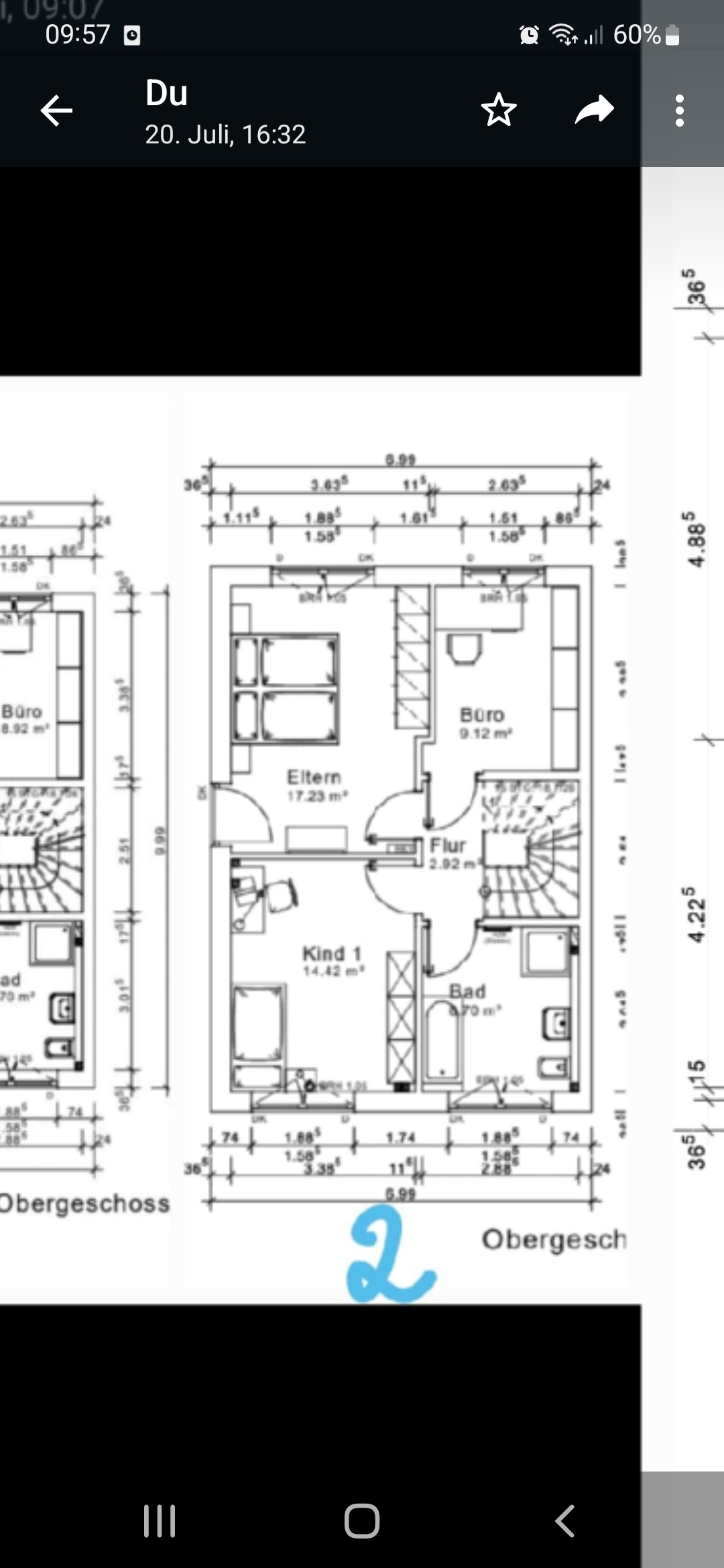
[ATTACH alt="grundriss-reiheneckhaus-in-planung-aenderungsvorschlaege-591434-1.jpg"]74163[/ATTACH]
Schlafzimmer einfach schmaler machen und Bett drehen. Leider kann ich die Maße jetzt nicht exakt sagen. Das wüßte man gern genau, ob das noch bequem neben dem Bett begehbar ist. Rein optisch würde es gehen, denke ich und der 3m Schrank ist jetzt auch wieder eine Option.


Hier wird das Büro aber dadurch sehr klein, noch kleiner, als es bei meinem.Plan schon ist. Dann möchte ich das Fenster, wo du jetzt das Bett drangesteölt hast aufarbeiten Fall rausnehmen und das Bett nicht ans Fenster stellen. Hier entsteht nun eine große Fläche die ungenutzt sein wird, nicht praktisch ist, wenn wir Kinder haben wollen wir ein Bett dranshellen können ubd für Kommode/schminke ist auch kein Platz.
Also die Version geht für mich nicht.
Ich schicke euch mal eine andere Variante, die die Architektin mir geschickt hatte,...
Bett und Schrank will ich tauschen, weil ich es schönr finde, auf das Bett und. Ich Schrank schauen zu können, wenn man rein kommt... das wäre möglich, Schrank dann halt nur bis 250 auch kein Problem, der Haken nur, die Zimmertür Büro war sehr schmal.

Grundriss Obergeschoss mit Eltern, Kind 1, Büro, Bad, Flur und Dachterrasse.
kbt0922.08.22 09:02
Dann lass dir mal die echte Durchgangsbreite dieser Bürotür berechnen. Nicht das Rohbauloch. Und dann prüfe, ob du Schrank, Tisch usw. da noch hinein bekommst.

Wäre es nicht vielleicht auch eine sinnvolle Idee, den Studiobereich im DG als Elternschlafzimmer zu planen und die 3 Räume im OG halbwegs gleichgroß zu gestalten und quasi mal als Kinderetage vorzusehen?
B
Bauherrin123
22.08.22 09:56
kbt09 schrieb:

Dann lass dir mal die echte Durchgangsbreite dieser Bürotür berechnen. Nicht das Rohbauloch. Und dann prüfe, ob du Schrank, Tisch usw. da noch hinein bekommst.

Wäre es nicht vielleicht auch eine sinnvolle Idee, den Studiobereich im DG als Elternschlafzimmer zu planen und die 3 Räume im OG halbwegs gleichgroß zu gestalten und quasi mal als Kinderetage vorzusehen?


Ja das schon, aber finde es trotzdem komisch. Sie hatte es ja eingezeichnet. Die schmalste Tür, die man dafür haben darf, wäre 60cm Breit oder 63... weiß es nicht mehr, das wäre bei mit in der Wohnung die WC Tür. Im.WC ist es mir ehrlichgesagt noch nie aufgefallen, dass die Tür so schmal ist, aber irgendwie will ich das für ein Büro trotzdem nicht haben. Aber mit der schmalen Tür ist alles so,. Wie ich es gerne hätte, nur die Tür ist dann schmal. Alternative Moment gibt es doch noch eine...Moment ich schicke sie euch


Wobei die Variante, ja ähnlich ist wenn man nach innen die Tür aufmacht, von jemanden der sie mir bereits aufgezeichnet hatte....mit dem.Bogen...wo ich auf der Baustelle parat sein soll, wenn es gemacht wird, dass es dann auch passt.

Die Aufteilung der Zimmer, das es Elternzimmer Wird, usw. Will ich nicht ändern... ich suche nach einer Optimalen Lösung wegen der Tür...

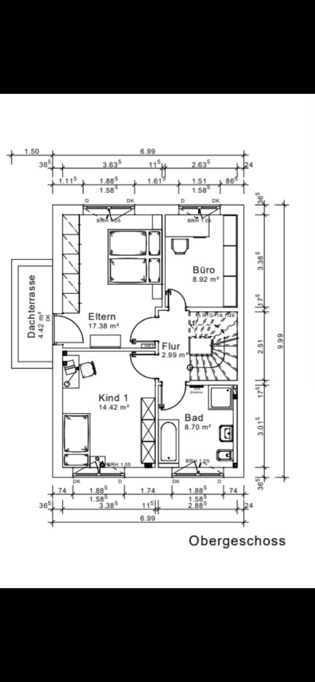
Obergeschoss Grundriss: Eltern, Kind 1, Büro, Flur, Bad; Größen in m².
K a t j a22.08.22 11:31
Bauherrin123 schrieb:

Hier wird das Büro aber dadurch sehr klein, noch kleiner, als es bei meinem.Plan schon ist.
Ähm, ne. Das Büro ist größer geworden.
Bauherrin123 schrieb:

Dann möchte ich das Fenster, wo du jetzt das Bett drangesteölt hast aufarbeiten Fall rausnehmen und das Bett nicht ans Fenster stellen. Hier entsteht nun eine große Fläche die ungenutzt sein wird, nicht praktisch ist, wenn wir Kinder haben wollen wir ein Bett dranshellen können ubd für Kommode/schminke ist auch kein Platz.
Hier hat wohl die Autokorrektur zugeschlagen. Bei dem Kauderwelsch kann ich nicht ganz folgen.
Bauherrin123 schrieb:

Also die Version geht für mich nicht.
Okay, das hab ich verstanden. 🙂
Bauherrin123 schrieb:

Ich schicke euch mal eine andere Variante, die die Architektin mir geschickt hatte,...
Bett und Schrank will ich tauschen, weil ich es schönr finde, auf das Bett und. Ich Schrank schauen zu können, wenn man rein kommt... das wäre möglich, Schrank dann halt nur bis 250 auch kein Problem, der Haken nur, die Zimmertür Büro war sehr schmal.
Ah, die Variante mit der Zwergentür. Vermutlich 66er Breite - hat sie lieber nicht dran geschrieben. Verständlich. 😉

Nun, wenn die Zimmer nicht geändert werden sollen, könnte man evtl. an der Treppe rütteln. Es geht ja hier nur um eine Stufe am Treppenaustritt, schätze ich. Ist die Frage, ob man die an anderer Stelle abzweigen kann. Aber ich hab das Gefühl, das wird noch schwieriger...
türschrankbettgarderobefensterzimmer