Hausbau - Ratgeber
Bauherrenhilfe
- Bauherrenhilfe vor Vertragsabschluss
-- Warum einen unabhängigen Baubetreuer?
-- Vertragsgrundlagen
-- Bausumme
-- Zahlungsplan zur Kostenkontrolle
-- Pflichten des Bauherren vor Vertragsabschluss
-- Unterlagen beim Hausbau vor Vertragsabschluss
- Bauherrenhilfe nach Vertragsabschluss
-- Bauantrag bei Behörden
-- Bau-Genehmigungsverfahren bei Baubehörden
-- Bauspezifische Versicherungen
-- Bauzeitenplan
-- Baubeginn - die Letzten Pflichten der Bauherrschaft
- Bauherrenhilfe während der Bauzeit
- Gewährleistungsansprüche
- Bauabnahme
Baufinanzierung
- Baufinanzierung - Allgemeine Fragen
- Kreditarten
- Kredit-Konditionen
- Bausparen
- Staatliche Förderungen
- Verkehrswert
- Haushaltsrechnung und Bonität
Hausbau Planung
- Haustypen
- Hausbau Vorbereitungsarbeiten
- Das Baugrundstück
- Baugrund beim Hausbau
- Baurecht
- Gebäudeschutz
- Erdarbeiten und Wasserhaltung
- Stützmauern
- Einfriedung
- Untergeschoss
- Kanalisation
- Tragende Elemente
- Nichttragende Innenwände
- Fundation / Fundament
- Deckenkonstruktionen
- Dächer
- Kaminanlagen
- Treppen Rampen Leitern
- Dachbeläge und Spengler
- Fenster
- Sonnen und Wetterschutz
- Aussenputze
- Einbauten, Küchen, Türen
- Bodenbeläge und Unterlagsböden
- Parkett
- Gips, Wand, Decke
Haustechnik und Energie
- Heiztechnik
- Lüftung und Klimatechnik
- Sanitärtechnik
- Elektrotechnik
- Erneuerbare Energie
Whirlpools / Jacuzzi
Hausbau Magazin
- Baufinanzierung trotz Krise?
- Das Blockhaus
- Moderne Dämmstoffe im Vergleich
- Erker Vor- und Nachteile
- Glasflächen beim Hausbau
- Günstig ein Haus Bauen
- Mediterraner Hausbaustil
- Mehrgenerationenhaus
- Moderne Architektur
- Gartengestaltung leicht gemacht
- Traditioneller Ziegelbau
- Villa als höchster Traum
- Im Eigenheim Ruhestand geniessen
- Altbau sanieren
- Kauf einer Holzgarage
- Immobilienmakler
- Arbeitshandschuhe für den Winter
- Zuhause verschönern
- Outdoor-Plissees
- Schlafzimmer planen
- Terrassenüberdachung
- Wohngebäudeversicherung
- Girokonto für Bauherren finden
- Hauseingang gestalten
- Zaunarten und Eigenschaften
- Der perfekte Grundriss
- Sparsamer heizen im Altbau
- Einfamilienhaus smart finanzieren
- Planung einer PV-Anlage
- Neues Haus
- Immobilienfinanzierung
- Installation einer Photovoltaikanlage
- Asbest erkennen und entfernen
- Gartenpflege im Frühling – worauf achten
- Sauna im Fokus - Wellness zuhause
- Erfolgreich vermieten
- Die perfekte Winterbekleidung
- Das Niedrigenergiehaus
- Der April und seine Stürme
- Architektonische Vielfalt
- Ökologisch und nachhaltig bauen
- Das perfekte Schlafzimmer
- Nachhaltige Energieversorgung
- Zukunftsorientiert bauen
- Nachhaltigkeit beim Hausbau
- Tiny Houses
- Wärmepumpen als nachhaltige Heizvariante
- Maßgeschneiderten Kleiderschrank
- Der richtige Baukredit
- Ratgeber für erfolgreichen Hausbau
- Haus als Altersvorsorge
Do-it-yourself Anleitungen
- Verlegeanleitung für Bodenbeläge und Parkett
- Bodenbeläge und Parkett reinigen und pflegen
- Malerarbeiten am Haus
- Garten Tipps
- Umzug und Reinigung

ᐅ Änderungsideen an unserem Grundriss

Erstellt am: 21.07.19 13:28
P
Pädda
P
Pädda
21.07.19 13:28
Hallo. Wir nach langer Planung mit unserem Architekten den Grundriss und die Ansichten fertig. Vielleicht fällt euch ja noch etwas auf was noch optimiert werden kann.
Wir sind gespannt auf eure Ideen!
Vier Ansichten eines modernen Hauses (Norden, Osten, Süden, Westen) mit Garten.


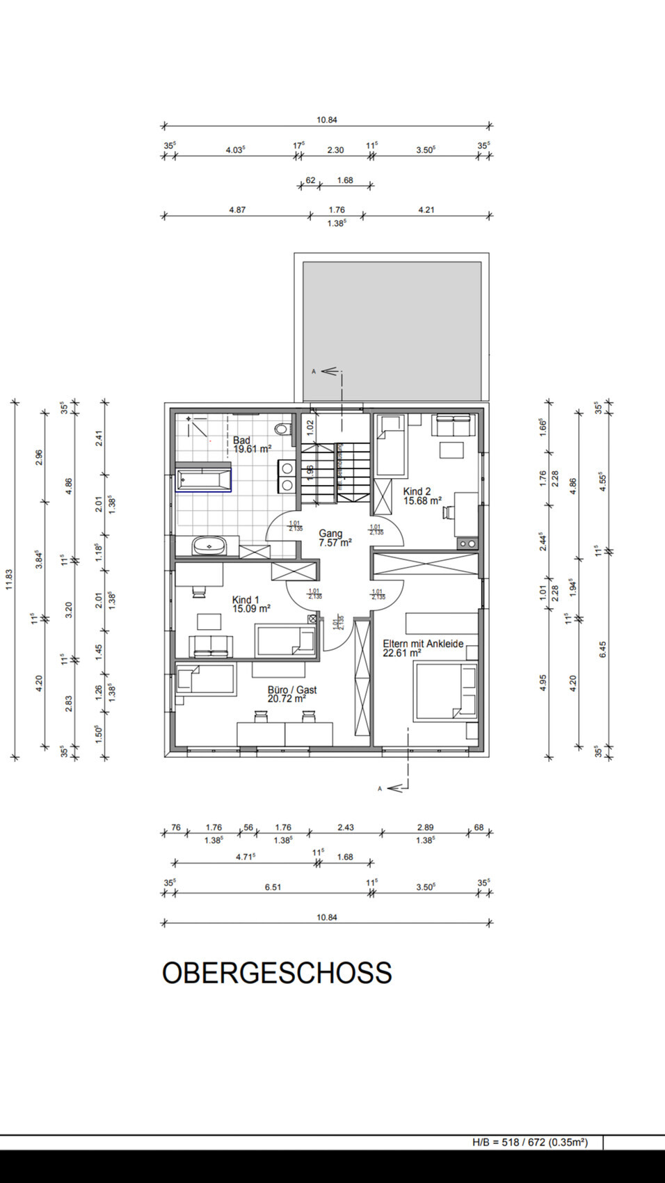
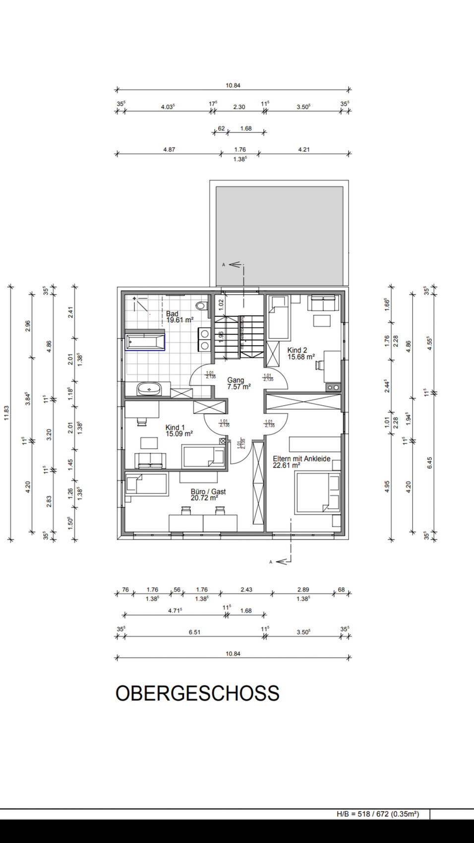
Grundriss Obergeschoss: Bad, Elternzimmer mit Ankleide, zwei Kinderzimmer, Büro/Gast, Flur, Treppen.


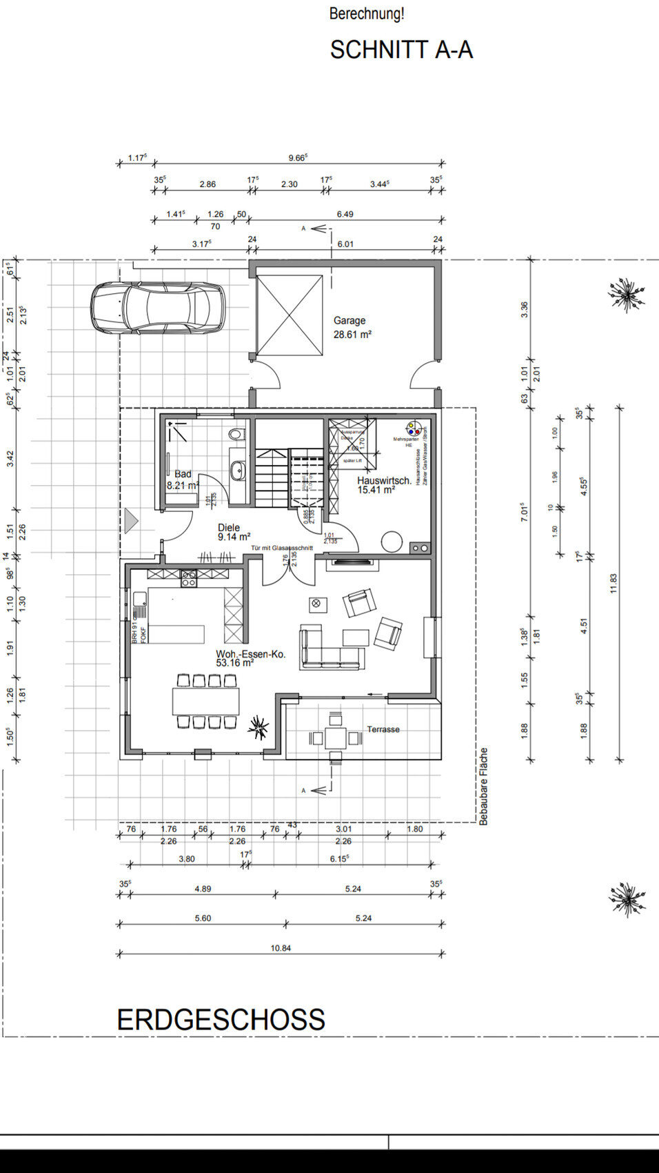
Grundriss Erdgeschoss mit Garage, Diele, Bad, Küche, Wohnen-Essen-Ko, Terrasse.


Schnitt A-A durch ein zweigeschossiges Gebäude mit Treppe, Wohn- und Bürobereichen und Dachaufbau.
H
haydee
21.07.19 15:39
Kannst du bitte den Fragebogen ausfüllen
Y
ypg
21.07.19 16:04
Grundsätzlich fehlt die Garderobe, ein schrank passt da nicht hin. Dafür ist das Bad sehr großzügig, also im Verhältnis zu groß. Das gilt auch für den Hauswirtschaftsraum. Von zwei separaten Abstellräumen hat man mehr an Ordnung und Stellwänden.
Fenster sind mir zu viel verschiedene Elemente. Wenn Schlafzimmer im Süden ist, dann geht ihr ein.

Was mir persönlich nicht gefallen würde:
- Waschmaschine im Bad. Keine ruhige Minute... wo wird die Schmutzwäsche sortiert?
- Der ständige Weg durch die Chilllounge. Ich würde Küchen/Ess mit dem WZ tauschen. Gibt es eine Ausrichtung, ein Grundstück dazu?

Küche funktioniert nicht wie eingezeichnet. Aber dafür muss der Raum nicht anders, das richtet schon ein Küchenplaner. Ich würd sie ja eh woanders....
P
Pädda
22.07.19 05:05
Hier ist er ausgefüllt...

Bebauungsplan/Einschränkungen
Größe des Grundstücks: 582m2
Hang: leichte Hanglage
Grundflächenzahl: ist berücksichtigt
Geschossflächenzahl: ist berücksichrigt
Baufenster, Baulinie und -grenze: sind berücksichtigt
Anzahl Stellplatz: 2
Geschossigkeit: 2 Vollgeschosse
Dachform: Flachdach
Stilrichtung: modern
Ausrichtung: im Plan ist Norden oben
Maximale Höhen/Begrenzungen: ist berücksichtigt

Anforderungen der Bauherren
Stilrichtung, Dachform, Gebäudetyp: Flachdach, modern
Keller, Geschosse: kein Keller
Anzahl der Personen, Alter: 3 Personen, Alter: 39, 35, 2
Raumbedarf im EG, OG: 189m2
Büro: Familiennutzung oder Homeoffice? Familie + Büro + Übernachtungsgäste
Schlafgäste pro Jahr: 5
offene oder geschlossene Architektur: offen
konservativ oder moderne Bauweise: modern
offene Küche, Kochinsel: offene Küche
Anzahl Essplätze: 1
Kamin: ja
Musik/Stereowand: nein
Balkon, Dachterrasse: nein
Garage, Carport: Garage
Nutzgarten, Treibhaus: nein
weitere Wünsche/Besonderheiten/Tagesablauf, gern auch Begründungen, warum dieses oder das nicht sein soll: Wäsche soll im Bad OG gewaschen werden, also dort wo die Wäsche anfällt.

Hausentwurf
Von wem stammt die Planung:
-Architekt
Preisschätzung lt Architekt/Planer: 696.000 Euro inkl. Baunebenkosten und Hausanschlüssen und Bodenbelägen
Persönliches Preislimit fürs Haus, inkl Ausstattung: u.a. Kontrollierte-Wohnraumlüftung
favorisierte Heiztechnik: Gas (aus Preisgründen)

Wenn Ihr verzichten müsst, auf welche Details/Ausbauten
-könnt Ihr verzichten: -
-könnt Ihr nicht verzichten: Kamin, Ankleide

Warum ist der Entwurf so geworden, wie er jetzt ist?
Entsprechende/Welche Wünsche wurden vom Architekten umgesetzt? Kinderzimmer sollten nicht im Süden liegen wegen der Hitze. Terrasse sollte im Süden. Abendsonne auf der Terrasse war ebenso wichtig.
Was macht ihn in Euren Augen besonders gut oder schlecht? sehr gut gefällt uns das große offene Wohnzimmer, der Kamin. Unsicher sind wir, ob der Stauraum reicht (Hauswirtschaftsraum beinhaltet auch Technik, Garage kann dafür vollständig als Abstellraum dienen). Ebenso unsicher sind wir im Beug auf den Stauraum im Wohnzimmer, da rechts oben im Wohnzimmer noch ein Kamin hinkommt und entsprechende Abstände zu brennbaren Materialien eingehalten werden müssen, ergo keine Schränke in der Umgebung stehen dürfen.

Was ist die wichtigsten Fragen: Gibt es Optimierungsmöglichkeiten aus eurer Sicht?
P
Pädda
22.07.19 05:38
ypg schrieb:

Grundsätzlich fehlt die Garderobe, ein Schrank passt da nicht hin. Dafür ist das Bad sehr großzügig, also im Verhältnis zu groß. Das gilt auch für den Hauswirtschaftsraum. Von zwei separaten Abstellräumen hat man mehr an Ordnung und Stellwänden.
Fenster sind mir zu viel verschiedene Elemente. Wenn Schlafzimmer im Süden ist, dann geht ihr ein.

Was mir persönlich nicht gefallen würde:
- Waschmaschine im Bad. Keine ruhige Minute... wo wird die Schmutzwäsche sortiert?
- Der ständige Weg durch die Chilllounge. Ich würde Küchen/Ess mit dem WZ tauschen. Gibt es eine Ausrichtung, ein Grundstück dazu?

Küche funktioniert nicht wie eingezeichnet. Aber dafür muss der Raum nicht anders, das richtet schon ein Küchenplaner. Ich würd sie ja eh woanders....
Das Bad im EG ist so groß geworden, da es eine offene bodentiefe Dusche bekommt und entsprechend Spritzwasser anfällt. Eine Kommode sollte auch noch reingestellt werden können.

Das mit der Garderobe ist ein sehr guter Hinweis gewesen. Einen Schrank möchten wir zwar nicht, jedoch eine durchgängige Sitzbank in der Nische mit Haken an den Wänden für die Alltagsjacken. Dazu brauchen wir aber mehr Tiefe in der Nische (ca.45cm). Danke also für den Hinweis. Sonstige Jacken können in den Hauswirtschaftsraum, weshalb dieser auch etwas größer ausfällt... Dort kommt auch ein großer Tiefkühlschrank rein. Den wollten wir nicht in der Küche haben, da uns die Lautstärke am Abend hätte stören können.

Der Hauswirtschaftsraum ist so groß, da wir der Meinung sind, dass wir dort die Regale optimiert in den perfekten Längen und Tiefen hinstellen können, ohne durch eine zusätzliche Wand Platz zu verlieren.

Warum passt denn die Küche nicht aus deiner Sicht? Die wurde bereits vom Küchenplaner geplant. An die rechte Wand kommt ein hocheingebauter Geschirrspüler und ein integrierter Kühlschrank in Hochschränke. Arbeitsfläche wollten wir gerne eine große haben mit Blick auf die spielenden Kinder oder auch um gemeinsam Plätzchen ausstechen zu können.

Schlafzimmer im Süden nehmen wir in Kauf. Grundsätzlich mögen wir es warm und die Fenster bleiben bei uns aktuell das ganze Jahr während der Nacht geachlossen. Und wir dachten, besser wir als die Kinder.

Küche und Wohnen möchten wir nur ungern tauschen. Im aktuellen Grundriss ist die Küche im Westen geplant, da dort auch eine 30er Zone herführt und wir lieber den Wohnbereich nicht von der Straße einsehbar haben wollten.

Das mit den vielen unterschiedlichen Fensterelementen kann ich nachvollziehen. Wir haben viel darüber nachgedacht, haben selber aber keine bessere Lösung gefunden. Wenn du eine bessere Idee hast dann nur her damit. Wir sind da etwas Ratslos. Im OG Westen und OG Süden waren uns wegen dem Sichtschutz von der Straße (Westen) Fenster mit normaler Brüstungshöhe wichtig. Das Fenster Westen im Essbereich sollte eine niedrige Brüstungshöhe bekommen, da dort Blumen abgestellt werden sollen. Das Fenster (Osten) im Wohnbereich soll eine in das Fenster eingelassene Sitzbank bekommen und ist deshalb etwas niedriger von der Brüsrungshöhe.
H
haydee
22.07.19 07:32
Dann plant im OG einen kleinen Hauswirtschaftsraum. Wo sammelt ihr die Schmutzwäsche? Wo wird die Handwäsche gewaschen? Wo wird Wäsche aufgehängt?
küchenplanerfensterhauswirtschaftsraumarchitektenkamingaragewohnzimmergrundrissgarderobeschrank