ᐅ Grundriss Reiheneckhaus in Planung - Änderungsvorschläge?
Erstellt am: 20.08.22 21:05
B
Bauherrin123B
Bertram10021.08.22 09:18Bauherrin123 schrieb:
. Unten wird es mir doch nichts bringen? Der Platz für den Schuhschrank ist neben der Küchentür, da gegenüber ist doch der Abstellraum und WC und keine Treppe, die mir da mehr Platz gibt?Eines der beiden kann dann in Längsrichtung unter die Treppe. Ich habe dort mein WC mit Handwaschbecken. Geht prima, auch für im Stehen pinkelde Männer. 😀Das andere in Längsrichtung drehen oder sogar den Vorratsraum nur als schrank entlang der Wand ausführen. Dann ist die Verkehrsfläche die du jetzt in dem Vorratsraum haben musst um an die Regale und Vorräte ranzukommen, das wird dann in Längsrichtung der Bewegungsraum im Flur. Was gleichzeitig Flur ist, ist auch Verkehrsfläche zum Vorräte erreichen.
Ich habe mal ein Foto gemacht: der Zollstock auf dem Boden ist auf 180cm ausgeklappt. Die Schränke sind 30 tief (Ivar von Ikea) und stehen bei mir vor der Technik. Ich habe hinter der Eingangstür Wasser, Strom, Telefon und will das zugänglich halten. Dann habe ich noch mein Fahrrad im Flur stehen. Das Fahrrad ist 65cm breit ungefähr. Der Durchgang an der schmalsten Stelle in der Höhe des Fahrrads ist 80cm. Das wäre das was du ungefähr hättest. Aber immer. Ich kann mein Fahrrad auch wegstellen. Dann habe ich 140cm Durchgang + Stauraum an der Stelle.
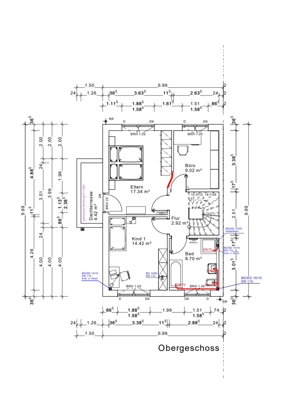
Die Bürotür ist wirklich eine Gefahr. Das ist schon sehr unschön. Hier 2 Änderungsvarianten, wobei immer ein Haken bei der Sache bleibt
Variante 1 büßt Du Stellfläche ein. In so einem kleinen Haus ein echter Verlust. Aber immer noch besser, als die Tür vor die Nase geschmettert zu bekommen.

Bei Variante 2 öffnet die Tür gefühlt in die falsche Richtung (nicht zum Raum hin, sondern gegen die Wand). Das ist verkraftbar - man kann sie ja weit aufmachen. Dafür müsste man nur die Schräge etwas anpassen und die Stellfläche im Schlafzimmer bleibt erhalten. Die große Frage dabei ist, ob die Maurer wirklich so exakt mauern, damit das dann auch klappt und nicht in die Hose geht. Schließlich müssen sie den Türaufschlagskreis im Auge haben. Bei so knappen Sachen steh ich auf der Baustelle direkt daneben und gucke drauf. Am besten noch den Türaufschlag und Wandschräge auf den Boden malen mit ein paar Zentimeter Spielraum für Putz und Zarge.

Neben der Waschmaschine im OG ist ein Doppelflügelfenster im Dach - da erhält man nochmal ein wenig Höhe - so bis zu 30 manchmal bis zu 40cm kann das ausmachen. Aber man kommt nicht von 1m auf 1,80m Stehhöhe oder ähnliches. Von daher bleibt es imho ein ewiges Gebücke, um die Wäsche zu waschen. Das ist ne Art Diskriminierung der Hausfrau, wenn Du mich fragst. 😉
Die Erkertür ist optisch in einer Flucht mit den Außenfenstern und Türen bei den Geschossen darüber. Was Dir nun wichtiger ist, musst Du selbst entscheiden. Vielleicht macht man sie auch einfach so groß, dass beides passt. Wäre meine Lösung.
Variante 1 büßt Du Stellfläche ein. In so einem kleinen Haus ein echter Verlust. Aber immer noch besser, als die Tür vor die Nase geschmettert zu bekommen.
Bei Variante 2 öffnet die Tür gefühlt in die falsche Richtung (nicht zum Raum hin, sondern gegen die Wand). Das ist verkraftbar - man kann sie ja weit aufmachen. Dafür müsste man nur die Schräge etwas anpassen und die Stellfläche im Schlafzimmer bleibt erhalten. Die große Frage dabei ist, ob die Maurer wirklich so exakt mauern, damit das dann auch klappt und nicht in die Hose geht. Schließlich müssen sie den Türaufschlagskreis im Auge haben. Bei so knappen Sachen steh ich auf der Baustelle direkt daneben und gucke drauf. Am besten noch den Türaufschlag und Wandschräge auf den Boden malen mit ein paar Zentimeter Spielraum für Putz und Zarge.
Neben der Waschmaschine im OG ist ein Doppelflügelfenster im Dach - da erhält man nochmal ein wenig Höhe - so bis zu 30 manchmal bis zu 40cm kann das ausmachen. Aber man kommt nicht von 1m auf 1,80m Stehhöhe oder ähnliches. Von daher bleibt es imho ein ewiges Gebücke, um die Wäsche zu waschen. Das ist ne Art Diskriminierung der Hausfrau, wenn Du mich fragst. 😉
Die Erkertür ist optisch in einer Flucht mit den Außenfenstern und Türen bei den Geschossen darüber. Was Dir nun wichtiger ist, musst Du selbst entscheiden. Vielleicht macht man sie auch einfach so groß, dass beides passt. Wäre meine Lösung.
Bauherrin123 schrieb:
Das Haus sollte aber meiner Meinung nach über dem Straßenniveau 1 m sein und nicht nur so k app eine Stufe, wie eingezeichnet.Hmm, nur eine Stufe nennt man komfortabel, gleiches gilt ja für die Terrassentüren. Ein Meter Distanz bedeutet 4-5 Stufenantritte. Bei Hochwassergebiet sicherlich nötig, aber sonst vermeidet man das eigentlich.Zur Bürotür im OG: ihr braucht 2 Büros… werden in beiden denn auch störende Telefongespräche oder Konferenzen angehalten? Ansonsten würde ich vorschlagen, eine günstige Schiebetür in EL vorzusetzen. Die stört nicht, dichtet aber auch nur optisch ab.
B
Bauherrin12321.08.22 12:15K a t j a schrieb:
Die Bürotür ist wirklich eine Gefahr. Das ist schon sehr unschön. Hier 2 Änderungsvarianten, wobei immer ein Haken bei der Sache bleibt
Variante 1 büßt Du Stellfläche ein. In so einem kleinen Haus ein echter Verlust. Aber immer noch besser, als die Tür vor die Nase geschmettert zu bekommen.
[ATTACH alt="bürotür1.jpg"]74140[/ATTACH]
Bei Variante 2 öffnet die Tür gefühlt in die falsche Richtung (nicht zum Raum hin, sondern gegen die Wand). Das ist verkraftbar - man kann sie ja weit aufmachen. Dafür müsste man nur die Schräge etwas anpassen und die Stellfläche im Schlafzimmer bleibt erhalten. Die große Frage dabei ist, ob die Maurer wirklich so exakt mauern, damit das dann auch klappt und nicht in die Hose geht. Schließlich müssen sie den Türaufschlagskreis im Auge haben. Bei so knappen Sachen steh ich auf der Baustelle direkt daneben und gucke drauf. Am besten noch den Türaufschlag und Wandschräge auf den Boden malen mit ein paar Zentimeter Spielraum für Putz und Zarge.
[ATTACH alt="bürotür2.jpg"]74141[/ATTACH]
Neben der Waschmaschine im OG ist ein Doppelflügelfenster im Dach - da erhält man nochmal ein wenig Höhe - so bis zu 30 manchmal bis zu 40cm kann das ausmachen. Aber man kommt nicht von 1m auf 1,80m Stehhöhe oder ähnliches. Von daher bleibt es imho ein ewiges Gebücke, um die Wäsche zu waschen. Das ist ne Art Diskriminierung der Hausfrau, wenn Du mich fragst. 😉
Die Erkertür ist optisch in einer Flucht mit den Außenfenstern und Türen bei den Geschossen darüber. Was Dir nun wichtiger ist, musst Du selbst entscheiden. Vielleicht macht man sie auch einfach so groß, dass beides passt. Wäre meine Lösung.Lösung 1 kommt für mich nicjt in Frage da ich später ein 3m Schrank möchte und den Platz dafür aufgehoben habe. Dafür finde ich Variante 2 echt genial. Frag die Architektin, ob das möglich ist, ich hoffe,das ist echt cool,.wenn es klappt.
Was meinst du mit Doppelflügelfenster (Dachfenster)? Ich versteh nicht, was du da meinst und an Höhe gewinnst, da das Fenster, falls du das Fenster damit meinst, ja mittig sein wird und die Waschmaschine ja am der Wand steht und am Rand, da Word so und so Wand sehen. Die einzige Alternative wäre, das Waschbecken wo anders hin oder weglassen, um Waschmaschine dahin schieben. Einen Trockner muss ich auch noch einplanen lassen.
Bauherrin123 schrieb:
Lösung 1 kommt für mich nicjt in Frage da ich später ein 3m Schrank möchte und den Platz dafür aufgehoben habe. Aber da ist selbst in der Ausgangsvariante kein 3m Schrank eingezeichnet. Schräge hin oder her, ich glaub, das reicht so oder so nicht, fürchte ich.Bauherrin123 schrieb:
Dafür finde ich Variante 2 echt genial. Frag die Architektin, ob das möglich ist, ich hoffe,das ist echt cool,.wenn es klappt.Wie gesagt, falls ja, musst Du dich am richtigen Tag daneben stellen und aufpassen, damit es kein Murks wird. Bauherrin123 schrieb:
Was meinst du mit Doppelflügelfenster (Dachfenster)? Ich versteh nicht, was du da meinst und an Höhe gewinnst, da das Fenster, falls du das Fenster damit meinst, ja mittig sein wird und die Waschmaschine ja am der Wand steht und am Rand, da Word so und so Wand sehen. Die einzige Alternative wäre, das Waschbecken wo anders hin oder weglassen, um Waschmaschine dahin schieben. Einen Trockner muss ich auch noch einplanen lassen.Yep. Das Fenster schafft zusätzliche Höhe, da die Dicke der Dachdämmung bzw. Ziegel usw. auf die Fensterfläche nach oben reduziert wird. Das bringt ein paar Zentimeter. Also dort wo man steht, hat man mehr Kopffreiheit. Aber es bringt nicht so viel, dass man von 1m auf 1,80m kommt (übliche Körpergröße). Von daher nochmal genau schauen, wie und was möglich ist, mit Deinem Kniestock oder mit dem Entwurf. Vielleicht gehen auch Gauben? Teuer aber so schaffst Du natürlich sofort die Stehhöhe.B
Bauherrin12321.08.22 12:53ypg schrieb:
Hmm, nur eine Stufe nennt man komfortabel, gleiches gilt ja für die Terrassentüren. Ein Meter Distanz bedeutet 4-5 Stufenantritte. Bei Hochwassergebiet sicherlich nötig, aber sonst vermeidet man das eigentlich.
Zur Bürotür im OG: ihr braucht 2 Büros… werden in beiden denn auch störende Telefongespräche oder Konferenzen angehalten? Ansonsten würde ich vorschlagen, eine günstige Schiebetür in EL vorzusetzen. Die stört nicht, dichtet aber auch nur optisch ab.Doch bei der Ausgangsvariante ist es aufjdenfall möglich, die Architektin hat gemessen. 250 cm ist der Schrank ja eingezeichnet und es sind 50cm aufjedefanll mehr drin. Sie frage ist nur, wenn man die Tür dreht, ob es dann noch drin ist...ich wollte mir die Freiheit aufjedenfall lassen bis 3m Schrank hinstellen zu können...aber überlege, ob es mir soviel Wert ist, oder ob ich nicht bein25ücm mich einschränken, dafür einen schöneren Schnitt nehmen soll, falls man durch die Variante 2, das 3m Schrank nicht hinstellen kann.
Klar werde ich Vorort sein, damit das genau richtig gebaut wird...daran soll es jetzt nicht scheitern... und wenn ich mit Baby hingehen soll.
Ähnliche Themen