ᐅ Grundriss Reiheneckhaus in Planung - Änderungsvorschläge?
Erstellt am: 20.08.22 21:05
B
Bauherrin123B
Bauherrin12320.08.22 23:48K a t j a schrieb:
Sofa und Fernseher tauschen kann ich nicht nachvollziehen. Mal es mal ein. Das kollidiert mit dem Tisch, oder?
Zum Grundriss:
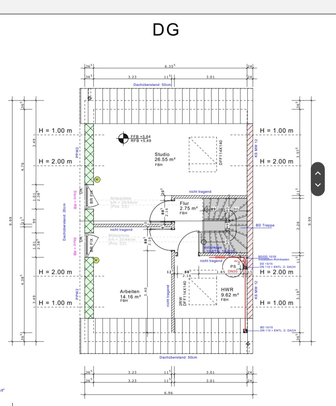
Die gesamte Technik ist oben im Hauswirtschaftsraum, die Waschmaschine steht bei der 1m Grenze - da seh ich schwarz. Wo ist die Heizung und was ist das für eine ... und überhaupt, wo ist der ausgefüllte Fragebogen?
Bürotür schlägt in den Laufweg der Schlafzimmer-Tür. Das ist schon bald Körperverletzung. Das Schlafzimmer muss hier noch ein Stück Wand opfern, nur so viel, dass die Tür rein passt und man sie drehen kann. Küchentür schlägt auch in die falsche Richtung.
Wieso denkst Du, dass Du 1m Kniestock durch kriegst? Hat das überhaupt eine Chance auf Erfolg? Vielleicht könnte Dein Architekt mit dem Höhenunterschied argumentieren. Statt unten aufzuschütten, baust Du halt oben höher, damit die "Optik" stimmig ist. Versuchen würde ich das, aber erstmal mündlich vortesten, ob die mich beim Amt nicht auslachen.Also ich zeichnen mal eine wie ich das Wohnzimmer haben will,...mir ist klar dass es mit einigen Türen dann knapp wird, aber schiebetür, kostet 3000 Euro, können wir uns nicht leisten.
Das mit den Türen im OG kannst du mir einreichen wie du es meinst, wie man was verschieben soll?
Das mit der Waschmaschine ist ja echt Blödsinn, hab da garnichtbdran gedacht. Es wird eine kleine Heizung, das hatten die einen, bei der ich mir das Haus angeschaut habe auch so, aber ich frag da mal nach, danke für den Hinweis. Haustechnik ist eigentlich im Eingangsbereich, direkt in der Diele...oben ist da im Hauswirtschaftsraum der "Turm" der Heitung, keine Ahnung wie man das nennt. Wir bekommen eine Wärmepumpe.
Ich war noch nicht bei der Bemusterung, da werden die Türenrichtungen noch als entschieden, dass zu ändern ist kein Problem. Nur warum würdest du die Küchentür andersherum aufmachen?
B
Bauherrin12321.08.22 00:00Ach dann habe ich vergessen zu antworten wegen Knistock. Also als erstes muss ich sagen dass es mir dum das Wasser geht, finde Häuser sollten etwas höher gebaut werden, damit Regenwasser nicht reinläuft, hab mich in der Umgebung umgeschaut, alle haben vom straßenniveau 2 oder 3 Stufen mehr als wir zum Eingang. Optik wäre hier zweitrangig. Da die 2 Jöuser in der Reihe höher sein werden, wäre es kein Problem unsere 3 Häuser ebenfalls 1 m höher zu bauen. Ich finde es einfach zu tief. Ich weiß nicht ob Kniestock durchgeht,mit der Optik kann sie nicht allein argumentieren, weil meine direkten Nachnarn, also 2 Häuser ja dazwischen sind zu den hohen bereits erbauten. Und die wollen kein Knistock bezahlen müssen. Ich habe aber oft schon Häuser gesehen, im der Reihe mit unterschiedlichen Dachhöhen.
Das klingt alles nicht sehr überlegt.
Lies dich mal ein bisschen hier im Forum ein.
Zur Küchentür z.B.: Die geht zur Treppe auf, sehr blöd, wenn in dem Augenblick jemand runter kommt. Oder wenn Du Einkäufe nach Hause bringst und dann die nach außen öffnende Tür hast. Die nach innen öffnende Küchentür kannst Du auch mit Taschen in der Hand ordentlich aufmachen. Wenn sie nach außen öffnet, musst Du ziehen, das geht schlecht mit zwei Tüten in jeder Hand.
Lies dich mal ein bisschen hier im Forum ein.
Zur Küchentür z.B.: Die geht zur Treppe auf, sehr blöd, wenn in dem Augenblick jemand runter kommt. Oder wenn Du Einkäufe nach Hause bringst und dann die nach außen öffnende Tür hast. Die nach innen öffnende Küchentür kannst Du auch mit Taschen in der Hand ordentlich aufmachen. Wenn sie nach außen öffnet, musst Du ziehen, das geht schlecht mit zwei Tüten in jeder Hand.
B
Bauherrin12321.08.22 01:02Vielen Dank für den Hinweis, ich hab schon viel gestöbert, ... aber irgendwie vor lauter Bäume sieht man den Wald nicht mehr. Herzlichen Dank für den Hinsweis,die Küchentür ändere ich aufjedenfall nach innen. Jetzt habe och noch gesehen,dass die Glastür im Erker auch nicht mittig ist. Weiß gar nicht ob das einen Grund hat? Die soll auch mittig sein sonst sieht es nicht schön aus. Ich glsub sie hat es den Fenstern oben angepasst, aber dass kann ja egal sein, im erker die Tür sollte mittig im erker sein oder? Ich lade hier noch den Plan von den Bekannten hoch, die haben fast das gleiche Haus was wir bekommen, allerdings Dachneigung 38°, wir 35 und 30 cm Kniestock. Da passt die Waschmaschine und Waschbecken so wie ich es haben will in dee Reihe rein? Die haben 10 cm mehr, aber daran liegt es doch nicht oder? Wie haben die das dann hinbekommen?

Was mir komplett fehlt ist die Garderobe.
Die Türsituation wurde ja schon angesprochen.
Darf der Erker dort gebaut werden, denn er ist ja außerhalb der Baugrenze?
Was habt ihr mit dieser Dachterrasse vor? Wollt ihr die wirklich nutzen? Mir würde da schon die 15cm Stufe auf den Keks gehen.
Wenn du 1m Kniestock willst und bei 35 Grad bleibst dann wird das Haus noch höher. Was sagt denn der Bebauungsplan?
Wieviel müsst ihr denn Aufschütten? Evtl. wäre es da besser einen Keller zu bauen. Was bauen da eure Nachbarn. Mit und ohne Keller im Reihenhausbau ist immer gut mit den Nachbarn abzustimmen.
Deine Fragen sind Basics die man vor Beginn der Planung fest legen sollte und nicht kurz vor der Abgabe des Bauantrags. Diese haben aus meiner Sicht großen Einfluss auf den Entwurf.
Die Türsituation wurde ja schon angesprochen.
Darf der Erker dort gebaut werden, denn er ist ja außerhalb der Baugrenze?
Was habt ihr mit dieser Dachterrasse vor? Wollt ihr die wirklich nutzen? Mir würde da schon die 15cm Stufe auf den Keks gehen.
Wenn du 1m Kniestock willst und bei 35 Grad bleibst dann wird das Haus noch höher. Was sagt denn der Bebauungsplan?
Wieviel müsst ihr denn Aufschütten? Evtl. wäre es da besser einen Keller zu bauen. Was bauen da eure Nachbarn. Mit und ohne Keller im Reihenhausbau ist immer gut mit den Nachbarn abzustimmen.
Deine Fragen sind Basics die man vor Beginn der Planung fest legen sollte und nicht kurz vor der Abgabe des Bauantrags. Diese haben aus meiner Sicht großen Einfluss auf den Entwurf.
B
Bauherrin12321.08.22 05:04hanse987 schrieb:
Was mir komplett fehlt ist die Garderobe.
Die Türsituation wurde ja schon angesprochen.
Darf der Erker dort gebaut werden, denn er ist ja außerhalb der Baugrenze?
Was habt ihr mit dieser Dachterrasse vor? Wollt ihr die wirklich nutzen? Mir würde da schon die 15cm Stufe auf den Keks gehen.
Wenn du 1m Kniestock willst und bei 35 Grad bleibst dann wird das Haus noch höher. Was sagt denn der Bebauungsplan?
Wieviel müsst ihr denn Aufschütten? Evtl. wäre es da besser einen Keller zu bauen. Was bauen da eure Nachbarn. Mit und ohne Keller im Reihenhausbau ist immer gut mit den Nachbarn abzustimmen.
Deine Fragen sind Basics die man vor Beginn der Planung fest legen sollte und nicht kurz vor der Abgabe des Bauantrags. Diese haben aus meiner Sicht großen Einfluss auf den Entwurf.Garderobe wird es eine kleine zwischen Küchentür und Haustechnik nur geben können und dafür habe ich die Abstellkammer noch. Welche alternative hättest du?
Wir müssen sehr viel Aufschütten und zahlen dafür um auf straßenniveau zu kommen 10 000Euro für den Schotter. Alle 3 Häuser werden ohne Keller gebaut, ein Keller wäre 60 bis 70t Plus, ausschütten ist also deutlich günstiger.
Ja ich gebe zu, wir hätten den Plan viel besser besprechen sollen vorher, bevor wir am Donnerstag unseren Okax gegeben haben und die Archiktekten daraufhin erst die Unterlagen fertig gemacht hat. Es gab bei mir zu Hause mit meinem Mann interne Probleme, ich bin hinzu schwanger und hab einiges nicht mehr geschafft und dann wurde mir doch etwas mulmig.....außerdem war ich noch in einem anderen Forum, da kann so gut wie keine Tipps und ich habe mehrere erfahrene Freunde darauf schauen lassen. Die Pläne habe ich mir auch bereits mit einem der der Firma gebaut hat, abgeglichen, der das gleiche Haus hat, deshalb habe ich mich relativ sicher gefühlt, ich frage mich auch, ob mich das Geld kostet, wenn die Architektin die Pläne alles nochmals machen muss, das belastet mich total. Ja unser Fehler, aber okay lieber jetzt nochmals ändern lassen, als ein lebenslang bereuen ubd jetzt bin ich im richtigen Forum, ich kann es ja noch ändern lassen und Ohr werdet es mir nicht glauben, was ich alles ändern lassen habe und ihr erklären musste, um überhaupt was vernünftiges zu bekommen....
Der Erker ist außerhalb des Bebauungsplan,wird sonder Beantragt, hab 8m oder mehr an der Seite,....und der Nachbar müsste auch zu mir 8 m frei halten. Das sollte kein Problem sein.
Deine 15cm Stufe kann ich gar nicht finden, wo ist diese? Die Dachterrasse wird ein Balkon...ich mach da kleine Gartenmöbel hin. Im Bebauungsplan konnte ich zur Gesamthöhe nichts finden, klar wird durch den Kniestock das Haus noch höher, aber im schlimmstenfalle könnte ich bei 30 cm und 35°Satteldaxh bleiben. Das Haus sollte aber meiner Meinung nach über dem Straßenniveau 1 m sein und nicht nur so k app eine Stufe, wie eingezeichnet.
Ich halte mal alle Änderungen fest:
1.Erkertür mittig ändern
2.Küchentür nach innen öffnen.
3.Büro und Schlafzimmertür Öffnung ändern Tpre verschieben, aber wie?
4.Dachboden Waschmaschine Spülbeckenproblematik, passt da alles unter der Schräge.
Ich bin euch sehr dankbar. Ocj werde direkt am Montag im Büro anrufen und ein Termin vereinbaren, dass wir den Bauantrag ändern lassen wollen, mir ist schon mulmig dabei, weil das Ende über Emails verlief und wir eindeutig darüber fefragt wurden, ob es so jetzt okay ist und dann die Anträge fertig gemacht wurden, aber gut mein Mann war auch daran beteiligt und gibt auch so schnell sein okay und schaut sich die Unterlagen nicht genau an, nervt mich so sehr, ist aber eine andere Nummer. Ich werde wohl mehr aufpassen müssen.
Die anderen 2 Häuser die mit uns gebaut werden, haben übrigens schon längst den Bauantrag fertig abgegeben, mit ihnen treffe ich mich auch am Mittwoch. Es gibt aber nichts, was ich mit den Nachnarn absprechen müsste, das wesentliche ist geklärt, ich muss mein Grundriss genauer anschauen und ändern lassen und kann zB. Die 15 cm Stufe auf der Terrasse nicht finde und wenn, was wäre da die Alternative?
Ähnliche Themen