Hausbau - Ratgeber
Bauherrenhilfe
- Bauherrenhilfe vor Vertragsabschluss
-- Warum einen unabhängigen Baubetreuer?
-- Vertragsgrundlagen
-- Bausumme
-- Zahlungsplan zur Kostenkontrolle
-- Pflichten des Bauherren vor Vertragsabschluss
-- Unterlagen beim Hausbau vor Vertragsabschluss
- Bauherrenhilfe nach Vertragsabschluss
-- Bauantrag bei Behörden
-- Bau-Genehmigungsverfahren bei Baubehörden
-- Bauspezifische Versicherungen
-- Bauzeitenplan
-- Baubeginn - die Letzten Pflichten der Bauherrschaft
- Bauherrenhilfe während der Bauzeit
- Gewährleistungsansprüche
- Bauabnahme
Baufinanzierung
- Baufinanzierung - Allgemeine Fragen
- Kreditarten
- Kredit-Konditionen
- Bausparen
- Staatliche Förderungen
- Verkehrswert
- Haushaltsrechnung und Bonität
Hausbau Planung
- Haustypen
- Hausbau Vorbereitungsarbeiten
- Das Baugrundstück
- Baugrund beim Hausbau
- Baurecht
- Gebäudeschutz
- Erdarbeiten und Wasserhaltung
- Stützmauern
- Einfriedung
- Untergeschoss
- Kanalisation
- Tragende Elemente
- Nichttragende Innenwände
- Fundation / Fundament
- Deckenkonstruktionen
- Dächer
- Kaminanlagen
- Treppen Rampen Leitern
- Dachbeläge und Spengler
- Fenster
- Sonnen und Wetterschutz
- Aussenputze
- Einbauten, Küchen, Türen
- Bodenbeläge und Unterlagsböden
- Parkett
- Gips, Wand, Decke
Haustechnik und Energie
- Heiztechnik
- Lüftung und Klimatechnik
- Sanitärtechnik
- Elektrotechnik
- Erneuerbare Energie
Whirlpools / Jacuzzi
Hausbau Magazin
- Baufinanzierung trotz Krise?
- Das Blockhaus
- Moderne Dämmstoffe im Vergleich
- Erker Vor- und Nachteile
- Glasflächen beim Hausbau
- Günstig ein Haus Bauen
- Mediterraner Hausbaustil
- Mehrgenerationenhaus
- Moderne Architektur
- Gartengestaltung leicht gemacht
- Traditioneller Ziegelbau
- Villa als höchster Traum
- Im Eigenheim Ruhestand geniessen
- Altbau sanieren
- Kauf einer Holzgarage
- Immobilienmakler
- Arbeitshandschuhe für den Winter
- Zuhause verschönern
- Outdoor-Plissees
- Schlafzimmer planen
- Terrassenüberdachung
- Wohngebäudeversicherung
- Zaunarten und Eigenschaften
- Hauseingang gestalten
- Der perfekte Grundriss
- Sparsamer heizen im Altbau
- Einfamilienhaus smart finanzieren
- Planung einer PV-Anlage
- Neues Haus
- Immobilienfinanzierung
- Installation einer Photovoltaikanlage
- Asbest erkennen und entfernen
- Gartenpflege im Frühling – worauf achten
- Sauna im Fokus - Wellness zuhause
- Erfolgreich vermieten
- Die perfekte Winterbekleidung
- Das Niedrigenergiehaus
- Der April und seine Stürme
- Architektonische Vielfalt
- Ökologisch und nachhaltig bauen
- Das perfekte Schlafzimmer
- Nachhaltige Energieversorgung
- Zukunftsorientiert bauen
- Nachhaltigkeit beim Hausbau
- Tiny Houses
- Wärmepumpen als nachhaltige Heizvariante
- Maßgeschneiderten Kleiderschrank
- Der richtige Baukredit
- Ratgeber für erfolgreichen Hausbau
- Haus als Altersvorsorge
Do-it-yourself Anleitungen
- Verlegeanleitung für Bodenbeläge und Parkett
- Bodenbeläge und Parkett reinigen und pflegen
- Malerarbeiten am Haus
- Garten Tipps
- Umzug und Reinigung

ᐅ Grundriss Reiheneckhaus in Planung - Änderungsvorschläge?

Erstellt am: 20.08.22 21:05
B
Bauherrin123
kbt0928.10.22 17:20
Ein festes Brüstungselement von 20 cm Höhe hat aber nicht viel Charme.
B
Bauherrin123
24.11.22 21:40
Hallo,

Das ist meine Endversion. Hat da jemand noch was zu bemängeln? Ich möchte auf dem Studio, das Fenster nicht so a. Der Wand haben, sondern etwa 50 cm weg von der Wand, das Bodentiefe, sonst vin ich fertig.

Bin gespannt was ihr sagt, morgen geht es zur Unterschrift raus.

Grundriss eines Hauses: Terrasse, Küche, Wohnen/Essen, Diele, Abstellraum.


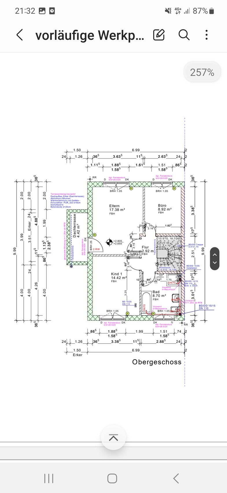
Grundriss Obergeschoss: Eltern-, Kinderzimmer, Bad, Flur und Büro mit Abmessungen.


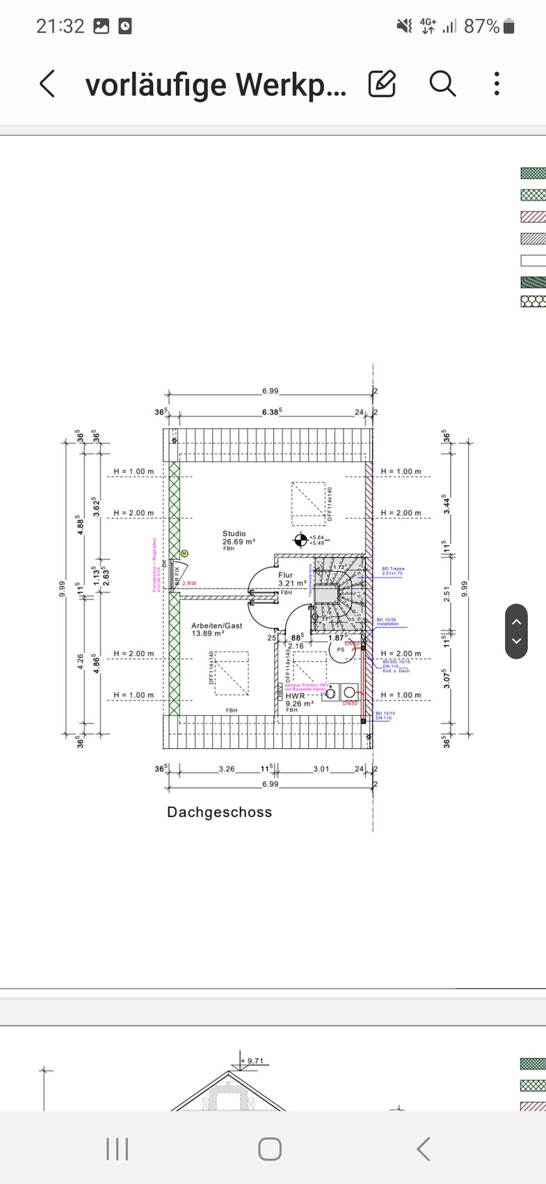
Dachgeschoss-Grundriss: Studio, Arbeiten/Gast, Flur, Treppe; Maße und Raumaufteilung.


Architekturpläne eines Hauses: Grundrisse Ober-/Dachgeschoss, Vorder-/Garten-/Hinteransicht
B
Bauherrin123
28.01.23 22:12
Hallo liebe Leute,

Nach langem hin und her war die Baugenehmigung endlich da und es geht los. Es wurden Markierungen gesetzt und nächste Woche kommt der Bagger und Beton für Betonplatte. Ich bon sehr besorgt wegen den Temperaturen die bei Minus Nachts liegen...darf man denn bei solchen Temperaturen bauen? Der Bauleiter sagt dass es kein Problem ist die mischen was ein im Beton?
W
WilderSueden
28.01.23 22:16
Bei kaltem Wetter wird der Beton mit warmem Wasser und geheiztem Kies gemacht, außerdem mit mehr Zement und evtl. weiteren Zusatzstoffen. Je nach Temperatur deckt man den auch ab.
Das hat natürlich alles seine Grenzen, aber bei normalem kalten Wetter braucht man sich keine Sorgen machen
E
evelinoz
29.01.23 04:29
wollt ihr die Küchenbeleuchtung wwirklch so machen?


Küchen-Grundriss, Fläche 11.21 m², rote Spots kennzeichnen Lampen im Raum, FBH-Bodenheizung.

wo ist die Arbeitsbeleuchtung? In der Mitte ist lt diesem Küchenplan nix, was Licht braucht, ist kein Büro, eure Köpfe werden beleuchtet ...
kbt0929.01.23 07:06
Da hat @evelinoz Recht, aber die Diskussion hatten wir, glaube ich, schon weiter vorne im Thread.
Es sollte wenigstens eine Spotreihe im Abstand von ca. 30 cm von der Wand planunten über der Arbeitsplatte am Fenster sein.
betonfenstertemperaturen