M
MaSchu250631.08.21 22:08Hallo zusammen,
nach intensiver Auseinandersetzung mit unseren Vorstellungen und unserem Raumprogramm haben wir eine Architektin gefunden, die uns diese Vorstellungen umgesetzt hat.
Sie hat zwei Varianten erstellt und wir sind uns noch unsicher ob diese optimal sind. Wir hoffen auf euren Input!
Bebauungsplan/Einschränkungen
Größe des Grundstücks: 554qm
Hang: leichte Hanglage, Vermessung wurde noch nicht vorgenommen
Grundflächenzahl: 0,4
Geschossflächenzahl:0,6
Baufenster, Baulinie und -grenze: siehe beigefügter Ausschnitt Bebauungsplan: Im Norden und Westen ist eine Baugrenze vorhanden. Garage darf nur auf die Baugrenze, Carport auch auf die Grundstücksgrenze gebaut werden. Deshalb unsere Lösung mit Carport/Garagen-Kombi
Randbebauung
Anzahl Stellplatz:2
Geschossigkeit: 2 Vollgeschosse
Dachform: Satteldach
Stilrichtung: -
Ausrichtung:
Maximale Höhen/Begrenzungen: max. Wandhöhe 6,50, max. Firsthöhe 9 m
weitere Vorgaben: Garagenausfahrt <->Straße >6m
Anforderungen der Bauherren
Stilrichtung, Dachform, Gebäudetyp: nordamerikanisch bzw. Typ Schwedenhaus, Sprossenfenster, Holzfassade etc.
Keller, Geschosse: Keller plus zwei Vollgeschosse
Anzahl der Personen, Alter: 2 Erwachsene, momentan noch 2 Kinder, geplant sind insgesamt 3
Raumbedarf im EG, OG: 160-170qm
Büro: Frau ist Lehrerin, deshalb ist ein Arbeitszimmer geplant
Schlafgäste pro Jahr: wenige bis keine
offene oder geschlossene Architektur: offener Wohn- Essbereich, aber abgetrennt vom Flur und der Treppe
konservativ oder moderne Bauweise:
offene Küche, Kochinsel: Ja
Anzahl Essplätze: 5-8
Kamin: Nein
Musik/Stereowand:
Balkon, Dachterrasse: Nein
Garage, Carport: Aufgrund Vorgaben im Bebauungsplan ist eine Kombi geplant
Nutzgarten, Treibhaus
weitere Wünsche/Besonderheiten/Tagesablauf, gern auch Begründungen, warum dieses oder das nicht sein soll
Hausentwurf
Von wem stammt die Planung: Architektin
Was gefällt besonders? Warum? Alle Räume wurden so untergebracht wie wir das gewünscht hatten, s.u.
Was gefällt nicht? Warum? Gefühlt kleiner Wohn-/Essbereich, Frage ob Eingangsbereich zu eng ist, direkt mit der Treppe an der Türe
Preisschätzung lt Architekt/Planer: keine Preisschätzung abgegeben
Persönliches Preislimit fürs Haus, inkl Ausstattung: ca. 620.000 € mit Keller
favorisierte Heiztechnik: Wärmepumpe
Wenn Ihr verzichten müsst, auf welche Details/Ausbauten
-könnt Ihr verzichten:
-könnt Ihr nicht verzichten:
--> Alle Räume werden benötigt
Warum ist der Entwurf so geworden, wie er jetzt ist? ZB
Wir hatten klare Vorstellungen: Arbeitszimmer und Küche im Osten, Offener Wohn-Essbereich, Schleuse zur Garage, Dusch-WC im EG; 3 Kinderzimmer, Schlafzimmer im Osten, Eingang mittig, Symmetrische Fassadenoptik mit Veranda, mit Dachvorsprung überdachte Terrasse im Osten und Süden
Architektin hat dies so umgesetzt
Was ist die wichtigste/grundlegende Frage zum Grundriss in 130 Zeichen zusammengefasst?
Welche Variante würdet Ihr bevorzugen. Würdet Ihr lieber mehr Raum im Eingangsbereich haben wie in Variante 2 oder mehr Platz im Essbereich wie in Variante 3. Welche Lösung würdet ihr im OG bevorzugen?
Welche Ideen und Verbesserungsvorschläge habt Ihr sonst?
Vielen herzlichen Dank!
Markus










nach intensiver Auseinandersetzung mit unseren Vorstellungen und unserem Raumprogramm haben wir eine Architektin gefunden, die uns diese Vorstellungen umgesetzt hat.
Sie hat zwei Varianten erstellt und wir sind uns noch unsicher ob diese optimal sind. Wir hoffen auf euren Input!
Bebauungsplan/Einschränkungen
Größe des Grundstücks: 554qm
Hang: leichte Hanglage, Vermessung wurde noch nicht vorgenommen
Grundflächenzahl: 0,4
Geschossflächenzahl:0,6
Baufenster, Baulinie und -grenze: siehe beigefügter Ausschnitt Bebauungsplan: Im Norden und Westen ist eine Baugrenze vorhanden. Garage darf nur auf die Baugrenze, Carport auch auf die Grundstücksgrenze gebaut werden. Deshalb unsere Lösung mit Carport/Garagen-Kombi
Randbebauung
Anzahl Stellplatz:2
Geschossigkeit: 2 Vollgeschosse
Dachform: Satteldach
Stilrichtung: -
Ausrichtung:
Maximale Höhen/Begrenzungen: max. Wandhöhe 6,50, max. Firsthöhe 9 m
weitere Vorgaben: Garagenausfahrt <->Straße >6m
Anforderungen der Bauherren
Stilrichtung, Dachform, Gebäudetyp: nordamerikanisch bzw. Typ Schwedenhaus, Sprossenfenster, Holzfassade etc.
Keller, Geschosse: Keller plus zwei Vollgeschosse
Anzahl der Personen, Alter: 2 Erwachsene, momentan noch 2 Kinder, geplant sind insgesamt 3
Raumbedarf im EG, OG: 160-170qm
Büro: Frau ist Lehrerin, deshalb ist ein Arbeitszimmer geplant
Schlafgäste pro Jahr: wenige bis keine
offene oder geschlossene Architektur: offener Wohn- Essbereich, aber abgetrennt vom Flur und der Treppe
konservativ oder moderne Bauweise:
offene Küche, Kochinsel: Ja
Anzahl Essplätze: 5-8
Kamin: Nein
Musik/Stereowand:
Balkon, Dachterrasse: Nein
Garage, Carport: Aufgrund Vorgaben im Bebauungsplan ist eine Kombi geplant
Nutzgarten, Treibhaus
weitere Wünsche/Besonderheiten/Tagesablauf, gern auch Begründungen, warum dieses oder das nicht sein soll
Hausentwurf
Von wem stammt die Planung: Architektin
Was gefällt besonders? Warum? Alle Räume wurden so untergebracht wie wir das gewünscht hatten, s.u.
Was gefällt nicht? Warum? Gefühlt kleiner Wohn-/Essbereich, Frage ob Eingangsbereich zu eng ist, direkt mit der Treppe an der Türe
Preisschätzung lt Architekt/Planer: keine Preisschätzung abgegeben
Persönliches Preislimit fürs Haus, inkl Ausstattung: ca. 620.000 € mit Keller
favorisierte Heiztechnik: Wärmepumpe
Wenn Ihr verzichten müsst, auf welche Details/Ausbauten
-könnt Ihr verzichten:
-könnt Ihr nicht verzichten:
--> Alle Räume werden benötigt
Warum ist der Entwurf so geworden, wie er jetzt ist? ZB
Wir hatten klare Vorstellungen: Arbeitszimmer und Küche im Osten, Offener Wohn-Essbereich, Schleuse zur Garage, Dusch-WC im EG; 3 Kinderzimmer, Schlafzimmer im Osten, Eingang mittig, Symmetrische Fassadenoptik mit Veranda, mit Dachvorsprung überdachte Terrasse im Osten und Süden
Architektin hat dies so umgesetzt
Was ist die wichtigste/grundlegende Frage zum Grundriss in 130 Zeichen zusammengefasst?
Welche Variante würdet Ihr bevorzugen. Würdet Ihr lieber mehr Raum im Eingangsbereich haben wie in Variante 2 oder mehr Platz im Essbereich wie in Variante 3. Welche Lösung würdet ihr im OG bevorzugen?
Welche Ideen und Verbesserungsvorschläge habt Ihr sonst?
Vielen herzlichen Dank!
Markus
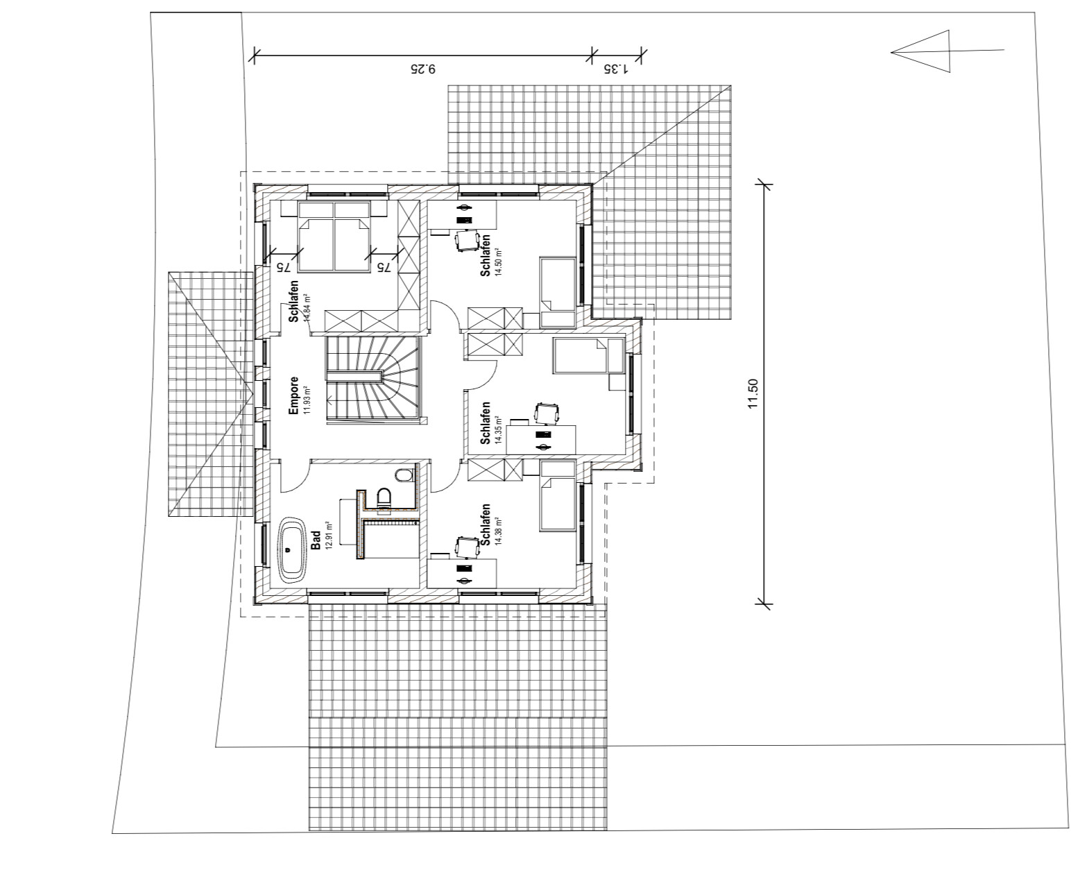
Ich halte einige Räume für nicht optimal. Leider fehlt die Bemaßung innen. Aber man kann ja die QM mit den Raummaßen ins Verhältnis setzen.
Offensichtlich funktioniert die Küche so nicht: zu schmal, Insel zu weit weg, wo kommen Hochschränke hin?
Schlafzimmer hat welche Gangmaße? Ankleide scheint auch zu schmal. BD könnte mit einer überbreiten Dusche und Akzentwanne zu eng werden.
Dies alles wundert mich nicht, denn aus diesen symmetrischen Häusern mit Erker ist noch nie etwas optimales umgesetzt worden.
Man muss ja quasi das Schema übernehmen, welches die Hausmaße und der Erker vorgibt. Statisch muss man da wohl das Raster nehmen.
220qm plus Keller -> mehr als 620000.
Mit dem ganzen äußeren Schnickschnack an der Fassade -> noch mehr.
Offensichtlich funktioniert die Küche so nicht: zu schmal, Insel zu weit weg, wo kommen Hochschränke hin?
Schlafzimmer hat welche Gangmaße? Ankleide scheint auch zu schmal. BD könnte mit einer überbreiten Dusche und Akzentwanne zu eng werden.
Dies alles wundert mich nicht, denn aus diesen symmetrischen Häusern mit Erker ist noch nie etwas optimales umgesetzt worden.
Man muss ja quasi das Schema übernehmen, welches die Hausmaße und der Erker vorgibt. Statisch muss man da wohl das Raster nehmen.
220qm plus Keller -> mehr als 620000.
Mit dem ganzen äußeren Schnickschnack an der Fassade -> noch mehr.
M
Myrna_Loy31.08.21 23:00Seh ich das richtig, dass man immer um die Treppe rum muss, um im OG ins Bad zu kommen????
😀
Ich würde mir mal die Grundrisse amerikanischer Häuser diesen Typs anschauen. Das Haus meiner Großeltern war so ein klassisch-neogotisches Haus mit Veranda vorne und Eingang zentral mittig. Der Grundriss war aber komplett anders.

😀
Ich würde mir mal die Grundrisse amerikanischer Häuser diesen Typs anschauen. Das Haus meiner Großeltern war so ein klassisch-neogotisches Haus mit Veranda vorne und Eingang zentral mittig. Der Grundriss war aber komplett anders.
Myrna_Loy schrieb:
Seh ich das richtig, dass man immer um die Treppe rum muss, um im OG ins Bad zu kommen????
😀Genau: das hab ich in meiner Aufzählung vergessen. Uns ist das zu lang, oder @Myrna_Loy ? 🙂M
Myrna_Loy31.08.21 23:10ypg schrieb:
Genau: das hab ich in meiner Aufzählung vergessen. Uns ist das zu lang, oder @Myrna_Loy ? 🙂Ich als Mutter sag da nur ein Wort: Norovirus.M
MaSchu250631.08.21 23:17Myrna_Loy schrieb:
Seh ich das richtig, dass man immer um die Treppe rum muss, um im OG ins Bad zu kommen????
😀Ja und um ins Wohnzimmer zu kommen, muss man sogar die Treppen runter 😀...im Ernst: das ist uns bewusst, die Alternative wäre V3, also die Kinderzimmer in den Süden, das Schlafzimmer ins Bad zu schieben, und das Bad rüber. Hätte aber zur Folge, dass das Schlafzimmer nur 14 qm groß ist und keine Ankleide möglich wäre, heißt Schränke im Schlafzimmer. und nicht extra.
Aufgrund der Treppe und den Zugängen ist dies laut Architektin nicht anders zu lösen...Oder habt ihr noch Ideen?
ypg schrieb:
Ich halte einige Räume für nicht optimal. Leider fehlt die Bemaßung innen. Aber man kann ja die QM mit den Raummaßen ins Verhältnis setzen.
Offensichtlich funktioniert die Küche so nicht: zu schmal, Insel zu weit weg, wo kommen Hochschränke hin?
Schlafzimmer hat welche Gangmaße? Ankleide scheint auch zu schmal. BD könnte mit einer überbreiten Dusche und Akzentwanne zu eng werden.
Dies alles wundert mich nicht, denn aus diesen symmetrischen Häusern mit Erker ist noch nie etwas optimales umgesetzt worden.
Man muss ja quasi das Schema übernehmen, welches die Hausmaße und der Erker vorgibt. Statisch muss man da wohl das Raster nehmen.
220qm plus Keller -> mehr als 620000.
Mit dem ganzen äußeren Schnickschnack an der Fassade -> noch mehr.Es sind 166 qm plus Keller, nicht 220.
Ich denke ich lasse von der Architektin die Maße noch einzeichnen um die Gangmaße zu sehen und ob die Breiten ausreichend sind. Auch in der Ankleide. Danke für den Hinweis.
In der Küche ist der Abstand der Kochinsel zur Arbeitsfläche zu groß, stimmt. Das schaue ich mir nochmal an. Sieht man auch an der Terrassentüre. Danke auch hierfür...
Wir wohnen momentan in einer kleine Wohnung, denkt ihr die 45 qm Wohnen/Essen/Kochen sind ausreichend? Es fällt immer schwer sich das vorzustellen.
Danke!
Ähnliche Themen