musik_de schrieb:
Der aktualisierte Plan sollte den Eingangsbereich größer machen.Lang ist er immer noch ...musik_de schrieb:
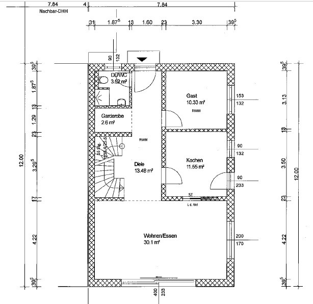
indem wir den Eingangsbereich vergrößerten und den Flur leicht verengten.... aber keinen Platz für eine Garderobe in Sicht.Die Idee von RomeoZwo finde ich gut. Ich werfe noch eine andere Idee ein, wenn man die Treppe ändert. Das lockert den langen Flur unten auf, schafft Platz für eine Garderobe und verschenkt im OG nicht so viel Platz an die Diele. Ich finde der Durchgang an der Treppe vorbei darf ruhig schmäler sein, er wirkt auch anders, weil dort keine 2 Wände sind, sondern der Raum sich öffnet.

RomeoZwo schrieb:
Ankleide und Duschbad - funktioniert das an der Mauerecke so? Ich würde da die Türposition tauschen (und damit evtl. auch die Bettposition drehen).
vielen Dank für diese Idee. Wir wollten auch, dass unser Bett nach Norden zeigt, und deine vorgeschlagene Lösung ist wirklich nett. Wir hoffen, morgen einen aktualisierten Plan zu bekommen.Würfel* schrieb:
Die Idee von RomeoZwo finde ich gut. Ich werfe noch eine andere Idee ein, wenn man die Treppe ändert. Das lockert den langen Flur unten auf, schafft Platz für eine Garderobe und verschenkt im OG nicht so viel Platz an die Diele. Ich finde der Durchgang an der Treppe vorbei darf ruhig schmäler sein, er wirkt auch anders, weil dort keine 2 Wände sind, sondern der Raum sich öffnet.deine Idee mit Treppenhaus ist sinnvoll. Ich habe bei der Gestaltung der Grundrisse mit Architekt 3d ähnlich große Treppe verwendet. Leider ist dies ein Fertighaus und wir sind stark auf Größe und Design der Treppe beschränkt. In Anbetracht dessen ist die Treppe, die wir derzeit haben, der beste Kompromiss.Hallo an alle,
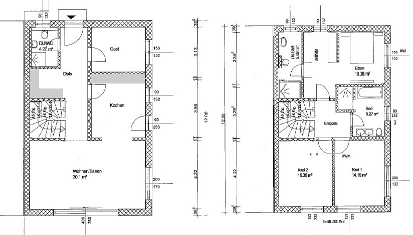
Der Architekt hat uns das aktualisierte (unten angehängte) geschickt. Die Diele im EG wurde nicht viel geändert, da nach Meinung des Architekten eine Reduzierung der Breite gegenüber der Eingangstür nicht gut aussehen wird.
Ich möchte Ihre Ansichten zu einem etwas komplizierten Thema haben. Angesichts der Tatsache, dass einige von Ihnen gesagt haben, dass das Diele zu dunkel sein wird, hatte ich die Idee, ein Dachfenster direkt neben der Treppe zu haben (aufgrund von 1,25m abstand von der Kommunwand). Meine Idee ist es, die Fertighaus-Firma zu bitten, ein Loch auf dem Boden der DG zu lassen, damit das Licht dieses Fensters etwas auf die Treppe scheint und somit das Diele vielleicht nicht so dunkel ist. Nun die Fragen:
1. Ist das sinnvoll?
2. Wie kann ich die Größe und Position des Lochs im DG-Boden für dieses Dachfenster und diese Eingubstreppe optimieren, damit ich in Zukunft, wenn ich das DG ausbauen möchte, dieses Loch verwenden kann, um eine Treppe zu erstellen.
Ich bin dankbar für Ihre Antworten auf die oben genannte Frage und jedes Feedback zum Grundriss im Allgemeinen.
Vielen Dank !




Der Architekt hat uns das aktualisierte (unten angehängte) geschickt. Die Diele im EG wurde nicht viel geändert, da nach Meinung des Architekten eine Reduzierung der Breite gegenüber der Eingangstür nicht gut aussehen wird.
Ich möchte Ihre Ansichten zu einem etwas komplizierten Thema haben. Angesichts der Tatsache, dass einige von Ihnen gesagt haben, dass das Diele zu dunkel sein wird, hatte ich die Idee, ein Dachfenster direkt neben der Treppe zu haben (aufgrund von 1,25m abstand von der Kommunwand). Meine Idee ist es, die Fertighaus-Firma zu bitten, ein Loch auf dem Boden der DG zu lassen, damit das Licht dieses Fensters etwas auf die Treppe scheint und somit das Diele vielleicht nicht so dunkel ist. Nun die Fragen:
1. Ist das sinnvoll?
2. Wie kann ich die Größe und Position des Lochs im DG-Boden für dieses Dachfenster und diese Eingubstreppe optimieren, damit ich in Zukunft, wenn ich das DG ausbauen möchte, dieses Loch verwenden kann, um eine Treppe zu erstellen.
Ich bin dankbar für Ihre Antworten auf die oben genannte Frage und jedes Feedback zum Grundriss im Allgemeinen.
Vielen Dank !
Warum gibt es von Deiner Seite keine Diskussion, @musik_de ?
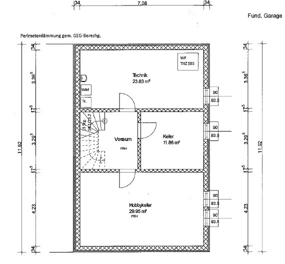
Es wurden ja hier einige Vorschläge und Änderungen unterbreitet. Von mir kann ich mich erinnern, zb an Küche an die Terrasse oder Gästezimmer in den Keller. Von Dir kommt nichts außer
Es wurden ja hier einige Vorschläge und Änderungen unterbreitet. Von mir kann ich mich erinnern, zb an Küche an die Terrasse oder Gästezimmer in den Keller. Von Dir kommt nichts außer
musik_de schrieb:So funktioniert das hier nicht!
Ich bin dankbar für Ihre Antworten auf die oben genannte Frage und jedes Feedback zum Grundriss im Allgemeinen.
Ähnliche Themen