musik_de schrieb:
danke für die eingabe.Einlauf heißt das richtige Wort ;-)musik_de schrieb:
Ich habe versucht, den Plan zu überarbeiten.So sieht es nun schon deutlich eher nach "das beste draus gemacht haben" aus. Siehste, geht doch !https://www.instagram.com/11antgmxde/
https://www.linkedin.com/company/bauen-jetzt/
11ant schrieb:
Einlauf heißt das richtige Wort ;-)
So sieht es nun schon deutlich eher nach "das beste draus gemacht haben" aus. Siehste, geht doch !danke ! Tipps zur weiteren Verbesserung ?musik_de schrieb:
noch andere variant..Nein, da warst Du schon weiter, und solltest nun nicht zurückrudern.https://www.instagram.com/11antgmxde/
https://www.linkedin.com/company/bauen-jetzt/
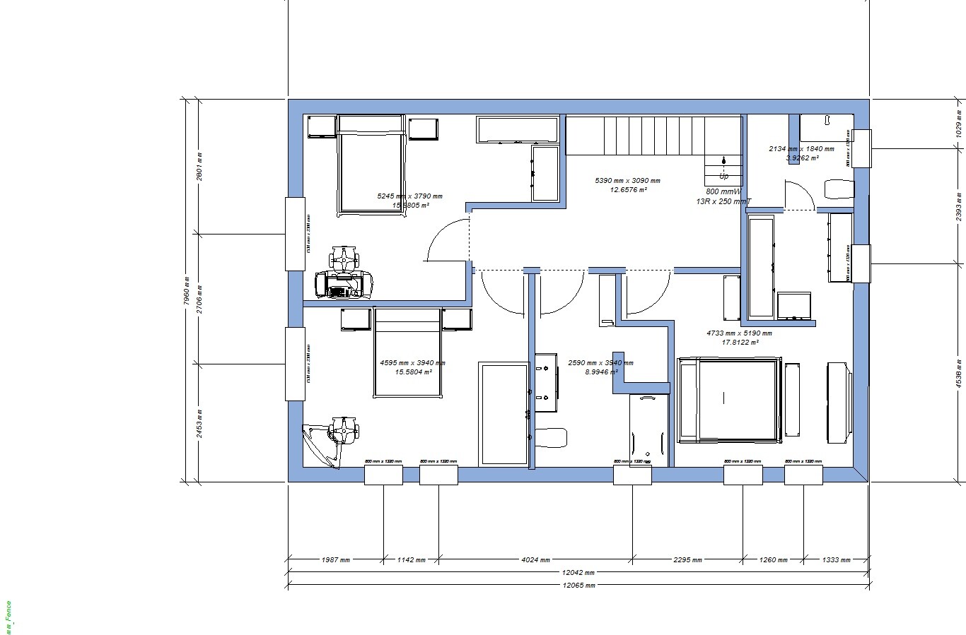
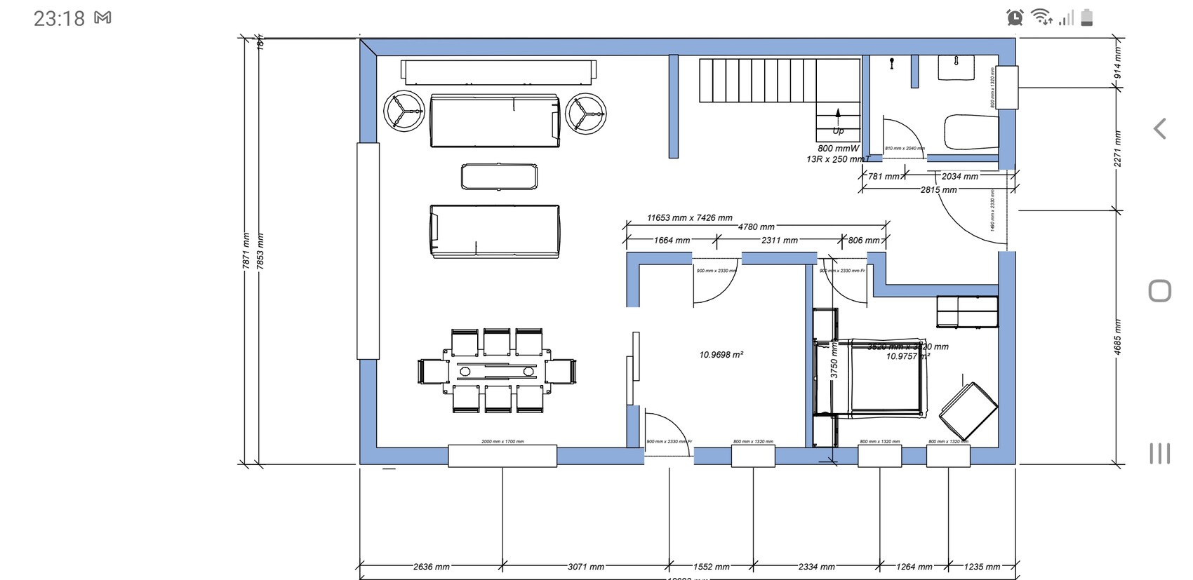
Hallo zusammen,
ich hoffe es geht allen hier auf dem tolles forum gut. Ich komme nach einiger Zeit wieder hierher, da wir mit unserer Gemeinde einiges hin und her hatten, wie groß wir bauen können. Leider ist die frühere Größe nicht zulässig, so dass ich meinen Plan anpassen musste. Den aktualisierten Plan ist im Anhang.. Es wird toll sein, wenn ihr einen Blick darauf werfen könnt und mich wissen lässt, was verbessert werden könnte.
Bitte ignoriere der Treppe weil ich konnte es nicht richtig zeichnen, aber die maße sind korrekt.
Viel Glück


ich hoffe es geht allen hier auf dem tolles forum gut. Ich komme nach einiger Zeit wieder hierher, da wir mit unserer Gemeinde einiges hin und her hatten, wie groß wir bauen können. Leider ist die frühere Größe nicht zulässig, so dass ich meinen Plan anpassen musste. Den aktualisierten Plan ist im Anhang.. Es wird toll sein, wenn ihr einen Blick darauf werfen könnt und mich wissen lässt, was verbessert werden könnte.
Bitte ignoriere der Treppe weil ich konnte es nicht richtig zeichnen, aber die maße sind korrekt.
Viel Glück
N
Nice-Nofret07.04.21 14:56Sorry, der Plan ist für die Tonne; da sitzt kaum eine Türe oder ein Fenster an ner sinnvollen Stelle und die Schlafzimmer mit all den Buchten sind auch für die Füchse ..