Grundriss - Planung Doppelhaushälfte fast 200 qm Wohnfläche

4,90 Stern(e) 13 Votes
Zuletzt aktualisiert 23.11.2025
Sie befinden sich auf der Seite 7 der Diskussion zum Thema: Grundriss - Planung Doppelhaushälfte fast 200 qm Wohnfläche
>> Zum 1. Beitrag <<

RomeoZwo

RomeoZwo

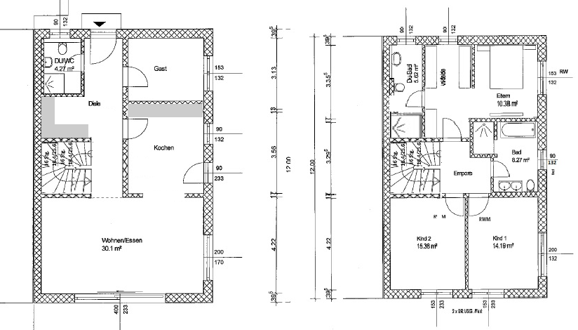
Ankleide und Duschbad - funktioniert das an der Mauerecke so? Ich würde da die Türposition tauschen (und damit evtl. auch die Bettposition drehen).


Grundriss eines Hauses: Eltern-, Kind-1- und Kind-2-Zimmer, Bad, Flur, Treppe, orange Türen.
 
W

Würfel*

Die Idee von RomeoZwo finde ich gut. Ich werfe noch eine andere Idee ein, wenn man die Treppe ändert. Das lockert den langen Flur unten auf, schafft Platz für eine Garderobe und verschenkt im OG nicht so viel Platz an die Diele. Ich finde der Durchgang an der Treppe vorbei darf ruhig schmäler sein, er wirkt auch anders, weil dort keine 2 Wände sind, sondern der Raum sich öffnet.


Grundriss: linke Seite Wohnen/Kochen, Gast; rechte Seite Eltern- und Kinderzimmer, Bad.
 
M

musik_de

Ankleide und Duschbad - funktioniert das an der Mauerecke so? Ich würde da die Türposition tauschen (und damit evtl. auch die Bettposition drehen).
vielen Dank für diese Idee. Wir wollten auch, dass unser Bett nach Norden zeigt, und deine vorgeschlagene Lösung ist wirklich nett. Wir hoffen, morgen einen aktualisierten Plan zu bekommen.

Die Idee von RomeoZwo finde ich gut. Ich werfe noch eine andere Idee ein, wenn man die Treppe ändert. Das lockert den langen Flur unten auf, schafft Platz für eine Garderobe und verschenkt im OG nicht so viel Platz an die Diele. Ich finde der Durchgang an der Treppe vorbei darf ruhig schmäler sein, er wirkt auch anders, weil dort keine 2 Wände sind, sondern der Raum sich öffnet.
deine Idee mit Treppenhaus ist sinnvoll. Ich habe bei der Gestaltung der Grundrisse mit Architekt 3d ähnlich große Treppe verwendet. Leider ist dies ein Fertighaus und wir sind stark auf Größe und Design der Treppe beschränkt. In Anbetracht dessen ist die Treppe, die wir derzeit haben, der beste Kompromiss.
 
M

musik_de

Hallo an alle,

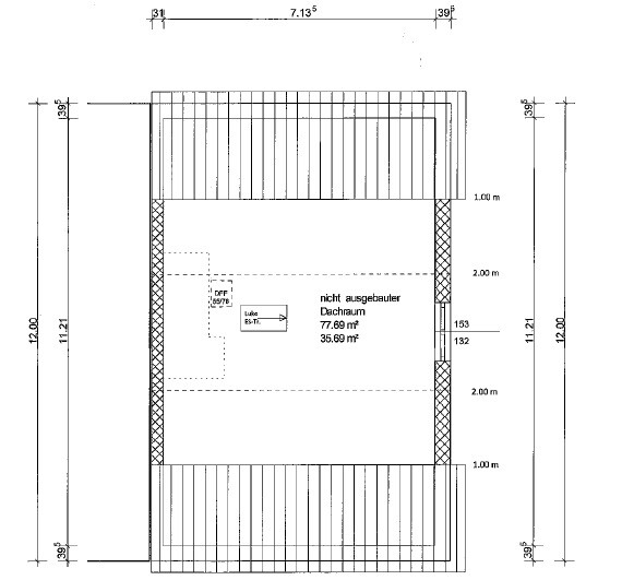
Der Architekt hat uns das aktualisierte (unten angehängte) geschickt. Die Diele im EG wurde nicht viel geändert, da nach Meinung des Architekten eine Reduzierung der Breite gegenüber der Eingangstür nicht gut aussehen wird.

Ich möchte Ihre Ansichten zu einem etwas komplizierten Thema haben. Angesichts der Tatsache, dass einige von Ihnen gesagt haben, dass das Diele zu dunkel sein wird, hatte ich die Idee, ein Dachfenster direkt neben der Treppe zu haben (aufgrund von 1,25m abstand von der Kommunwand). Meine Idee ist es, die Fertighaus-Firma zu bitten, ein Loch auf dem Boden der DG zu lassen, damit das Licht dieses Fensters etwas auf die Treppe scheint und somit das Diele vielleicht nicht so dunkel ist. Nun die Fragen:

1. Ist das sinnvoll?
2. Wie kann ich die Größe und Position des Lochs im DG-Boden für dieses Dachfenster und diese Eingubstreppe optimieren, damit ich in Zukunft, wenn ich das DG ausbauen möchte, dieses Loch verwenden kann, um eine Treppe zu erstellen.

Ich bin dankbar für Ihre Antworten auf die oben genannte Frage und jedes Feedback zum Grundriss im Allgemeinen.

Vielen Dank !

Architektenplan eines nicht ausgebauten Dachraums mit Maßangaben.


Grundriss Kellergeschoss mit Vorraum, Technikraum, Keller und Hobbykeller, Treppe und Türen


Grundriss eines Hauses mit Eltern- und Kinderzimmer, Bad, Ankleide, Empore.


Grundriss: Erdgeschoss - Wohnen/Essen, Diele, Kochen, Gastzimmer, Dusche/WC, Garderobe.
 
Y

ypg

Warum gibt es von Deiner Seite keine Diskussion, @musik_de ?
Es wurden ja hier einige Vorschläge und Änderungen unterbreitet. Von mir kann ich mich erinnern, zb an Küche an die Terrasse oder Gästezimmer in den Keller. Von Dir kommt nichts außer
Ich bin dankbar für Ihre Antworten auf die oben genannte Frage und jedes Feedback zum Grundriss im Allgemeinen.
So funktioniert das hier nicht!
 
Zuletzt aktualisiert 23.11.2025
Im Forum Grundrissplanung / Grundstücksplanung gibt es 2535 Themen mit insgesamt 87993 Beiträgen


Ähnliche Themen zu Grundriss - Planung Doppelhaushälfte fast 200 qm Wohnfläche
Nr.ErgebnisBeiträge
1Doppelhaus Architekt oder GU / Fertighaus oder Massiv 13
2Grundrissfrage, Treppe, Fenster, Ausrichtung - Seite 212
3Grundrissfrage, Garage, Treppe 33
4Einfamilienhaus ca. 150 qm Grundriss - Treppe wie planen? 65
5Stadtvilla mit gerader Treppe, offene moderne Bauweise, 140m² 18
6Einfamilienhaus vom Architekt 150m² Verbesserungsvorschläge und Ideen gesucht 75
7Neubau Einfamilienhaus ca. 174 m² Grundriss Architekt - Seite 555
8Schrank unter der Treppe oder kleiner Abstellraum - Seite 211
9Planung Einbaustrahler Flur und Garderobe - Tipps - Seite 662
10Realistische Finanzplanung für KFW40 Fertighaus? 38
11Treppe um 10cm versetzt, Optionen? - Seite 339
12Grundrissfrage: Tausch gerader Treppe durch L-Treppe - Seite 631
13Anzahl der Dachfenster und Positionierung der Fenster. 29
14Grundriss EFH165 qm erster Entwurf - Architekt unzufrieden - Seite 374
15Treppe DIN 18065 verpflichtend oder nicht? - Seite 582
16Hausplan von Architekt 2 Geschosse mit Keller 18
17Fertighaus (Holz) vs Massiv (Stein auf Stein) - Seite 211
18Fertighaus oder Massivbau - was ist eure Meinung? - Seite 645
19Altes Haus Kern sanieren oder Fertighaus bauen? 16
20Dachfenster bei Dachneigung von ca. 12° wirklich nicht machbar? 18

Oben