ᐅ Grundriss mit Einschränkungen für Stadthaus (Reihenmittelhaus) für Familie.
Erstellt am: 15.01.22 11:41
M
Maig001Hallo zusammen,
wir beplanen derzeit unser Grundstück welches durch gewisse Rahmenbedinungen nicht sehr viel Spielraum für Gestaltungsmöglichkeiten lässt. Leider habe ich festgestellt, dass das die Grundrissplanung eher kompliziert macht, auch wenn man denkt, dass viel dadurch vorgegeben ist. Wir wollen zu einem späteren Zeitpunkt auch noch einen Architekt beauftragen, sind aber jetzt schonmal dabei Ideen zu sammeln. Das kleine Grundstück befindet sich mitten im Ortskern. Der Eingang ist direkt vom Gehweg. Die Nachbarn haben im EG Geschäfte. Auf der Rückseite befindet sich ein kleiner Innen- bzw. Hinterhof der ruhig ist aber grundsätzlich von den Nachbarn durchquert werden darf.
Folgende Eckdaten sind gegeben oder bekannt:
Bebauungsplan/Einschränkungen
Größe des Grundstücks: 139qm
Hang: nein
Baufenster, Baulinie und -grenze: Profilgleicher Anbau an das Nachbargebäude
Anzahl Stellplatz: Eine Garage im Haus
Geschossigkeit: Keller+EG+1.OG+DG
Dachform: Satteldach 40 Grad mit Gauben
Maximale Höhen/Begrenzungen: Wandhöhe 6,2m, Grundfläche (seitlich grenzständig): 6,8m x 14,1m
weitere Vorgaben: Bebauung nach §34
Anforderungen der Bauherren
Stilrichtung, Dachform, Gebäudetyp
Keller, Geschosse
Anzahl der Personen, Alter: 2 Erwachsene + 2 Kleinkinder
Büro: Familiennutzung
Schlafgäste pro Jahr: 0
konservativ oder moderne Bauweise: eher modern nach Möglichkeiten
offene Küche, Kochinsel: Wohn-/Koch-/Essbereich mit Kochinsel
Anzahl Essplätze: 1
Balkon, Dachterrasse: Vorder- und Rückseite je eine Dachterrasse
Garage, Carport: Eine Garage im Haus
Nutzgarten, Treibhaus: Kein Garten nur Innenhof
weitere Wünsche/Besonderheiten/Tagesablauf, gern auch Begründungen, warum dieses oder das nicht sein soll:
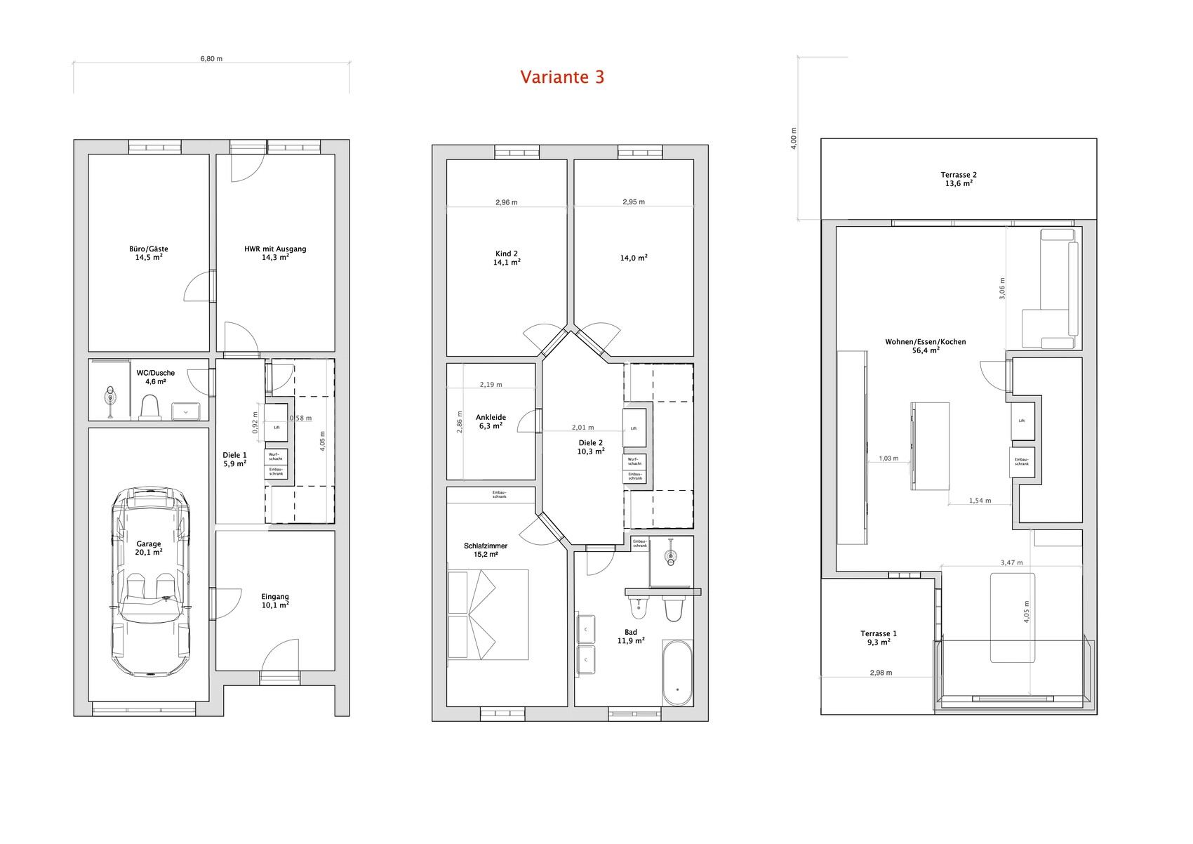
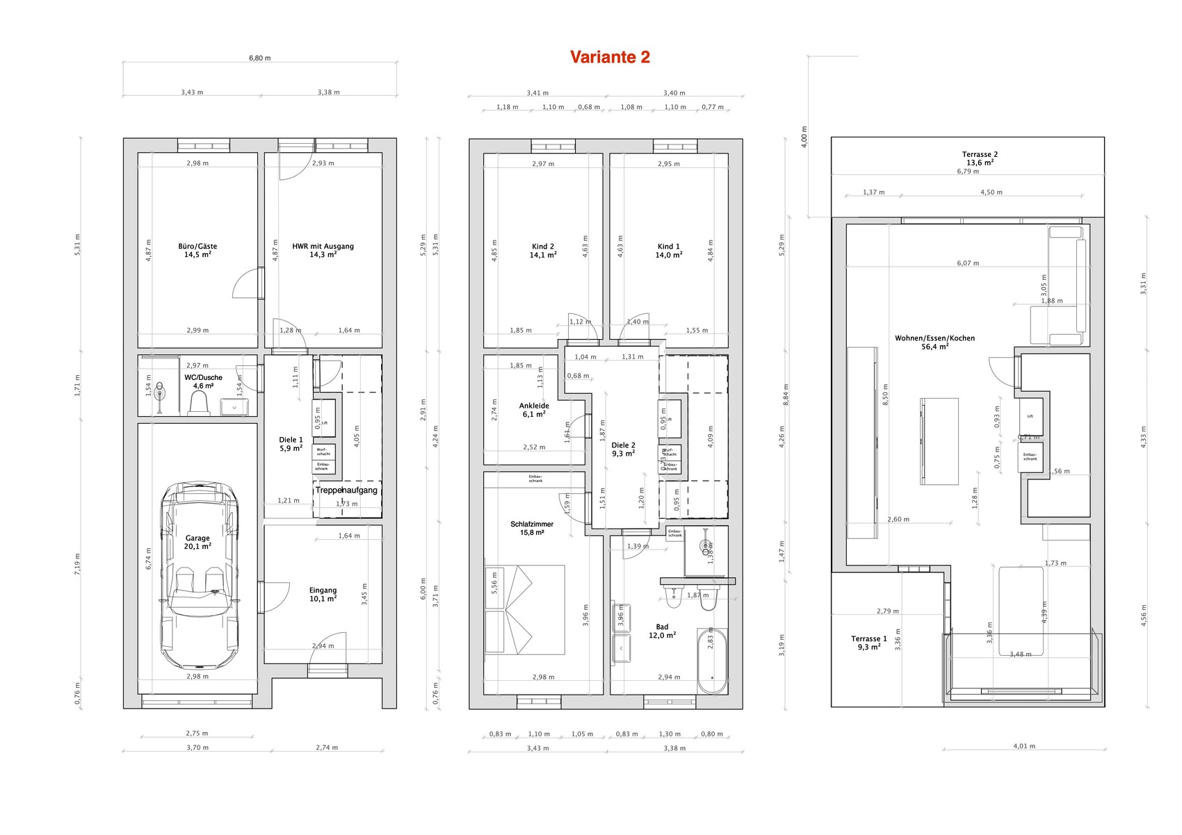
Wir haben das Haus entsprechend der Umgebung so geplant, dass das EG ein reines NutzEG wird, das 1.OG die Schlafräume hat und im DG evtl. mit Galerie sich der Wohn- Eis- und Kochbereich befindet. Wir haben außerdem einen Speiselift (vom Keller bis ins DG) eingeplant und einen Wäscheschacht vom Keller bis ins 1.OG.
Hausentwurf
Von wem stammt die Planung:
-Do-it-Yourself
Persönliches Preislimit fürs Haus, inkl Ausstattung: 600-700T€
favorisierte Heiztechnik: Gas
Was würdet Ihr an dem Grundriss ändern? Ich habe vor allem ewig mit der Treppe überlegt. Ich hätte gerne eine Treppe die in den Kurven ein Podest hat und somit gut zu begehen ist. Das braucht Platz. Leider gibt es in meinem Zeichenprogramm keine Treppe wie ich sie benötige, ich habe daher jetzt nur mal Lufträume für die Treppen vorgesehen. Was sagt Ihr zum Grundkonzept und zur Raumaufteilung? Wie gesagt die Details soll dann der Architekt noch verbessern. Ich überlege auch immer wie viel ich dem Architekten vorgeben soll? Ich will ja, dass sich der auch Gedanken macht und was überlegt. Außerdem habe ich für das 1.OG 3 Varianten erstellt. Diese unterscheiden sich im Prinzip nur durch die Dielenbreite. Welche meint Ihr ist am besten? Oder ist das alles nichts...?
Beste Grüße Martin



wir beplanen derzeit unser Grundstück welches durch gewisse Rahmenbedinungen nicht sehr viel Spielraum für Gestaltungsmöglichkeiten lässt. Leider habe ich festgestellt, dass das die Grundrissplanung eher kompliziert macht, auch wenn man denkt, dass viel dadurch vorgegeben ist. Wir wollen zu einem späteren Zeitpunkt auch noch einen Architekt beauftragen, sind aber jetzt schonmal dabei Ideen zu sammeln. Das kleine Grundstück befindet sich mitten im Ortskern. Der Eingang ist direkt vom Gehweg. Die Nachbarn haben im EG Geschäfte. Auf der Rückseite befindet sich ein kleiner Innen- bzw. Hinterhof der ruhig ist aber grundsätzlich von den Nachbarn durchquert werden darf.
Folgende Eckdaten sind gegeben oder bekannt:
Bebauungsplan/Einschränkungen
Größe des Grundstücks: 139qm
Hang: nein
Baufenster, Baulinie und -grenze: Profilgleicher Anbau an das Nachbargebäude
Anzahl Stellplatz: Eine Garage im Haus
Geschossigkeit: Keller+EG+1.OG+DG
Dachform: Satteldach 40 Grad mit Gauben
Maximale Höhen/Begrenzungen: Wandhöhe 6,2m, Grundfläche (seitlich grenzständig): 6,8m x 14,1m
weitere Vorgaben: Bebauung nach §34
Anforderungen der Bauherren
Stilrichtung, Dachform, Gebäudetyp
Keller, Geschosse
Anzahl der Personen, Alter: 2 Erwachsene + 2 Kleinkinder
Büro: Familiennutzung
Schlafgäste pro Jahr: 0
konservativ oder moderne Bauweise: eher modern nach Möglichkeiten
offene Küche, Kochinsel: Wohn-/Koch-/Essbereich mit Kochinsel
Anzahl Essplätze: 1
Balkon, Dachterrasse: Vorder- und Rückseite je eine Dachterrasse
Garage, Carport: Eine Garage im Haus
Nutzgarten, Treibhaus: Kein Garten nur Innenhof
weitere Wünsche/Besonderheiten/Tagesablauf, gern auch Begründungen, warum dieses oder das nicht sein soll:
Wir haben das Haus entsprechend der Umgebung so geplant, dass das EG ein reines NutzEG wird, das 1.OG die Schlafräume hat und im DG evtl. mit Galerie sich der Wohn- Eis- und Kochbereich befindet. Wir haben außerdem einen Speiselift (vom Keller bis ins DG) eingeplant und einen Wäscheschacht vom Keller bis ins 1.OG.
Hausentwurf
Von wem stammt die Planung:
-Do-it-Yourself
Persönliches Preislimit fürs Haus, inkl Ausstattung: 600-700T€
favorisierte Heiztechnik: Gas
Was würdet Ihr an dem Grundriss ändern? Ich habe vor allem ewig mit der Treppe überlegt. Ich hätte gerne eine Treppe die in den Kurven ein Podest hat und somit gut zu begehen ist. Das braucht Platz. Leider gibt es in meinem Zeichenprogramm keine Treppe wie ich sie benötige, ich habe daher jetzt nur mal Lufträume für die Treppen vorgesehen. Was sagt Ihr zum Grundkonzept und zur Raumaufteilung? Wie gesagt die Details soll dann der Architekt noch verbessern. Ich überlege auch immer wie viel ich dem Architekten vorgeben soll? Ich will ja, dass sich der auch Gedanken macht und was überlegt. Außerdem habe ich für das 1.OG 3 Varianten erstellt. Diese unterscheiden sich im Prinzip nur durch die Dielenbreite. Welche meint Ihr ist am besten? Oder ist das alles nichts...?
Beste Grüße Martin
G
GeradeSchräg15.01.22 13:17apokolok schrieb:
Ohne mir die Entwürfe überhaupt angesehen zu haben.
Wozu das rumbasteln, wenn ihr sowieso noch einen Architekten braucht?
Mit fertigen Eigengewächsen zum Architekten zu gehen ist die schlechteste Herangehensweise.Naja wenn man sich anschaut, was manche Architekten hier abliefern, finde ich es doch ratsam wenn man gewisse Vorstellungen hat.Kommen die Versorgungsleitungen von hinten ?
Für das Vorhaben habt ihr ein gutes Budget, überdenkt bitte Eure bevorzugte Heiztechnik.
M
Myrna_Loy15.01.22 14:11Wie bauen denn die Nachbarn die einzelnen Geschosse? Schlafen unter Wohnen ist ja doch eher suboptimal.
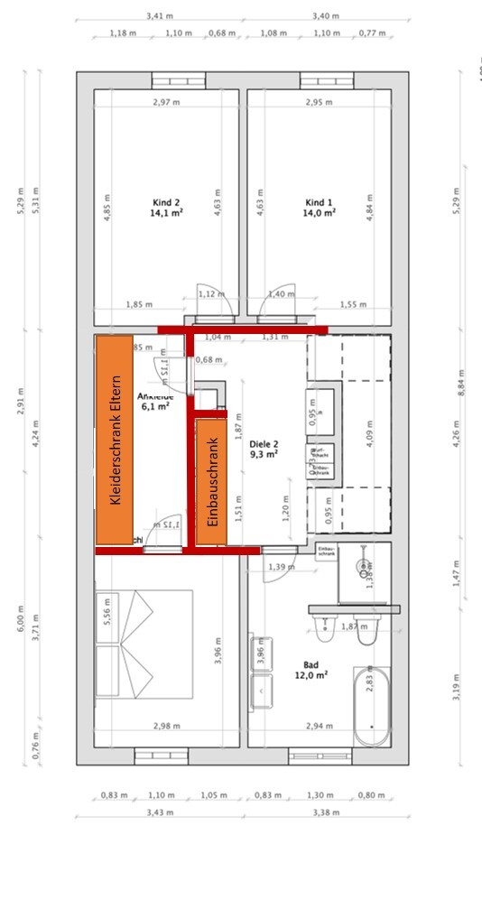
Anbei mal eine Variante von 2 mit
- einer Ankleide als Durchgangszimmer
- weniger Wand- (Pfuscher)ecken
- einem großen Einbauschrank im Flur als Abstellraumersatz (irgendwo muss Staubsauger und Co ja hin)

Ob man dann als Abkürzung zum Toi noch eine Tür zwischen Schlafen und Bad baut, ist Geschmackssache.
- einer Ankleide als Durchgangszimmer
- weniger Wand- (Pfuscher)ecken
- einem großen Einbauschrank im Flur als Abstellraumersatz (irgendwo muss Staubsauger und Co ja hin)
Ob man dann als Abkürzung zum Toi noch eine Tür zwischen Schlafen und Bad baut, ist Geschmackssache.
Ähnliche Themen