ᐅ Grundriss mit der Bitte um eure Meinungen...
Erstellt am: 08.06.15 13:25
Hallo zusammen,
neben dem langen Mitlesen hier im Forum, haben wir hier vor einiger Zeit auch schon mal zwecks der Hauspositionierung auf dem Grundstück gefragt. Gerne würden wir noch mal eure Meinung zu folgendem Grundriss haben.
Bebauungsplan/Einschränkungen
Größe des Grundstücks: 850m²
Grundflächenzahl: 0,25
Anzahl Stellplatz: 2
Geschossigkeit: 1
Dachform: Satteldach 28-48°
Stilrichtung: konservativ (Klinkerbau)
Ausrichtung: offene Bauweise
Maximale Höhen/Begrenzungen: Max. 1m Drempel
Anforderungen der Bauherren
Stilrichtung, Dachform, Gebäudetyp: Klinkerbau, Satteldach 45°
Keller, Geschosse: kein Keller, 2 Geschosse (+ ausgebauter Spitzboden)
Anzahl der Personen, Alter: 2 Erw. (32 & 31), 1 Kind (12M.) + 1Kind in Planung (2-3Jahre)
Büro: Familiennutzung (im Spitzboden bzw. solange kein 2.Kind vorhanden im OG)
konservativ oder moderne Bauweise: eher konservativ --> Klinker
offene Küche, Kochinsel: ja, ja
Anzahl Essplätze: 6
Kamin: ja
Garage, Carport: wahrscheinlich Garagen-Carport-Kombination (muss ebenfalls verklinkert und mit Satteldach versehen werden
Hausentwurf
Von wem stammt die Planung: von uns
Was gefällt besonders?
Was gefällt nicht?
--> Ich hätte die Küche gerne eher in Richtung Eingang/Straße(SW-Ecke), allerdings wandert der Wohnbereich dann in den Osten und wir wollen die Wohnräume im Süden (in Richtung Garten) haben.
Wir hatten auch schon mal das Haus um 90° gedreht, allerdings haben wir dann den Eingang auf der Giebelseite und entsprechend hat man im Haus immer einen sehr lang gezogenen Flur was uns nicht so recht gefällt.
Somit hat sich die derzeitige Variante al Kompromiss ergeben.
Wir würden gern Technik von Hauswirtschaftsraum/Speis trennen und auch als Schmutzschleuse (für Einkauf oder auch z.B. nach erledigter Gartenarbeit) nutzen. Da stellt sich noch für uns die Frage nach der 'günstigsten' Anordnung und Türposition.
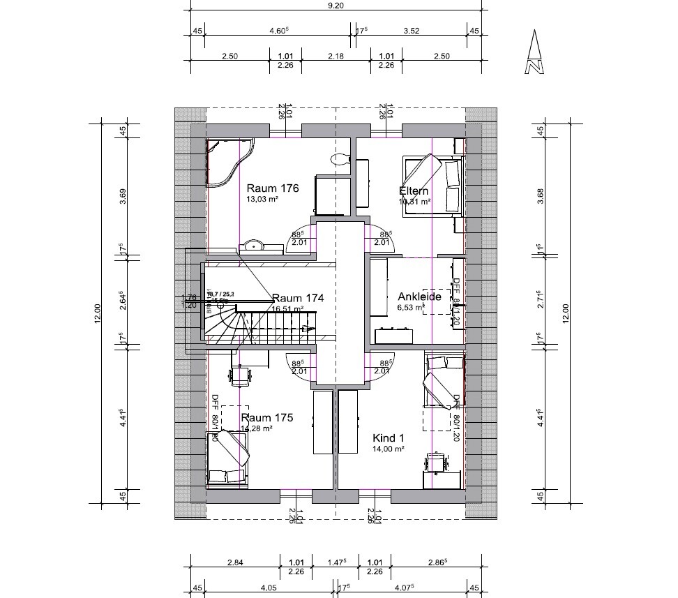
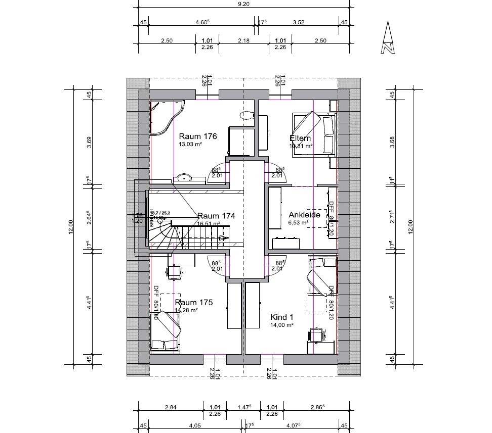
Ach ja was aus unseren laienhaften Zeichnungen evtl. nicht deutlich wird, dass aus dem OG eine feste Treppe (an gleicher Stelle der Postion der EG-Treppe) vom OG in den Spitzboden gehen soll --> daher auch die Gaube.
Für Hinweise und Anregungen wären wir sehr dankbar.

neben dem langen Mitlesen hier im Forum, haben wir hier vor einiger Zeit auch schon mal zwecks der Hauspositionierung auf dem Grundstück gefragt. Gerne würden wir noch mal eure Meinung zu folgendem Grundriss haben.
Bebauungsplan/Einschränkungen
Größe des Grundstücks: 850m²
Grundflächenzahl: 0,25
Anzahl Stellplatz: 2
Geschossigkeit: 1
Dachform: Satteldach 28-48°
Stilrichtung: konservativ (Klinkerbau)
Ausrichtung: offene Bauweise
Maximale Höhen/Begrenzungen: Max. 1m Drempel
Anforderungen der Bauherren
Stilrichtung, Dachform, Gebäudetyp: Klinkerbau, Satteldach 45°
Keller, Geschosse: kein Keller, 2 Geschosse (+ ausgebauter Spitzboden)
Anzahl der Personen, Alter: 2 Erw. (32 & 31), 1 Kind (12M.) + 1Kind in Planung (2-3Jahre)
Büro: Familiennutzung (im Spitzboden bzw. solange kein 2.Kind vorhanden im OG)
konservativ oder moderne Bauweise: eher konservativ --> Klinker
offene Küche, Kochinsel: ja, ja
Anzahl Essplätze: 6
Kamin: ja
Garage, Carport: wahrscheinlich Garagen-Carport-Kombination (muss ebenfalls verklinkert und mit Satteldach versehen werden
Hausentwurf
Von wem stammt die Planung: von uns
Was gefällt besonders?
Was gefällt nicht?
--> Ich hätte die Küche gerne eher in Richtung Eingang/Straße(SW-Ecke), allerdings wandert der Wohnbereich dann in den Osten und wir wollen die Wohnräume im Süden (in Richtung Garten) haben.
Wir hatten auch schon mal das Haus um 90° gedreht, allerdings haben wir dann den Eingang auf der Giebelseite und entsprechend hat man im Haus immer einen sehr lang gezogenen Flur was uns nicht so recht gefällt.
Somit hat sich die derzeitige Variante al Kompromiss ergeben.
Wir würden gern Technik von Hauswirtschaftsraum/Speis trennen und auch als Schmutzschleuse (für Einkauf oder auch z.B. nach erledigter Gartenarbeit) nutzen. Da stellt sich noch für uns die Frage nach der 'günstigsten' Anordnung und Türposition.
Ach ja was aus unseren laienhaften Zeichnungen evtl. nicht deutlich wird, dass aus dem OG eine feste Treppe (an gleicher Stelle der Postion der EG-Treppe) vom OG in den Spitzboden gehen soll --> daher auch die Gaube.
Für Hinweise und Anregungen wären wir sehr dankbar.
Der Grundriss erinnert mich an ein bestimmtes Fertighaus (D..Haus)
Nicht optimal finde ich, dass der Zugang zum Wohnzimmer über die Küche erfolgt.
Mit der Treppe direkt neben der Eingangstür schleppt ihr euch immer den Dreck nach oben und ihr lauft im Winter immer durchs Nasse, wenn ihr von oben nach unten wollt. Letzteres war für uns der Grund, warum wir uns im 2. Haus gegen die Treppe neben der Eingangstür entschieden haben.
Die Trennwand zwischen der Garderobe und dem Flur würde ich weglassen. Die schränkt euch bei der Möblierung ein.
Ist im Wohnzimmer ein Kamin geplant? Wenn ja, wo ist der Kaminzug/Schornstein?
Der Weg von der Küche zur Terrasse ist recht weit.
Ne 88.5er Tür zwischen Hauswirtschaftsraum und Küche würde ich nicht machen. Bedenke, dass du gerade hier wahrscheinlich öfters mal mit Getränkekisten, Wäschekorb, Einkaufskorb, evtl. auch Babysafe u.ä. durch musst.
Das OG finde ich ganz ok. Evtl. noch über eine Tür zwischen Ankleide und Flur nachdenken, das erspart umständliche Wege mit der Wäsche und ihr müsst nicht immer durch das Schlafzimmer laufen.
Nicht optimal finde ich, dass der Zugang zum Wohnzimmer über die Küche erfolgt.
Mit der Treppe direkt neben der Eingangstür schleppt ihr euch immer den Dreck nach oben und ihr lauft im Winter immer durchs Nasse, wenn ihr von oben nach unten wollt. Letzteres war für uns der Grund, warum wir uns im 2. Haus gegen die Treppe neben der Eingangstür entschieden haben.
Die Trennwand zwischen der Garderobe und dem Flur würde ich weglassen. Die schränkt euch bei der Möblierung ein.
Ist im Wohnzimmer ein Kamin geplant? Wenn ja, wo ist der Kaminzug/Schornstein?
Der Weg von der Küche zur Terrasse ist recht weit.
Ne 88.5er Tür zwischen Hauswirtschaftsraum und Küche würde ich nicht machen. Bedenke, dass du gerade hier wahrscheinlich öfters mal mit Getränkekisten, Wäschekorb, Einkaufskorb, evtl. auch Babysafe u.ä. durch musst.
Das OG finde ich ganz ok. Evtl. noch über eine Tür zwischen Ankleide und Flur nachdenken, das erspart umständliche Wege mit der Wäsche und ihr müsst nicht immer durch das Schlafzimmer laufen.
Danke schon mal für die Rückmeldungen....
@Tihiddi: Klar...schau mal nach 3D CAD von Concadus...sind bisher immer noch recht angetan vom Programm
@Manu1976:
Das mit dem Eingang über den Koch-/Essbereich finde ich jetzt nicht allzu schlimm.Ich mag den Wohnbereich eher etwas abgeschottet und dort keinen direkten Blick auf eine Tür haben. Einfach schon von der Gemütlichkeit her...
Das mit der Treppe sehe ich genauso wie du. Wir haben da auch viel experimentiert, allerdings von der Anordnung her nichts passendes gefunden ohne den Flur deutlich zu verlängern z.B. Podesttreppe an der nördl. Giebelseite. Dann verschenkt man aber auch gleich einiges an Platz für den Flur und verliert Gestaltungsmöglichkeiten.
Falls da jemand noch eine Idee hat...gerne ;--)
Mit der Türbreite ist ein guter Hinweis...da müssen wir noch mal schauen. In der Diele war ein Garderobenschrank geplant...daher der Wandvorsprung.
@Tihiddi: Klar...schau mal nach 3D CAD von Concadus...sind bisher immer noch recht angetan vom Programm
@Manu1976:
Das mit dem Eingang über den Koch-/Essbereich finde ich jetzt nicht allzu schlimm.Ich mag den Wohnbereich eher etwas abgeschottet und dort keinen direkten Blick auf eine Tür haben. Einfach schon von der Gemütlichkeit her...
Das mit der Treppe sehe ich genauso wie du. Wir haben da auch viel experimentiert, allerdings von der Anordnung her nichts passendes gefunden ohne den Flur deutlich zu verlängern z.B. Podesttreppe an der nördl. Giebelseite. Dann verschenkt man aber auch gleich einiges an Platz für den Flur und verliert Gestaltungsmöglichkeiten.
Falls da jemand noch eine Idee hat...gerne ;--)
Mit der Türbreite ist ein guter Hinweis...da müssen wir noch mal schauen. In der Diele war ein Garderobenschrank geplant...daher der Wandvorsprung.
Ähnliche Themen