Grundriss mit der Bitte um eure Meinungen...

4,80 Stern(e) 5 Votes
Zuletzt aktualisiert 22.11.2025
Sie befinden sich auf der Seite 8 der Diskussion zum Thema: Grundriss mit der Bitte um eure Meinungen...
>> Zum 1. Beitrag <<

Y

ypg

Ja, ihr kommt einem schönen Haus schon sehr viel näher.
Ich würde, hab ich damals vergessen, oben 2 Meter breite Fenster mit Brüstung nehmen. In der Breite kommt in die Zimmer mehr Licht.
Im Schafzimmer Tür weg, Mittelfenster weg, und Tür von der Ankleide (würde ja schon erwähnt) in den Flur. Dann passt dort ein schöner Schrank hin. Trennwand würde ich nur andeuten.
Zur Küche hat @kbt09 viel Erfahrung, also darauf hören!
 
M

milkie

Habe die Dusche nicht gesehen, würde ich streichen. Ist eh viel zu eng! Wird keiner nutzen.
Und wenn doch würd ich trotzdem tauschen
 
Salomea

Salomea

Ok...das bestätigt unseren Trend ja dann schon mal in Richtung Variante 2.

Nochmal zum Thema Ankleide:
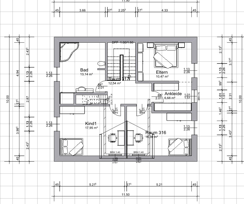
Wieso haltet ihr es für günstiger das Schlafzimmer durch die Ankleide zu betreten?
Durch die zusätzliche Tür verliere ich doch noch Stellmöglichkeiten und ich hätte bedenken, dass es auch etwas schlauchförmig wirkt.
Ich hab es noch mal umgezeichnet...könnt ja mal sagen, ob ihr es so gemeint hattet. Das Fenster würde ich eigentlich schon lassen, um noch etwas Tageslicht zu bekommen.

Grundriss eines Obergeschosses mit Bad, Elternzimmer, Ankleide, Kind1 und Raum 316


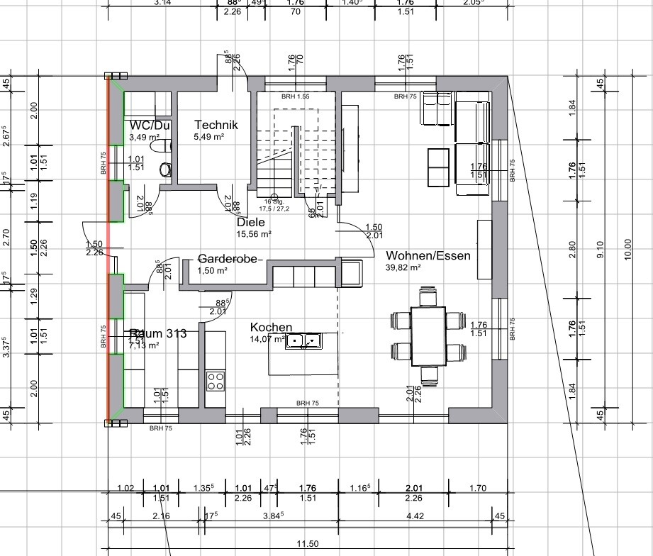
@ kbt09 : Ja der Vorschlag mit der Dunstabzugshaube ist gut...meintest du es in etwas so? Werden wir auf jeden Fall noch mal durchgehen. Evtl. kann man ja dann an der Kochinsel noch eine Glasschiebetür unterbringen...

Grundriss eines Hauses: Wohnen/Essen, Küche, Diele, Technik, WC/Du, Garderobe, Raum.
 
D

DiBu83

Oh...nicht wundern....den letzten Beitrag hatte ich jetzt vom Account meiner Freundin geschrieben...
 
L

Legurit

nicht so, dass man durch die ganze Ankleide muss - also die Tür genau auf die andere Seite - also den Eingang. Fläche verlierst du damit eigentlich nicht so viel.
Der Gedanke: man geht aus dem Schlafzimmer in die Ankleide und dann ins Bad mit den Klamotten bzw. dann wieder in die Ankleide wenn man noch nen Hut braucht. Schlafzimmer ist sonst immer nur Transitraum und man stört die noch schlafenden.
 
Zuletzt aktualisiert 22.11.2025
Im Forum Grundrissplanung / Grundstücksplanung gibt es 2535 Themen mit insgesamt 87982 Beiträgen


Ähnliche Themen zu Grundriss mit der Bitte um eure Meinungen...
Nr.ErgebnisBeiträge
1Grundriss Schlafzimmer, Ankleide und Bad en Suite - Seite 536
2OG Stadtville optimieren. Fenster Bodentief - Seite 16104
3Pfiffige Schlafzimmer Idee mit Ankleide gesucht 19
4Grundriss Schlafzimmer mit Bad und Ankleide 62
5Schalter für Rollläden am Fenster oder an der Tür? 38
6Fenster Brüstungshöhe 130 im Schlafzimmer / Arbeitszimmer? - Seite 493
7Grundrissplanung - Wie Schlafzimmers & Ankleide anordnen? 11
8 Küchenplanung mit tiefen Fenster - Seite 643
9Grundriss Einfamilienhaus geplant, Fenster gefallen uns - Seite 543
10Neubau einer ca. 8x11 Doppelhaushälfte, Einschätzung Grundriss und Fenster - Seite 635
11Durchbruch Bad und Ankleide ohne Türe? - Seite 212
12Verbindung Schlafzimmer / Ankleidezimmer / Bad - Seite 316
13Gestaltung Schlafzimmer 35
14Grundriss Neubau Einfamilienhaus: Fenster/Türen/Innenwände Größe/Anordnung ok? - Seite 220
15Keine Fußbodenheizung im Schlafzimmer? - Seite 322
16Bungalow 135qm: Grundriss + Fenster - Seite 10104
17Grundrissplanung --- bitte um Eure Meinungen - Seite 225
18Waschmaschine und Trockner in Ankleide? 16
19Teppich im Schlafzimmer trotz Fußbodenheizung? 36
20Kinderzimmer und Schlafzimmer - Welche Größe ist zu empfehlen? - Seite 256

Oben