Grundriss mit der Bitte um eure Meinungen...

4,80 Stern(e) 5 Votes
Zuletzt aktualisiert 21.11.2025
Sie befinden sich auf der Seite 7 der Diskussion zum Thema: Grundriss mit der Bitte um eure Meinungen...
>> Zum 1. Beitrag <<

Jochen104

Jochen104

Ich habs jetzt wegen der ganzen Treppen- und Saugdiskussion nicht mehr im Kopf, aber ich frage mich ob du die Speis wirklich brauchst. Ich würde den Platz dem Hauswirtschaftsraum zuschlagen und lieber die Küche etwas größer gestalten.
Damit fällt eine (unnötige) Tür weg und du hast einen Raum den du besser gestalten und ggf. unterteilen kannst.
 
D

DiBu83

Wir haben jetzt noch mal eine 2. Variante erstellt, mit einer etwas geänderten Hausposition, da man hierbei meiner Meinung noch etwas mehr den Garten nutzen kann.
Ich stelle hier beide Varianten noch mal rein. Wäre schön, wenn ihr uns mal sagen könntet welche Vor-/Nachteile ihr jeweils seht und welches eure favorisierte Variante wäre.Die jeweilige Raumnutzung und Größen sind nahezu identisch nur aufgrund des veränderten Eingangs entsprechend anders angeordnet

Was uns an der jeweiligen Variante besser gefällt:

Var1: (Eingang lange Seite)
+ Größe der Diele im EG (fällt bei Eingang auf langer Seite immer einfacher, beim Giebeleingang ergibt sich immer ein recht langer Flur)
+ hellerer Flur im OG

Var2: (Eingang Giebelseite)
+ größerer Gartenbereich
+ Küche näher an Terrasse + Terrassentür (Diskussion ob eher in Küche oder in Speis, um mehr Arbeitsfläche in der Küche zu bekommen)
+ hellere Kinderzimmer durch Gaube
+ kleiner Stauraum unter Treppe

Da des öfteren die Frage nach der Notwendigkeit der Speis kam...wir würden gerne Technik von Hauswirtschaftsraum/Speis trennen. deshalb haben wir diese immer noch mal separat an der Küche angeordnet.


Isometrische 3D-Darstellung eines Einfamilienhauses mit Garten, Garage und Rundzufahrt.

Isometrische Darstellung eines Wohnhauses mit Garage, grünem Garten und Rundauffahrt mit Mittelinsel.

Grundriss eines Hauses: Offener Wohn-Ess-Bereich, Küche, Diele, Garderobe, WC/Du, HWR und Speis.

Grundriss eines Wohnhauses mit Diele, Wohnen/Essen, Küche, Garderobe, Technik, WC/Du, HWR/Speis.

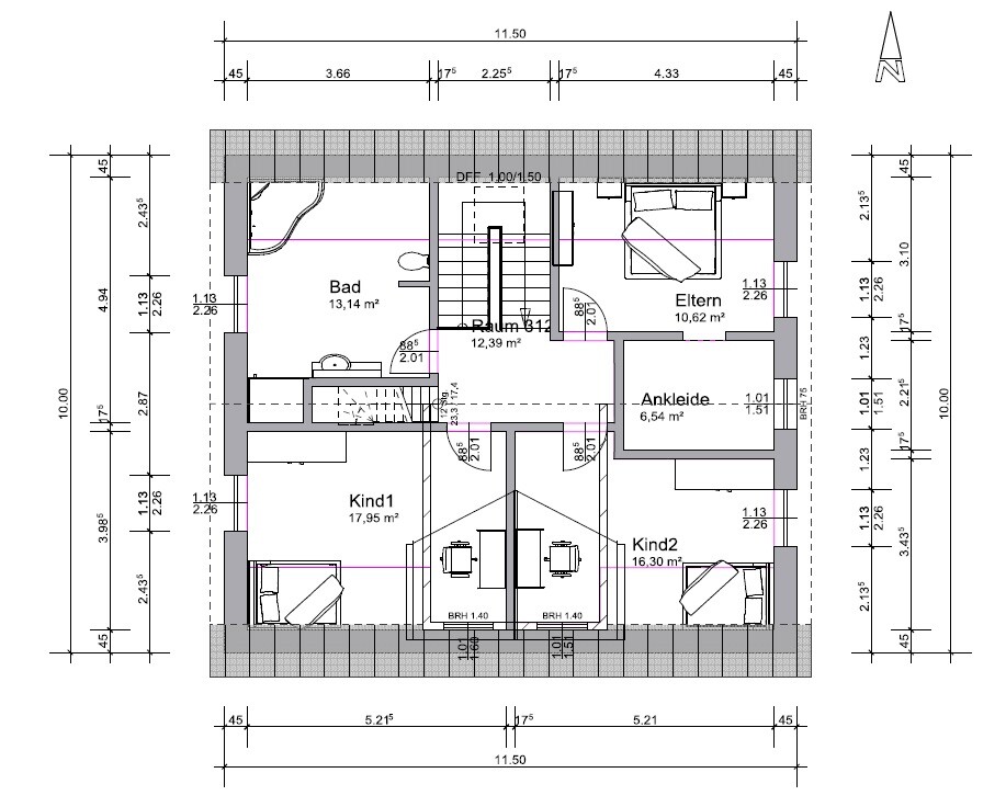
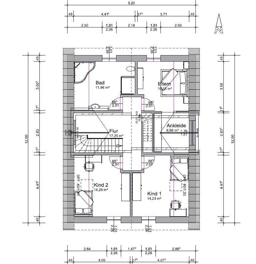
Dachgeschoss-Grundriss mit Flur, Bad, Elternzimmer, Ankleide und zwei Kinderzimmer.

Obergeschoss-Grundriss mit Treppenhaus und 5 Zimmern: Bad, Eltern, Kind1, Kind2, Ankleide
 
kbt09

kbt09

Sehe ich wie @BeHaElJa ... Variante 2 gefällt mir um Klassen besser .. schöne Podesttreppe nicht in Eingangsnähe usw.

Küche würde ich allerdings eher anders aufteilen .. links an der Wand zum Hauswirtschaftsraum die Kochfeldzeile ... weniger Querströmungen für die Dunstabzugshaube und dann mitten im Raum eine Spülen/Arbeitsinsel mit Blick nach Süden.

Tipp ... gönne beim nächsten Mal verschiedenen Varianten eigene Beiträge, dann kann man Bilder etc. schneller zuordnen
 
M

milkie

Definitiv Variante 2
Aber Technik und WC tauschen. 1. wegen Schmutzbereich bei der Haustür und 2. wegen WC Fenster neben der Haustür.
Wollt ihr in der Speis waschen?
 
kbt09

kbt09

Nee .. .Technik und WC/Dusche würde ich nicht tauschen, dann kann man nämlich die Dusche nicht so geschickt unterbringen. Und, Technik kann dafür ganz gut noch den Raum unter der Treppe nutzen.
 
Zuletzt aktualisiert 21.11.2025
Im Forum Grundrissplanung / Grundstücksplanung gibt es 2535 Themen mit insgesamt 87980 Beiträgen


Ähnliche Themen zu Grundriss mit der Bitte um eure Meinungen...
Nr.ErgebnisBeiträge
1 2 Vollgeschosse, Durchgang Garage, Hauswirtschaftsraum unter Treppe 25
2Grundriss Einfamilienhaus 1 Vollgeschoss Technik und Tageslicht - Seite 3194
3Suche Vorschläge für Grundriss Doppelhaushälfte 56
4Speisekammer vs. größere Küche vs. Hauswirtschaftsraum - Seite 213
5Einfamilienhaus mit seitlichem Eingang -Grundrissdiskussion? 17
6Grundrissfrage, Garage, Treppe 33
7Fliesen oder Vinyl in Küche und Flur 19
8Geschlossene Küche planen mit Durchgang zum Hauswirtschaftsraum - Seite 318
9Treppe im Flur, Grundriss steht eigentlich schon :o( - Seite 320
10Wohnen/Essen/Küche: Wie wohnt ihr oder werdet ihr wohnen? - Seite 852
11Stadtvilla mit gerader Treppe, offene moderne Bauweise, 140m² 18
12Welcher Bodenbelag im Eingang/Flur? Wer hat Erfahrungen? Bilder? 14
13Grundrissplanung: Flur im EG breit genug? - Seite 357
14Standort Küche und Wohnzimmer 55
15REH - Grundrissplanung - Küche zu klein - Seite 430
16HAR/Technik ausreichend dimensioniert ? - Seite 213
17Grundriss 170m2 - Hauswirtschaftsraum zu klein? Verbesserungsvorschläge? - Seite 342
18Grundriss Zugang von Küche in Speis / Abstellraum - Seite 329
19Minimale Grundfläche - Hauswirtschaftsraum und AZ im EG - Ohne Keller 19
20Reicht der Hauswirtschaftsraum auch als Abstellkammer aus? - Seite 422

Oben