Grundriss Mehrfamilienhaus mit 4 Wohneinheiten

4,30 Stern(e) 4 Votes
Zuletzt aktualisiert 23.11.2025
Sie befinden sich auf der Seite 7 der Diskussion zum Thema: Grundriss Mehrfamilienhaus mit 4 Wohneinheiten
>> Zum 1. Beitrag <<

R

Robii84

Du bist verrückt:p Ich stimme dir zu...das Walmdach sieht besser aus. Wieder ein Punkt über den ich nachdenken werde...
Das Bad ist natürlich jetzt größer. Dafür wirkt der andere Raum nicht mehr so gut. Ich denke da muss man einen Kompromiss finden.
Mir persönlich reicht ein kleines Bad mit Dusche. Andere ( vor allem Frauen) wollen lieber ein größeres Bad mit Wanne.
 
R

Robii84

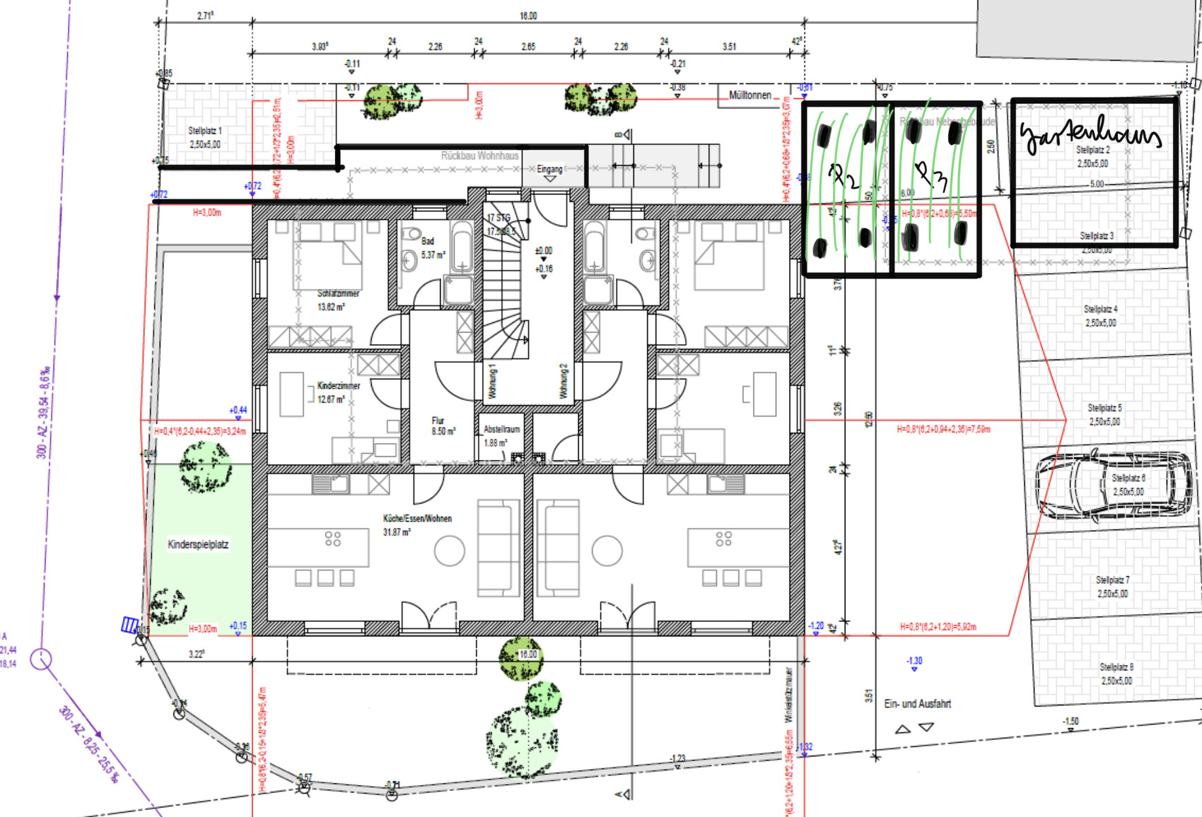
@ypg sorry war keine Absicht...die Zufahrt wird vermutlich teilweise gepflastert. Die Stellplätze sind natürlich ein großes Problem. Ob die alle so gebaut werden, kann ich dir nicht sagen. Im späteren Plan müssen sie auf jeden Fall vorhanden sein.
 
S

Sunshine387

Für die Stellplätze eine weitere Lösung: Die P2 und P3 einfach drehen, sodass man 25m2 Pflaster spart und diese beiden Stellplätze könnte man auch gut auf 4 Rasengittersteinbereichen unter den jeweiligen Reifen verstecken, wenn man sonst da überall rasen macht. Und Platz für ein Gartenhaus für Fahrräder und vor allem den Rasenmäher wäre auch noch. Der Eingang müsste dann natürlich von der anderen Seite bei P1 sein, dort wäre es ja aufgrund des Gefälle auch barrierefrei.

Grundriss eines Hauses: Wohn-/Küche, Schlafzimmer, Kinderzimmer, Bad, Flur, Garten, Stellplätze
 
K a t j a

K a t j a

Wie ist denn die Nachfrage? Ist es egal, was Du anbietest - alles wird gemietet? Man könnte z.B. auch überlegen, 2 ungleiche Hälften zu bauen. Aber hier noch mal die Frage: Wenn Du selbst einziehst, was wünschst Du Dir?
 
Y

ypg

die Zufahrt wird vermutlich teilweise gepflastert.
Die Frage war, wo sie denn ist und wie man die Stellplätze erreicht. :( Wie soll man die 1 erreichen? Von wo werden die 2-8 angefahren? Wir kennen doch das Grundstück nicht?! Was ist neben den Grundstücken? Sind da Straßen? Ist die Idee, alle Plätze von der Straße aus zu befahren? Das dürfte auch in Bayern nicht erlaubt sein…
Mach Dir mal eher über Wendekreise Gedanken als jetzt vorschnell über zentrale und dezentrale Lüftungen debattieren zu lassen.
 
Zuletzt aktualisiert 23.11.2025
Im Forum Grundrissplanung / Grundstücksplanung gibt es 2535 Themen mit insgesamt 87992 Beiträgen


Ähnliche Themen zu Grundriss Mehrfamilienhaus mit 4 Wohneinheiten
Nr.ErgebnisBeiträge
16 Stellplätze auf einem Grundstück Anordnen - Seite 220
2Platzierung Stellplätze / Carport auf dem Grundstück 42
3Alle erforderlichen Stellplätze bauen, auch wenn diese nicht benötigt? 56
4Zu Wenig Stellplätze für Baugenehmigung 20
5Anordnung Haus und Stellplätze - Kleines Grundstück - Haus mit Einliegerwohnung 27
6Stellplätze außerhalb des Baufensters 22

Oben