ᐅ Haus-Entwurf Einfamilienhaus - Zukünftig als Zweifamilienhaus trennbar
Erstellt am: 28.11.16 13:36
P
Paulus16Nochmal: wie stellst Du Dir die Abtrennung des Treppenhauses vor, wenn das Haus als 2-Familienhaus genutzt wird? Warum rückst Du nicht die Treppe zumindest 1m nach planunten in einen Erker? So könntest Du deutlich einfacher trennen.
Auch dass Du nach wie vor 2 komplette Essplätze planst verstehe ich nicht. In der Küche wird es eng, sowohl zum Kochen als auch um den Tisch rum zu sitzen und im Wohn-/Esszimmer wird es ebenfalls sehr eng werden.
Warum planst Du nicht entweder eine Küche mit 2 Snackplätzen, ODER eine grosse Ess-Küche und dafür das Wohnzimmer abgetrennt und ruhig.
Der 2. Plan ist der bessere
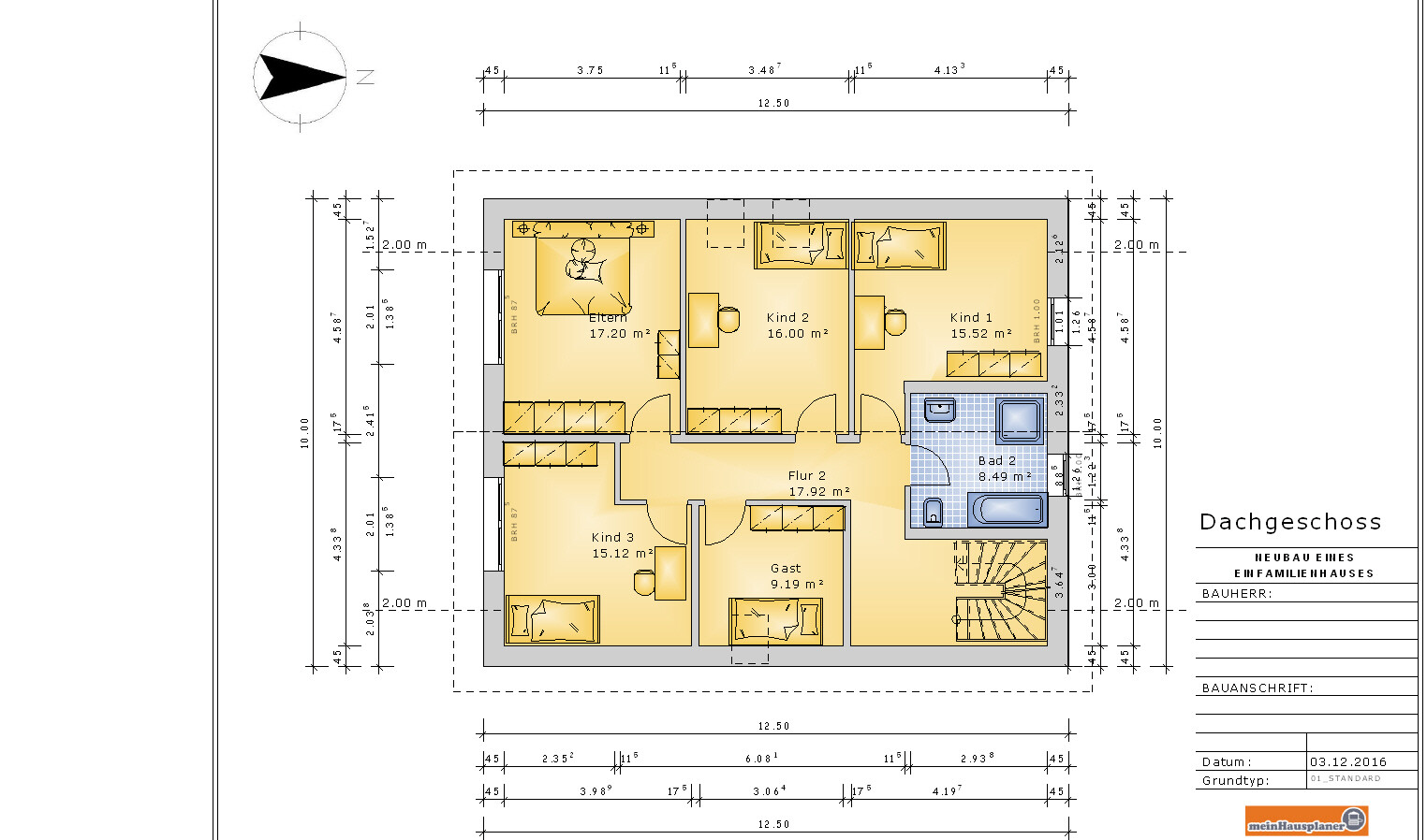
Im Technikraum wird für 'Hauswirtschaftsraum' nicht viel Platz bleiben. Ich würde oben auf das Gästezimmer verzichten, und stattdessen dort Deinen Hauswirtschaftsraum einrichten - da fällt auch die meiste Wäsche an.
Die obere WHG wird für eine junge Familie mit kleinen Kindern aber auch sehr knapp werden.
Auch dass Du nach wie vor 2 komplette Essplätze planst verstehe ich nicht. In der Küche wird es eng, sowohl zum Kochen als auch um den Tisch rum zu sitzen und im Wohn-/Esszimmer wird es ebenfalls sehr eng werden.
Warum planst Du nicht entweder eine Küche mit 2 Snackplätzen, ODER eine grosse Ess-Küche und dafür das Wohnzimmer abgetrennt und ruhig.
Der 2. Plan ist der bessere
Im Technikraum wird für 'Hauswirtschaftsraum' nicht viel Platz bleiben. Ich würde oben auf das Gästezimmer verzichten, und stattdessen dort Deinen Hauswirtschaftsraum einrichten - da fällt auch die meiste Wäsche an.
Die obere WHG wird für eine junge Familie mit kleinen Kindern aber auch sehr knapp werden.
Wenn ich nochmals schaue (ich habe ja weiter oben gesagt, dass er funktioniert), muss ich allerdings sagen, dass es dennoch kein guter Entwurf ist.
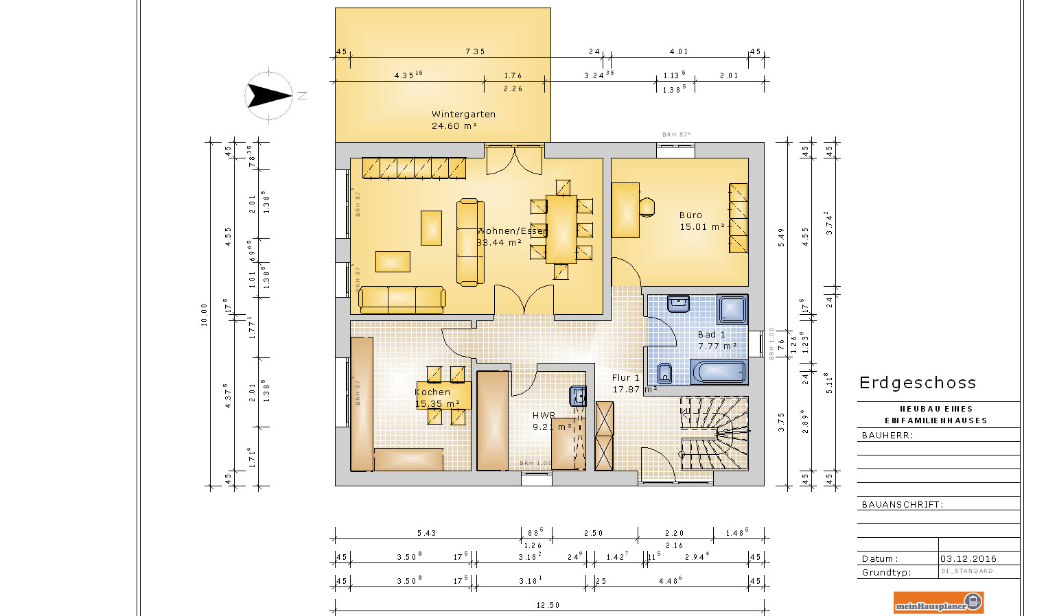
Der Raum in der Nordwestecke ist in beiden Etagen reichlich blöd zum Flur erschlossen. Das geht sicherlich besser.
Flurfläche ist reichlich, dafür allerdings haben wir es hier mit einem großen Haus zu tun, wo sicherlich mehr geht.
Essplätze doppelt nebeneinander vorhanden, und warum Gast und Büro getrennt sein muss, steht auch im Raum.
Warum müssen beide Bäder je eine Wanne haben? Warum müssen sie völlig identisch sein, wenn doch der Raumbedarf im EG und OG unterschiedlich sind? Warum liegt das Schlafzimmer im Süden, der Wohnraum, der von der Südseite profitieren kann, im Westen, wo im Winter kaum Sonnenstrahlen hinkommen?
Ich würde noch mal bei 0 anfangen und auch einen Architekt hinsichtlich der Problematik Wohnungstrennung hinzuziehen
Edit: und warum wird der Wintergarten, heutzutage vollwertiger Wohnraum, nicht in der Planung berücksichtigt?
Grüsse
Der Raum in der Nordwestecke ist in beiden Etagen reichlich blöd zum Flur erschlossen. Das geht sicherlich besser.
Flurfläche ist reichlich, dafür allerdings haben wir es hier mit einem großen Haus zu tun, wo sicherlich mehr geht.
Essplätze doppelt nebeneinander vorhanden, und warum Gast und Büro getrennt sein muss, steht auch im Raum.
Warum müssen beide Bäder je eine Wanne haben? Warum müssen sie völlig identisch sein, wenn doch der Raumbedarf im EG und OG unterschiedlich sind? Warum liegt das Schlafzimmer im Süden, der Wohnraum, der von der Südseite profitieren kann, im Westen, wo im Winter kaum Sonnenstrahlen hinkommen?
Ich würde noch mal bei 0 anfangen und auch einen Architekt hinsichtlich der Problematik Wohnungstrennung hinzuziehen
Edit: und warum wird der Wintergarten, heutzutage vollwertiger Wohnraum, nicht in der Planung berücksichtigt?
Grüsse
Mich würde immer noch stören, daß ich nachts aus dem Schlafzimmer raus durch den Flur (der mit Straßenschuhen betreten wird und entsprechend dreckig ist) ins Bad müßte. Das wäre mir zu dreckig und zu öffentlich. Halte ich für eine mehr als suboptimale Planung.
Wenn der Grundriss UNBEDINGT so bleiben muß, würde ich mir den Gast/Wohnbereich oben als Schlafbereich nehmen. Wobei ich die Trennung Gast/Büro immer noch nicht verstehe.
Zwei vollwertige Essplätze machen keinen Sinn, entscheidet euch, wo ihr als Familie essen wollt, in der Küche oder im Wohnraum und falls im Wohnraum, dann nur einen kleinen Snackplatz in der Küche.
Die Bäder machen so immer noch keinen Sinn.
Ich finde den ganzen Entwurf noch sehr verbesserungswürdig. Ich wage zu behaupten: so werdet ihr nicht wirklich glücklich.
Baut jetzt ein Haus, das euren Ansprüchen HEUTE entspricht, also ein Haus für eine Familie mit drei Kindern. Da wäre für mich ein Kinderbad z.B. wichtig. Ich würde nie und nimmer meinen Schlafbereich so öffentlich haben wollen wie in diesem Bereich hier.
Solltet ihr später mal das Haus in zwei Wohnbereiche trennen, kann man ggf. immer noch ein Treppenhaus außen an das Haus anbauen. Ein guter Architekt behält so eine Möglichkeit im Hinterkopf und plant entsprechend.
Aber aktuell solltet ihr ein Haus für eure JETZIGE Situation bauen und nicht für eine ferne Zukunft (bei der eh niemand weiß, wie sie sein wird)
Wenn der Grundriss UNBEDINGT so bleiben muß, würde ich mir den Gast/Wohnbereich oben als Schlafbereich nehmen. Wobei ich die Trennung Gast/Büro immer noch nicht verstehe.
Zwei vollwertige Essplätze machen keinen Sinn, entscheidet euch, wo ihr als Familie essen wollt, in der Küche oder im Wohnraum und falls im Wohnraum, dann nur einen kleinen Snackplatz in der Küche.
Die Bäder machen so immer noch keinen Sinn.
Ich finde den ganzen Entwurf noch sehr verbesserungswürdig. Ich wage zu behaupten: so werdet ihr nicht wirklich glücklich.
Baut jetzt ein Haus, das euren Ansprüchen HEUTE entspricht, also ein Haus für eine Familie mit drei Kindern. Da wäre für mich ein Kinderbad z.B. wichtig. Ich würde nie und nimmer meinen Schlafbereich so öffentlich haben wollen wie in diesem Bereich hier.
Solltet ihr später mal das Haus in zwei Wohnbereiche trennen, kann man ggf. immer noch ein Treppenhaus außen an das Haus anbauen. Ein guter Architekt behält so eine Möglichkeit im Hinterkopf und plant entsprechend.
Aber aktuell solltet ihr ein Haus für eure JETZIGE Situation bauen und nicht für eine ferne Zukunft (bei der eh niemand weiß, wie sie sein wird)
Ich gebe Climbee vollkommen recht ( bis auf 1...2 Sachen )
Ich habe hier schon einige Grundrisse gesehen und diskutiert, wo die Intimität vom Duschbad und Gast/Schlafzimmer im EG gewährleistet war, der Flur so knapp wie möglich und eine abgeschlossene Küche mit sinnvoller Möblierung vorhanden war.
Erinnern kann ich mich an @BeJaElJa s Entwurf... allerdings ohne vorgezogene Treppe.
Letztendlich ist es egal, wie man die Zimmer benennt, wenn man auf Schrankfläche für jetzt und später achtet
Wenn Du mal den Lageplan einstellst, kann man mal mit Skizzen vermitteln, wie die Vorschläge gemeint und umzusetzen sind
Grüsse
Ich habe hier schon einige Grundrisse gesehen und diskutiert, wo die Intimität vom Duschbad und Gast/Schlafzimmer im EG gewährleistet war, der Flur so knapp wie möglich und eine abgeschlossene Küche mit sinnvoller Möblierung vorhanden war.
Erinnern kann ich mich an @BeJaElJa s Entwurf... allerdings ohne vorgezogene Treppe.
Letztendlich ist es egal, wie man die Zimmer benennt, wenn man auf Schrankfläche für jetzt und später achtet
Wenn Du mal den Lageplan einstellst, kann man mal mit Skizzen vermitteln, wie die Vorschläge gemeint und umzusetzen sind
Grüsse
Wie haben Paar Änderungen gemacht, neue Bilder mit einem primitiven Lageplan sind anbei. Wir werden wohl keine Garage brauchen, aber sicherlich ein fertiges Gartenhaus für Fahrräder und Gartengeräte. Die Lage dafür ist noch nicht bekannt.
-Zum Schlafzimmer: Wir haben uns zuhause auf ein Schlafzimmer oben geeignet. Wegen wiederkehrenden gesundheitlichen Probleme kann es aber sein, dass Schlafzimmer doch mittelfristig nach unten muss. Dafür ist dass Zimmer das jetzt "Büro" heißt recht groß und dafür die zweite Wanne unten, die jetzt nicht montiert wird aber deren Platz reserviert wird.
-Die Kinder mögen morgens vor der Schule sehr in der Küche frühstücken. Der Essplatz in der Küche ist also in der Tat etwas kleiner. Wir haben ihn auf dem Grundriss etwas vergrößert, um evtl. mehr Flexibilität -falls nötig- beim Wohnzimmer zu bekommen.
-Der Wintergarten wird beheizbar sein aber wahrscheinlich kein Wohnwintergarten für alle Jahreszeiten.
-Gastzimmer ist für Oma oder Tante und Onkel gedacht, die bei uns 2-3 Monaten im Jahr zu Besuch sind.



-Zum Schlafzimmer: Wir haben uns zuhause auf ein Schlafzimmer oben geeignet. Wegen wiederkehrenden gesundheitlichen Probleme kann es aber sein, dass Schlafzimmer doch mittelfristig nach unten muss. Dafür ist dass Zimmer das jetzt "Büro" heißt recht groß und dafür die zweite Wanne unten, die jetzt nicht montiert wird aber deren Platz reserviert wird.
-Die Kinder mögen morgens vor der Schule sehr in der Küche frühstücken. Der Essplatz in der Küche ist also in der Tat etwas kleiner. Wir haben ihn auf dem Grundriss etwas vergrößert, um evtl. mehr Flexibilität -falls nötig- beim Wohnzimmer zu bekommen.
-Der Wintergarten wird beheizbar sein aber wahrscheinlich kein Wohnwintergarten für alle Jahreszeiten.
-Gastzimmer ist für Oma oder Tante und Onkel gedacht, die bei uns 2-3 Monaten im Jahr zu Besuch sind.
Ähnliche Themen