Grundriss Komplettsanierung Doppelhaushälfte zum 3-Etagen-Familienhaus

4,30 Stern(e) 4 Votes
Zuletzt aktualisiert 26.11.2025
Sie befinden sich auf der Seite 2 der Diskussion zum Thema: Grundriss Komplettsanierung Doppelhaushälfte zum 3-Etagen-Familienhaus
>> Zum 1. Beitrag <<

D

Draislah

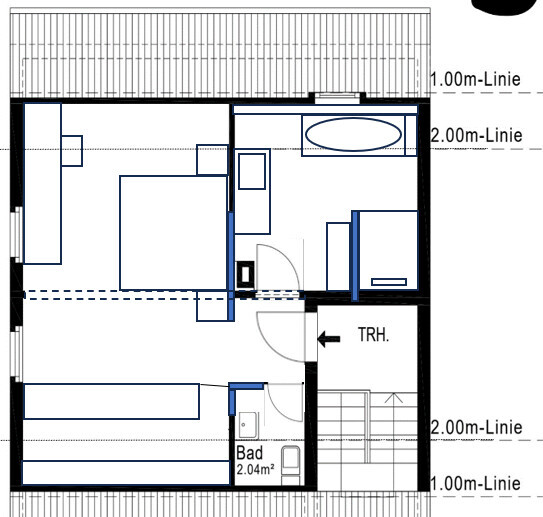
Das DG gefällt mir gar nicht. Die 2 Kamine sind entbehrlich. Die sollten raus. Dann gehen auch die Bäder besser. Soll das im OG eine Dachterrasse werden?
Ja, man hat halt über dem Anbau Platz. Wir diskutieren noch, ob nicht auf Dachterrasse verzichtet wird und lieber Oberlichter/Glas für mehr Licht im Anbau besser ist.
Die Dachterrasse wird eh nur minimal genutzt werden...
 
D

Draislah

Das DG gefällt mir gar nicht. Die 2 Kamine sind entbehrlich. Die sollten raus. Dann gehen auch die Bäder besser. Soll das im OG eine Dachterrasse werden?
Das DG ist Bestand, noch keine Planung erfolgt. Ich würde mich über Idee trotzdem freuen. Wie gesagt, ich stelle es mir als sehr offenen, hohen Raum vor (geöffneter Spitzboden) mit 1-2 fetten, bodentiefen Giebeln.
 
D

Draislah

Erinnert an das Haus von @Ben_des im Thread
Das ist fast das gleiche DH, nur von 1939.

Ich gehe mal davon aus, dass nicht

das zu den Wandpositionen geführt hat, sondern der Bestandsgrundriss?!

Insofern ist es doch ganz gut gelöst. Ich würde zwar nicht als erstes mit der Stellplatzverordnung kommen, aber die Erhaltung der Garagen würde auch ich sehen - auch wenn es derzeit kein Auto in der Familie gibt.
WS mich stört, ist der völlig offene Chillbereich. Nicht, dass ich konservatives denke, aber eine Wand strukturiert auch, bringt Behaglichkeit und Sichtschutz. Das fehlt mir hier. Dem TV fehlt eine Rückwand und dem Blick zur Terrasse könnte ein Sichtschutz von 2-3 Metern auch gut tun, damit man nicht auf abgestellte Dinge auf der Terrasse schauen muss. Ich würde deshalb planoben links eine 2-Meter-Wand als Sichtschutz zur Garage und Sitz-Schutz des Sofas sehen sowie planoben rechts eine 2-3 Meter lange Wand zur Terrasse. Die brauchen noch nicht einmal bis ganz zur Decke gehen.
Des Weiteren, was mich immens stören würde, sind die Nasszellen: EG reicht, 1.OG kann auch reichen, wenn im DG eben der familienfreundliche Ausgleich eines Badezimmers vorhanden ist. Ich würde auch nicht die Wanne wegdiskutieren, da gibt es genug Pro-Argumente (die medizinischen Bäder, das Waschen des Tieres, Einlegen von Wolle, Putzen von Lebensmittel oder anderes Hobby, denn in Pinterest wird nicht gegoogelt, was man noch nicht kennt )
Als Einliegerwohnung kann das DG eh nicht dienen, insofern bin ich fast bei @hanghaus2023 Version. Ich würde das ganze als Familienbad einrichten, Büro kann ins kleinere Schlafzimmer.
Vielen Dank für die ausführliche Antwort!

Die Garagen müssen unbedingt weg in meinem Kopf. Wir sind eine Fahrradfahrer-Familie und die Doppelhaushälfte ist stadtnah. Wir wollen einen Fahrradschuppen/Gartenschuppen, aber keine Garage.

Gliederung für großen Raum ist ein valider Punkt.
TV haben wir keinen, da gewinnen wir eine weitere Fläche für Licht.
Wand zur Fahrrad-Garage würde ich auch machen, das was rot eingezeichnet ist. Darüber hinaus sehe ich keinen Bedarf für Sichtschutz.

Nasszellen: Wanne sind wir uns einig: brauchen wir nicht. Wannenfrei haben wir schon lange genug Erfahrung.
 
Zuletzt bearbeitet von einem Moderator:
Zuletzt aktualisiert 26.11.2025
Im Forum Grundrissplanung / Grundstücksplanung gibt es 2536 Themen mit insgesamt 88016 Beiträgen


Ähnliche Themen zu Grundriss Komplettsanierung Doppelhaushälfte zum 3-Etagen-Familienhaus
Nr.ErgebnisBeiträge
1Ideen für Anbau über Garage zusätzlicher Wohnraum - Seite 224
2Anbau-Planung / Änderung 72
3Anbau für 4 köpfige Familie am Waldrand 24
4Grundriss Einfamilienhaus mit Garage, eigenplanung - Seite 317
5Anbau EG / Dachstuhlverlängerung OG - Was ist teurer? - Seite 317
6hoher und beheizter Sport-Raum neben der Garage? - Ideen gesucht - Seite 356
7Anbau an bestehendes "Mehrfamilienhaus" - Grenzabstand? - Seite 330
8Stadtvilla ca 200qm mit Anbau 35
9Grundriss: 150qm Einfamilienhaus+Einliegerwohnung - Carport / Garage + Schuppen / Werkstatt - Seite 245
10Grenzbebauung Garage und Schuppen Max. 9 Meter -mehr geht nicht? - Seite 420
11Ungefähre Kosten für 50qm Anbau 10
12Begehbare Garage (Terrasse) 11
13Balkon auf Garage auf Grenze 11
14Terrasse auf Garage wird nur zum teil genehmigt - Seite 211
15Terrasse auf Garage bei zwingender Grenzbebauung 10
16Bebauungsplan: Garage auf Grenze außerhalb Baufenster - Seite 653
173. Grundriss-Entwurf Neubau Einfamilienhaus 220qm 2 Vollgeschosse Dachterrasse - Seite 561
18Grundriss Einfamilienhaus Hanggrundstück mit Terrasse / Dachterrasse 18
19Kostenschätzung m2 Wohnfläche Hanghaus mit Keller und Garage - Seite 1487
20Vorstellung Grundriss - Seite 333

Oben