ᐅ Vorstellung Grundriss
Erstellt am: 11.08.15 18:23
venraij 11.08.15 18:23
ich wäre gespannt Meinungen und Anregungen zu unserem Hausentwurf zu bekommen.
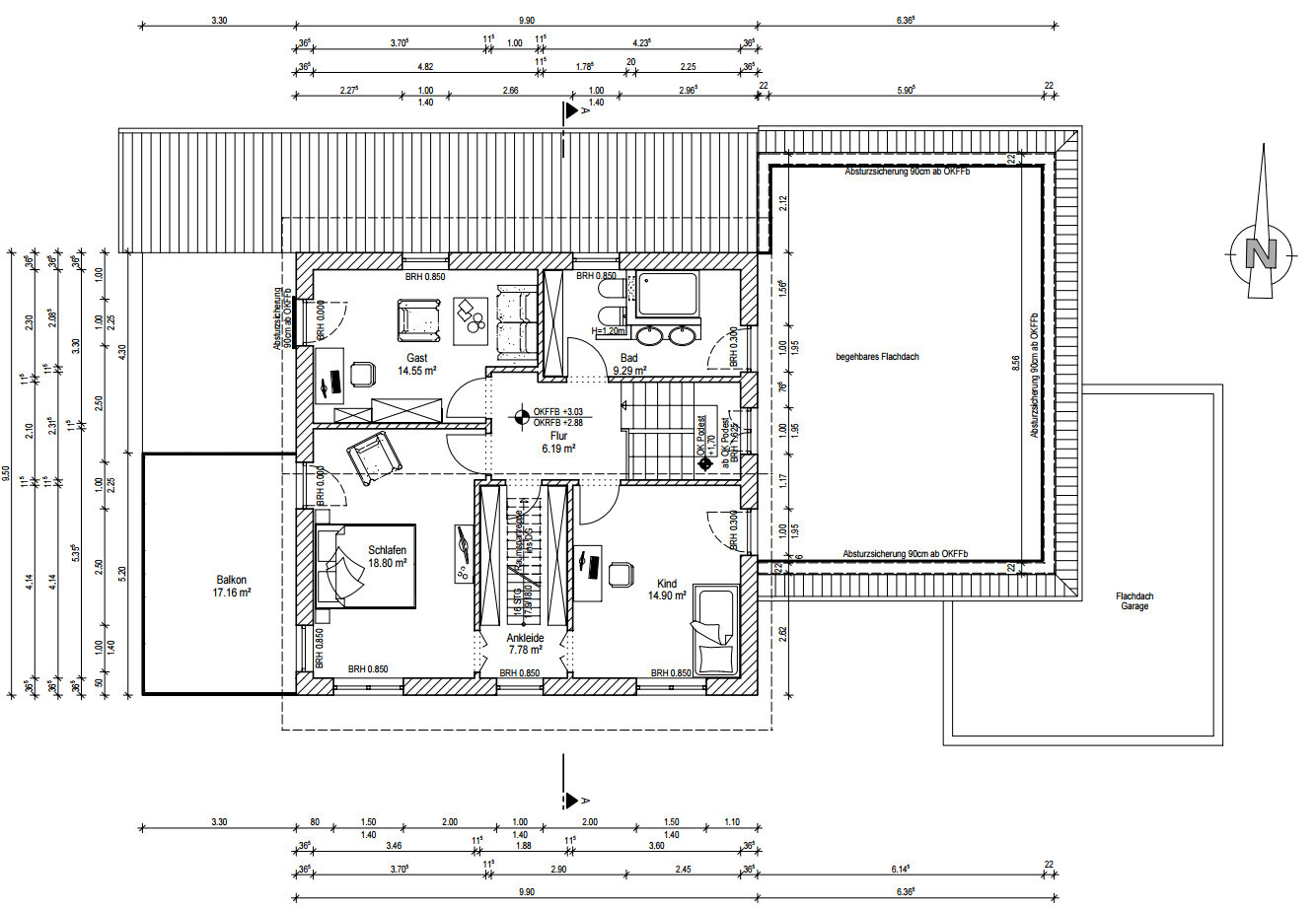
Es handelt sich um ein Haupthaus mit zwei Vollgeschossen und einem Satteldach.
Eine Unterkellerung ist nicht sinnvoll möglich wegen Grundwasser und zudem auch nicht gewollt, da wir Tageslicht bevorzugen :-)
Neben dem Haus befinden sich zwei Anbauten einmal ein Vorrat und ein Anbau für Kellerersatzflächen wie Hobby, Waschraum etc.
Der Anbau soll zu einem kleineren Teil als Dachterrasse dienen und der Rest soll begrünt werden.
Gebaut werden soll massiv, ich dachte an Poroton.
Die Punkte die mich zur Zeit noch frage sind:
- Passen alle Masse so das nichts klemmt.
- sind genügend oder zu viele Fenster
- Ich habe den Baukörper noch nicht an ein Ziegelrastermaß angepasst - ich denke 12,5 cm. Macht dies Sinn?
Es ist ein Eckgrundstück die Strasse verläuft im Norden und Osten des Hauses.
Auf den Skizzen ist oben Norden
Von Norden:

Erdgeschoss:
Obergeschoss (leider hat sich das Untergeschoss in der Draufsicht durchgezeichnet, deren Wände):
Über eure Meinungen/Ideen würde ich mich freuen
Es handelt sich um ein Haupthaus mit zwei Vollgeschossen und einem Satteldach.
Eine Unterkellerung ist nicht sinnvoll möglich wegen Grundwasser und zudem auch nicht gewollt, da wir Tageslicht bevorzugen :-)
Neben dem Haus befinden sich zwei Anbauten einmal ein Vorrat und ein Anbau für Kellerersatzflächen wie Hobby, Waschraum etc.
Der Anbau soll zu einem kleineren Teil als Dachterrasse dienen und der Rest soll begrünt werden.
Gebaut werden soll massiv, ich dachte an Poroton.
Die Punkte die mich zur Zeit noch frage sind:
- Passen alle Masse so das nichts klemmt.
- sind genügend oder zu viele Fenster
- Ich habe den Baukörper noch nicht an ein Ziegelrastermaß angepasst - ich denke 12,5 cm. Macht dies Sinn?
Es ist ein Eckgrundstück die Strasse verläuft im Norden und Osten des Hauses.
Auf den Skizzen ist oben Norden
Von Norden:
Erdgeschoss:
Obergeschoss (leider hat sich das Untergeschoss in der Draufsicht durchgezeichnet, deren Wände):
Über eure Meinungen/Ideen würde ich mich freuen
hausflat 11.08.15 20:19
Hallo,
ich sehe leider die Bilder vom EG und OG nicht, nur die Nordansicht. Stelle die Grundrisse bitte nochmal ein.
ich sehe leider die Bilder vom EG und OG nicht, nur die Nordansicht. Stelle die Grundrisse bitte nochmal ein.
Manu1976 11.08.15 20:42
seh nix - zumindest kein Grundriss
Legurit 11.08.15 21:28
Du verlinkst direkt auf deine Email... das funktioniert nicht.
ypg 11.08.15 21:56
Hallo venraij,
es wäre schön, wenn Du noch den Fragenkatalog beantwortest. Hier zu erreichen:
Zur Zeit wissen wir nicht, wie das Grundstück liegt und welchen Anforderungen und wievielen Personen der Entwurf gerecht werden soll.
Ist zB das Grundstück so klein, dass eine Dachterrasse nötig ist? Wird nämlich nicht oft benutzt, wenn man jeden Tag den Garten wässern muss 😉
Nach der Ansicht wird es ein sehr kostspieliges Haus...
Deine Dateien musst Du hochladen (fast neben dem Button "Antwort erstellen" zu finden)
Gruss Yvonne
es wäre schön, wenn Du noch den Fragenkatalog beantwortest. Hier zu erreichen:
Zur Zeit wissen wir nicht, wie das Grundstück liegt und welchen Anforderungen und wievielen Personen der Entwurf gerecht werden soll.
Ist zB das Grundstück so klein, dass eine Dachterrasse nötig ist? Wird nämlich nicht oft benutzt, wenn man jeden Tag den Garten wässern muss 😉
Nach der Ansicht wird es ein sehr kostspieliges Haus...
Deine Dateien musst Du hochladen (fast neben dem Button "Antwort erstellen" zu finden)
Gruss Yvonne
venraij 12.08.15 11:20
Sorry, ich habe die Skizzen falsch eingefügt, eigentlich peinlich bei meinem Job ;-)
Das Grundstück ist nicht riesig aber auch nicht so klein mit 800 qm, allerdings möchte ich gerne den Anbau haben und da hätte ich gerne ein Flachdach und begrünt sieht es schöner aus. Verwendet würde es wohl eher gelegentlich das ist richtig.
Die Liste gehe ich gleich mal durch ...


Das Grundstück ist nicht riesig aber auch nicht so klein mit 800 qm, allerdings möchte ich gerne den Anbau haben und da hätte ich gerne ein Flachdach und begrünt sieht es schöner aus. Verwendet würde es wohl eher gelegentlich das ist richtig.
Die Liste gehe ich gleich mal durch ...
Ähnliche Themen