Grundriss, Hausanordnung EFW 150m2, Keller + Einliegerwohnung - Feedback erwünscht

4,80 Stern(e) 12 Votes
Zuletzt aktualisiert 09.01.2026
Sie befinden sich auf der Seite 8 der Diskussion zum Thema: Grundriss, Hausanordnung EFW 150m2, Keller + Einliegerwohnung - Feedback erwünscht
>> Zum 1. Beitrag <<

H

hanghaus2023

Ich habe mal ein Haus mit 12*12m (geeignet für Einliegerwohnung im EG) ins Grundstück eingezeichnet. Im Vergleich Dein Platzbedarf. Da kommt das Haaus mit 12*12m besser weg. Das OG kann dann durchaus kleiner sein. Oder auch nicht, man spart ja den Keller.


Bauplan: rot schraffierte Grundstücksfläche, blaues schräges Gebäude, grüne Grenzlinien, Maße.
 
K a t j a

K a t j a

Ich habe mal ein Haus mit 12*12m (geeignet für Einliegerwohnung im EG) ins Grundstück eingezeichnet.
Ohne Split wird es in dieser Größe dann schon knifflig mit der Aufteilung, denke ich.
Hier mal eine erste Idee für die Splitvariante:


Grundriss eines Hauses mit Wohnzimmer, Essbereich, Terrasse, Garten und Grundstücksgrenze.


Zweigeschossiger Hausgrundriss mit Wohn-/Essbereich, Küche, Flur, Treppe, Schlafzimmer, Abstellraum.


Grundriss eines Hauses mit Bad, Küche, Büro, Eltern, Schlafen, GWC und Technik.


Zweistöckiges, graues Haus mit schwarzem Dach, umzäuntem Garten und Zufahrt.


Zweistöckiges graues Haus mit dunklem Dach, Garten, Holzzäune und Terrasse.


Zweistöckiges Haus mit grauer Fassade, schwarzem Dach, Terrasse und Holzzaun.


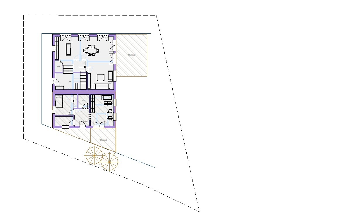
Der Baukörper liegt hier bei 15,5 x 10,5 - da geht aber sicher noch einiges an Zentimetern einzusparen.
 
Y

ypg

Ich setze mal an den vorigen Grundriss an.
Ja, die Kellervariante. Der Keller wird zum UG, und zwar so, wie ich es gestern erklärt habe: seichte Anpassung zum Grundstücksrand zum Osten. Dort könnte sich der Allraum der Hauptwohnung befinden.
Im EG befindet sich der Eingang und die Elternetage (Schlafzimmer, Bad, Büro und TK)
Zwischen Hauptwohnung und Straße liegt die Einliegerwohnung, und zwar luftig und ebenerdig.
Im OG dann die Kinder und der Hauswirtschaftsraum. Oder wwi. Hobbyraum und co. Das alles mit versetztem Pult, es war ja modern gewünscht.
Mein Programm kann keine Hänge, also einfach mal inspirieren lassen und die Fantasie wecken, denn so extrem wie hier ist es ja nicht.
Anders bzw. aufwändiger wäre tatsächlich nur der Versatz des EGs und das versetzte Pult. Das sieht aber immer nach mehr aus als es mehr kostet.


Moderne weiße Villa mit Garten, Holzterrassen, Glasschiebetüren; Person sitzt auf Terrasse.

Moderne, zweigeschossige Villa mit Garage, Einfahrt, Garten und geparktes Auto.
 
Y

ypg

Ich sehe gerade den von Katja, der ist ja ähnlich aufgeteilt.
Allerdings fehlt mir auf diese Frage noch eine Antwort
Aus Eurer Sicht.. was sagt denn der Betroffene dazu?
Denn wenn der Betroffene gar nicht von seinem Glück weiß, was eventuell in seinen Augen sein Unglück bedeutet, dann ist die Überlegung mit der altersgerechten Einliegerwohnung eigentlich über.
 
N

njAiiii

Vorab weiterhin ein großes Dankeschön für die vielen Posts. Ganz besonders Danke an diejenigen von Euch, die neben Hirnschmalz jetzt auch noch Zeit in Zeichnungen investieren.

Das wird das Beste sein. Aber dann soll der Architekt auch das alte Pflichtenheft zerreißen, sonst wird es kein echter Relaunch. Keine Vorgaben einer vermeintlich geschickten "eierlegende Wollmilchsau" Höhenplatzierung.
Wir haben bisher nur Anforderungen angegeben und die wie ein Backlog mit eindeutigen Prioritäten zur Orientierung versehen, falls Entscheidungen zu treffen sind. Das ist (wenn überhaupt) ein Lastenheft. Was genau meinst du mit Pflichtenheft?

Und zum Relaunch: Wir sind die Laien. Was am Ende an Lösung rauskommt, wird doch von uns nicht vorgegeben sondern vom Architekten. Sonst heißt es immer, man soll seine Wünsche und Vorstellungen so gut es nur geht beschreiben. Wie war das mit dem Baden und dem nass machen noch gleich?

Wenn das Haus der Schwiegereltern zu groß ist, soll der einzelne Elternteil doch mit denen eine WG machen. Dann müssen sie auch nicht in der passenden Reihenfolge sterben, um sich nacheinander das Kellerloch frei zu machen, dessen "Schlafzimmer" ein auch mit blühenden Siebzig nicht seniorengerechtes Alkovenbett ist. So taugt die Einliegerwohnung nicht für ein/e Senior/in selbst, sondern nur für die Pflegekraft. Die Einliegerwohnung 60 cm oder sonst was höher zu legen um aus diesem Vorgrab noch hinausschauen zu können, vermochte diese Murksplanung gewiß keineswegs zu retten. Baut lieber ein oberirdisches Gästezimmer, wohin die drei (Schwieger)elternteile abwechselnd für eine Enkelwoche ihrer WG entfliehen können. Als Suite mit Bad, das in der Teenagerzeit der Kinder dann den Morgentoilette-Stau entzerrt.
Nichts für Ungut, aber den einzelnen Elternteil mit den anderen Elternteilen in eine WG ziehen zu lassen, erscheint bei aller Comedy kein Geniestreich sondern auch eher ein Fall von Murksplanung zu sein. Der Rest ist so phantasievoll geschrieben, dass ich mir das nur mit zu viel Restglühwein im Rüssel erklären könnte. Ein Gästezimmer, damit die Leute aus der WG entfliehen als Suite. Ich mag deinen Humor, bin mir aber nicht sicher, ob du hier bei der Zukunftsplanung nicht weit über das Ziel hinaustrompetest.

Diese Murksplanung kommt im Übrigen von einem Architekten mit 20 Jahren Erfahrung und aus unserer Sicht belastbaren guten Referenzen. Wir haben uns sicherlich keinen Gefallen damit getan, das nochmals zu iterieren und vorher den Finger zu heben. Ich will mich da gar nicht freisprechen. Bei all Eurem Feedback - und vermutlich ist der / die eine Architektin von euch - hätte ich mir den Gegenwind auch vom Architekten erwartet und zwar vor Entwurf 1. Um auf Comdey zurückzukommen: Architekten - ist das nicht eher Deine Zunft und wir dürfen diese finanzieren?

Das hast Du recht gut erfasst. Die Stützmauern um die Treppe und die Terrasse sind aber um einiges teurer.
Kannst du das beziffern? Das müssen wir in der Kalkulation in jedem Fall noch präzisieren.

Das nach oben bringen des Hauses ist ja hoffentlich inzwischen vom Tisch. Ist aber durchaus sinnvoll, falls man es wie die Nachbarn löst. Dann aber das Haus auch weiter nach hinten wie die Nachbarn.
Vom Tisch und doch sinnvoll?
Für uns erscheint es in jedem Fall sinnvoll das Haus anzuheben. Jeder cm mehr Höhe bringt uns mehr Licht. Bei dem historischen Baumbestand macht das was aus. Zudem schützen wir uns vor Starkregenereignissen. Und wir gucken auf der SO + SW Seite in die Ferne. Dazu weniger Aushub, mehr Wiederverwendung vorne und weniger Entsorgung. Warum wäre das hoffentlich vom Tisch? Was übersehen wir?

Ich habe selber mal in so einem Kellerapartment gewohnt. Nach 3 Monaten habe ich mir etwas besseres leisten können.
Unser Grundstück hat auch so einen leichte Hanglage. 1m auf dem Grundstück. Da bringt man wenig Licht in den Keller und sieht max. die Grasnarbe.
Vielleicht rechnen wir falsch, aber zur Sicherheit nochmal zu "max die Grasnarbe" sehen.
  • Wir haben brutto -2.95 Geschosshöhe.
  • Ab -2.77 beginnt OKFB.
  • Vereinfacht holen wir 1m über das Grundstück und sind dann bei -1.77.
  • Dann heben wir das Haus um 80cm an angepasst an die Umgebungshöhen. Das macht -1m. Das hieße doch, dass die Grasnarbe auf Hüfthöhe wäre.
  • Bei 87.67 beginnt das Grundstück. Das Haus so in etwa 87.50 bis 87.25 und je breiter es wird sogar 86.hoch. So könnten wir doch wahrscheinlich signifikant weniger Aushub, mehr Wiederverwendung und weniger Entsorgung haben.
Wenn wir von der Variante ohne Keller kommen, könnte es Katjas Meinung nach so sein, dass wir ein Splitlevel benötigen. In Ihrem Entwurf sind das 4 Stufen = 80cm. Das ist noch immer ein Unterschied. Ist der wirklich so brutal? So könnte das in etwa aussehen.


Helles modernes Wohnzimmer mit bodentiefen Glas-Türen zum Garten und Fensterbank-Dekoration.

Großes Holzfenster mit Fensterbank, Gartenblick; Bücherregal links, Decke und Kissen.

Moderne weiße Hausfassade mit großer Glasfront, Terrasse und grünem Rasen.


Ich habe mal ein Haus mit 12*12m (geeignet für Einliegerwohnung im EG) ins Grundstück eingezeichnet. Im Vergleich Dein Platzbedarf. Da kommt das Haaus mit 12*12m besser weg. Das OG kann dann durchaus kleiner sein. Oder auch nicht, man spart ja den Keller.
Wenn ich das richtig sehe, geht dein Vorschlag über die vorgeschriebene Abstandsfläche zum Nachbarn. Dennoch nehmen wir das mal mit.

Ich setze mal an den vorigen Grundriss an.
Ja, die Kellervariante. Der Keller wird zum UG, und zwar so, wie ich es gestern erklärt habe: seichte Anpassung zum Grundstücksrand zum Osten. Dort könnte sich der Allraum der Hauptwohnung befinden.
Im EG befindet sich der Eingang und die Elternetage (Schlafzimmer, Bad, Büro und TK)
Einen riesigen Dank vorab an alle, die hier anfangen zu zeichnen. Ich habe keine Ahnung, wie aufwändig das ist. Aber es kostet Zeit und Hirnschmalz. Das ist nicht selbstverständlich.

Wenn ich das richtig interpretiere, ist der Allraum jetzt um Souterrain, wo bisher die große Kritik gegen die Einliegerwohnung kam. Damit geht die beste SW-Seite an Schlafzimmer und Büro. Das wollen wir nicht.

Ohne Split wird es in dieser Größe dann schon knifflig mit der Aufteilung, denke ich.
Hier mal eine erste Idee für die Splitvariante:

Der Baukörper liegt hier bei 15,5 x 10,5 - da geht aber sicher noch einiges an Zentimetern einzusparen.
Auch hier nochmal ein Dankeschön, dass du den Bleistift virtuell anlegst.
Bei den Maßen 15.5 * 10.5 * 2 Geschosse * 0.8 * 3400 EUR/m2 komme ich auf 885k. Bei 3.2k/m2 wären es noch 833. Das wäre deutlich drüber. Ich kann absolut nicht einschätzen, was das Split Level kostet. Zudem bräuchten wir scheinbar zwei Dächer.
Optisch gefällt uns der Entwurf leider gar nicht. Inhaltlich habt ihr viel kritisiert, dass die Küche nicht an der Terrasse wäre. Das lässt sich hier vielleicht noch drehen, aber man muss dann mit allen Einkäufen und für jede Kleinigkeit aus der Küche jedes mal durchs WZ.

Aber im Grundsatz könnten wir mit dieser Variante und den unterschiedlichen Höhen sowie Dachformen ggf. nochmal das Thema Flachdach aufgreifen. Das würde die Optik wahrscheinlich komplett drehen.

Allerdings fehlt mir auf diese Frage noch eine Antwort

Denn wenn der Betroffene gar nicht von seinem Glück weiß, was eventuell in seinen Augen sein Unglück bedeutet, dann ist die Überlegung mit der altersgerechten Einliegerwohnung eigentlich über.
Darüber wird laufend gesprochen. Ohne die Gespräche gäbe es die Einliegerwohnung gar nicht.
 
K a t j a

K a t j a

Ich kann Dir leider nicht immer folgen. Was meinst Du mit:
Wenn wir von der Variante ohne Keller kommen, könnte es Katjas Meinung nach so sein, dass wir ein Splitlevel benötigen. In Ihrem Entwurf sind das 4 Stufen = 80cm. Das ist noch immer ein Unterschied. Ist der wirklich so brutal? So könnte das in etwa aussehen.
Bei Splitlevel hast Du gar keine Abgrabung an den Terrassen, da der Split idealerweise exakt die Steigung des Hanges abbildet.

Zur Größe des Entwurfs sagte ich bereits, dass die Skizze noch nicht optimiert wurde. Das geht noch deutlich kleiner ohne Qualitätsverlust. Ich optimiere aber keine Skizze, die sowieso nicht in Frage kommt, denn das ist dann wirklich Arbeit. Von daher gibt's erstmal den Vorentwurf, um Ideen abzubilden - von Optik ganz zu schweigen.

Bei Deiner Rechnerei fehlen mir leider auch ein paar Bits. Entscheidend für die Höhenunterschiede ist zu allererst mal das Gefälle nur im Baufenster. Das sind also etwa die 11m Hauslänge und noch ein paar Meter drumrum. Selbst wenn ich das großzügig betrachte, komme ich auf weniger als 1m Höhenunterschied. Bei 3m Geschosshöhe fehlen Dir also mindestens immer 2m Höhe für ein ganzes Geschoss mit Terrassentüren. Haus 80 anheben - bleiben noch 1,20m im Boden. 30cm Fußboden - dann liegen die Fenster im Keller mit 90er Fensterbrett direkt an der Grasnarbe. Aber wo liegt dann Euer Austritt zum Garten im EG? Irgendwo bei 80+50=130 über Bodenniveau? Da willst Du dann sicher anschütten was Du dann aber wieder abfangen musst. Da haben wir noch gar nicht von Starkregen und Entwässerung in dem "Loch", was Du vor der Einliegerwohnung außerdem noch aufreißen willst, gesprochen und es gruselt mich schon leicht.
Sicher musst Du hier sowieso modellieren. Das bringt der Hang nun mal mit sich. Aber es ist doch noch ein Unterschied, wenn Du gleich das ganze Grundstück umgräbst und vor allem abfängst, als nur einen Teil davon.
 
Zuletzt aktualisiert 09.01.2026
Im Forum Grundrissplanung / Grundstücksplanung gibt es 2565 Themen mit insgesamt 88788 Beiträgen


Ähnliche Themen zu Grundriss, Hausanordnung EFW 150m2, Keller + Einliegerwohnung - Feedback erwünscht
Nr.ErgebnisBeiträge
1Grundriss-Entwurf: Einfamilienhaus mit Keller; 560qm Grundstück - Seite 365
2Anordnung Haus und Stellplätze - Kleines Grundstück - Haus mit Einliegerwohnung - Seite 327
3Grundriss-Entwurf Einfamilienhaus in Hanglage, Einliegerwohnung, Doppelgarage - Seite 271
4Grundriss für Einfamilienhaus mit 200m² mit Einliegerwohnung 75 +Keller 140m² +Garage 56m² - Seite 959
5Erster Grundriss L-Form-Haus (190m²) mit Einlieger (80m²), Keller 15
6Eckgrundstück mit Einliegerwohnung 119
7Grundrissoptimierung Einfamilienhaus mit Keller auf kleinem Grundstück - Seite 3178
8Entwurf EFH, 2 Vollgeschosse, Satteldach, kein Keller, Doppelgarage - Seite 431
9Grundriss Einfamilienhaus mit Einliegerwohnung - Seite 677
10Werkplanung Einfamilienhaus 180qm Flachdach mit Keller & Doppelgarage - Seite 2142
11Bungalow mit Einliegerwohnung auf Grund in BY 16
12Grundrissplanung EFH mit 4 Kinderzimmer und Einliegerwohnung 17
13Grundrissplanung Stadtvilla Doppelgarage | Keller | KFW40+ | 205m² 26
14Erste Planung Einfamilienhaus mit Einliegerwohnung auf 600 m2 14
15Grundriss, Bauen mit Baum, Einliegerwohnung und Altbestand 105
16Einfamilienhaus mit 190 m2 und 55 m2 Einliegerwohnung im UG in leichter Hanglage 26
17Einfamilienhaus ca. 155qm + ELW40qm. Erster Entwurf. Verbesserungsvorschläge? 52
18Grundriss Einfamilienhaus ca. 300qm, Grundstück 780qm - Seite 224
19Grundriss Einfamilienhaus ca. 190qm mit Keller auf Millimeterpapier 78
20Planung Grundriss / Erster Entwurf für erstes Feedback 32

Oben