Hausbau - Ratgeber
Bauherrenhilfe
- Bauherrenhilfe vor Vertragsabschluss
-- Warum einen unabhängigen Baubetreuer?
-- Vertragsgrundlagen
-- Bausumme
-- Zahlungsplan zur Kostenkontrolle
-- Pflichten des Bauherren vor Vertragsabschluss
-- Unterlagen beim Hausbau vor Vertragsabschluss
- Bauherrenhilfe nach Vertragsabschluss
-- Bauantrag bei Behörden
-- Bau-Genehmigungsverfahren bei Baubehörden
-- Bauspezifische Versicherungen
-- Bauzeitenplan
-- Baubeginn - die Letzten Pflichten der Bauherrschaft
- Bauherrenhilfe während der Bauzeit
- Gewährleistungsansprüche
- Bauabnahme
Baufinanzierung
- Baufinanzierung - Allgemeine Fragen
- Kreditarten
- Kredit-Konditionen
- Bausparen
- Staatliche Förderungen
- Verkehrswert
- Haushaltsrechnung und Bonität
Hausbau Planung
- Haustypen
- Hausbau Vorbereitungsarbeiten
- Das Baugrundstück
- Baugrund beim Hausbau
- Baurecht
- Gebäudeschutz
- Erdarbeiten und Wasserhaltung
- Stützmauern
- Einfriedung
- Untergeschoss
- Kanalisation
- Tragende Elemente
- Nichttragende Innenwände
- Fundation / Fundament
- Deckenkonstruktionen
- Dächer
- Kaminanlagen
- Treppen Rampen Leitern
- Dachbeläge und Spengler
- Fenster
- Sonnen und Wetterschutz
- Aussenputze
- Einbauten, Küchen, Türen
- Bodenbeläge und Unterlagsböden
- Parkett
- Gips, Wand, Decke
Haustechnik und Energie
- Heiztechnik
- Lüftung und Klimatechnik
- Sanitärtechnik
- Elektrotechnik
- Erneuerbare Energie
Whirlpools / Jacuzzi
Hausbau Magazin
- Baufinanzierung trotz Krise?
- Das Blockhaus
- Moderne Dämmstoffe im Vergleich
- Erker Vor- und Nachteile
- Glasflächen beim Hausbau
- Günstig ein Haus Bauen
- Mediterraner Hausbaustil
- Mehrgenerationenhaus
- Moderne Architektur
- Gartengestaltung leicht gemacht
- Traditioneller Ziegelbau
- Villa als höchster Traum
- Im Eigenheim Ruhestand geniessen
- Altbau sanieren
- Kauf einer Holzgarage
- Immobilienmakler
- Arbeitshandschuhe für den Winter
- Zuhause verschönern
- Outdoor-Plissees
- Schlafzimmer planen
- Terrassenüberdachung
- Wohngebäudeversicherung
- Zaunarten und Eigenschaften
- Hauseingang gestalten
- Der perfekte Grundriss
- Sparsamer heizen im Altbau
- Einfamilienhaus smart finanzieren
- Planung einer PV-Anlage
- Neues Haus
- Immobilienfinanzierung
- Installation einer Photovoltaikanlage
- Asbest erkennen und entfernen
- Gartenpflege im Frühling – worauf achten
- Sauna im Fokus - Wellness zuhause
- Erfolgreich vermieten
- Die perfekte Winterbekleidung
- Das Niedrigenergiehaus
- Der April und seine Stürme
- Architektonische Vielfalt
- Ökologisch und nachhaltig bauen
- Das perfekte Schlafzimmer
- Nachhaltige Energieversorgung
- Zukunftsorientiert bauen
- Nachhaltigkeit beim Hausbau
- Tiny Houses
- Wärmepumpen als nachhaltige Heizvariante
- Maßgeschneiderten Kleiderschrank
- Der richtige Baukredit
- Ratgeber für erfolgreichen Hausbau
- Haus als Altersvorsorge
Do-it-yourself Anleitungen
- Verlegeanleitung für Bodenbeläge und Parkett
- Bodenbeläge und Parkett reinigen und pflegen
- Malerarbeiten am Haus
- Garten Tipps
- Umzug und Reinigung

ᐅ Grundriss / Haus-3D - Ideen / Kritik gerne erwünscht

Erstellt am: 02.01.22 09:20
H
Häuslebau2022
H
Häuslebau2022
02.01.22 09:20
Hallo zusammen,

wir planen derzeit unser Einfamilienhaus und würden uns sehr über jegliche Ideen oder Kritik freuen.
Wir hatten noch keinen Termin beim Architekten, möchten uns dazu jedoch bestmöglich vorbereiten.

Bebauungsplan/Einschränkungen
Größe des Grundstücks 810qm
Hang Maximaler 4,2m Höhenunterschied auf Längsseite von 34m = 12,3% Steigung
Grundflächenzahl = 0,3 => stellt kein Problem dar, Geschossflächenzahl= 1,1 => stellt kein Problem dar
Baugrenze => stellt kein Problem dar, Baufenster => nicht vorgeschrieben, Baulinie => nicht vorgeschrieben
Anzahl Stellplatz 1,5 je Wohnung, also hier 3 Stellplätze
Geschossigkeit => 2 Vollgeschosse und Keller
Dachform => Satteldach
Ausrichtung => Süd-Ost

Anforderungen der Bauherren
Eltern + 2 Kinder
Einliegerwohnung für Bezug im Alter, durch Kinder oder Hobbynutzung
Büro: Homeoffice
Gelegentlich Schlafgäste
offene Küche gewünscht, Kochinsel optional
Anzahl Essplätze : 6
TunnelKamin : Holz als Zusatz-/Dekoheizung
Balkon : nein
Garage : 2 Stellplätze
Großer Garten erwünscht
weitere Wünsche/Besonderheiten/Tagesablauf, gern auch Begründungen, warum dieses oder das nicht sein soll

Hausentwurf
-Do-it-Yourself Entwurf
Wichtig war:
Offener Wohn-Koch-Ess-Bereich mit Schiebetür zwischen Essen und Wohnen (mit L-Form)
kurzer Weg zur Speis vom Eingang
Haupteingang übers Ergeschoss
Tunnelkamin zwischen Essen und Wohnen
Home-Office-Büro
Ankleide ohne direkten Zugang zum Bad

Warum ist der Entwurf so geworden, wie er jetzt ist?
-Do-it-Yourself Entwurf

Was ist eine grundlegende Frage zum Grundriss ?
Alternativen zur Ausrichtung/Position (UG oder EG) der Garage?
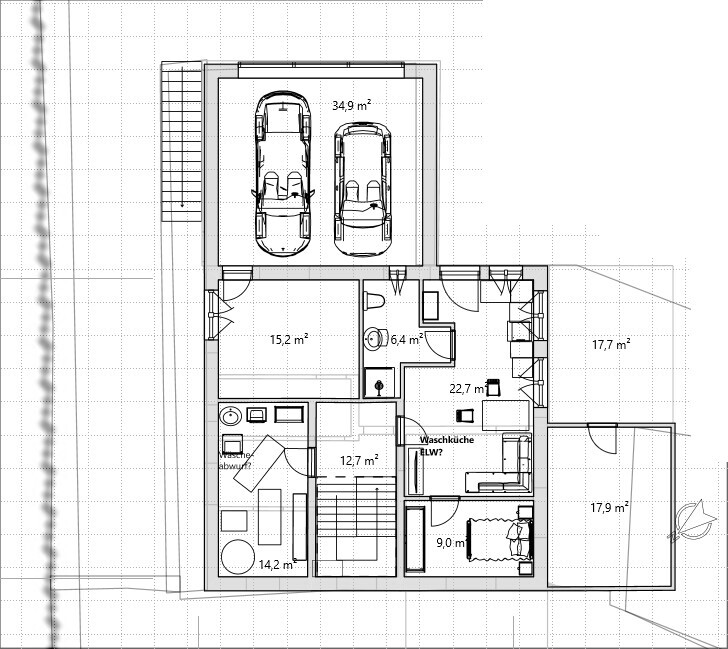
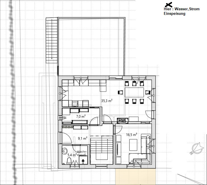
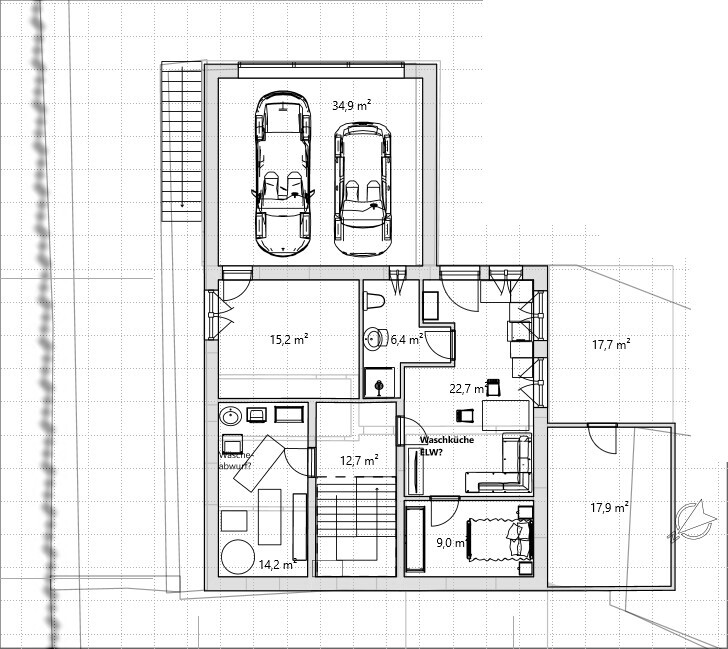
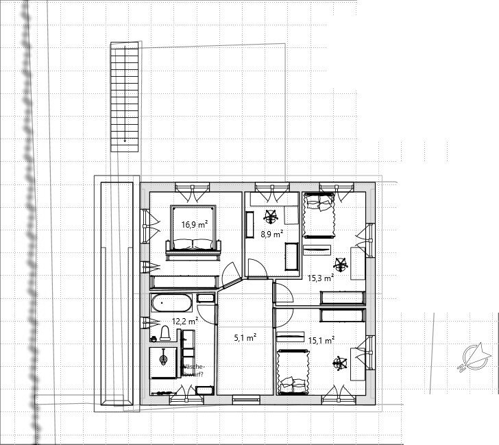
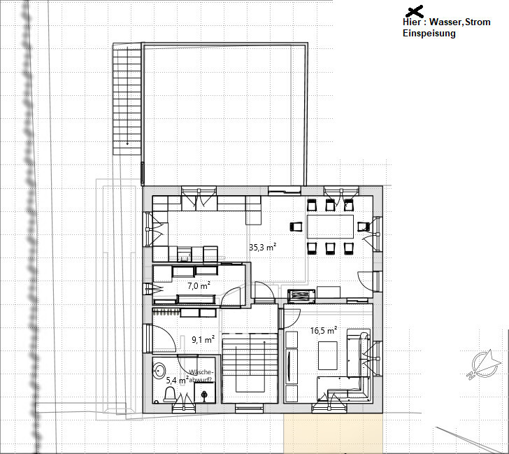
Stellt die Position der Wasser-/Stromeinspeisung ein Problem dar? (s. Bild EG Grundriss)

Vielen Dank für euer Feedback und ein guten neues Jahr 2022!

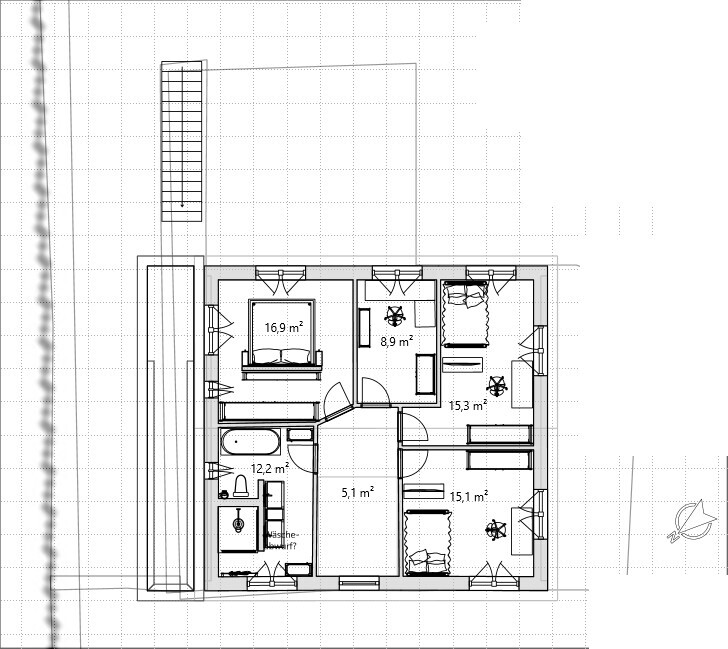
2D-Grundriss eines Hauses mit mehreren Zimmern, Türen, Fenstern und Maßangaben


Grundrissplan eines Hauses mit Wohnzimmer, Küche, Essbereich und Bad im Erdgeschoss


Zweistöckiges 3D-Hausmodell mit rotem Ziegeldach, mehreren Fenstern auf grüner Wiese.


Dreidimensionales Modell eines zweistöckigen Hauses mit Garage und Treppe.


Zweistöckiges beiges Haus mit rotem Dach und Treppe auf grünem Grundstück.


Helles Mehrfamilienhaus mit rotem Ziegeldach, Seitenanbau und Garage.


Grundriss eines Einfamilienhauses mit Doppelgarage, Treppenhaus, Küche, Wohnzimmer und Schlafzimmern.


Mehrstöckiges beige Haus mit rotem Dach, vielen Fenstern, umliegendem Garten und Weg
Y
ypg
02.01.22 10:18
Bitte die offenen Fragen, zb Alter und Budget und den Lageplan (KEIN 3D) vom Grundstück und Umgebung noch nachreichen.
M
Myrna_Loy
02.01.22 10:44
Ich würde mich von der Idee der Einliegerwohnung trennen. Ich kenne sehr viele, die so geplant haben und die Wohnungen werden nicht für diesen Zweck genutzt. Man verbaut sich damit die Grundrisse und hat am Ende deutlich mehr Fläche, als man später braucht und bewirtschaften kann.
H
haydee
02.01.22 11:16
Gibt es einen Plan mit Höhenlinien
Y
ypg
02.01.22 12:56
… und dann ist natürlich interessant, ob ihr das Haus leiden mögt. Es gibt ja auch die Punkte:
(leider funktioniert die Zitat-Funktion teilweise nicht... @admin , ist das so gewollt? Auch die (nicht-)farbigen Abhebungen, die man nicht mehr unterscheiden kann, weil Text in der gleichen Farbe gehalten sind wie Markierungen oder Zitate..)

Blauer Hintergrund mit Do-it-Yourself-Fragenbogen-Text zur Architekturplanung


Für mich tauchen in jedem Raum irgendwelche Sachen auf, wo ich mich frage, was dem Erschaffer da geritten hat.
In der Einliegerwohnung: Schlafzimmer ohne Fenster -> kein Aufenthaltsraum. WC hat eine merkwürdige Ausbuchtung ohne jeglichen Mehrwert. Einliegerwohnung zum Selbstbewohnen im Alter, wenn man ein Haus bewohnt hat? AB hinter der Gerage ohne Direktzugang zum Haus.
Wäsche abwurf sollte man auch planen und nicht nur reinschreiben. Bauelemente, die über alle Geschosse gehen, haben einen großen Einfluß auf den Grundriss.
EG wird dominiert von einer Speis, die in den Baukörper reinragt und sich nicht unterordnen mag. Küche recht langgezogen und dadurch unergonomisch. Garderobenschränke würden, wenn sie ordentlich tief mit 60cm möbliert werden, den Gangfluss und den Hauptverkehrsweg im Wege stehen.
Im OG fällt dann die schräge Wand im Schlafzimmer auf. Sind da jetzt plätzlich die 90Grad-Ecken ausgegangen?
Die Toilette sollte wohl hinter einer Schwamwand verschwinden? Ohne mal zu überlegen, wozu die Schamwand eigentlich dient? Hier trifft der Blick des Eintretenden genau auf die Toi. Die Dusche ist durch angedachte Möblierung nur umständlich begehbar...

Insgesamt sehe ich einen Baukörper, der eher hoch als breit ist, was einem Betrachter ein 3-Familienhaus suggeriert. Ob man das leiden mag, steht auf einem anderen Blatt. Mich spricht das nicht an.
Insgesamt gesehen fehlt mir die fachliche Komponente, um aus einem Hang ein Grundstück zu machen mit einem Haus, was sich von Häusern auf ebenen Grundstücken abheben müsste. Hier gibt man sich sogar Mühe, tragende Wände zu ignorieren und im UG bzw EG nicht aufzubauen.

Gartenverbindungen gibt es gar nicht, eher wird nur das Garagendach genutzt, als wenn das Grundstück nicht als Garten dienen soll bzw vergessen wurde.
Der angeklebte Abstellraum im UG ist wofür? Davor soll doch der Stellplatz der Einliegerwohnung hin, oder? Und vielleicht auch mal darüber nachdenken, dass ein Bewohner/Mieter einer Einliegerwohnung auch ein Eigenleben hat. So möchte man die Besucher oder den Grill vom Mieter wahrscheinlich nicht auf der Dachterrasse miterleben.

Auffällig sind die schmalen Fenster überall, die Balkontür (Dachterrasse) ist kaum begehbar. 150? überall und das dann geteilt...
Häuslebau2022 schrieb:

möchten uns dazu jedoch bestmöglich vorbereiten.
Ich würde tunlichst davon abraten, einem Fachmann die Denkarbeit abzunehmen.
1
11ant
02.01.22 13:55
Ich gehe auf Details ´mal gar nicht ein, auf mich wirkt das Ganze schon falsch begonnen: im vierten Gang angefahren (d.h. gleich mit Grundrißmalen begonnen, statt erst konzeptionell zu arbeiten), und dann ein Bodenplattenhaus auf einen Hangkeller aufgebockt. Der ausgefüllte Fragebogen fehlt hier offenbar nicht nur uns, sondern auch Euch selbst.
https://www.instagram.com/11antgmxde/
https://www.linkedin.com/company/bauen-jetzt/
einliegerwohnungentwurfgrundrissgrundstückhangstellplatzstellplätzeküchetunnelkamingarage