Grundriss für ein Einfamilienhaus

4,40 Stern(e) 7 Votes
Zuletzt aktualisiert 05.10.2025
Sie befinden sich auf der Seite 2 der Diskussion zum Thema: Grundriss für ein Einfamilienhaus
>> Zum 1. Beitrag <<

Climbee

Climbee

So, jetzt wärme ich mein altes Thema mal wieder auf.

Ich habe die ersten Pläne unseres Architekten erhalten (also korrekt gezeichnete Pläne).

Dazwischen war viel Planarbeit, Ideen, die dazu gekommen sind, teilweise wieder verworfen wurden etc.

Aktuell ist es so, daß mit dem Bauamt schon ein Vorab-Agreement besteht; das Haus wird so genehmigt werden. Jetzt geht es uns um die Innenaufteilung und im zweiten Schritt auch um die Außengestaltung.

Aber eines nach dem anderen. Da wir mit dem Schrankzimmer nicht so ganz glücklich waren, sind wir irgendwann darauf gekommen, auf beiden Seiten eine Wiederkehr einzubauen.
Hier mal die laienhafte Skizze, damit man sich das ungefähr vorstellen kann:



Das würde uns im Schrankzimmer ausreichend Platz schaffen und nach vorne den Essbereich sowie Luftraum noch vergrößern.


Skizze eines mehrteiligen Hauses mit mehreren Dachflächen, Bleistiftzeichnung.
 
Climbee

Climbee

Genauso laienhaft eine Skizze der Innenaufteilung im Anhang (Screenshot ist zu groß).

Wie man sieht, wurde heftig radiert...

Handgezeichnete Grundriss-Skizzen zweier Ebenen mit Möbeln und Maßen.
 
RobsonMKK

RobsonMKK

Also, ich bin schockiert...um mit deinen Worten zu sprechen, 2! Warzen? Was geht denn nun ab?
 
Climbee

Climbee

Nach der ersten Kostenschätzung haben wir uns schweren Herzens von der Wiederkehr auf der Westseite (also für's Schrankzimmer) getrennt. Obwohl das ja eigentlich der Grund war, warum wir sowas haben wollten. Nun ja. Aktuell haben wir also nur noch die Wiederkehr nach SO, im Essbereich/Luftraum.

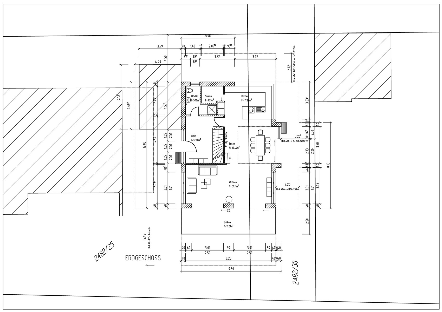
Ich hänge die Pläne des Architekten einfach mal an. Norden ist in der Ecke oben links; also wirklich da wo das Haus oben links die Ecke hat, da ist Norden (so wie in den Plänen im ersten Beitrag angegeben).

Den geplanten Keller haben wir reduziert. Grund sind einerseits Kosten, die explosionsartig ansteigen, wenn wir das gesamte Haus unterkellern. Das ist so wegen der bestehenden Garage, die keinen Keller hat und, wenn wir dort ausheben, aufwendig abgestützt werden müßte. Es stand zur Debatte, daß man ggf. die Garage eher abreißt und neu aufbaut, weil das günstiger wäre. Da haben wir die Reißleine gezogen und den Keller verkleinert.

Allerdings sind wir mit den Plänen so noch nicht ganz zufrieden:

1. Uns sind eigentlich die ganzen Fassaden zu brav und zu langweilig. Da ist noch eine Menge Potential...
2. Schrankzimmer hat aktuell überhaupt kein Fenster, hier muß zumindest ein Dachflächenfenster hin
3. Insgesamt hat die Zeichnerin den Essbereich auf Kosten des Eingangsbereiches vergrößert, also während bei meiner Planung die Mitte des Hauses auch in der Mitte der Treppe lag, ist die Treppe und alle korrespondierenden Wände nach links (Westen) gerutscht. Das ist insgesamt nicht dumm, wir brauchen keinen Tanzsaal als Eingangsbereich, aber dadurch wird auch das Schrankzimmer kleiner und der aktuell dort eingezeichnete Schrank hat keine 60er Tiefe mehr und ist so eigentlich Quatsch... wir kommen wieder mehr dazu, hier doch wieder die Wiederkehr zu machen. So jedenfalls klappt das nicht. Wir brauchen einen 60er Schrank in dem man auch längere Sachen aufhängen kann. Der Kniestock ist nur 1,07, also dort paßt kein Schrank in der nötigen Höhe hin.
4. Küche ist so falsch eingezeichnet. Es bleibt bei unserem Plan und einer Terrassentür zwischen den Küchenzeilen. Aber das ist jetzt noch nicht so entscheidend.
5. Keller: ist uns noch immer zu weit in der Garage drin, der kann noch etwas verkleinert werden. Im Prinzip kann er mit der Treppe anfangen, das langt und ist statisch für die Garage besser.
6. Nochmal Keller: die Aufteilung gefällt uns so gar nicht. Wir haben beide Zimmer nach vorn mit Oberlicht, da will ich nicht den Technikraum haben. Wir wollen die Treppe analog zur oberen Treppe, also mit Austritt nach rechts (Osten), dort den Flur, nach vorne zwei Räume und hinter der Treppe (im Plan jetzt Flur) den Technikraum.
7. Hauswirtschaftsraum im OG: den wollen wir auf Kosten der Sauna um ein paar cm vergrößern und es fehlt noch ein Waschbecken (ich lauf nicht mit dem Kondenswasser vom Trockner bis ins Bad)
8. Dachflächenfenster über Klo/Bidet wird vergrößert. Das schafft nicht nur mehr Licht, sondern auch mehr Kopffreiheit
9. Die Treppe im EG ist zum Eingangsbereich offen und hat zum Wohnbereich eine Wand. Wir wollen es eigentlich genau umgekehrt. Dann würde die Wand für die Treppe auch komplett vom Keller bis OG durch gehen.
10. Fensteraufteilung im Wohnzimmer geht so gar nicht. Abgesehen davon, daß es einfach von außen völlig langweilig und nichtssagend ausschaut, wissen wir auch nicht, wo wir hier z.B. einen TV unterbringen sollen. Die Fensterzeile nach rechts (Osten) kommt auf jeden Fall weg, an die Wand soll ein Regal. Wir überlegen auch, das Fenster nach Süden auf der linken Seite weg zu lassen, dort eine Wand, nicht ganz bis zur Mitte, aber da könnten dann Ofen und TV hin und dafür links ein größeres Fenster, ggf. auch etwas ums Eck.
11. Fenster im Bad sind uns so auch zu langweilig. Ich guck ja ganz gerne aus dem Fenster, wenn ich bade, also da werden wir sicher noch was ändern. Schaut auch so einfach langweilig aus...

Architektenzeichnung: Nordostansicht eines Hauses mit Satteldach, Kamin, Fensterreihen und Anbau.

Architektonischer Schnitt eines kleinen Hauses mit Satteldach und Maßlinien.

Nordwest-Ansicht eines Hauses auf Hang mit Eingangstür, Fensterfront und Terrasse

Architekturzeichnung eines modernen Hauses mit Keller, Hanglage und großer Glasfront

Südwesten-Ansicht eines zweigeschossigen Hauses mit Garage und Balkonbrüstung.

Grundriss Erdgeschoss: Wohnen, Essen, Kochen, Speise, Diele, WC/DU, Balkon.

Grundriss Obergeschoss: Schlafzimmer, Gast, Bad, Ankleide, Sauna, Luftraum, Treppenbereich.

Grundriss Kellergeschoss: Flur, Heizungsraum mit Boiler und WP, Kellerraum, Entlüftung.
 
Zuletzt bearbeitet:
Climbee

Climbee

Nein, nichts Warze: ein Riegel, der durch's Haus geschoben wird. Unsere Verbeugung vor dem Bauhausstil, den wir so gerne gebaut hätten

Nein, es hat sich wirklich so ergeben, weil das mit dem Schrankzimmer sich nicht anders ausging. Und wenn das beidseitig ist, hat das was. Deswegen bin ich mit dem aktuellen Entwurf auch nicht so ganz happy...
Warzenlos ist bei uns am niedrigen Kniestock gescheitert...

Ansonsten haben wir am Freitag einen Termin mit dem Architekten und mir ist ja schon eine ganze Menge dazu eingefallen (noch weit mehr, als hier, das sind die Hauptpunkte), aber vielleicht bekomme ich ja hier noch brauchbaren Input für unser Gespräch.
 
11ant

11ant

ein Riegel, der durch's Haus geschoben wird. Unsere Verbeugung vor dem Bauhausstil, den wir so gerne gebaut hätten
Wo siehst Du an einem Zwerchhaus mit flach geneigtem Schleppdach (oder auch einem Querriegel aus zweien davon) "Bauhaus" ?

Wenn die Liste der Änderungswünsche so lang ist und das Passen der Räume nur durch eine Beunruhigung der Dachlandschaft erreicht werden kann (und dann auch das noch nur mittelprächtig zufriedenstellend), würde ich das als Signal zum Zerknüllen der Pläne verstehen.

Dabei sollte die Liste der zu "bewahrenden" Details möglichst kurz sein, sonst "fängt" sich der Nachfolgerentwurf an der selben Stelle.
 
Zuletzt bearbeitet:
Zuletzt aktualisiert 05.10.2025
Im Forum Grundrissplanung / Grundstücksplanung gibt es 2510 Themen mit insgesamt 87161 Beiträgen


Ähnliche Themen zu Grundriss für ein Einfamilienhaus
Nr.ErgebnisBeiträge
1Grundriss Einfamilienhaus 136m² mit Garage & Keller 17
2Holzdecke und Teilisolierung für Keller mit Garage 15
3Werkplanung Einfamilienhaus 180qm Flachdach mit Keller & Doppelgarage 142
4Grundstück - Baufenster - Lage von Haus und Garage - Seite 644
5Vorschläge vom Architekten enttäuschend - Wie weiter? - Seite 232
6Einfamilienhaus Bauhausstil/Flachdach, 2 Vollgeschosse + Keller 23
7Grundriss Einfamilienhaus ca. 160m², Haupteingang im Keller, Nordhang 1700m² 22
8 2 Vollgeschosse, Durchgang Garage, Hauswirtschaftsraum unter Treppe 25
9Erstes Angebot, 157m2 mit Keller, KFW 70, Garage 14
10Keller oder Garage, oder Keller mit integrierter Garage - Seite 214
11Einfamilienhaus mit >180qm / Keller / Garage 68
12Bauen ohne Keller - Carport, Garage? 18
13Hanghaus 235 qm mit Garage im Keller auf 3600 qm Grundstück 15
14Grundriss für Einfamilienhaus mit 200m² mit Einliegerwohnung 75 +Keller 140m² +Garage 56m² 59
15Grundriss Einfamilienhaus mit Keller und Garage - Seite 950
16Kostenschätzung m2 Wohnfläche Hanghaus mit Keller und Garage - Seite 387
17Einfamilienhaus 2 Stockwerke ohne Keller -Grundriss -Kosten -Umsetzbarkeit? 24
18Häuser ohne Keller: Stauraum Hobby-Keller? 49
19Mit oder ohne Keller Bauen - Erfahrungen - Seite 249
20Eigenentwurf Grundriss Bungalow mit Keller 10

Oben