Hi Leute,
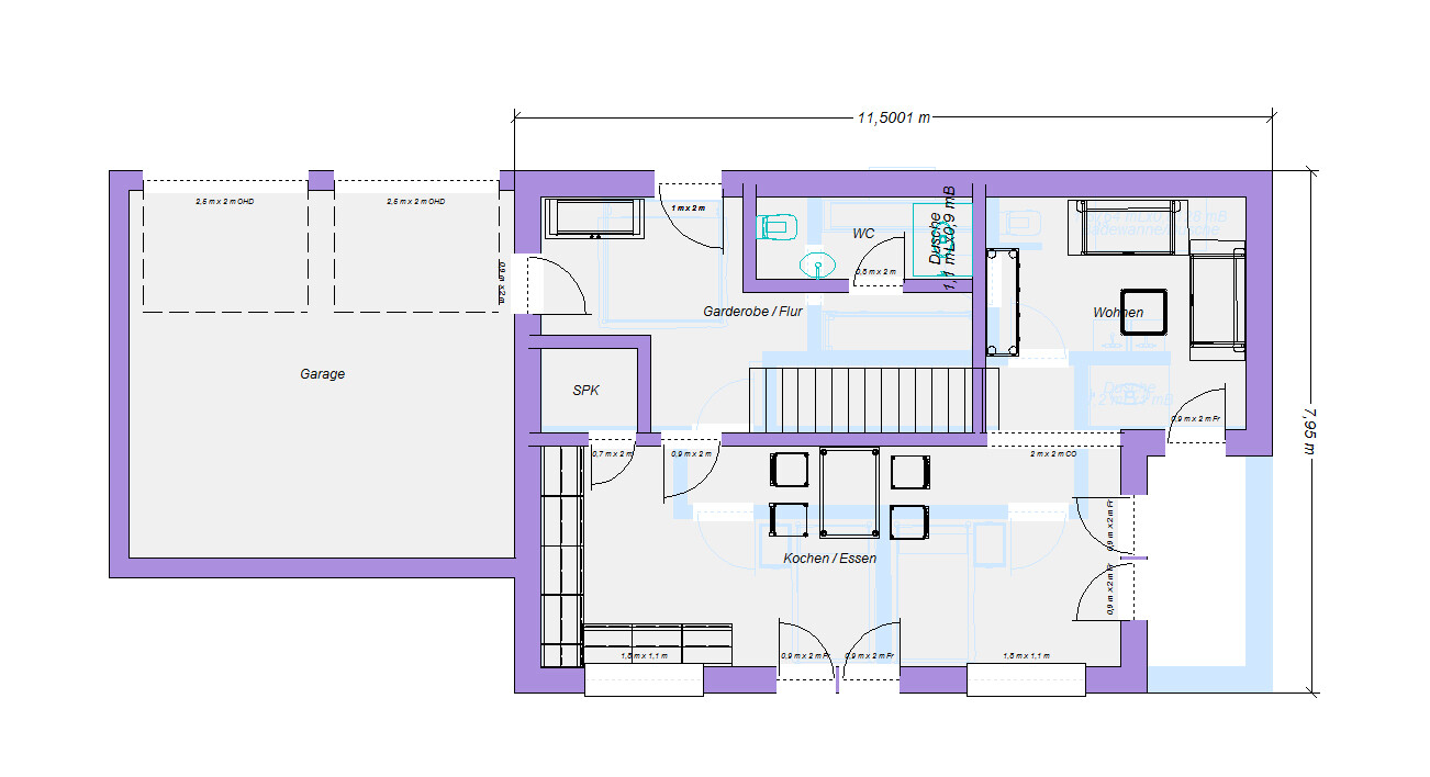
wir haben hier einen Grundriss unseres Hauses. Wir haben dabei im OG mit dem Bad einige Probleme: Wir wollen das berühmte T im Bad integriert haben, was uns aber auf grund der L-förmigen Zimmerform des Bades als schwierig bis unmöglich erscheint ein solches zu integrieren.
Auch soll im EG die Garage an die Hauswand gebaut werden, was uns aber dann vor allem das Fenster des kleinen Bades überdecken würde (das überdeckte Fenster im Wohnzimmerbereich wäre kein Problem; dann gibt's das einfach nicht).
Habt ihr Ideen wie man die Aufteilung besser machen könnte? Uns ist klar, dass eine gerade eine Menge Platz verbraucht, die gerade Treppe ist aber ein Kriterium, welches wir sehr sehr gerne haben wollen.

wir haben hier einen Grundriss unseres Hauses. Wir haben dabei im OG mit dem Bad einige Probleme: Wir wollen das berühmte T im Bad integriert haben, was uns aber auf grund der L-förmigen Zimmerform des Bades als schwierig bis unmöglich erscheint ein solches zu integrieren.
Auch soll im EG die Garage an die Hauswand gebaut werden, was uns aber dann vor allem das Fenster des kleinen Bades überdecken würde (das überdeckte Fenster im Wohnzimmerbereich wäre kein Problem; dann gibt's das einfach nicht).
Habt ihr Ideen wie man die Aufteilung besser machen könnte? Uns ist klar, dass eine gerade eine Menge Platz verbraucht, die gerade Treppe ist aber ein Kriterium, welches wir sehr sehr gerne haben wollen.
Gerade Treppe und Keller - das ist Euer Hauptproblem. Ich weiß ja nicht wie mutig Ihr seid. Aber mal Bildergoogeln nach SH 127 S + 50 von Scanhaus Marlow Marlow. Die Grundrisse sind nur noch bei Google zu finden. Wäre sowas auch denkbar? Dann könnte man in diese Richtung denken. Hauswirtschaftsraum müßte etwas größer und als Büro herhalten.
bandchef schrieb:
Hallo, ich würde dies gerne tun, aber ich weiß nicht was und wo ich da machen soll?!
.In diesem Forum Grundrissplanung ist ein angepinnter Beitrag... dem sollte man folgen.
Allerdings ändern die Informationen nicht die Misere der Treppenlage, wodurch eben hier zu viele Nachteile entstehen.
kaho674 schrieb:
Gerade Treppe und Keller - das ist Euer Hauptproblem.Da stehe ich auf dem Schlauch (?)https://www.instagram.com/11antgmxde/
https://www.linkedin.com/company/bauen-jetzt/
11ant schrieb:
Da stehe ich auf dem Schlauch (?)Ja, beim rumprobieren bekommt man gut die gerade Treppe hin, aber der Kellerzugang landet dann schnell im WZ oder sonst wo. Jedenfalls nicht leicht, was der Architekt, wenn man ihn so nennen darf, wohl auch schon gemerkt hat.Hatte letztens was gesehen, vielleicht wär das was: einmal mit und einmal ohne Büro, wobei die Tür zum Büro auch oder besser vom Flur möglich wäre.
Der Kellerzugang liegt unter der anderen Treppe mit 1/4 Wendelung am Antritt.
Da wir hier ja quasi nix wissen (Baufenster ect.), ist es nur ein Ratespiel.
Hier noch mal der Fragebogen. Einfach kopieren und Antworten eintragen:
Bebauungsplan/Einschränkungen
Größe des Grundstücks
Hang
Grundflächenzahl
Geschossflächenzahl
Baufenster, Baulinie und -grenze
Randbebauung
Anzahl Stellplatz
Geschossigkeit
Dachform
Stilrichtung
Ausrichtung
Maximale Höhen/Begrenzungen
weitere Vorgaben
Anforderungen der Bauherren
Stilrichtung, Dachform, Gebäudetyp
Keller, Geschosse
Anzahl der Personen, Alter
Raumbedarf im EG, OG
Büro: Familiennutzung oder Homeoffice?
Schlafgäste pro Jahr
offene oder geschlossene Architektur
konservativ oder moderne Bauweise
offene Küche, Kochinsel
Anzahl Essplätze
Kamin
Musik/Stereowand
Balkon, Dachterrasse
Garage, Carport
Nutzgarten, Treibhaus
weitere Wünsche/Besonderheiten/Tagesablauf, gern auch Begründungen, warum dieses oder das nicht sein soll
Hausentwurf
Von wem stammt die Planung:
-Planer eines Bauunternehmens
-Architekt
-Do-it-Yourself
Was gefällt besonders? Warum?
Was gefällt nicht? Warum?
Preisschätzung lt Architekt/Planer:
Persönliches Preislimit fürs Haus, inkl Ausstattung:
favorisierte Heiztechnik:
Wenn Ihr verzichten müsst, auf welche Details/Ausbauten
-könnt Ihr verzichten:
-könnt Ihr nicht verzichten:
Warum ist der Entwurf so geworden, wie er jetzt ist? ZB
Standardentwurf vom Planer?
Entsprechende/Welche Wünsche wurden vom Architekten umgesetzt?
Ein Gemisch aus vielen Beispielen aus div. Magazinen...
Was macht ihn in Euren Augen besonders gut oder schlecht?
Was ist die wichtigste/grundlegende Frage zum Grundriss in 130 Zeichen zusammengefasst?
kaho674 schrieb:
Ja, beim rumprobieren bekommt man gut die gerade Treppe hin, aber der Kellerzugang landet dann schnell im WZ oder sonst wo.Ach, so was das gemeint 🙂kaho674 schrieb:
Hatte letztens was gesehen, vielleicht wär das was:Diese Zeichnungen sehen aus, also könnten sie auch in einen anderen Thread passen: www.hausbau-forum.de/threads/allererster-entwurf-des-erdgeschosses.24502/ @MIA_SAN_MIA__ ...https://www.instagram.com/11antgmxde/
https://www.linkedin.com/company/bauen-jetzt/
Ähnliche Themen