ᐅ Grundriss - Eure Meinungen erwünscht!
Erstellt am: 26.10.17 21:33
Hi Leute,
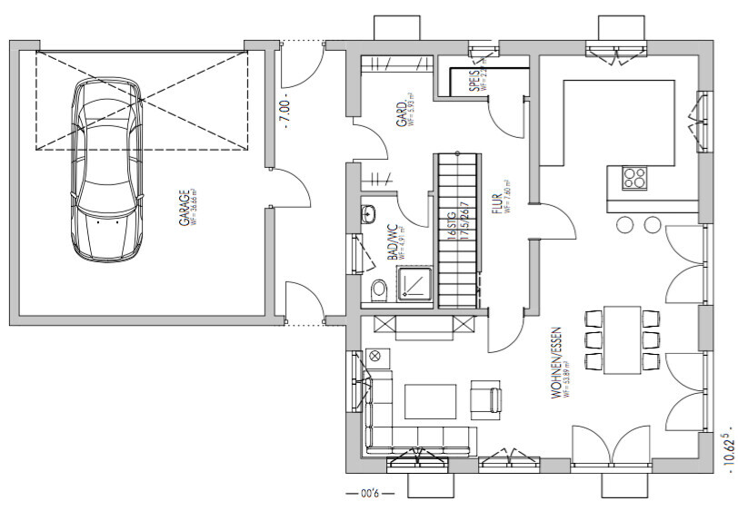
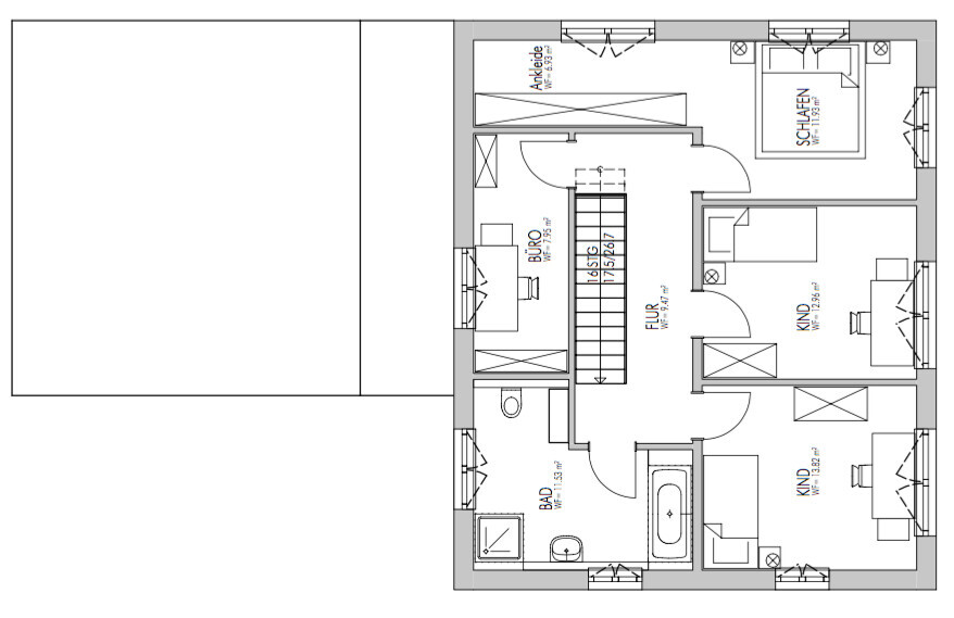
wir haben hier einen Grundriss unseres Hauses. Wir haben dabei im OG mit dem Bad einige Probleme: Wir wollen das berühmte T im Bad integriert haben, was uns aber auf grund der L-förmigen Zimmerform des Bades als schwierig bis unmöglich erscheint ein solches zu integrieren.
Auch soll im EG die Garage an die Hauswand gebaut werden, was uns aber dann vor allem das Fenster des kleinen Bades überdecken würde (das überdeckte Fenster im Wohnzimmerbereich wäre kein Problem; dann gibt's das einfach nicht).
Habt ihr Ideen wie man die Aufteilung besser machen könnte? Uns ist klar, dass eine gerade eine Menge Platz verbraucht, die gerade Treppe ist aber ein Kriterium, welches wir sehr sehr gerne haben wollen.


wir haben hier einen Grundriss unseres Hauses. Wir haben dabei im OG mit dem Bad einige Probleme: Wir wollen das berühmte T im Bad integriert haben, was uns aber auf grund der L-förmigen Zimmerform des Bades als schwierig bis unmöglich erscheint ein solches zu integrieren.
Auch soll im EG die Garage an die Hauswand gebaut werden, was uns aber dann vor allem das Fenster des kleinen Bades überdecken würde (das überdeckte Fenster im Wohnzimmerbereich wäre kein Problem; dann gibt's das einfach nicht).
Habt ihr Ideen wie man die Aufteilung besser machen könnte? Uns ist klar, dass eine gerade eine Menge Platz verbraucht, die gerade Treppe ist aber ein Kriterium, welches wir sehr sehr gerne haben wollen.
Ein T in diesem Bad sehe ich nicht. Dazu müsste der Raum rechteckig sein. Die Garage an die Hauswand zu ziehen würde ja heißen, dass der Eingang nach Planoben muss. Eventuell könnte dann WC mit Garderobe tauschen. Die Treppe müsste vermutlich verschoben werden. Aber das sind so tiefgreifende Veränderungen, im Grunde ist der ganze Grundriss dann für die Tonne.
Was mich viel mehr quält, ist dieser absurde Flur unten. Den würd ich als erstes killen. Aber lohnt sich nicht drüber nachzudenken, wenn der Architekt sowieso noch mal starten muss.

Was mich viel mehr quält, ist dieser absurde Flur unten. Den würd ich als erstes killen. Aber lohnt sich nicht drüber nachzudenken, wenn der Architekt sowieso noch mal starten muss.
kaho674 schrieb:
im Grunde ist der ganze Grundriss dann für die Tonne.ypg schrieb:
Alles ist so schmal... zu schmal.Na, mal gut, daß das mal nicht ich gesagt habe.bandchef schrieb:
Wir wollen das berühmte T im Bad integriert haben,Was genau macht das T so berühmt, daß man es haben muß ? - und: sollte ein Bad nicht zu dem Haus passen, in dem es sich befindet ?bandchef schrieb:
wir haben hier einen Grundriss unseres Hauses.Wo kommt denn der her ?Vom "Stil" der Grundrisse her würde ich sagen, das könnte ein Satteldachhaus sein. Aber das OG hat keine Schrägen.
In der Ankleide und im Arbeitszimmer kann man sich nicht "bewegen", sondern eher "linearverschieben".
https://www.instagram.com/11antgmxde/
https://www.linkedin.com/company/bauen-jetzt/
Es fehlen sämtliche Angaben aus
https://www.hausbau-forum.de/threads/grundrissplanung-unbedingt-vor-beitrag-erstellung-lesen.11714/
- Lageplan
- Nordpfeil
- ein paar Maße
Aber wie meine Vorschreiber sehe ich hier überall nur schmal und Fensterverzicht hier und da usw. Und das T passt nun mal nicht in das L 😉.
https://www.hausbau-forum.de/threads/grundrissplanung-unbedingt-vor-beitrag-erstellung-lesen.11714/
- Lageplan
- Nordpfeil
- ein paar Maße
Aber wie meine Vorschreiber sehe ich hier überall nur schmal und Fensterverzicht hier und da usw. Und das T passt nun mal nicht in das L 😉.
Irgendwo muss ja auch noch ein Keller versteckt sein, richtig?
Ich hielt das T im Bad eigentlich immer für eine Krücke bei der Badgestaltung. Als erstrebenswert wär es mir im Leben nicht eingefallen. Macht das Bad enger und dunkler. Wieso will das jemand? Und jetzt plant man deswegen sogar das Haus um. (was zwar kein Verlust ist, bei der Ausgangslage, aber 🙂 Absurd!
Ich hielt das T im Bad eigentlich immer für eine Krücke bei der Badgestaltung. Als erstrebenswert wär es mir im Leben nicht eingefallen. Macht das Bad enger und dunkler. Wieso will das jemand? Und jetzt plant man deswegen sogar das Haus um. (was zwar kein Verlust ist, bei der Ausgangslage, aber 🙂 Absurd!
Ähnliche Themen