ᐅ Grundriss-Entwurf Stadtvilla ca. 170m² ohne Keller l Eure Meinung
Erstellt am: 09.12.16 12:38
H
Häuslebau3rH
Häuslebau3r09.12.16 12:38Hallo zusammen,
da wir uns nun langsam aber sicher immer weiter in Richtung unseres Bauvorhabens bewegen, haben wir im Zuge der ersten Vorplanungen mit 2 Bauunternehmen schon die ein oder anderen Entwürfe erhalten. Auch wurden erste Ideen hier im Forum bereits schon perfekt umgesetzt (Danke an dieser Stelle an Yvonne).
Aufgrund einiger Abhängigkeiten wurden erste Ideen wieder verworfen, weshalb wir nun aktuell an folgenden Eckdaten angekommen sind. Einen ersten Entwurf findet Ihr unten stehend gezeichnet, bei dem uns nun selbst noch die ein oder anderen Punkte aufgefallen sind.
Bebauungsplan/Einschränkungen
Größe des Grundstücks: 27m Breite und 29m Tiefe
Hang: Nein
Baufenster, Baulinie und –grenze: 8m von Osten aus
Randbebauung: im Norden (Plan wurde bewusst über die erlaubten 9m erstellt.)
Dachform:Walmdach 22Grad(Garage kann etwas abweichen zb.18 Grad / kein Flachdach erlaubt)Stilrichtung: Stadtvilla
Ausrichtung: Straße im Westen, links und rechts, also im Norden und Süden Nachbarbebauung, im Osten schöner Ausblick auf Wiesen.
weitere Vorgaben: keine Flachdachgarage erlaubt
Anforderungen der Bauherren
Stilrichtung, Dachform, Gebäudetyp: Stadtvilla, klassisch weißer Putz, anthrazitfarbenes Dach,
Keller, Geschosse: 2 Vollgeschosse ohne Keller
Anzahl der Personen, Alter : 2-3 (4) Personen im Alter von 27 und 32 (Bei Baubeginn 1 Jahre altes Kind. 2. geplant)
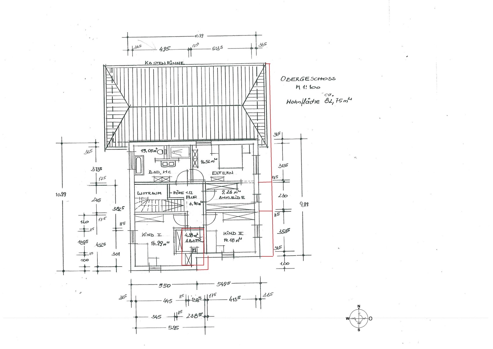
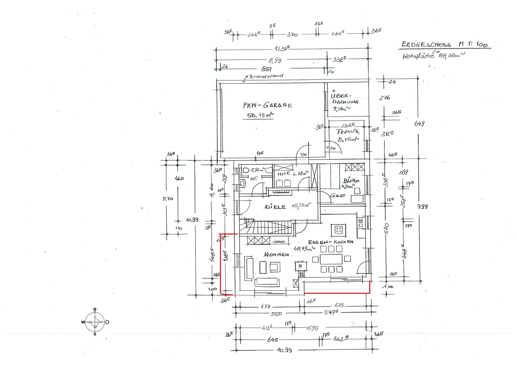
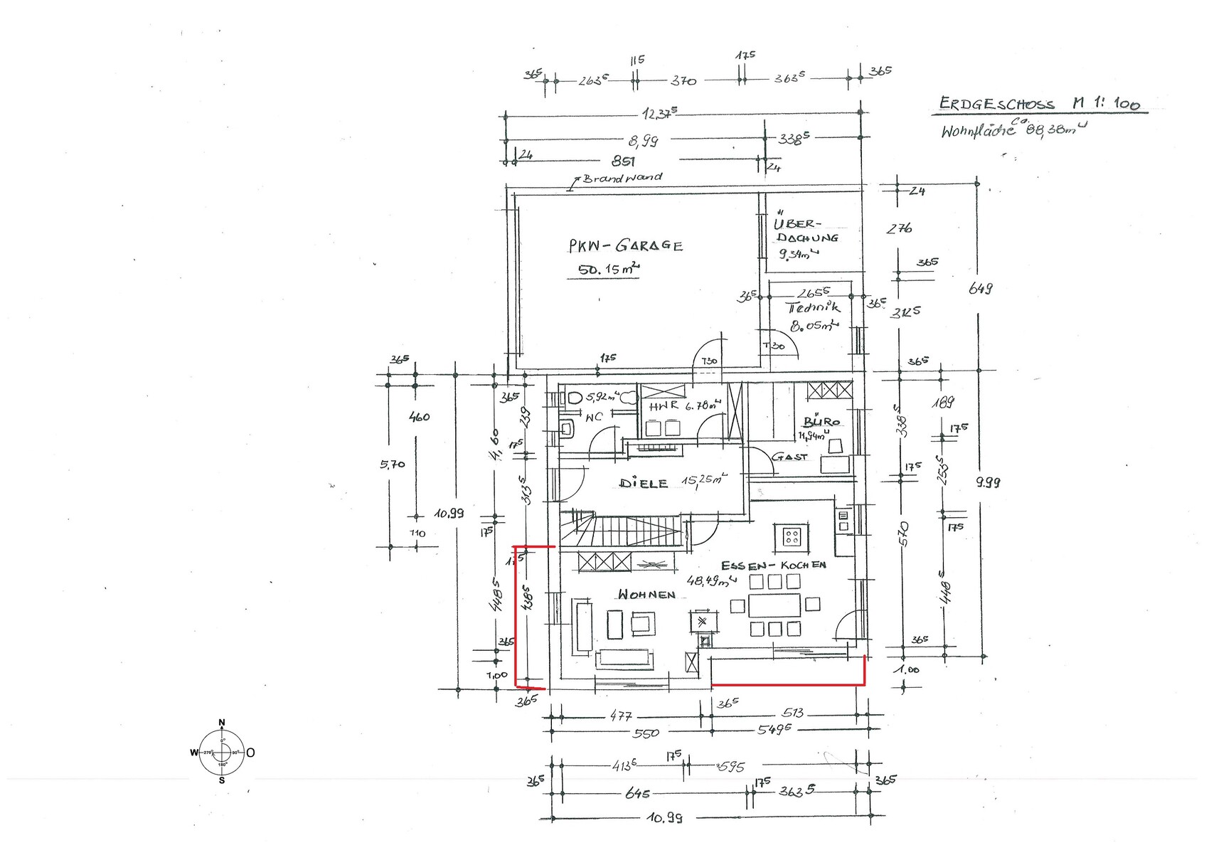
Raumbedarf im EG, OG: Angedacht ca. 85m² / Stock
Büro: Familiennutzung oder Homeoffice?: Familiennutzung mit Kleingewerbe (Nutzung ca. 3-4x/Woche
Schlafgäste pro Jahr: 3-4x/Jahr
offene oder geschlossene Architektur: offener Wohn-, Küchen-, Essbereich gewünscht
konservativ oder moderne Bauweise: modern
offene Küche, Kochinsel: ja
Kamin: ja
Balkon, Dachterrasse: Nein
Garage, Carport: Doppelgarage
weitere Wünsche/Besonderheiten/: Hausform sollte durch Einbringung Abstufung Außenwand aufgelockert werden. (rein kubisch nicht erwünscht).
Hausentwurf
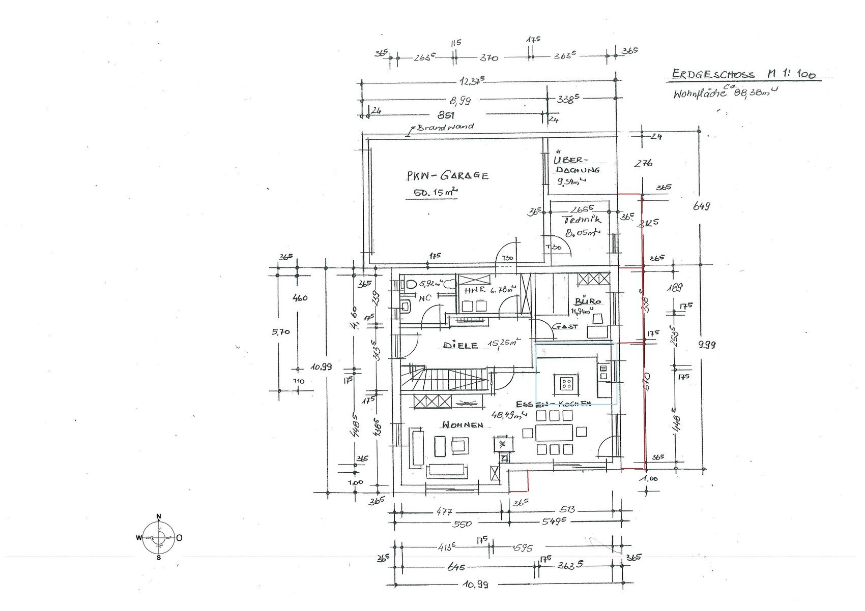
Entwürfe: Es wurde bereits während der Vorplanung mehrere Entwürfe erstellt. Auch wurde ein Entwurf nach ersten Gedanken und Vorgaben im Forum erstellt. Dennoch aufgrund einiger Gegebenheiten ist man davon abgekommen, welches uns nun zu diesem ersten Entwurf in neuer Form bringt.
Was gefällt besonders?: Die Raumteilung durch den Sichtkamin im Wohn-/Essbereich. Aufhebung des rein kubischen Hausgrundrisses durch die Abstufung.
Was gefällt nicht?: Im Aktuellen Entwurf scheint uns die Küche etwas klein im Zusammenspiel mit dem Essbereich (blau gekennzeichnet). Darum wurde mit dem Gedanken gespielt das Haus auf der Ostseite etwas zu vergrößern oder die Abstufung in Süden heraus zu nehmen. Im Zuge letzterem (zu kubisch) würde einer Vergrößerung in Richtung Westen angedacht um die rein kubische Form aufzuheben. (in dem Entwurf rot markiert)
Preisschätzung lt Architekt/Planer: Schlüsselfertigangebot aus Vorplanung mit gleichem Umbauten Raum m³ liegt vor. ca. 320t€
Bauweise: Massivbau nach Energieeinsparverordnung mit 36.5 Stein T9, kein KFW, Gewerke in Einzelvergabe, Planung durch Bauunternehmen, EL aufgrund familiärer / Befreundeter Bauunternehmen sehr gut möglich,
Persönliches Preislimit fürs Haus, inkl Ausstattung: 350t€
favorisierte Heiztechnik: Luftwärmepumpe mit KWLmit Wärmerückgewinnung
Wenn Ihr verzichten müsst, auf welche Details/Ausbauten
-könnt Ihr verzichten: 170-180m² müssen nicht sein, dann auch gerne etwas kleiner. Kontrollierte-Wohnraumlüftung ist kein muss wie auch der Kamin,
-könnt Ihr nicht verzichten: Doppelgarage, 2 Kinderzimmer, Technikraum mit zusätzliche Staufläche / Überdachung Garage
----------------------------------------------------------------------------------------------------------------------------------------
Warum ist der Entwurf so geworden, wie er jetzt ist?
Aufgrund vieler Entwürfe wie oben bereits erwähnt wurden auch in Hinblick auf die Raumaufteilung bereits Abstriche gemacht. z.B. Podesttreppe im Osten zur Aussicht. Des Weiteren wurde final das Büro / Gästezimmer ins EG platziert. Kompromiss daraus, dass der Hauswirtschaftsraum Raum nun ein Zwischenraum ohne Fenster ist, welches so aber verschmerzt wird. Technik / weiterer Vorratsraum zb. Gefriertruhe wurde nach außen hinter die Garage verlegt.
Nachfolgende Wünsche wie z.B ¼ gewendelte Treppe (wurde bezüglich Raumaufteilung auch bewusst so platziert / Schmutzbereich wird nicht als schlimm erachtet), Sichtkamin als Raumteiler zwischen WZ und EZ, Abstellraum für Staubsauger / andere Dinge im OG, Durchgangstür von Elternschlafzimmer ins Badezimmer OG, Elternschlafzimmer zur Aussicht im Osten platziert,
Besonders gut gefällt uns eigentlich die Aufteilung vom Wohn-, Ess-, Küchenbereich natürlich mit der Prämisse das sie evtl. noch etwas zu klein sein könnte. Gerade der blau gekennzeichnete Bereich in der Küche. Wände dort ca. 3,6m x 2.8m was doch sehr eng ist.
Was weiter auch noch geändert werden muss ist die Anordnung des Abstellraums om OG, die sich dann mit Änderung der Außenwände noch ergeben sollte. Aktuell steht dieser zu weit im Kinderzimmer 1. (evtl. längerziehen nach unten).
Anbei nun mir rot laienhaft die Änderungsgedanken angezeichnet.
Wir sind um Feedback und konstruktiver Kritik dankbar.
Gruß 😉
Entwurf:

Lage Grundstück:
da wir uns nun langsam aber sicher immer weiter in Richtung unseres Bauvorhabens bewegen, haben wir im Zuge der ersten Vorplanungen mit 2 Bauunternehmen schon die ein oder anderen Entwürfe erhalten. Auch wurden erste Ideen hier im Forum bereits schon perfekt umgesetzt (Danke an dieser Stelle an Yvonne).
Aufgrund einiger Abhängigkeiten wurden erste Ideen wieder verworfen, weshalb wir nun aktuell an folgenden Eckdaten angekommen sind. Einen ersten Entwurf findet Ihr unten stehend gezeichnet, bei dem uns nun selbst noch die ein oder anderen Punkte aufgefallen sind.
Bebauungsplan/Einschränkungen
Größe des Grundstücks: 27m Breite und 29m Tiefe
Hang: Nein
Baufenster, Baulinie und –grenze: 8m von Osten aus
Randbebauung: im Norden (Plan wurde bewusst über die erlaubten 9m erstellt.)
Dachform:Walmdach 22Grad(Garage kann etwas abweichen zb.18 Grad / kein Flachdach erlaubt)Stilrichtung: Stadtvilla
Ausrichtung: Straße im Westen, links und rechts, also im Norden und Süden Nachbarbebauung, im Osten schöner Ausblick auf Wiesen.
weitere Vorgaben: keine Flachdachgarage erlaubt
Anforderungen der Bauherren
Stilrichtung, Dachform, Gebäudetyp: Stadtvilla, klassisch weißer Putz, anthrazitfarbenes Dach,
Keller, Geschosse: 2 Vollgeschosse ohne Keller
Anzahl der Personen, Alter : 2-3 (4) Personen im Alter von 27 und 32 (Bei Baubeginn 1 Jahre altes Kind. 2. geplant)
Raumbedarf im EG, OG: Angedacht ca. 85m² / Stock
Büro: Familiennutzung oder Homeoffice?: Familiennutzung mit Kleingewerbe (Nutzung ca. 3-4x/Woche
Schlafgäste pro Jahr: 3-4x/Jahr
offene oder geschlossene Architektur: offener Wohn-, Küchen-, Essbereich gewünscht
konservativ oder moderne Bauweise: modern
offene Küche, Kochinsel: ja
Kamin: ja
Balkon, Dachterrasse: Nein
Garage, Carport: Doppelgarage
weitere Wünsche/Besonderheiten/: Hausform sollte durch Einbringung Abstufung Außenwand aufgelockert werden. (rein kubisch nicht erwünscht).
Hausentwurf
Entwürfe: Es wurde bereits während der Vorplanung mehrere Entwürfe erstellt. Auch wurde ein Entwurf nach ersten Gedanken und Vorgaben im Forum erstellt. Dennoch aufgrund einiger Gegebenheiten ist man davon abgekommen, welches uns nun zu diesem ersten Entwurf in neuer Form bringt.
Was gefällt besonders?: Die Raumteilung durch den Sichtkamin im Wohn-/Essbereich. Aufhebung des rein kubischen Hausgrundrisses durch die Abstufung.
Was gefällt nicht?: Im Aktuellen Entwurf scheint uns die Küche etwas klein im Zusammenspiel mit dem Essbereich (blau gekennzeichnet). Darum wurde mit dem Gedanken gespielt das Haus auf der Ostseite etwas zu vergrößern oder die Abstufung in Süden heraus zu nehmen. Im Zuge letzterem (zu kubisch) würde einer Vergrößerung in Richtung Westen angedacht um die rein kubische Form aufzuheben. (in dem Entwurf rot markiert)
Preisschätzung lt Architekt/Planer: Schlüsselfertigangebot aus Vorplanung mit gleichem Umbauten Raum m³ liegt vor. ca. 320t€
Bauweise: Massivbau nach Energieeinsparverordnung mit 36.5 Stein T9, kein KFW, Gewerke in Einzelvergabe, Planung durch Bauunternehmen, EL aufgrund familiärer / Befreundeter Bauunternehmen sehr gut möglich,
Persönliches Preislimit fürs Haus, inkl Ausstattung: 350t€
favorisierte Heiztechnik: Luftwärmepumpe mit KWLmit Wärmerückgewinnung
Wenn Ihr verzichten müsst, auf welche Details/Ausbauten
-könnt Ihr verzichten: 170-180m² müssen nicht sein, dann auch gerne etwas kleiner. Kontrollierte-Wohnraumlüftung ist kein muss wie auch der Kamin,
-könnt Ihr nicht verzichten: Doppelgarage, 2 Kinderzimmer, Technikraum mit zusätzliche Staufläche / Überdachung Garage
----------------------------------------------------------------------------------------------------------------------------------------
Warum ist der Entwurf so geworden, wie er jetzt ist?
Aufgrund vieler Entwürfe wie oben bereits erwähnt wurden auch in Hinblick auf die Raumaufteilung bereits Abstriche gemacht. z.B. Podesttreppe im Osten zur Aussicht. Des Weiteren wurde final das Büro / Gästezimmer ins EG platziert. Kompromiss daraus, dass der Hauswirtschaftsraum Raum nun ein Zwischenraum ohne Fenster ist, welches so aber verschmerzt wird. Technik / weiterer Vorratsraum zb. Gefriertruhe wurde nach außen hinter die Garage verlegt.
Nachfolgende Wünsche wie z.B ¼ gewendelte Treppe (wurde bezüglich Raumaufteilung auch bewusst so platziert / Schmutzbereich wird nicht als schlimm erachtet), Sichtkamin als Raumteiler zwischen WZ und EZ, Abstellraum für Staubsauger / andere Dinge im OG, Durchgangstür von Elternschlafzimmer ins Badezimmer OG, Elternschlafzimmer zur Aussicht im Osten platziert,
Besonders gut gefällt uns eigentlich die Aufteilung vom Wohn-, Ess-, Küchenbereich natürlich mit der Prämisse das sie evtl. noch etwas zu klein sein könnte. Gerade der blau gekennzeichnete Bereich in der Küche. Wände dort ca. 3,6m x 2.8m was doch sehr eng ist.
Was weiter auch noch geändert werden muss ist die Anordnung des Abstellraums om OG, die sich dann mit Änderung der Außenwände noch ergeben sollte. Aktuell steht dieser zu weit im Kinderzimmer 1. (evtl. längerziehen nach unten).
Anbei nun mir rot laienhaft die Änderungsgedanken angezeichnet.
Wir sind um Feedback und konstruktiver Kritik dankbar.
Gruß 😉
Entwurf:
Lage Grundstück:
Anzeige
Hallo Häuslebau3r,
schau mal hier: Grundriss-Entwurf Stadtvilla ca. 170m² ohne Keller l Eure Meinung. Da wird jeder fündig!
schau mal hier: Grundriss-Entwurf Stadtvilla ca. 170m² ohne Keller l Eure Meinung. Da wird jeder fündig!
Es ist so, wie es ist 🙂
Vieles wurde schon ausdiskutiert.
Insofern:
Eine Vertiefung des Essbereiches bringt Euch für die Küche nichts.
Es ist jetzt eine Kochinsel von ca. 1,20 eingezeichnet.
Entzerrung: plansenkrechte Wand von Küche (links) und Büro einfach mal weiter nach links schieben und Ihr gewinnt mind. 50cm mehr Breite in der Küche.
Treppe kann unten dicht gemacht werden -> Vernünftiger Schrankraum für Garderobe und Schuhe.
Westfenster im WZ finde ich zu klein, das würde ich verbreitern.
Grüsse
Vieles wurde schon ausdiskutiert.
Insofern:
Eine Vertiefung des Essbereiches bringt Euch für die Küche nichts.
Es ist jetzt eine Kochinsel von ca. 1,20 eingezeichnet.
Entzerrung: plansenkrechte Wand von Küche (links) und Büro einfach mal weiter nach links schieben und Ihr gewinnt mind. 50cm mehr Breite in der Küche.
Treppe kann unten dicht gemacht werden -> Vernünftiger Schrankraum für Garderobe und Schuhe.
Westfenster im WZ finde ich zu klein, das würde ich verbreitern.
Grüsse
Ähnliche Themen