ᐅ Grundriss Entwurf Neubau Einfamilienhaus - Grundstück 610qm - Meinungen erwünscht
Erstellt am: 03.01.22 00:26
H
house4familyH
house4family03.01.22 00:26---
Leider konnte ich meinen vorherigen Post nicht mehr editieren, deshalb hier erneut, inkl. der Grundrisse und mit besserer Bildqualität.
---
Guten Tag.
Wir möchten auf einem 610 qm großen Grundstück eines Neubaugebiets ein Einfamilienhaus bauen. Hierzu haben wir schon einige Überlegungen angestellt. Mittlerweile konnten wir unsere Wünsche schon filtern und präzisieren. Uns stellt sich zum derzeitigen Zeitpunkt die Frage ob wir etwas nicht mit Bedacht haben oder ob es noch Verbesserungsvorschläge gibt.
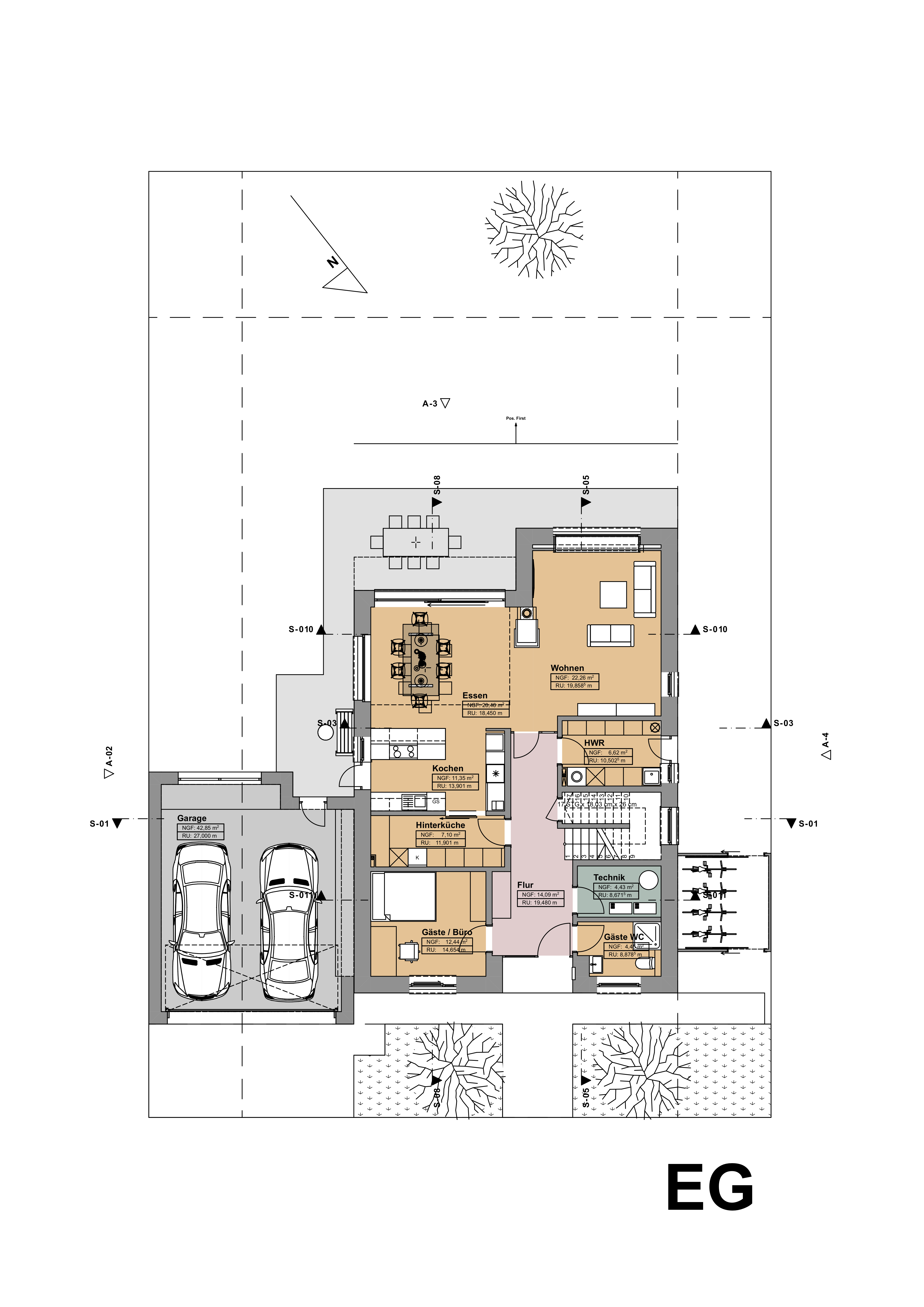
Bebauungsplan







Leider konnte ich meinen vorherigen Post nicht mehr editieren, deshalb hier erneut, inkl. der Grundrisse und mit besserer Bildqualität.
---
Guten Tag.
Wir möchten auf einem 610 qm großen Grundstück eines Neubaugebiets ein Einfamilienhaus bauen. Hierzu haben wir schon einige Überlegungen angestellt. Mittlerweile konnten wir unsere Wünsche schon filtern und präzisieren. Uns stellt sich zum derzeitigen Zeitpunkt die Frage ob wir etwas nicht mit Bedacht haben oder ob es noch Verbesserungsvorschläge gibt.
Bebauungsplan
- Grundflächenzahl 0,3
- Geschossflächenzahl 0,8
- Anzahl Stellplätze: 2
- Geschossigkeit: 1
- Ziegelmauerwerk
- Dachform: Satteldach mit 45 Grad Neigung
- Familie mit zwei Kindern
- Wohnfläche um die 200 qm
- Angestrebte Energieeffizienzklasse KfW-40 EE (deshalb die breiten Außenwände)
- Raumbedarf im EG: Küche + Vorratsraum, offenes Wohn-Esszimmer, Gäste-WC, Haustechnik, Hauswirtschaftsraum mit Zugang zum Garten, Arbeits-/Gästezimmer
- Raumbedarf im OG: 3 Schlafzimmer, 2 Badezimmer
- Zwei Kinderzimmer in etwa gleich groß mit mind. 16 qm
- Kamin, gerne in U-Form und als Raumteiler zwischen Essbereich und Wohnzimmer
- Haustechnikraum für Heizungsanlage, Wärmepumpe mit Warmwasserspeicher, Photovoltaikanlage mit Batteriespeicher und Lüftungsanlage mit Wärmerückgewinnung
- Doppelgarage inkl. Werkbank
- Keller entfällt, da der Grundwasserspiegel zu hoch ist
- Luftraum zur besseren Belichtung des EG sowie für den zentralen Flurbereich im OG gewünscht, gerne geschlossener Luftraum (für mehr Privatsphäre im Wohnbereich und Vermeidung von Essensgerüchen in den Schlafbereichen im OG)
- Aus dem Eltern-Bad gibt es einen Wäscheabwurf, der im Hauswirtschaftsraum ankommt Aktuelle Herausforderung
- Realisierbarkeit der Deckenkonstruktion im Wohn- und Essbereich mit den darüber liegenden Wänden im OG (Frage an die Statiker)
Die Grundrisse entbehren der Bemaßung. Der Blick hinauf in den Luftraum zum Klavierflur würde mich an den Blick aus der Produktionshalle zum Meisterbüro erinnern ;-)
https://www.instagram.com/11antgmxde/
https://www.linkedin.com/company/bauen-jetzt/
https://www.instagram.com/11antgmxde/
https://www.linkedin.com/company/bauen-jetzt/
Abgesehen vom Bildformat, das man erst mal runterladen muss, muss ich sagen, dass mir der Grundriss für's EG extrem gut gefällt.
So oder so ähnlich könnte ich mir das für uns abschauen. Der bietet fast alles was ich mir für's EG wünsche außer einem Stellplatz für ein Buffet im Esszimmer-Bereich.
Edit:
Im OG fallen mir 2 Sachen auf:
- warum der Luftraum wenn man den Platz für ein weiteres Zimmer nutzen könnte?
- keine Dusche im Elternbad? Dann müsste man zum Duschen immer zu den Kindern? Finde ich bissel unpraktisch.
So oder so ähnlich könnte ich mir das für uns abschauen. Der bietet fast alles was ich mir für's EG wünsche außer einem Stellplatz für ein Buffet im Esszimmer-Bereich.
Edit:
Im OG fallen mir 2 Sachen auf:
- warum der Luftraum wenn man den Platz für ein weiteres Zimmer nutzen könnte?
- keine Dusche im Elternbad? Dann müsste man zum Duschen immer zu den Kindern? Finde ich bissel unpraktisch.
Im OG fallen mir vor allem die vielen "Pfuscherecken" auf (was das ist, erklärt gerne der @11ant ) , die zwar auf dem Papier mehr QM in die Zimmer bringen, aber in Wirklichkeit kaum nutzbar sind (z.B. bei den Kinderzimmern).
Ich wäre da für eine klarerer Strukturierung im OG.

P.S.: Die Fenster vom Klavierzimmer zum Luftraum versteh ich nicht. Warum Fenster? Als Schallschutz reichen die vermutlich nicht aus. Warum sind die dann noch unterschiedlich Groß? Wenn Luftraum sein muss, dann lieber offen oder evtl. noch vollverglast oder eben ein weiteres schönes Zimmer ...
Ich wäre da für eine klarerer Strukturierung im OG.
P.S.: Die Fenster vom Klavierzimmer zum Luftraum versteh ich nicht. Warum Fenster? Als Schallschutz reichen die vermutlich nicht aus. Warum sind die dann noch unterschiedlich Groß? Wenn Luftraum sein muss, dann lieber offen oder evtl. noch vollverglast oder eben ein weiteres schönes Zimmer ...
Ähnliche Themen