ᐅ Grundriss 170m2 - Hauswirtschaftsraum zu klein? Verbesserungsvorschläge?
Erstellt am: 09.03.21 09:13
S
Stephan—Hallo zusammen,
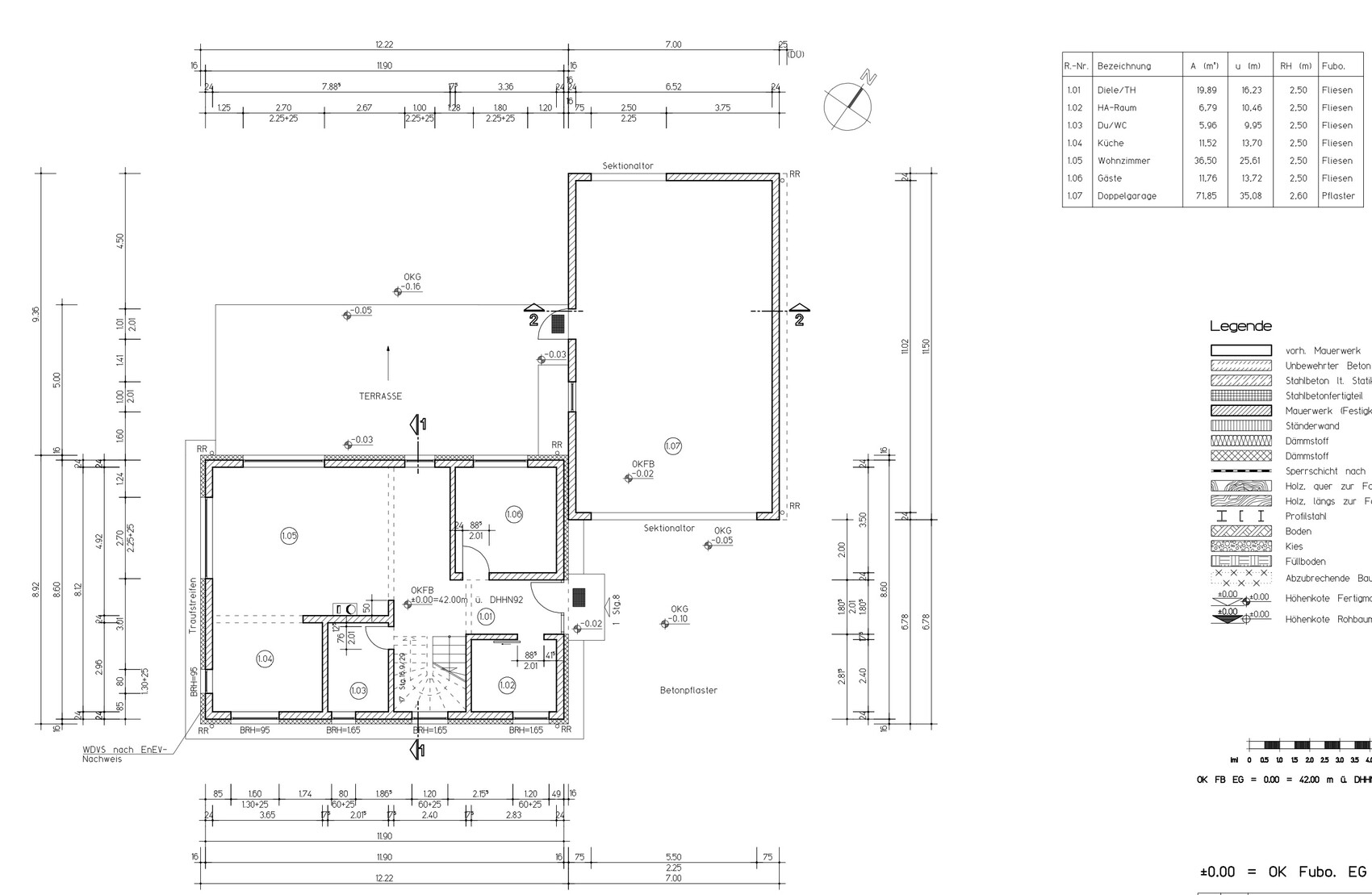
mein Gehirn quillt sich auf seit Tagen mit folgender Frage "Ist der Hauswirtschaftsraum zu klein"? 6,8m2
Mein Plan ist, an der linken Wand Kontrollierte-Wohnraumlüftung und Solepumpe unterzubringen und an der rechten Wand den Trockner und Waschmaschine.
Stromkasten soll in die Garage auswandern.
Habt ihr ggf. sinnvolle Verschiebungen von Wänden als Vorschläge?
Das Gästezimmer /Altersschlafzimmer muss 3,2x3,5m erreichen


mein Gehirn quillt sich auf seit Tagen mit folgender Frage "Ist der Hauswirtschaftsraum zu klein"? 6,8m2
Mein Plan ist, an der linken Wand Kontrollierte-Wohnraumlüftung und Solepumpe unterzubringen und an der rechten Wand den Trockner und Waschmaschine.
Stromkasten soll in die Garage auswandern.
Habt ihr ggf. sinnvolle Verschiebungen von Wänden als Vorschläge?
Das Gästezimmer /Altersschlafzimmer muss 3,2x3,5m erreichen
T
Tolentino09.03.21 09:46Ja, ist auf jedenfall sehr knapp. Kriegt ihr ne Lüftung? Evtl Fenster nur als Oberlicht, dann könnte man die Wand auch noch nutzen...
Die Tür auf jeden Fall positionieren, dass die "kürzere" Wand noch genügend Tiefe für die typische Gerätschaft besitzt (~65 cm)
Die Tür auf jeden Fall positionieren, dass die "kürzere" Wand noch genügend Tiefe für die typische Gerätschaft besitzt (~65 cm)
T
Tolentino09.03.21 09:48102 planuntenrechts "HA-Raum". Mehr ist es eigtl. auch nicht.
Ich kriege ein ähnliches Problem. Noch keine Ahnung wie ich es wirklich löse...
Ich kriege ein ähnliches Problem. Noch keine Ahnung wie ich es wirklich löse...
Tolentino schrieb:
102 planuntenrechts "HA-Raum". Mehr ist es eigtl. auch nicht.
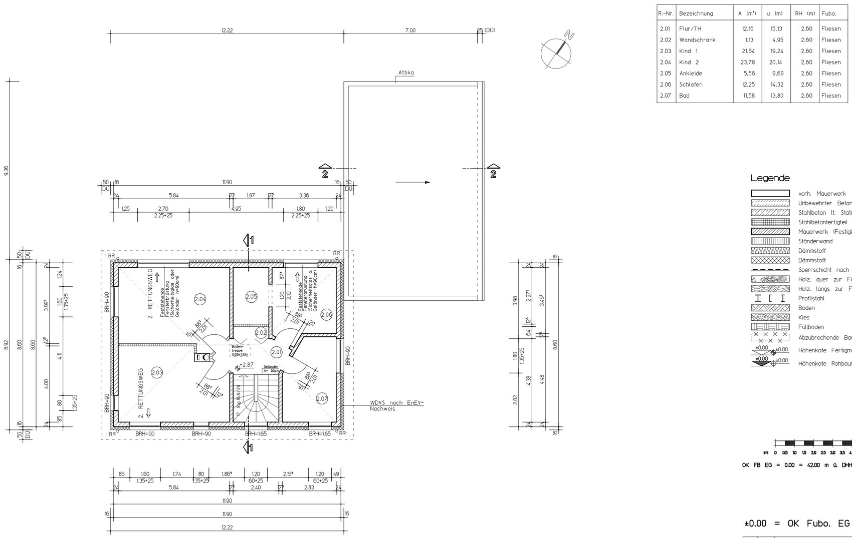
Ich kriege ein ähnliches Problem. Noch keine Ahnung wie ich es wirklich löse...Dank Dir.Schieb die Treppe noch weiter nach planlinks. Die Kinderzimmer oben sind verhältnismäßig zu groß. Auch der Allraum kann das ab.
Der kleine Hauswirtschaftsraum wird unglücklich machen. Zudem möblieren die Techniker es so, wie sie es am besten hinbekommen, das hat dann nichts mehr mit Deiner Feinplanung zu tun.
Ähnliche Themen