Guten Tag zusammen,
wir bauen neu in einem eher ländlich geprägten Teil von NRW in einer dörflich gelegegen alten, aber großen Baulücke. Beiliegende Grundrisse wurden auf Basis eines "Roh-Entwurfes" von mir nach mehreren Beratungsgesprächen durch einen örtlichen Architekten erstellt. Bevor wir Nägel mit Köpfen machen, höre ich gerne noch andere Meinungen und bin für konstruktive Kritik dankbar.
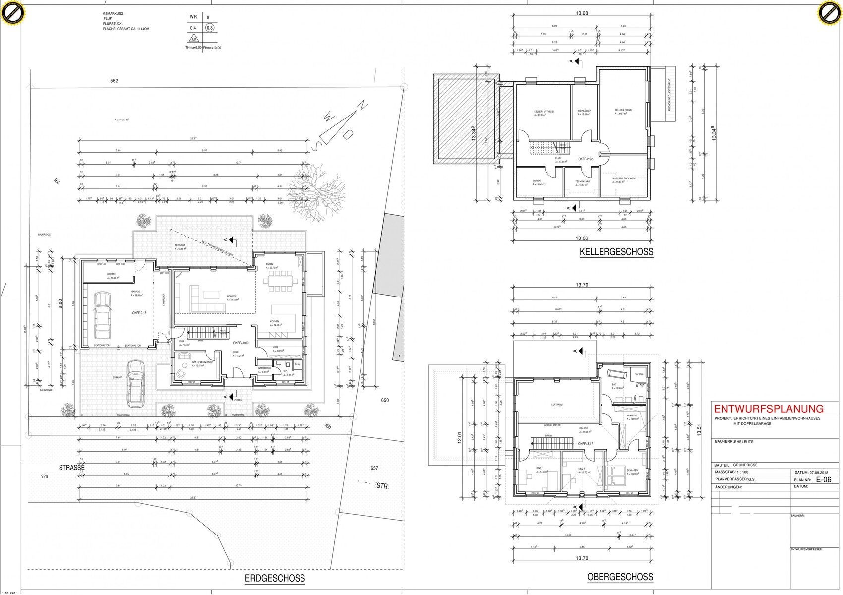
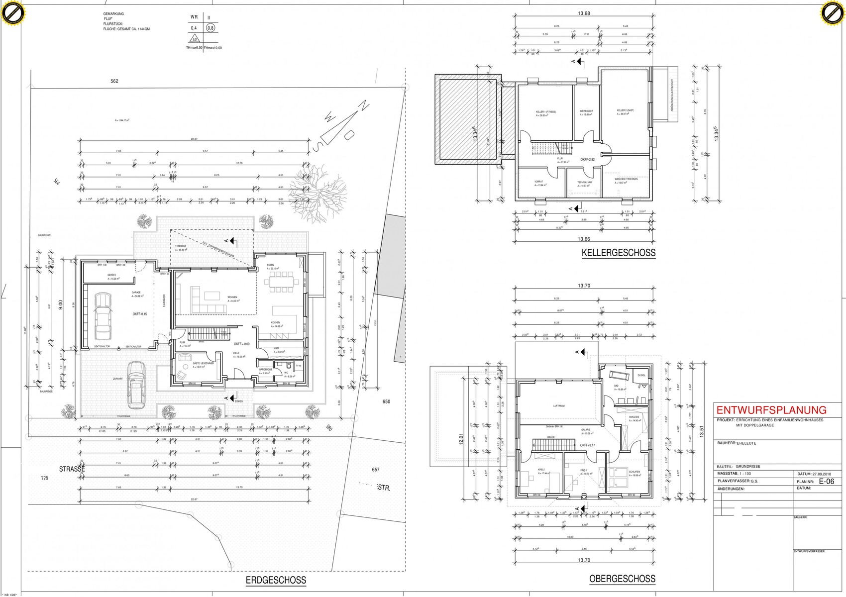
Eine Änderung, die noch nicht im Plan steht, ist ein Windfang, den wir noch einplanen wollen, da sonst aufgrund des offenen Zugangs von der Treppe ins OG über den Luftraum ständig mit Durchzug zu rechnen wäre. Um dabei den Flur weiter großzügig erscheinen zu lassen, wollen wir die Haustür bündig mit der Fassade abschließen lassen und ein Vordach vor dem Hauseingang ergänzen.
Aufgrund des großzügigen Kellers verzichten wir wahrscheinlich auf einen Dachboden, wir finden Sichtdachstühle und die damit verbundene Raumhöhe grundsätzlich auch sehr schön.Evtl. kommt aber oberhalb der Kinderzimmer noch ein Dachboden hin.
Der Teil des Daches oberhalb des Luftraumes ist ein Flachdach. Wir wollen uns die Option erhalten, uns hier später eine Dachterrasse zu schaffen. Zugang wäre dann über eine außen angebrachte Treppe zwischen Garagendach und OG, vom OG aus wäre dieser Bereich begehbar.
Da wir schon in einem kleineren Forum geschrieben haben, hat man uns dort schon zwei wertvolle Hinweise geben können:
-Das Küchenfenster wird noch etwas Richtung esstisch geschoben, da es im aktuellen Plan Raum für Hängeschränke wegnehmen würde.
-Die Statik für das Dach wird anspruchsvoll aufgrund des Luftraumes und nicht übereinander stehender Wände: es wird vermutlich ein 12m langer Stahlträger als Pfette eingezogen werden müssen (oberhab des Geländers der Galerie).
Wir bitten um Meinungen, haben gerade unter anderem noch eines im Sinn: Der Ausblick ist eigentlich am schönsten in Richtung Westen/Sonnenuntergang. Die westliche Ecke des Wohnzimmers ist derzeit noch für den TV reserviert und daher hatten wir dort das Fenster zunächst weggenommen. Überlegung wäre jetzt, die Fensterfront mehr auseinanderzuziehen, so dass ein Fenster in der Ecke wäre und eine breitere Wand dazwischen, vor welcher praktisch mittig im Wohnzimmer der TV steht. So hätte man auch vom Sofa aus "Westblick".
Dabei war die ursprüngliche Eckpositionierung so gedacht, dass man den TV auch über Eck stellen bzw hängen kann, so dass er vom Esstisch aus einsehbar wäre. Wie würdet Ihr es machen?
Checkliste:
Bebauungsplan/Einschränkungen
Größe des Grundstücks inkl. Hinterland /ehem Landwirtschaft gesamt 2800 qm
Hang: vorne liegt Straße fast auf Hohe Garagensohle, rechts 1 m tiefer, nach hinten begradigt sich die Fläche, fällt dann am Ende aber noch ab, so dass 80 m weit entfernter Nachbar ca. 1 Etage tiefer liegt
Grundflächenzahl 0,4
Geschossflächenzahl 0,8
Baufenster, Baulinie und -grenze: in EG-Grundriss links markiert
Randbebauung: links Bungalow, rechts 1,5 geschossig
Geschossigkeit: 2 Vollgeschosse
Dachform beliebig
Stilrichtung beliebig
Ausrichtung Garten Nordwest
Anforderungen der Bauherren
Stilrichtung, Dachform, Gebäudetyp: bevorzugt klassisch "altmodisch", wir lieben alte Burgen, aber so baut man ja heute leider nicht mehr
Anzahl der Personen, Alter: 41+42+ 1,5 (2. Kind/Pflegekind möglich)
Büro: Familiennutzung oder Homeoffice? u.a. für private Dokumente, Bücher etc.
Schlafgäste pro Jahr: bis dato Max. 10 Übernachtungen im Jahr
offene oder geschlossene Architektur: gerne offen
konservativ oder moderne Bauweise: beides hat Vor-/Nachteile, gerne ein Mix
offene Küche, Kochinsel: gerne offen mit Option, später zu schließen, Kochinsel muss nicht.
Anzahl Essplätze: im Alltag 4, mit Gästen schon mal 12-18
Kamin: muss nicht
Musik/Stereowand: muss nicht
Balkon, Dachterrasse: Dachterrasse als Option für später
Garage, Carport: mindestens 1 Doppelgarage
weitere Wünsche/Besonderheiten/Tagesablauf, gern auch Begründungen, warum dieses oder das nicht sein soll: -
Hausentwurf
Von wem stammt die Planung:
-Architekt auf Basis eines Do-it-Yourself-Rohentwurfes
-Preisschätzung lt Architekt/Planer: ca.620t€ inkl Nebenkosten
Persönliches Preislimit fürs Haus, inkl Ausstattung: gerne niedriger, wir haben etwas Einsparpotenzial durch berufliche Beziehungen in der Baubranche / tlw. Eigenleistung und befreundete Handwerker
favorisierte Heiztechnik: Erdwärmepumpe, Tiefenbohrung






wir bauen neu in einem eher ländlich geprägten Teil von NRW in einer dörflich gelegegen alten, aber großen Baulücke. Beiliegende Grundrisse wurden auf Basis eines "Roh-Entwurfes" von mir nach mehreren Beratungsgesprächen durch einen örtlichen Architekten erstellt. Bevor wir Nägel mit Köpfen machen, höre ich gerne noch andere Meinungen und bin für konstruktive Kritik dankbar.
Eine Änderung, die noch nicht im Plan steht, ist ein Windfang, den wir noch einplanen wollen, da sonst aufgrund des offenen Zugangs von der Treppe ins OG über den Luftraum ständig mit Durchzug zu rechnen wäre. Um dabei den Flur weiter großzügig erscheinen zu lassen, wollen wir die Haustür bündig mit der Fassade abschließen lassen und ein Vordach vor dem Hauseingang ergänzen.
Aufgrund des großzügigen Kellers verzichten wir wahrscheinlich auf einen Dachboden, wir finden Sichtdachstühle und die damit verbundene Raumhöhe grundsätzlich auch sehr schön.Evtl. kommt aber oberhalb der Kinderzimmer noch ein Dachboden hin.
Der Teil des Daches oberhalb des Luftraumes ist ein Flachdach. Wir wollen uns die Option erhalten, uns hier später eine Dachterrasse zu schaffen. Zugang wäre dann über eine außen angebrachte Treppe zwischen Garagendach und OG, vom OG aus wäre dieser Bereich begehbar.
Da wir schon in einem kleineren Forum geschrieben haben, hat man uns dort schon zwei wertvolle Hinweise geben können:
-Das Küchenfenster wird noch etwas Richtung esstisch geschoben, da es im aktuellen Plan Raum für Hängeschränke wegnehmen würde.
-Die Statik für das Dach wird anspruchsvoll aufgrund des Luftraumes und nicht übereinander stehender Wände: es wird vermutlich ein 12m langer Stahlträger als Pfette eingezogen werden müssen (oberhab des Geländers der Galerie).
Wir bitten um Meinungen, haben gerade unter anderem noch eines im Sinn: Der Ausblick ist eigentlich am schönsten in Richtung Westen/Sonnenuntergang. Die westliche Ecke des Wohnzimmers ist derzeit noch für den TV reserviert und daher hatten wir dort das Fenster zunächst weggenommen. Überlegung wäre jetzt, die Fensterfront mehr auseinanderzuziehen, so dass ein Fenster in der Ecke wäre und eine breitere Wand dazwischen, vor welcher praktisch mittig im Wohnzimmer der TV steht. So hätte man auch vom Sofa aus "Westblick".
Dabei war die ursprüngliche Eckpositionierung so gedacht, dass man den TV auch über Eck stellen bzw hängen kann, so dass er vom Esstisch aus einsehbar wäre. Wie würdet Ihr es machen?
Checkliste:
Bebauungsplan/Einschränkungen
Größe des Grundstücks inkl. Hinterland /ehem Landwirtschaft gesamt 2800 qm
Hang: vorne liegt Straße fast auf Hohe Garagensohle, rechts 1 m tiefer, nach hinten begradigt sich die Fläche, fällt dann am Ende aber noch ab, so dass 80 m weit entfernter Nachbar ca. 1 Etage tiefer liegt
Grundflächenzahl 0,4
Geschossflächenzahl 0,8
Baufenster, Baulinie und -grenze: in EG-Grundriss links markiert
Randbebauung: links Bungalow, rechts 1,5 geschossig
Geschossigkeit: 2 Vollgeschosse
Dachform beliebig
Stilrichtung beliebig
Ausrichtung Garten Nordwest
Anforderungen der Bauherren
Stilrichtung, Dachform, Gebäudetyp: bevorzugt klassisch "altmodisch", wir lieben alte Burgen, aber so baut man ja heute leider nicht mehr
Anzahl der Personen, Alter: 41+42+ 1,5 (2. Kind/Pflegekind möglich)
Büro: Familiennutzung oder Homeoffice? u.a. für private Dokumente, Bücher etc.
Schlafgäste pro Jahr: bis dato Max. 10 Übernachtungen im Jahr
offene oder geschlossene Architektur: gerne offen
konservativ oder moderne Bauweise: beides hat Vor-/Nachteile, gerne ein Mix
offene Küche, Kochinsel: gerne offen mit Option, später zu schließen, Kochinsel muss nicht.
Anzahl Essplätze: im Alltag 4, mit Gästen schon mal 12-18
Kamin: muss nicht
Musik/Stereowand: muss nicht
Balkon, Dachterrasse: Dachterrasse als Option für später
Garage, Carport: mindestens 1 Doppelgarage
weitere Wünsche/Besonderheiten/Tagesablauf, gern auch Begründungen, warum dieses oder das nicht sein soll: -
Hausentwurf
Von wem stammt die Planung:
-Architekt auf Basis eines Do-it-Yourself-Rohentwurfes
-Preisschätzung lt Architekt/Planer: ca.620t€ inkl Nebenkosten
Persönliches Preislimit fürs Haus, inkl Ausstattung: gerne niedriger, wir haben etwas Einsparpotenzial durch berufliche Beziehungen in der Baubranche / tlw. Eigenleistung und befreundete Handwerker
favorisierte Heiztechnik: Erdwärmepumpe, Tiefenbohrung
Snowy36 schrieb:
Bad und Elternschlafzimmer tauschen ....
Mehrere Gründe :
Norden kühler
Bad besser für Kinder erreichbar
Ihr habt mehr Ruhe vor den Kindern ( die werden ja auch mal älter )Hatte ich auch mal überlegt. Aber das Bad hat von allen Zimmern den schönsten Ausblick in den großen Garten und weit drüber hinaus. Da kann man z.B. von der Badewanne aus draufschauen. Im Schlafzimmer sind wir nur nachts, da bringt uns der Ausblick nichts.
ltenzer schrieb:
-Preisschätzung lt Architekt/Planer: ca.620t€ inkl Nebenkosten
Persönliches Preislimit fürs Haus, inkl Ausstattung: gerne niedrigerDownsizing. Die Hütte ist groß, teilweise sinnlos groß imho. Und da ist sogar noch ein Keller drunter.
Galerie ist ne Riesen Verschwendung. Offener Dachstuhl über 2 Geschosse plus Satteldach drüber wir spannend was Lampenauswahl und Heizung angeht. Der Anblick vom Wohnzimmer gen Dach stelle ich mir auch ziemlich hässlich vor durch den Mix aus Sattel und Flachdach.
Dachterrasse ... lass mal stecken. Wer soll denn da oben rauf wollen? Du hast unten eine Terrasse.
Satteldach auf Garage ist teuer, Hang ist teuer ... puh.
Der Flur würde mir gar nicht gefallen und führt schon fast zum Reset - die Treppe funktioniert imho nicht. Der Flur unten Richtung Garage ist dunkel und ohne Ziel. Geht man nach oben steht man genau auf der falschen Seite der Etage. Langer Laufweg. Irgendwie unglücklich.
Das ist ne Riesen Hütte mit vergleichsweise kleinen Wohnräumen, abgesehen vom Allraum im EG.
Ich hab das Gefühl da wurde viel auf optische Goodies wert gelegt und wenig auf Funktionalität.
Die Ausrichtung des Entwurfs an den Himmelsrichtungen fehlt auch.
Hmn. Reset und 100T€ günstiger machen.
Bookstar schrieb:
So ein Luftraum ist doch nur Platz Verschwendung und ein Riesen Schallproblem. Niemals würde ich sowas bauen, zum ansehen aber ganz nett.Wir haben halt mehr Platz zur Verfügung als wir brauchen
Und der Schallschutz lässt sich durch etwas hochwertigere Türen im OG realisieren.
Ähnliche Themen