ᐅ Hausanbau Split-Level - Der erste Entwurf
Erstellt am: 13.03.18 11:44
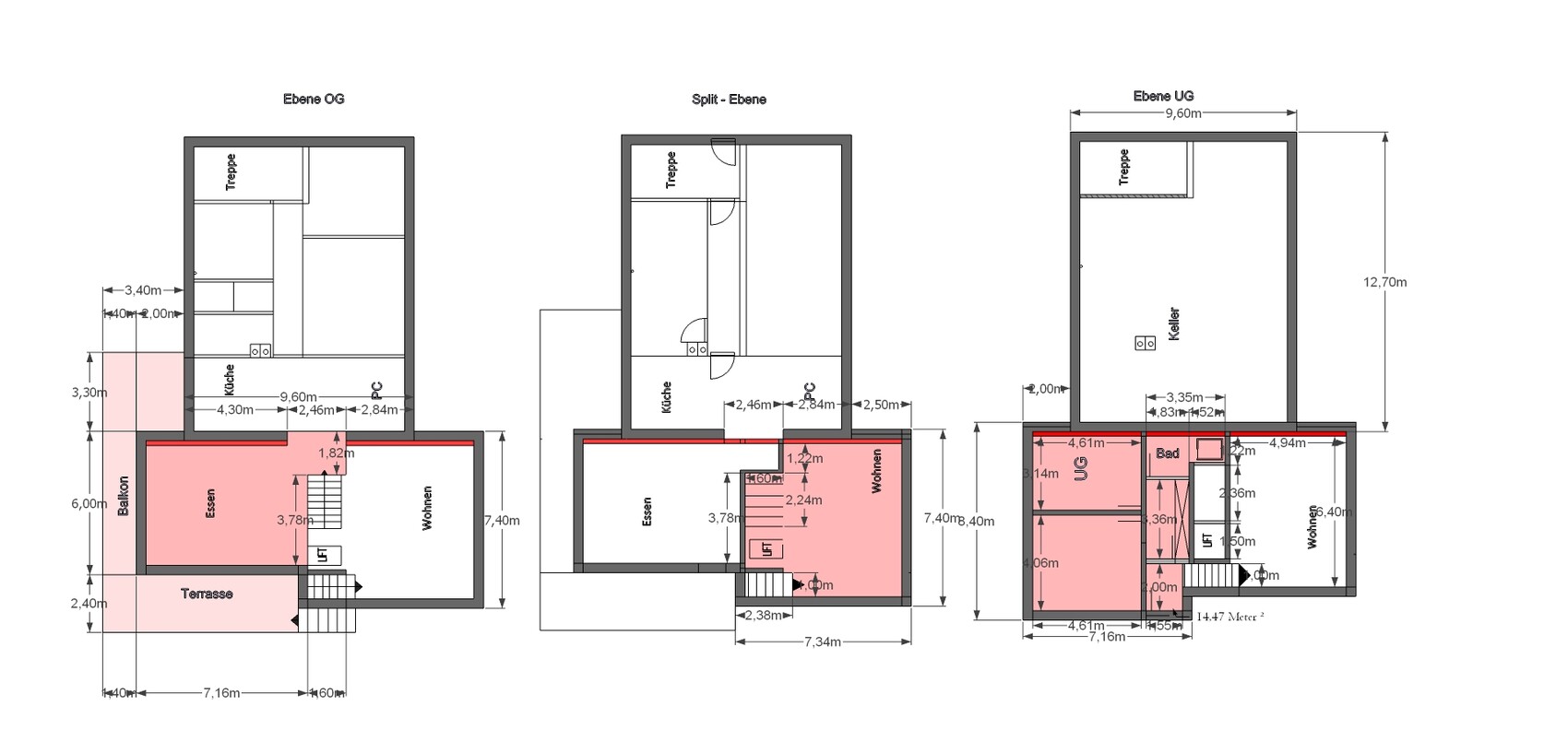
Hallo zusammen. Wir möchten an unser Wohnhaus einen Anbau mit Esszimmer u. Wohnzimmer anbauen.
Aufgrund des Geländeverlaufs kommen wir nicht ohne Keller aus. Da der Keller dann "freistehend" ist, möchten wir diesen ggf. als Schlafzimmer etc. nutzen. Was haben wir bei unseren Vorstellungen alles übersehen?









Aufgrund des Geländeverlaufs kommen wir nicht ohne Keller aus. Da der Keller dann "freistehend" ist, möchten wir diesen ggf. als Schlafzimmer etc. nutzen. Was haben wir bei unseren Vorstellungen alles übersehen?
Für uns war es wichtig, im Neubau-Wohnzimmer ebenerdig in den Garten gehen zu können, daher die Absenkung des Wohnzimmers. Ein Keller unter dem Wohnzimmer ist damit nicht möglich und auch nicht nötig.
Auch der stufenlose Übergang vom Bestand in den Neubau ist gewünscht. Für das Wohnzimmer haben wir nach oben eine Einschränkung durch eine Stromleitung (Abstand 5m) die mit diesem Plan ausgereizt ist. Das Wohnzimmer sollte 3m Zimmerhöhe haben. Daraus hat sich das Split-Level ergeben.
Vom OG des Bestandes aus sollte eine Dachterrasse begehbar sein, daher muss sich die Esszimmerhöhe an die Geschossdecke des Bestandes "annähern". (Dämmung Flachdach ca. 15 - 25 cm)
Ohne UG müssten wir enorm anfüllen, was erhebliche Gründung erfordert hätte bzw. ein Setzrisiko bedeutet hätte. Wir haben uns für das UG mit Terrasse und Balkon, der gleichzeitig eine direkte Verbindung zum Nordgarten ermöglicht, entschieden.
Auch der stufenlose Übergang vom Bestand in den Neubau ist gewünscht. Für das Wohnzimmer haben wir nach oben eine Einschränkung durch eine Stromleitung (Abstand 5m) die mit diesem Plan ausgereizt ist. Das Wohnzimmer sollte 3m Zimmerhöhe haben. Daraus hat sich das Split-Level ergeben.
Vom OG des Bestandes aus sollte eine Dachterrasse begehbar sein, daher muss sich die Esszimmerhöhe an die Geschossdecke des Bestandes "annähern". (Dämmung Flachdach ca. 15 - 25 cm)
Ohne UG müssten wir enorm anfüllen, was erhebliche Gründung erfordert hätte bzw. ein Setzrisiko bedeutet hätte. Wir haben uns für das UG mit Terrasse und Balkon, der gleichzeitig eine direkte Verbindung zum Nordgarten ermöglicht, entschieden.
Ok, jetzt check ich den Plan. Ich fand das "OG" etwas verwirrend. OG im Plan ist aktuell euer EG, oder? Und auf der Höhe soll der Essbereich hin kommen, darunter, UG, geplant Schlafzimmer und das Wohnzimmer liegt dazwischen auf halber Höhe. Auf dem Essbereich ist eine Dachterrasse für das existierende OG (hier brennt mir die Frage auf den Fingern, warum nicht den gesamten Dachbereich als Terrasse nehmen?)
Jetzt check ich's!
Pfiffig gemacht!
Ich würde ggf. noch darüber nachdenken, ob ich die Wand zwischen Essbereich und Küche auch entferne und hier eine (Halb-)Insellösung für die Küche mache. Oder ist keine neue Küche geplant?
Jetzt check ich's!
Pfiffig gemacht!
Ich würde ggf. noch darüber nachdenken, ob ich die Wand zwischen Essbereich und Küche auch entferne und hier eine (Halb-)Insellösung für die Küche mache. Oder ist keine neue Küche geplant?
Genau!
Die Dachterrasse haben wir wegen der Stromleitung verkleinert. Werden wir evtl. bei Fertigstellung des Rohbaus auf die maximale Größe in Abstimmung mit dem Leitungsbetreiber anpassen.
Küche wollten wir so belassen. Wir sind noch am Überlegung, ob wir einen Kombi-Holzofen (eine Seite kochen, andere Seite heizen) zwischen Küche und Esszimmer installieren. Problem wäre das Rauchrohr, das ca. 3m waagerecht durch die Küche zum Kamin gelegt werden müsste.
Die Dachterrasse haben wir wegen der Stromleitung verkleinert. Werden wir evtl. bei Fertigstellung des Rohbaus auf die maximale Größe in Abstimmung mit dem Leitungsbetreiber anpassen.
Küche wollten wir so belassen. Wir sind noch am Überlegung, ob wir einen Kombi-Holzofen (eine Seite kochen, andere Seite heizen) zwischen Küche und Esszimmer installieren. Problem wäre das Rauchrohr, das ca. 3m waagerecht durch die Küche zum Kamin gelegt werden müsste.
Ähnliche Themen