ᐅ Einfamilienhaus, Meinung zu Grundrissplanung
Erstellt am: 09.12.14 14:03
Hallo Gemeinde,
Die erste Planung des Grundrisses ist abgeschlossen und ich würde euch bitten eventuell mal darüber zu schauen, ob ihr etwas gravierendes findet.
Ausgangslage war:
- Einfamilienhaus ohne Keller
- Garage und carport mit Zugang zum Eingangsbereich
- großer Balkon und Terrasse
- 2 Voll Geschosse
- saunaplatz im Bad
- Kamin im Wohnzimmer
Also wenn ihr noch etwas findet, würde ich mich über ein Feedback freuen.
P.S. die Fenster sind noch nicht Final.
Mfg


Die erste Planung des Grundrisses ist abgeschlossen und ich würde euch bitten eventuell mal darüber zu schauen, ob ihr etwas gravierendes findet.
Ausgangslage war:
- Einfamilienhaus ohne Keller
- Garage und carport mit Zugang zum Eingangsbereich
- großer Balkon und Terrasse
- 2 Voll Geschosse
- saunaplatz im Bad
- Kamin im Wohnzimmer
Also wenn ihr noch etwas findet, würde ich mich über ein Feedback freuen.
P.S. die Fenster sind noch nicht Final.
Mfg
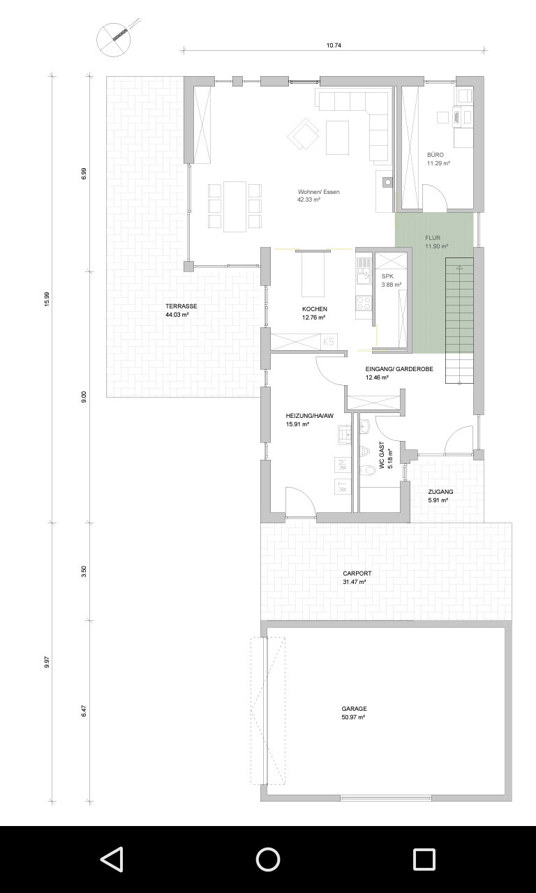
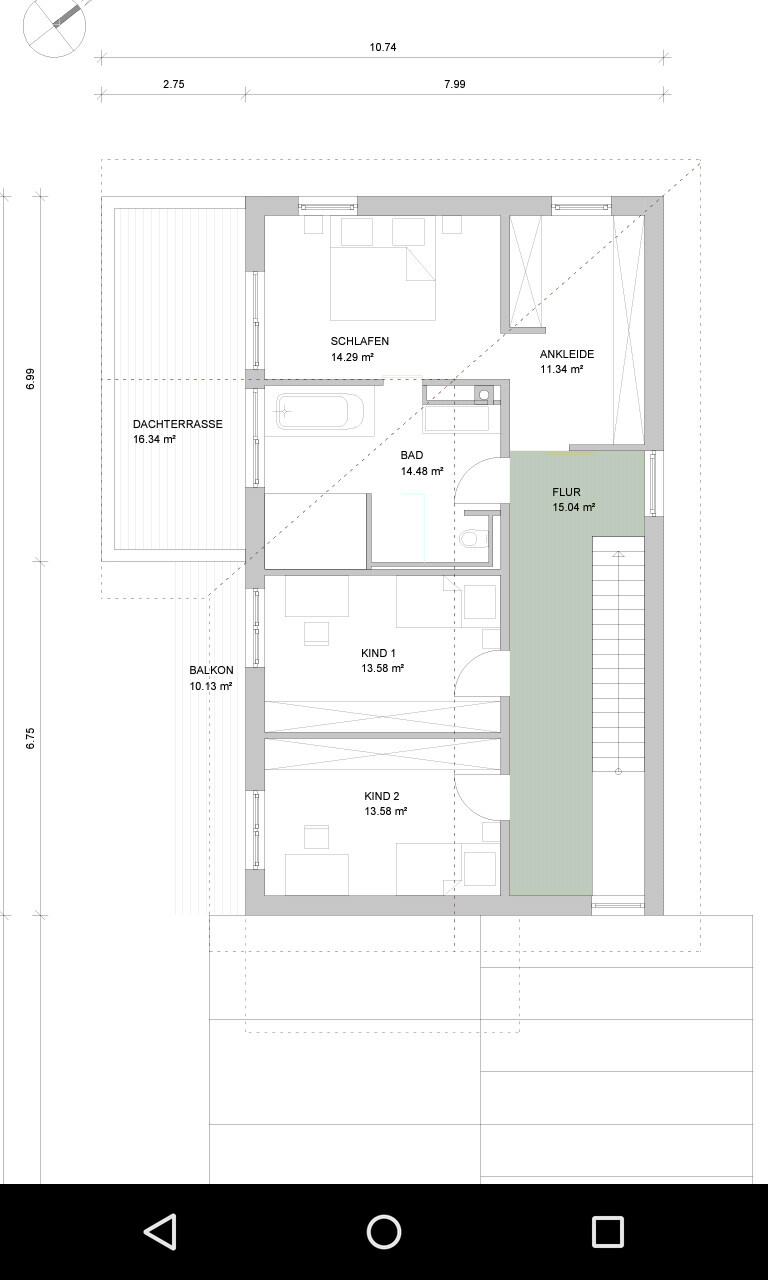
Das Bad ist größer als die Kinderzimmer? Braucht ihr da soviel Platz?
Ich finde den Weg vom Eingang ins Wohnzimmer zu lang.
Mir persönlich wäre das gesamte Haus mit 16m zu lang. Dann noch der überdachte Eingang und die Garage dazu, dann sind es 26m. Ich finde das wirkt recht wuchtig. Wie groß ist euer Grundstück?
Ich finde den Weg vom Eingang ins Wohnzimmer zu lang.
Mir persönlich wäre das gesamte Haus mit 16m zu lang. Dann noch der überdachte Eingang und die Garage dazu, dann sind es 26m. Ich finde das wirkt recht wuchtig. Wie groß ist euer Grundstück?
Mir kommt der Grundriss auch sehr lang gezogen vor, besonders der Flur.
Ungeschickt (das ist aber persönliche Meinung) finde ich ,dass das Bad im OG zwei Zugangstüren hat vom Flur und vom Elternschlafzimmer aus. Ich persönlich würde einen alleinigen Zugang vom Flur bevorzugen oder eventuell sogar die Lösung eines eigenen Kinderbades.
Ungeschickt (das ist aber persönliche Meinung) finde ich ,dass das Bad im OG zwei Zugangstüren hat vom Flur und vom Elternschlafzimmer aus. Ich persönlich würde einen alleinigen Zugang vom Flur bevorzugen oder eventuell sogar die Lösung eines eigenen Kinderbades.
Mir gefällt der Grundriss eigentlich sehr gut. Ich nehme an das "langgezogene" kommt von den Begebenheiten vor Ort?
Gibt es einen Lageplan dazu? Auch die Ansichten würden mich interessieren.
Was ich zu bemängeln hätte ist das vollgestopfte Gäste-WC. Wofür die Dusche wenn's kein Gästezimmer da unten gibt? Oder ist Büro auch gleich Gästezimmer?
Der TV wäre mir persönlich zu weit weg von der Couch.
Außerdem würde ich wohl auch auf die Tür zwischen Bad und Schlafzimmer verzichten. Ankleide und Badtür sind ja direkt nebeneinander.
Ich würde wohl die unnütze Flurfläche im OG den Kindern zugeben.
Ach und zu den Fenstern: wie breit sind diese schmalen Fenster? Lohnt das nach Abzug des Rahmens usw.?
Gibt es einen Lageplan dazu? Auch die Ansichten würden mich interessieren.
Was ich zu bemängeln hätte ist das vollgestopfte Gäste-WC. Wofür die Dusche wenn's kein Gästezimmer da unten gibt? Oder ist Büro auch gleich Gästezimmer?
Der TV wäre mir persönlich zu weit weg von der Couch.
Außerdem würde ich wohl auch auf die Tür zwischen Bad und Schlafzimmer verzichten. Ankleide und Badtür sind ja direkt nebeneinander.
Ich würde wohl die unnütze Flurfläche im OG den Kindern zugeben.
Ach und zu den Fenstern: wie breit sind diese schmalen Fenster? Lohnt das nach Abzug des Rahmens usw.?
Ähnliche Themen