Grundriss Einfamilienhaus Stadtvilla ca. 240m² ohne Keller

4,80 Stern(e) 8 Votes
Zuletzt aktualisiert 20.11.2025
Sie befinden sich auf der Seite 9 der Diskussion zum Thema: Grundriss Einfamilienhaus Stadtvilla ca. 240m² ohne Keller
>> Zum 1. Beitrag <<

D

dkw8074

Naja :) Kinder brauchen eigentlich mehr das Licht als den Ausblick. Aber Du meinst das Schlafzimmer, oder?
Oder im EG? Dann hinterfrage ich allerdings den Essbereich, der im Dunkeln ohne Sicht liegt. Wo man sich aufhält, mal nen Kaffee trinkt, Zeitung liest und Zeit zum Blicken hat.
Und Euer Sofa ist auch eher dem TV und dem Kamin ausgerichtet. Vielleicht solltet Ihr Euch das selbst erklären.
Ein toller Blick ist schön. Aber der leitet nicht Dein Leben. Also ist er zu integrieren, aber nicht umgedreht.
gemeint waren sowohl Schlafzimmer als auch EG, der Essbereich ist nicht optimal - bin ich jetzt überzeugt ja.
 
W

Würfel*

Finde das EG auch zu verwinkelt und zu dunkel. Wenn Du auch noch QM einsparen willst, hätte ich hier mal einen Vorschlag für Dich fürs EG: Küchenerker entfällt komplett (Südsonne kommt auf Terrasse), Küche nahe Outdoorküche, Überdachung (blau angedeutet) deutlich kleiner und weiter links (Abstellraum etwas verkleinert). So hättest Du von Wohnen und Essen aus einen schönen freien Blick in den Garten, ganz ohne Dach und Gartenmöbel. Im WZ könnte unten ein Sitzfenster sein.


Grundriss eines Hauses mit roten Wänden, Garage, Küche, Essbereich und Terrasse



Oben habe ich auch mal versucht, QM einzusparen, in dem ich den schlauchigen, verwinkelten Flur eliminiert habe. Planlinks ist der Aufbau des Hauses nun deutlich schmäler. Die Außenwand oben sitzt bündig mit dem vorgezogenen Abstellraum im EG. Das sollte dann vernünftig aussehen. Vielleicht sind ja Ideen für Dich dabei :)


Grundriss eines Hauses mit roten Außenwänden, mehreren Zimmern, Möbeln, Bad und Treppe.
 
D

dkw8074

Finde das EG auch zu verwinkelt und zu dunkel. Wenn Du auch noch QM einsparen willst, hätte ich hier mal einen Vorschlag für Dich fürs EG: Küchenerker entfällt komplett (Südsonne kommt auf Terrasse), Küche nahe Outdoorküche, Überdachung (blau angedeutet) deutlich kleiner und weiter links (Abstellraum etwas verkleinert). So hättest Du von Wohnen und Essen aus einen schönen freien Blick in den Garten, ganz ohne Dach und Gartenmöbel. Im WZ könnte unten ein Sitzfenster sein.

Anhang anzeigen 71419


Oben habe ich auch mal versucht, QM einzusparen, in dem ich den schlauchigen, verwinkelten Flur eliminiert habe. Planlinks ist der Aufbau des Hauses nun deutlich schmäler. Die Außenwand oben sitzt bündig mit dem vorgezogenen Abstellraum im EG. Das sollte dann vernünftig aussehen. Vielleicht sind ja Ideen für Dich dabei :)

Anhang anzeigen 71420
Vielen Dank für Deinen Input - das sind wirklich großartige Ideen!

Im EG wäre halt die Frage ob nicht beim Fernseher zu viel Licht ist;) Im OG bin ich generell mit der Anordnung der Bäder/WCs nicht ganz glücklich aber Deine Ideen sind auch hier spitze:)
 
D

dkw8074

Vielen Dank für die bisherigen sehr hilfreichen Rückmeldungen und vor allem an @Würfel* für die konkrete Idee der Umgestaltung. Unsere Planung hat das jetzt großteils übernommen, wir fühlen uns mit dem neuen Entwurf schon sehr wohl. Würde mich freuen wenn's nochmal Rückmeldung gibt dazu!

Zwei Perspektiven eines modernen weißen Hauses mit Garage, Auto, Garten und Zaun.


Zwei Ansichten einer modernen weißen Villa mit Pool, Terrasse und Garten.


Grundriss eines Hauses: Garage mit zwei Autos, Küche/Essen, Wohnen, Büro, Diele, Abstellraum.


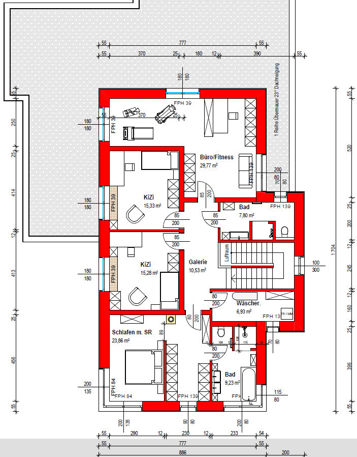
Grundriss eines Wohnhauses mit Schlafzimmer, Kinderzimmer, Büro/Fitness, Bad, Galerie und Wäsche.
 
11ant

11ant

Würde mich freuen wenn's nochmal Rückmeldung gibt dazu!
Das fällt mir schwer, weil die Änderungen freundlich gesagt "nicht allzu augenfällig" sind, d.h. wenn ich "neue" Grundrisse als "Änderungssuchbilder" vorgesetzt bekomme - also so ohne zarte Hinweise, wo die wesentlichen Änderungen liegen - dann ist mein Jagdfieber nicht ausreichend, um diese zu entdecken. Ich sehe also "nichts" (außer, daß es keinen erkennbaren Relaunch gab: die Grundrisse weisen nach wie vor darauf hin, offenbar nicht top down entwickelt worden zu sein).
 
Zuletzt aktualisiert 20.11.2025
Im Forum Grundrissplanung / Grundstücksplanung gibt es 2535 Themen mit insgesamt 87977 Beiträgen


Ähnliche Themen zu Grundriss Einfamilienhaus Stadtvilla ca. 240m² ohne Keller
Nr.ErgebnisBeiträge
1auf welchen dieser Grundrisse können wir weiter aufbauen? - Seite 2287
2Abstellraum vs Treppenschrank - ist der nützlich oder nur ein Hype? 15
3Grundriss Zugang von Küche in Speis / Abstellraum - Seite 329
4Schrank unter der Treppe oder kleiner Abstellraum 11
5Abluft im Schlafzimmer - Zuluft im Abstellraum - Seite 224
6Küche und Abstellraum Etagenwohnung Grundriss optimieren 34
7Extra-Bad vom Schlafzimmer oder doch Abstellraum? 29
8Passende Grundrisse zu all unseren Anforderungen - Seite 466
9Grundriss Fails Sammelthread - Grundrisse die keiner wollte 25
10Zum Notartermin verschiedene Grundrisse erhalten 10
11Beispiel-Grundrisse für lange, schmale Häuser? 18
12Welcher der Zwei Grundrisse ist besser? 20

Oben