Hallo,
wir haben nun einen für uns schon sehr fortgeschrittenen Plan. Es gab lange die Überlegung Keller ja/nein bzw. auch Nutzung DG ja/nein (siehe auch https://www.hausbau-forum.de/threads/ausbau-dachgeschoss-bei-walmdach-als-kellerersatz.43148/)
Bebauungsplan/Einschränkungen
Größe des Grundstücks: 1170m²
Hang: nein
Grundflächenzahl: 0,4
Geschossflächenzahl: 2
Anzahl Stellplatz: 2 Garage + 1 außen
Geschossigkeit: 2
Dachform: Walm
Stilrichtung: Stadtvilla
Ausrichtung: SW
Anforderungen der Bauherren
Stilrichtung, Dachform, Gebäudetyp: Walmdach Stadtvilla
Keller, Geschosse: Versuch ohne Keller auszukommen
Anzahl der Personen, Alter: 2 Erwachsene, 1 Kind aktuell
Raumbedarf im EG, OG: Räume sollen angenehme Größe haben ohne verschwenderisch zu sein
Büro: Familiennutzung oder Homeoffice? beides
Schlafgäste pro Jahr: 10-15 Mal für 2-3 Tage
offene oder geschlossene Architektur: Richtung Garten offen
konservativ oder moderne Bauweise: Mischung hätte ich gemeint, Treppe jedenfalls nicht vom Wohnraum
offene Küche, Kochinsel: Küche mit Speis, Kochinsel komplett freistehend nicht notwendig
Anzahl Essplätze: 6
Kamin: ja
Balkon, Dachterrasse: kein Balkon, Terrasse mit Überdachung
Garage, Carport: ja, 2 Stellplätze plus Motorrad; 1 Stellplatz außen extra
weitere Wünsche/Besonderheiten/Tagesablauf, gern auch Begründungen, warum dieses oder das nicht sein soll
Hausentwurf
Von wem stammt die Planung: Planer eines Bauunternehmens
Was gefällt besonders? Warum? EG und OG gefallen generell sehr gut weil alles umgesetzt was wir uns wünschen;
Was gefällt nicht? Warum? Platzierung Haustechnik - eventuell doch unter der Treppe versuchen?
Preisschätzung lt Architekt/Planer: 700k
Persönliches Preislimit fürs Haus, inkl Ausstattung: 800k
favorisierte Heiztechnik: Erdwärme
Wenn Ihr verzichten müsst, auf welche Details/Ausbauten
-könnt Ihr verzichten: ev. der eine oder andere m²; große Frage ist ob der Raum Büro/Fitness über der Garage so Sinn hat oder dann doch lieber Keller...
-könnt Ihr nicht verzichten: eigenes Elternbad, Wäscheraum oben
Warum ist der Entwurf so geworden, wie er jetzt ist?
Wir hatten recht konkrete Vorstellungen aufgrund Durchsicht Standard-Grundrisse. Gab einige Änderungen und Versuche (Keller ja/nein, DG nutzen ja/nein).
Was macht ihn in Euren Augen besonders gut oder schlecht? Sehr gute Umsetzung unserer Vorstellungen und Budget
Was ist die wichtigste/grundlegende Frage zum Grundriss in 130 Zeichen zusammengefasst?
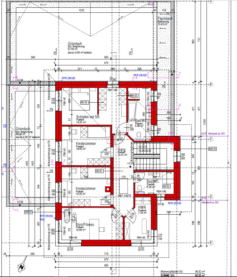
Speziell der ca. 30m² Raum im OG (Büro/Fitness) und der größere Abstellraum hinter der Garage sind als Kellerersatz gedacht. Wie gefällt euch diese Lösung mit der teilweisen Überbauung der Garage im OG?
Vielen Dank für euer Feedback!





wir haben nun einen für uns schon sehr fortgeschrittenen Plan. Es gab lange die Überlegung Keller ja/nein bzw. auch Nutzung DG ja/nein (siehe auch https://www.hausbau-forum.de/threads/ausbau-dachgeschoss-bei-walmdach-als-kellerersatz.43148/)
Bebauungsplan/Einschränkungen
Größe des Grundstücks: 1170m²
Hang: nein
Grundflächenzahl: 0,4
Geschossflächenzahl: 2
Anzahl Stellplatz: 2 Garage + 1 außen
Geschossigkeit: 2
Dachform: Walm
Stilrichtung: Stadtvilla
Ausrichtung: SW
Anforderungen der Bauherren
Stilrichtung, Dachform, Gebäudetyp: Walmdach Stadtvilla
Keller, Geschosse: Versuch ohne Keller auszukommen
Anzahl der Personen, Alter: 2 Erwachsene, 1 Kind aktuell
Raumbedarf im EG, OG: Räume sollen angenehme Größe haben ohne verschwenderisch zu sein
Büro: Familiennutzung oder Homeoffice? beides
Schlafgäste pro Jahr: 10-15 Mal für 2-3 Tage
offene oder geschlossene Architektur: Richtung Garten offen
konservativ oder moderne Bauweise: Mischung hätte ich gemeint, Treppe jedenfalls nicht vom Wohnraum
offene Küche, Kochinsel: Küche mit Speis, Kochinsel komplett freistehend nicht notwendig
Anzahl Essplätze: 6
Kamin: ja
Balkon, Dachterrasse: kein Balkon, Terrasse mit Überdachung
Garage, Carport: ja, 2 Stellplätze plus Motorrad; 1 Stellplatz außen extra
weitere Wünsche/Besonderheiten/Tagesablauf, gern auch Begründungen, warum dieses oder das nicht sein soll
Hausentwurf
Von wem stammt die Planung: Planer eines Bauunternehmens
Was gefällt besonders? Warum? EG und OG gefallen generell sehr gut weil alles umgesetzt was wir uns wünschen;
Was gefällt nicht? Warum? Platzierung Haustechnik - eventuell doch unter der Treppe versuchen?
Preisschätzung lt Architekt/Planer: 700k
Persönliches Preislimit fürs Haus, inkl Ausstattung: 800k
favorisierte Heiztechnik: Erdwärme
Wenn Ihr verzichten müsst, auf welche Details/Ausbauten
-könnt Ihr verzichten: ev. der eine oder andere m²; große Frage ist ob der Raum Büro/Fitness über der Garage so Sinn hat oder dann doch lieber Keller...
-könnt Ihr nicht verzichten: eigenes Elternbad, Wäscheraum oben
Warum ist der Entwurf so geworden, wie er jetzt ist?
Wir hatten recht konkrete Vorstellungen aufgrund Durchsicht Standard-Grundrisse. Gab einige Änderungen und Versuche (Keller ja/nein, DG nutzen ja/nein).
Was macht ihn in Euren Augen besonders gut oder schlecht? Sehr gute Umsetzung unserer Vorstellungen und Budget
Was ist die wichtigste/grundlegende Frage zum Grundriss in 130 Zeichen zusammengefasst?
Speziell der ca. 30m² Raum im OG (Büro/Fitness) und der größere Abstellraum hinter der Garage sind als Kellerersatz gedacht. Wie gefällt euch diese Lösung mit der teilweisen Überbauung der Garage im OG?
Vielen Dank für euer Feedback!
hm, den Fitnessraum finde ich gut. Auch den AB hinter der Garage.
Wohnen und Essen wird dunkel. Ich kann mich erinnern, dass das auch anderswo schon erwähnt wurde. Die Speis tut nichts aus dem schönen Raum. Ganz im Gegenteil: in meinen Augen zerstört sie ein gutes Raumgefühl. Zudem wird die Südwand des Allraumes in meinen Augen gür ein großes Fenster gebraucht.
Toi im OG getrennt von der Dusche (Kinderbad?) ist nicht funktional!
Wohnen und Essen wird dunkel. Ich kann mich erinnern, dass das auch anderswo schon erwähnt wurde. Die Speis tut nichts aus dem schönen Raum. Ganz im Gegenteil: in meinen Augen zerstört sie ein gutes Raumgefühl. Zudem wird die Südwand des Allraumes in meinen Augen gür ein großes Fenster gebraucht.
Toi im OG getrennt von der Dusche (Kinderbad?) ist nicht funktional!
K
K a t j a23.04.22 12:26Nicht schlecht aber das Licht im Wohnbereich wäre mir zu knapp. Kein Fenster auf der Südseite - dadurch auch wenig Licht auf dem esstisch. Steht da ne Kühltruhe in der Fensterlosen Ecke? Erstens - das säh ja blöd aus und zweitens muss dort m.E. ein Fenster hin.
Außerdem:
- Diese lange Trennwand zum WZ mit dem Kamin am Kopfende - kann da die Hälfte weg? Das wird recht dunkel sonst dadurch. Das große Fenster ist zwar hilfreich, aber das Licht hat es sehr schwer um die "Küchenanbauecke". Terrassenüberdachung ist auch noch dran. Die Wand macht es noch schlimmer. Kamin braucht eh niemand.
- Fehlendes Fenster in der Speisekammer. Kleines reicht aber ganz ohne ist Mist.
- Tür von Garage in Garderobe ist überflüssig - der Weg außen rum ist kaum länger, sie nimmt Platz weg, ist schlecht wegen Abgasen und eine zusätzliche Einbruchgefahr.
- Büro und Fitness in einem Raum? Da käm ich nicht drauf. Deswegen würd ich aber auch keinen Keller bauen. Braucht Ihr denn 2 Büros?
- Im Kinderbad auch schlecht ausgeleuchtetes Waschbecken. WC nochmal extra? Ist das nicht bissl übertrieben?
- Schade, dass das Schlafzimmer direkt an ein Kinderzimmer grenzt. In der Preisklasse wäre mir das zu blöd. Eventuell tauscht man besser mit dem Fitnessraum.
- Haustechnik sieht knapp aus. Abstellraum Garage hingegen riesig. Das alles mit Flachdach überdacht - das wird ein kleiner Batzen, der mir zu teuer wäre.
Insgesamt m.E. nicht gut zum Licht ausgerichtet. Das würde mich so sehr stören, dass ich vermutlich von vorn beginnen würde.
Außerdem:
- Diese lange Trennwand zum WZ mit dem Kamin am Kopfende - kann da die Hälfte weg? Das wird recht dunkel sonst dadurch. Das große Fenster ist zwar hilfreich, aber das Licht hat es sehr schwer um die "Küchenanbauecke". Terrassenüberdachung ist auch noch dran. Die Wand macht es noch schlimmer. Kamin braucht eh niemand.
- Fehlendes Fenster in der Speisekammer. Kleines reicht aber ganz ohne ist Mist.
- Tür von Garage in Garderobe ist überflüssig - der Weg außen rum ist kaum länger, sie nimmt Platz weg, ist schlecht wegen Abgasen und eine zusätzliche Einbruchgefahr.
- Büro und Fitness in einem Raum? Da käm ich nicht drauf. Deswegen würd ich aber auch keinen Keller bauen. Braucht Ihr denn 2 Büros?
- Im Kinderbad auch schlecht ausgeleuchtetes Waschbecken. WC nochmal extra? Ist das nicht bissl übertrieben?
- Schade, dass das Schlafzimmer direkt an ein Kinderzimmer grenzt. In der Preisklasse wäre mir das zu blöd. Eventuell tauscht man besser mit dem Fitnessraum.
- Haustechnik sieht knapp aus. Abstellraum Garage hingegen riesig. Das alles mit Flachdach überdacht - das wird ein kleiner Batzen, der mir zu teuer wäre.
Insgesamt m.E. nicht gut zum Licht ausgerichtet. Das würde mich so sehr stören, dass ich vermutlich von vorn beginnen würde.
ypg schrieb:
hm, den Fitnessraum finde ich gut. Auch den AB hinter der Garage.
Wohnen und Essen wird dunkel. Ich kann mich erinnern, dass das auch anderswo schon erwähnt wurde. Die Speis tut nichts aus dem schönen Raum. Ganz im Gegenteil: in meinen Augen zerstört sie ein gutes Raumgefühl. Zudem wird die Südwand des Allraumes in meinen Augen gür ein großes Fenster gebraucht.
Toi im OG getrennt von der Dusche (Kinderbad?) ist nicht funktional!Vielen Dank! Ja, das Licht-Thema hatten wir wohl schon im Thread bzgl. Dachgeschoss. Leider aber ist die Speis für uns gesetzt (v.a. da kein Keller) und dafür noch keine Alternative gefunden...
K a t j a schrieb:
Nicht schlecht aber das Licht im Wohnbereich wäre mir zu knapp. Kein Fenster auf der Südseite - dadurch auch wenig Licht auf dem Esstisch. Steht da ne Kühltruhe in der Fensterlosen Ecke? Erstens - das säh ja blöd aus und zweitens muss dort m.E. ein Fenster hin.
Außerdem:
- Diese lange Trennwand zum WZ mit dem Kamin am Kopfende - kann da die Hälfte weg? Das wird recht dunkel sonst dadurch. Das große Fenster ist zwar hilfreich, aber das Licht hat es sehr schwer um die "Küchenanbauecke". Terrassenüberdachung ist auch noch dran. Die Wand macht es noch schlimmer. Kamin braucht eh niemand.
- Fehlendes Fenster in der Speisekammer. Kleines reicht aber ganz ohne ist Mist.
- Tür von Garage in Garderobe ist überflüssig - der Weg außen rum ist kaum länger, sie nimmt Platz weg, ist schlecht wegen Abgasen und eine zusätzliche Einbruchgefahr.
- Büro und Fitness in einem Raum? Da käm ich nicht drauf. Deswegen würd ich aber auch keinen Keller bauen. Braucht Ihr denn 2 Büros?
- Im Kinderbad auch schlecht ausgeleuchtetes Waschbecken. WC nochmal extra? Ist das nicht bissl übertrieben?
- Schade, dass das Schlafzimmer direkt an ein Kinderzimmer grenzt. In der Preisklasse wäre mir das zu blöd. Eventuell tauscht man besser mit dem Fitnessraum.
- Haustechnik sieht knapp aus. Abstellraum Garage hingegen riesig. Das alles mit Flachdach überdacht - das wird ein kleiner Batzen, der mir zu teuer wäre.
Insgesamt m.E. nicht gut zum Licht ausgerichtet. Das würde mich so sehr stören, dass ich vermutlich von vorn beginnen würde.Vielen Dank!
-Zum Licht in Wohnbereich/Küche: in der Ecke ist ein großer Kühlschrank geplant, schon verbaut mit der Küchenfront. Aber ev. wäre da sonst ein Platz für mehr Licht... neu anfangen wollen wir nicht unbedingt 🙄
-Kamin würden wir nur ungern weglassen, aber kürzen sollte noch möglich sein ja.
-Fenster in der Speisekammer haben wir schon angefragt, ja.
-Büro/Fitness: ist halt als Kellerersatz gedacht, quasi ein Raum für den Mann im Haus;) 2 Büros nicht unbedingt aber eines fix und daher ist das Büro im Gästezimmer nur als Notfall für 2. Büro gedacht
- Kinderbad: Danke, müssen wir überlegen
- Schlafzimmer an Kinderzimmer: Sind ja Ziegelwände dazwischen, sollte schon passen
- Haustechnik: Warum knapp? WP, Boiler, ev. Entkalkung und was noch?
M
Myrna_Loy23.04.22 13:15„Räume sollen angenehme Größe haben ohne verschwenderisch zu sein.“
Ich finde den gesamten Grundriss mit 240 qm extrem verschwenderisch. Die Küche mit der Speis sieht eher nach 6 Personen Haushalt aus.
Ich finde den gesamten Grundriss mit 240 qm extrem verschwenderisch. Die Küche mit der Speis sieht eher nach 6 Personen Haushalt aus.
Ähnliche Themen