ᐅ 193qm Stadtvilla mit Nordausrichtung sinnvoll?
Erstellt am: 30.11.20 18:52
R
RotesDach30.11.20 18:52Liebes Hausbauforum,
da wir (2 Erwachsene, 2 Erwachsene) hier schon öfter als Mitleser hilfreiche Tipps mitnehmen konnten, würden wir euch gerne unsere Hausbau-Planung (Stadtvilla, 193qm) vorstellen, weil uns eure Meinung dazu interessiert. Wir bauen das erste (und einzige) Mal. Die Chance, dass jemand von euch etwas findet, was er/ sie aus objektiven oder subjektiven Gründen anders machen würde, ist aus ja durchaus gegeben.
Unsere Hauptfragen, bzw. -überlegungen beziehen sich auf folgende Punkte:
--> Würdet ihr das Haus anders dimensionieren (also länglicher oder breiter planen)?
--> Würdet ihr Garten und Terrasse sowie Zufahrt, Garage und Eingang woanders hin planen, um mehr in Richtung Süd- oder Westausrichtung zu kommen?
Oder ist aus diesem Grundstück einfach nicht mehr rauszuholen? Und wir müssen mit der Nordausrichtung leben. Wir sind gespannt, was eure Erfahrungen sagen.
Vielen Dank für eure Rückmeldungen!


da wir (2 Erwachsene, 2 Erwachsene) hier schon öfter als Mitleser hilfreiche Tipps mitnehmen konnten, würden wir euch gerne unsere Hausbau-Planung (Stadtvilla, 193qm) vorstellen, weil uns eure Meinung dazu interessiert. Wir bauen das erste (und einzige) Mal. Die Chance, dass jemand von euch etwas findet, was er/ sie aus objektiven oder subjektiven Gründen anders machen würde, ist aus ja durchaus gegeben.
Unsere Hauptfragen, bzw. -überlegungen beziehen sich auf folgende Punkte:
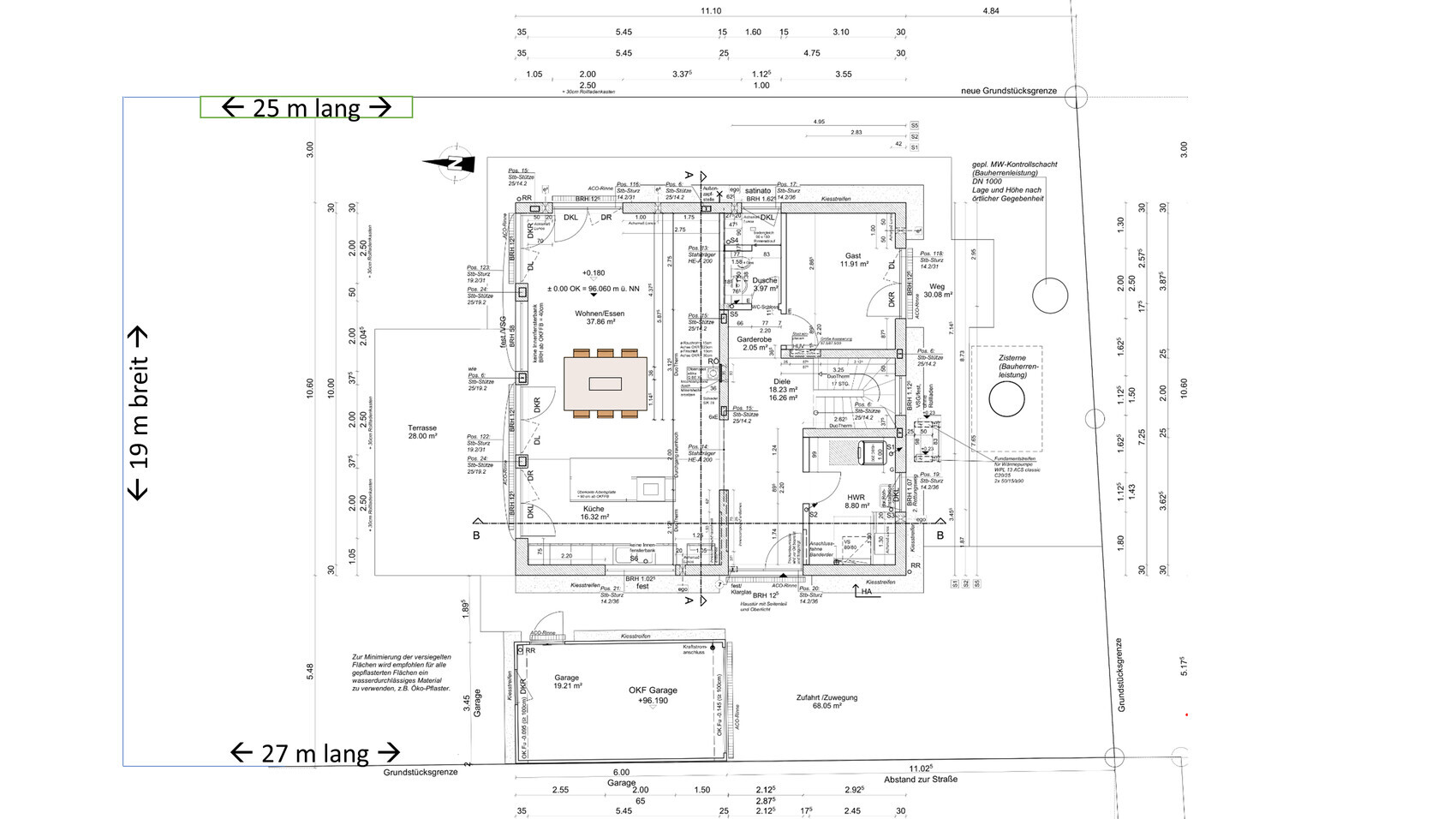
- Das Grundstück (509qm) hat Nordausrichtung, d.h. die Straße verläuft im Süden (Straßenbreite 19m, Tiefe: 25-27m). Wir sind uns nicht sicher, inwieweit unsere jetzige nach Norden gerichtete Planung des Allraums und der Terrasse
- a) (trotz sehr großer Fenster) genug Licht ins Haus lässt. Die Fenster sind 2,50 hoch und 2m breit. Die mit 2,87m recht großzügige Deckenhöhe ist uns da ebenfalls wichtig, um etwas mehr Weite und Luftigkeit zu erzeugen.
- b) uns einen Outdoor-Aufenthaltsort bietet, an dem es nicht ausschließlich dunkel und schattig ist. Deshalb haben wir im Süden eine zweite kleinere (Nebe-)terrasse geplant. Ich würde gerne auch ein paar Hochbeete für Gemüse anlegen und hoffe, dass ich so noch das beste aus dem schattigen Grundstück raushole. Auf der Ostseite lässt sich leider auch nicht viel anbauen.
- Den Allraum finden wir von der qm-Anzahl zwar recht großzügig, jedoch haben wir (leider zugleich) die Befürchtung, dass 10m Länge knapp bemessen sein könnten. Wir brauchen und möchten eine große offene Küche sowie einen sehr großen Esstisch (1,60m x 1,60m, plus Ausziehen = 2,50m), deshalb auch die Breite von 5,50m beim Allraum.
- Ist der Flur breit genug? Gerade dort staut sich immer alles, wenn man mit der Familie raus möchte und jeder Jacke und Schuhe anzieht.
- Ist der Hauswirtschaftsraum ausreichend? Hier ist die Luft-Wasser-Wärmepumpe sowie Technik verbaut und es soll gewaschen werden (Trockner, Waschmaschine, Wäschekörbe, Wäscheständer).
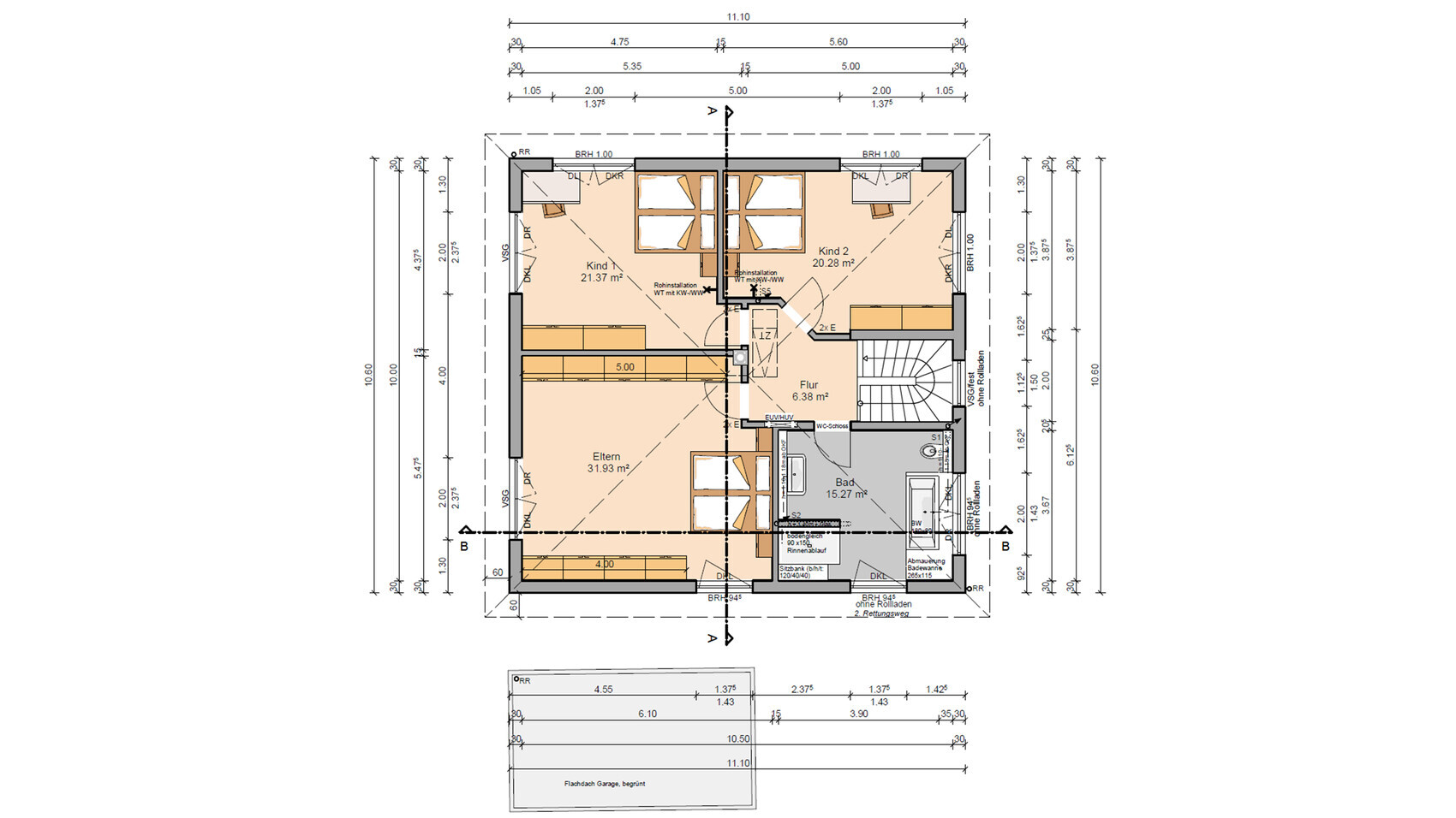
- Mit dem Obergeschoss sind wir total zufrieden, auch wenn wir wissen, dass das viele sicher anders aufgeteilt hätten.
--> Würdet ihr das Haus anders dimensionieren (also länglicher oder breiter planen)?
--> Würdet ihr Garten und Terrasse sowie Zufahrt, Garage und Eingang woanders hin planen, um mehr in Richtung Süd- oder Westausrichtung zu kommen?
Oder ist aus diesem Grundstück einfach nicht mehr rauszuholen? Und wir müssen mit der Nordausrichtung leben. Wir sind gespannt, was eure Erfahrungen sagen.
Vielen Dank für eure Rückmeldungen!
Guten Morgen,
mit dem Handy tue ich mich beim EG gerade etwas schwer, aber kann es sein, dass in der Diele kein Garderobenschrank eingezeichnet ist? Spontan sehe ich da keinen Platz für.
Direkt neben dem Esstisch würde ich den Ofen nicht platzieren, da er eine engstelle ist und wärme abstrahlt.
mit dem Handy tue ich mich beim EG gerade etwas schwer, aber kann es sein, dass in der Diele kein Garderobenschrank eingezeichnet ist? Spontan sehe ich da keinen Platz für.
Direkt neben dem Esstisch würde ich den Ofen nicht platzieren, da er eine engstelle ist und wärme abstrahlt.
Füllst Du bitte den angepinnten Fragebogen aus? Danke.
p.s. Nicht die Nordausrichtung sorgt für Schatten, die Lage der Garage sorgt dafür. Die gehört in Ostlage!
Das Haus gehört gedreht, dass der Eingang vorn ist und die Westseite viel Fenster hat und der Allraum in sich zusätzlich gespiegelt, dass Küche an der Terrasse. Also bitte mal den Lageplan (Grundstückszeichnung) mit einstellen.
Der Allraum könnte aber bei anderem Grundriss auch hinten bleiben...
RotesDach schrieb:Schreibfehler?
Esstisch (1,60m x 1,60m,
p.s. Nicht die Nordausrichtung sorgt für Schatten, die Lage der Garage sorgt dafür. Die gehört in Ostlage!
Das Haus gehört gedreht, dass der Eingang vorn ist und die Westseite viel Fenster hat und der Allraum in sich zusätzlich gespiegelt, dass Küche an der Terrasse. Also bitte mal den Lageplan (Grundstückszeichnung) mit einstellen.
Der Allraum könnte aber bei anderem Grundriss auch hinten bleiben...
Was habt ihr vor mit der Tanzfläche vor dem Bett?
Euer Allraum ist zu klein.
Der Ofen röstet die Ersten Sitzplätze
Sofa und TV soll wohin?
Diele ist recht groß und trotzdem fehlt eine Garderobe
Immer alle Räume mit gewünschten/vorhandenen Möbel im Maßstab einzeichnen.
Garage würde ich nach Osten schieben - wie YPG und soweit es geht nach Süden Richtung Straße.
Terrasse wird gar nicht so schattig, von Herbst und Frühjahr abgesehen.
Ich würde die Räume anders zuordnen
Treppe wird Eingang
Küche rutscht zum Hauswirtschaftsraum
Gast wird Hauswirtschaftsraum
Gast wandert nach oben, das Schlafzimmer ist groß genug oder kann unten bleiben,
Dann wird der Allraum größer - Wohnen paßt rein, der riesige Tisch und der Ofen röstet niemanden
Durch die Küche kommt Sonne vom Süden, Essen bekommt Westsonne und das Wohnzimmer noch etwas Sonne am frühen morgen.
Euer Allraum ist zu klein.
Der Ofen röstet die Ersten Sitzplätze
Sofa und TV soll wohin?
Diele ist recht groß und trotzdem fehlt eine Garderobe
Immer alle Räume mit gewünschten/vorhandenen Möbel im Maßstab einzeichnen.
Garage würde ich nach Osten schieben - wie YPG und soweit es geht nach Süden Richtung Straße.
Terrasse wird gar nicht so schattig, von Herbst und Frühjahr abgesehen.
Ich würde die Räume anders zuordnen
Treppe wird Eingang
Küche rutscht zum Hauswirtschaftsraum
Gast wird Hauswirtschaftsraum
Gast wandert nach oben, das Schlafzimmer ist groß genug oder kann unten bleiben,
Dann wird der Allraum größer - Wohnen paßt rein, der riesige Tisch und der Ofen röstet niemanden
Durch die Küche kommt Sonne vom Süden, Essen bekommt Westsonne und das Wohnzimmer noch etwas Sonne am frühen morgen.
A
Alessandro01.12.20 10:34ein Fenster in der Dusche im EG ist ungünstig. Der Hauswirtschaftsraum wird zu klein um da noch vernünftig Wäsche trocknen zu können.
Keine Garderobe.
Keine Garderobe.
R
RotesDach01.12.20 10:45Hier der Fragebogen kurz zusammengefasst (das Wichtigste steht ja schon im Eingangstext):
Bebauungsplan/Einschränkungen
Größe des Grundstücks: 509qm
Hang: nein
Grundflächenzahl: 0,6
Geschossflächenzahl: 0,5
Baufenster, Baulinie und -grenze: rechts und links 3 m (Garage darf auf die Grenze), vorne 5m, hinten 8m frei
Randbebauung: nein
Anzahl Stellplatz: mind. 2 (bei uns 3)
Geschossigkeit: 2
Dachform: Zeltdach 23 Grad
Stilrichtung: modern (leicht mediterran mit hellen warmen Farben: Fassade und Fenster weiß, Dach rot)
Ausrichtung: Norden
Maximale Höhen/Begrenzungen: Traufhöhe 6,80m
weitere Vorgaben
Anforderungen der Bauherren
Stilrichtung, Dachform, Gebäudetyp: Stadtvilla
Keller: ohne
Anzahl der Personen, Alter: Er und Sie (32), 2 Kleinkinder
Büro: Familiennutzung oder Homeoffice?: Gast ist zugleich Büro
Schlafgäste pro Jahr: ca. 10
offene oder geschlossene Architektur: offen
konservativ oder moderne Bauweise: eher modern
offene Küche, Kochinsel: ja
Anzahl Essplätze: 6 (mit Erweiterung bis 10)
Kamin: ja
Musik/Stereowand: nein
Balkon, Dachterrasse: nein
Garage, Carport: beides ja (Carport vor Garage wird überdacht)
Nutzgarten, Treibhaus: gerne (im Süden?)
weitere Wünsche/Besonderheiten/Tagesablauf, gern auch Begründungen, warum dieses oder das nicht sein soll: siehe Eingangstext
Hausentwurf
Von wem stammt die Planung:
-Planer eines Bauunternehmens: Architektin hat unsere Vorgaben umgesetzt
Was gefällt besonders? Warum?: große, hohe Räume
Was gefällt nicht? Warum? Evtl. zu schattig? Hauswirtschaftsraum und Flur etwas knapp
favorisierte Heiztechnik: Luft-Wasser-Wärmepumpe
Wenn Ihr verzichten müsst, auf welche Details/Ausbauten
-könnt Ihr verzichten:
-könnt Ihr nicht verzichten: große Küche, großer Allraum
Warum ist der Entwurf so geworden, wie er jetzt ist? ZB
Entsprechende/Welche Wünsche wurden vom Architekten umgesetzt? ja
Bebauungsplan/Einschränkungen
Größe des Grundstücks: 509qm
Hang: nein
Grundflächenzahl: 0,6
Geschossflächenzahl: 0,5
Baufenster, Baulinie und -grenze: rechts und links 3 m (Garage darf auf die Grenze), vorne 5m, hinten 8m frei
Randbebauung: nein
Anzahl Stellplatz: mind. 2 (bei uns 3)
Geschossigkeit: 2
Dachform: Zeltdach 23 Grad
Stilrichtung: modern (leicht mediterran mit hellen warmen Farben: Fassade und Fenster weiß, Dach rot)
Ausrichtung: Norden
Maximale Höhen/Begrenzungen: Traufhöhe 6,80m
weitere Vorgaben
Anforderungen der Bauherren
Stilrichtung, Dachform, Gebäudetyp: Stadtvilla
Keller: ohne
Anzahl der Personen, Alter: Er und Sie (32), 2 Kleinkinder
Büro: Familiennutzung oder Homeoffice?: Gast ist zugleich Büro
Schlafgäste pro Jahr: ca. 10
offene oder geschlossene Architektur: offen
konservativ oder moderne Bauweise: eher modern
offene Küche, Kochinsel: ja
Anzahl Essplätze: 6 (mit Erweiterung bis 10)
Kamin: ja
Musik/Stereowand: nein
Balkon, Dachterrasse: nein
Garage, Carport: beides ja (Carport vor Garage wird überdacht)
Nutzgarten, Treibhaus: gerne (im Süden?)
weitere Wünsche/Besonderheiten/Tagesablauf, gern auch Begründungen, warum dieses oder das nicht sein soll: siehe Eingangstext
Hausentwurf
Von wem stammt die Planung:
-Planer eines Bauunternehmens: Architektin hat unsere Vorgaben umgesetzt
Was gefällt besonders? Warum?: große, hohe Räume
Was gefällt nicht? Warum? Evtl. zu schattig? Hauswirtschaftsraum und Flur etwas knapp
favorisierte Heiztechnik: Luft-Wasser-Wärmepumpe
Wenn Ihr verzichten müsst, auf welche Details/Ausbauten
-könnt Ihr verzichten:
-könnt Ihr nicht verzichten: große Küche, großer Allraum
Warum ist der Entwurf so geworden, wie er jetzt ist? ZB
Entsprechende/Welche Wünsche wurden vom Architekten umgesetzt? ja
Ähnliche Themen