Hallo liebe Forumsgemeinde,
mein Mann und ich planen den Bau einen Einfamilienhaus in einem Dorf in Niedersachsen mit einem Architekten, dieser hat uns nun den ersten Entwurf übersandt, zu dem wir gerne eure Meinungen hören würden.
Bebauungsplan/Einschränkungen
Größe des Grundstücks: 691 qm
Hang: nein
Grundflächenzahl: 0,3GFZ: keine Vorgabe
Baufenster, Baulinie und –grenze: 3m von der Grundstücksgrenze
Randbebauung
Anzahl Stellplatz: 1
Geschossigkeit: keine Vorgabe
Dachform: Grundstück. Dachneigung von 24 – 48 Grad, außer bei Grasdächern.
Stilrichtung:
Ausrichtung:
Maximale Höhen/Begrenzungen: FH: 9,5; TH: 5,5
weitere Vorgaben
Anforderungen der Bauherren
Stilrichtung, Dachform, Gebäudetyp: Satteldach mit einer geringen Dachneigung, ich weiß gerade den konkreten Winkel nicht mehr, aber unter 24 Grad und daher als Gründach, Einfamilienhaus
Keller, Geschosse: nein, 2
Anzahl der Personen, Alter: noch 2 (36/31), geplant ist ein Kind
Raumbedarf im EG, OG
Büro: Familiennutzung oder Homeoffice? Familiennutzung
Schlafgäste pro Jahr: äußerst selten
offene oder geschlossene Architektur: offen
konservativ oder moderne Bauweise: modern
offene Küche, Kochinsel: ja
Anzahl Essplätze: 3
Kamin: ja
Musik/Stereowand: nein, aber 3,5 m bücherschränke
Balkon, Dachterrasse: gerne
Garage, Carport: Carport
Nutzgarten, Treibhaus: später mal kleiner Nutzgarten
weitere Wünsche/Besonderheiten/Tagesablauf: wir kochen gerne und haben oft Essensgäste, große Familienfeiern mit bis zu 22 Personen
Hausentwurf
Von wem stammt die Planung: Architekt
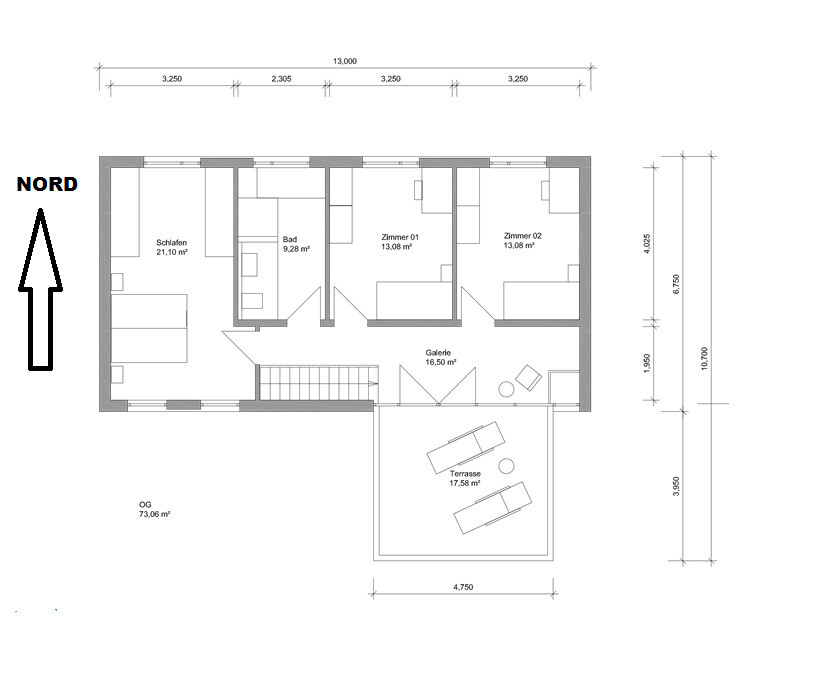
Was gefällt besonders? Der Blick aus dem Eingangsbereich, der große Hauswirtschaftsraum, das Schlafzimmer, das Lichtband, der obere Flur
Was gefällt nicht? s.u.
Preisschätzung lt Architekt/Planer: 218.000 € reine Baukosten + 40.000 Nebenkosten + Grundstückskosten 43.500 € + Notar- und Grunderwerbsteuer
Persönliches Preislimit fürs Haus, inkl Ausstattung: 330.000 €
favorisierte Heiztechnik: Erdwärme, wenn im Budget
Wenn Ihr verzichten müsst, auf welche Details/Ausbauten
-könnt Ihr verzichten: s.u.
-könnt Ihr nicht verzichten: großer Hauswirtschaftsraum, offener Wohn-, Essbereich, Ankleidebereich, gerade Treppe
Geplant ist das Haus vollständig barrierefrei zu gestalten bzw. so vorzubereiten, dass wenige Umbaumaßnahmen nötig werden, falls einer von uns mal auf einen Rollstuhl angewiesen sein sollte. Ich habe MS und daher ist die Wahrscheinlichkeit einfach höher, dass es so mal kommen könnte. Daher die gerade Treppe, die für mich deutlich leichter zu erklimmen ist als eine Wendeltreppe und wir wollten gerne einen Platz für einen möglichen Aufzug freihalten. Dieser könnte an das Lichtband an der östlichen Wand.
Dann haben wir ziemlich viele Bücher. Derzeit ca. 3,5 – 4m Bücherregale und es werden immer mehr. Unser Gedanke war diese oben in die Galerie zu stellen, da ich im Wohnzimmer ohnehin nicht lese und oben hätte man den schönen Ausblick.
Ich kann gar nicht sagen, dass mir etwas wirklich nicht gefällt. Ich habe ein bisschen Bedenken, dass wir das Wohnzimmer nicht vernünftig möbliert bekommen, insbesondere keinen Platz für den Fernseher finden, z.Zt. halten wir es für möglich, den Fernseher plan unten links in die Ecke zu stellen, quasi zwischen die Fenster, ich weiß aber nicht wie praktisch diese Idee tatsächlich ist. Wobei auch noch nicht klar ist, ob hier normale Terrassentüren oder Schiebetüren hinkommen sollen.
Die z.Zt. eingezeichnete möblierung ist insbesondere unten nicht repräsentativ. Auch die Küche und das Bad oben nicht. Auf der planlinken Wand des Wohnzimmerkubus sind ein Sessel und etwas Kreisförmiges eingezeichnet. Hier hat der Architekt spontan den Kamin eingeplant. Allerdings hat er hier keinen Kaminschacht eingezeichnet. Das müssen wir also dringend noch mal mit ihm besprechen. Grundsätzlich finde ich den Platz aber gar nicht schlecht, vor allem wenn man den Fernseher tatsächlich unten in die Ecke stellen würde. Dann könnte das Sofa an die planlinke Wand und man hätte Fernseher und Kamin gleichzeitig im Blickfeld.
Verzichten könnten wir grundsätzlich natürlich auf so einiges, aber der Grundriss gefällt uns bisher ziemlich gut und wir möchten ungern auf die Offenheit verzichten, die er für uns ausstrahlt. Ich persönlich könnte auf die Dachterrasse verzichten, aber mein Mann hat sich in die Idee verliebt und da wir den Kubus ohnehin haben, vermute ich, dass sich die Mehrkosten dafür im Rahmen halten.
Wir würden uns freuen, wenn wir ein paar unvoreingenommene Meinungen zu dem Grundriss bekommen können und sind für alle Anregungen offen. Ich befürchte, wir sind derzeit so euphorisch, dass wir evtl. Mängel gar nicht sehen würden.
Daher vielen Dank für eure Meinungen und Vorschläge. Ich hoffe, ich habe keine Angaben vergessen.








mein Mann und ich planen den Bau einen Einfamilienhaus in einem Dorf in Niedersachsen mit einem Architekten, dieser hat uns nun den ersten Entwurf übersandt, zu dem wir gerne eure Meinungen hören würden.
Bebauungsplan/Einschränkungen
Größe des Grundstücks: 691 qm
Hang: nein
Grundflächenzahl: 0,3GFZ: keine Vorgabe
Baufenster, Baulinie und –grenze: 3m von der Grundstücksgrenze
Randbebauung
Anzahl Stellplatz: 1
Geschossigkeit: keine Vorgabe
Dachform: Grundstück. Dachneigung von 24 – 48 Grad, außer bei Grasdächern.
Stilrichtung:
Ausrichtung:
Maximale Höhen/Begrenzungen: FH: 9,5; TH: 5,5
weitere Vorgaben
Anforderungen der Bauherren
Stilrichtung, Dachform, Gebäudetyp: Satteldach mit einer geringen Dachneigung, ich weiß gerade den konkreten Winkel nicht mehr, aber unter 24 Grad und daher als Gründach, Einfamilienhaus
Keller, Geschosse: nein, 2
Anzahl der Personen, Alter: noch 2 (36/31), geplant ist ein Kind
Raumbedarf im EG, OG
Büro: Familiennutzung oder Homeoffice? Familiennutzung
Schlafgäste pro Jahr: äußerst selten
offene oder geschlossene Architektur: offen
konservativ oder moderne Bauweise: modern
offene Küche, Kochinsel: ja
Anzahl Essplätze: 3
Kamin: ja
Musik/Stereowand: nein, aber 3,5 m bücherschränke
Balkon, Dachterrasse: gerne
Garage, Carport: Carport
Nutzgarten, Treibhaus: später mal kleiner Nutzgarten
weitere Wünsche/Besonderheiten/Tagesablauf: wir kochen gerne und haben oft Essensgäste, große Familienfeiern mit bis zu 22 Personen
Hausentwurf
Von wem stammt die Planung: Architekt
Was gefällt besonders? Der Blick aus dem Eingangsbereich, der große Hauswirtschaftsraum, das Schlafzimmer, das Lichtband, der obere Flur
Was gefällt nicht? s.u.
Preisschätzung lt Architekt/Planer: 218.000 € reine Baukosten + 40.000 Nebenkosten + Grundstückskosten 43.500 € + Notar- und Grunderwerbsteuer
Persönliches Preislimit fürs Haus, inkl Ausstattung: 330.000 €
favorisierte Heiztechnik: Erdwärme, wenn im Budget
Wenn Ihr verzichten müsst, auf welche Details/Ausbauten
-könnt Ihr verzichten: s.u.
-könnt Ihr nicht verzichten: großer Hauswirtschaftsraum, offener Wohn-, Essbereich, Ankleidebereich, gerade Treppe
Geplant ist das Haus vollständig barrierefrei zu gestalten bzw. so vorzubereiten, dass wenige Umbaumaßnahmen nötig werden, falls einer von uns mal auf einen Rollstuhl angewiesen sein sollte. Ich habe MS und daher ist die Wahrscheinlichkeit einfach höher, dass es so mal kommen könnte. Daher die gerade Treppe, die für mich deutlich leichter zu erklimmen ist als eine Wendeltreppe und wir wollten gerne einen Platz für einen möglichen Aufzug freihalten. Dieser könnte an das Lichtband an der östlichen Wand.
Dann haben wir ziemlich viele Bücher. Derzeit ca. 3,5 – 4m Bücherregale und es werden immer mehr. Unser Gedanke war diese oben in die Galerie zu stellen, da ich im Wohnzimmer ohnehin nicht lese und oben hätte man den schönen Ausblick.
Ich kann gar nicht sagen, dass mir etwas wirklich nicht gefällt. Ich habe ein bisschen Bedenken, dass wir das Wohnzimmer nicht vernünftig möbliert bekommen, insbesondere keinen Platz für den Fernseher finden, z.Zt. halten wir es für möglich, den Fernseher plan unten links in die Ecke zu stellen, quasi zwischen die Fenster, ich weiß aber nicht wie praktisch diese Idee tatsächlich ist. Wobei auch noch nicht klar ist, ob hier normale Terrassentüren oder Schiebetüren hinkommen sollen.
Die z.Zt. eingezeichnete möblierung ist insbesondere unten nicht repräsentativ. Auch die Küche und das Bad oben nicht. Auf der planlinken Wand des Wohnzimmerkubus sind ein Sessel und etwas Kreisförmiges eingezeichnet. Hier hat der Architekt spontan den Kamin eingeplant. Allerdings hat er hier keinen Kaminschacht eingezeichnet. Das müssen wir also dringend noch mal mit ihm besprechen. Grundsätzlich finde ich den Platz aber gar nicht schlecht, vor allem wenn man den Fernseher tatsächlich unten in die Ecke stellen würde. Dann könnte das Sofa an die planlinke Wand und man hätte Fernseher und Kamin gleichzeitig im Blickfeld.
Verzichten könnten wir grundsätzlich natürlich auf so einiges, aber der Grundriss gefällt uns bisher ziemlich gut und wir möchten ungern auf die Offenheit verzichten, die er für uns ausstrahlt. Ich persönlich könnte auf die Dachterrasse verzichten, aber mein Mann hat sich in die Idee verliebt und da wir den Kubus ohnehin haben, vermute ich, dass sich die Mehrkosten dafür im Rahmen halten.
Wir würden uns freuen, wenn wir ein paar unvoreingenommene Meinungen zu dem Grundriss bekommen können und sind für alle Anregungen offen. Ich befürchte, wir sind derzeit so euphorisch, dass wir evtl. Mängel gar nicht sehen würden.
Daher vielen Dank für eure Meinungen und Vorschläge. Ich hoffe, ich habe keine Angaben vergessen.
Erstmal ein dickes Lob, alles zusammen, Lageplan, Nordpfeil, Ansichten usw.
Dann mal zum Grundriss .. auf den ersten Blick toll, Südwest-Ausrichtung Terrasse sehr gut, großer Hauswirtschaftsraum/Technik-Raum usw. Ordentlicher Garderobenbereich, Gäste-WC in einer Größe, die man nutzen kann
Dann der zweite Blick .. ich sammle jetzt einfach nur mal Stichworte:
Dann mal zum Grundriss .. auf den ersten Blick toll, Südwest-Ausrichtung Terrasse sehr gut, großer Hauswirtschaftsraum/Technik-Raum usw. Ordentlicher Garderobenbereich, Gäste-WC in einer Größe, die man nutzen kann
Dann der zweite Blick .. ich sammle jetzt einfach nur mal Stichworte:
- ungünstige Platzierung Eingangstür, immer am Auto im Carport vorbei. Warum Eingang nicht von Norden? Das würde auch den nächsten Punkt
- langer Flur im EG etwas abschwächen
- Küche .. Für das Kochen mit mehreren ist dieser Bereich äußerst ungünstig zu möblieren, wäre mal interessant eure Gedanken dazu zu sehen. Außerdem bin ich grundsätzlich ein Fan, die Küche und den Essbereich Richtung Terrasse (Erweiterung im Sommer mit Grillen etc.) zu planen und den Wohnbereich eher als zurückgezogeneren Bereich
- OG .. Kinderzimmer Richtung Norden .. ich finde Kinderzimmer haben eigentlich auch einen großen Bedarf nach Süd/Westausrichtung
- Elternschlafzimmer - Ankleidebereich, von da muss Schlafbereich erst wieder durchquert werden, was das dann doch mal getrennte Aufstehen erschwert .. und die Eltern haben Süd/West-Licht im Raum, brauchen es aber eigentlich nicht 😉
- Treppe ... mind. 2 Stufen werden bereits von der OG-Decke überdeckt. Das kann insbesondere beim Treppe runtergehen kopfeng werden (Verdeutlichung aus einer anderen Hausplanung):
- Bad im OG ungünstig geschnitten, Wanne vorm Fenster usw.
Ich mag es 🙂 Sowas hätte ich auch gern gebaut.. hatte irgendwo so etwas in der Richtung *kram*
Okay, nicht ganz das was ihr habt... eures ist schon noch stimmiger 😀
Trotzdem ein paar Anmerkungen (einiges hat Kerstin auch schon gesagt):
Okay, nicht ganz das was ihr habt... eures ist schon noch stimmiger 😀
Trotzdem ein paar Anmerkungen (einiges hat Kerstin auch schon gesagt):
- die Küche ist ein Krampf - glaube nicht, dass man die ordentlich einrichten kann
- Eingang sollte m.E.n. auch eher nach Norden
- Viel Verkehrsfläche
- Ich würde am Ende des langen Flurs auch noch ein Fenster setzten - also auf eine Achse mit dem Eingang.
- Mir würde im OG etwas zum Abstellen fehlen
Da hat @BeHaElJa einen guten Ansatz eingestellt. Denn, einen möglichen Platz für einen Fahrstuhl sehe ich aktuell in eurem Entwurf nicht als einfach zu verwirklichen. An der Ostseite sind im OG ja auch noch die Fenster. Soweit ich weiß, muss so ein Platz sinnvollerweise auch gleich mit entsprechender Deckenaussparung geplant werden.
Evtl. doch mal überlegen, Elternschlafbereich im EG zu haben, dafür evtl. Haustechnik nach oben?
Und gerade im Hinblick auf den möglichen Rollstuhl würde ich wirklich den Eingang aus dem Engebereich Carport rausnehmen.
Und, bei der Ausarbeitung der Dachterrasse darauf achten, dass die Terrassentürenschwelle auch rollstuhlgeeignet ist. Das Bedarf der Vorplanung, denn oft genug hat man hier schon von zu hohen Brüstungen in dem Bereich gelesen. Denn auf dem Dach über dem Wohnzimmer muss ja auch ein bestimmter Aufbau gewährleistet sein.
Evtl. doch mal überlegen, Elternschlafbereich im EG zu haben, dafür evtl. Haustechnik nach oben?
Und gerade im Hinblick auf den möglichen Rollstuhl würde ich wirklich den Eingang aus dem Engebereich Carport rausnehmen.
Und, bei der Ausarbeitung der Dachterrasse darauf achten, dass die Terrassentürenschwelle auch rollstuhlgeeignet ist. Das Bedarf der Vorplanung, denn oft genug hat man hier schon von zu hohen Brüstungen in dem Bereich gelesen. Denn auf dem Dach über dem Wohnzimmer muss ja auch ein bestimmter Aufbau gewährleistet sein.
Das ist eine schöne, in sich stimmige Planung 🙂 die Schwachpunkte sind aber auch da.
Auch ich würde Eingang und Carport ganz auf die Nordseite des Hauses verlegen.
Wegen Barrierefreiheit etc. würde ich mit bodenebenen Schiebetüren planen - denn diese sind auch keine Stolperfalle, wenn Du zwar laufen kannst, aber manchmal Mühe hast, die Füsse zu heben.
Mir fehlt eine gedeckte Terrasse - evt. schon so geplant, dass man diese auch in einen Wintergarten verwandeln könnte. Entweder die Dachterrasse entsprechend planen - dann wäre es auch keine Problem, dass die Kinderzimmer nach Norden ausgerichtet sind, den dann wäre dort oben ja ein schöner Spielflur-/Wintergarten - oder auch für Dich der optimale Leseplatz.
Auch ich würde die Küche an die Terrasse verlegen. Haben wir auch gemacht und lieben es.
Ob bei euch Wohnzimmer oder Esszimmer die Sonnenlage bekommt, hängt von eurer Lebensweise ab - da gibt es Menschen, die lieber auf dem Sofa rumhängen und andere, welche die Zeitung lieber am Esstisch lesen. Mit Kindern verbringt man allerdings mehr Zeit am Esstisch zum gemeinsamen Spielen, Basteln etc.

Die Hausecke linksvorne ist die Küche, daran schliesst sich das Esszimmer an, rechts das Wo-Zi, dahinter im gelben Hausteil befindet sich das Schlafzimmer. Die Terrassenüberdachung ist ca 3m - daran anschliessend ein 5x5m Bereich den wir mit einer Markise überdachen können.
Auch ich würde Eingang und Carport ganz auf die Nordseite des Hauses verlegen.
Wegen Barrierefreiheit etc. würde ich mit bodenebenen Schiebetüren planen - denn diese sind auch keine Stolperfalle, wenn Du zwar laufen kannst, aber manchmal Mühe hast, die Füsse zu heben.
Mir fehlt eine gedeckte Terrasse - evt. schon so geplant, dass man diese auch in einen Wintergarten verwandeln könnte. Entweder die Dachterrasse entsprechend planen - dann wäre es auch keine Problem, dass die Kinderzimmer nach Norden ausgerichtet sind, den dann wäre dort oben ja ein schöner Spielflur-/Wintergarten - oder auch für Dich der optimale Leseplatz.
Auch ich würde die Küche an die Terrasse verlegen. Haben wir auch gemacht und lieben es.
Ob bei euch Wohnzimmer oder Esszimmer die Sonnenlage bekommt, hängt von eurer Lebensweise ab - da gibt es Menschen, die lieber auf dem Sofa rumhängen und andere, welche die Zeitung lieber am Esstisch lesen. Mit Kindern verbringt man allerdings mehr Zeit am Esstisch zum gemeinsamen Spielen, Basteln etc.
Die Hausecke linksvorne ist die Küche, daran schliesst sich das Esszimmer an, rechts das Wo-Zi, dahinter im gelben Hausteil befindet sich das Schlafzimmer. Die Terrassenüberdachung ist ca 3m - daran anschliessend ein 5x5m Bereich den wir mit einer Markise überdachen können.
Ich stimme kbt zu: auf jeden Fall konsequent das Schlafzimmer nach unten verlagern, wenn eine starke Geh-Behinderung absehbar ist.
Wir sind noch fidel und auch gesund, haben unser Büro und Dusch-WC unten. Wenn einer von uns krank wird, würde umfunktioniert werden. Ich ärgere mich aber auch mittlerweile, dass wir es nicht konsequent durchgezogen haben, Schlafzimmer, Ankleide und Wohlfühlbad im EG zu haben.
Büro und Gäste können auch nach oben verfrachtet werden.
Zur Einteilung selbst: Ankleide im hinteren Bereich wurde genannt. Küche, so wie sie ist, einfach nur unpraktisch, um einen Block zu gehen. Flur/Galeriefläche mit offenen Blick in den Garten ist schön, aber für ein Kind nur ein nordausgerichtetes Zimmer zu bekommen, ist nicht schön - ich spreche aus Erfahrung.
Ob die Summe von 218000 zum Haus passt, habe ich meine Zweifel: Ein begehbares Flachdach ist zB kostenintensiver als ein nicht begehbares Dach. Aber da möchte ich mich nicht aus dem Fenster lehnen.
Eingang vom Norden aus, also von der langen Hausseite spart Unmengen an Quadratmeter und somit auch Kosten.
Wir sind noch fidel und auch gesund, haben unser Büro und Dusch-WC unten. Wenn einer von uns krank wird, würde umfunktioniert werden. Ich ärgere mich aber auch mittlerweile, dass wir es nicht konsequent durchgezogen haben, Schlafzimmer, Ankleide und Wohlfühlbad im EG zu haben.
Büro und Gäste können auch nach oben verfrachtet werden.
Zur Einteilung selbst: Ankleide im hinteren Bereich wurde genannt. Küche, so wie sie ist, einfach nur unpraktisch, um einen Block zu gehen. Flur/Galeriefläche mit offenen Blick in den Garten ist schön, aber für ein Kind nur ein nordausgerichtetes Zimmer zu bekommen, ist nicht schön - ich spreche aus Erfahrung.
Ob die Summe von 218000 zum Haus passt, habe ich meine Zweifel: Ein begehbares Flachdach ist zB kostenintensiver als ein nicht begehbares Dach. Aber da möchte ich mich nicht aus dem Fenster lehnen.
Eingang vom Norden aus, also von der langen Hausseite spart Unmengen an Quadratmeter und somit auch Kosten.
Ähnliche Themen