Ich denke auch, dass ich dem Architekten zu wenig Freiraum gegeben habe.
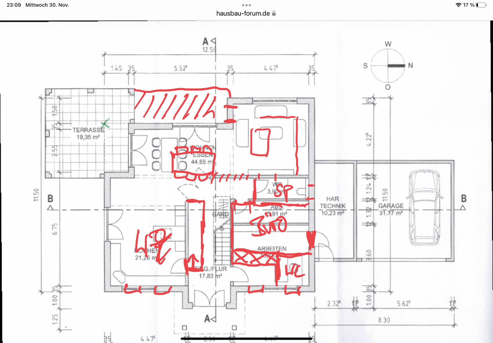
Stimmt. Ich habe mich auch gewundert, wo der Architekt bei dem Entwurf zu sehen ist. Im EG sind plump die Räume aneinander gereiht. Ein Gäste-WC lässt sich natürlich vorn anordnen, dann sogar mit Fenster und Garderobenfläche davor, denn die Fenster braucht man ja nur zweiteilen, auch in der Küche.. 200qm mit einem WC ohne Fenster, das ist schon eine Ansprache

Mal davon abgesehen, dass da einiges im Argen ist, habe ich Deine Problematik mit zu grossem Essbereich nicht verstanden. Der Essbereich ist ja quasi die zentrale Stelle eines Haushaltes, gerade mit Kindern…. Aber hier sehe ich quasi gar keinen geplanten Ess- und Lebebereich. 2,55 sind viel zu wenig. Bei einem 2 Meter langen Tisch sollten es 4 Meter Länge sein… dann zusätzlich die Begehbarkeit der Terrassentüren prüfen und Platz schaffen.
TK gehört in die thermische Hülle, garderobenschränke sind sehr wichtig … 2 Meter für 4 Personen sind sehr schnell gefüllt.
ganz spontan würde ich es so mal vorschlagen, ohne zu viel zu verändern