ᐅ Grundriss Einfamilienhaus ca. 160qm - Verbesserungsvorschläge?
Erstellt am: 21.09.18 19:19
Hallo zusammen,
ich bin neu im Forum, beobachte hier jedoch schon etwas länger und habe schon einiges an Wissen angelesen.
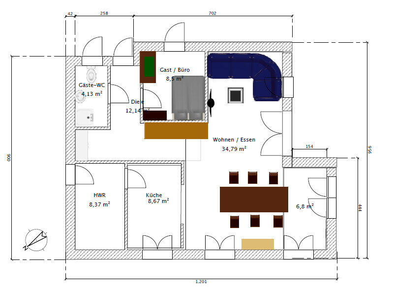
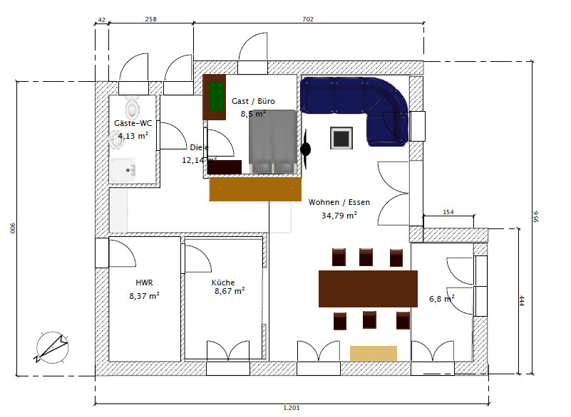
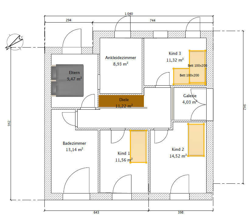
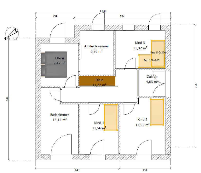
Anbei sind die Grundrisse vom EG und OG für ein Einfamilienhaus; ich weiß, dass die Maße noch nicht zur Geschossflächenzahl passen, es ist nur erst mal eine grobe Skizze, die ich nach und nach verbessern möchte.
Hier nun die Details:
Bebauungsplan/Einschränkungen
Größe des Grundstücks: 500qm, Hintergrundstück
Hang: Nein
Grundflächenzahl: 0,2 -> 100qm
Geschossflächenzahl: 0,3 -> 150qm ohne Bad im OG
Baufenster, Baulinie und –grenze: lediglich 3m Abstand zur Grenze einzuhalten
Randbebauung
Anzahl Stellplatz 2
Geschossigkeit 1,5
Dachform Pultdach
Stilrichtung Modern
Ausrichtung Südwest
Maximale Höhen/Begrenzungen: Traufhöhe Max 4,5m
weitere Vorgaben: Alter Bebauungsplan -> Bad oben sowie Luftraum zählt in Geschossflächenzahl nicht rein; ebenso keine versiegelten Flächen außerhalb
Anforderungen der Bauherren
Stilrichtung, Dachform, Gebäudetyp: Massive Bauweise, eher modern gehalten, große Fenster
Keller, Geschosse: kein Keller, 1,5-geschossig
Anzahl der Personen, Alter: 2 Erwachsene, 1 Kind (3 insgesamt geplant)
Raumbedarf im EG, OG: siehe Grundriss
Büro: Familiennutzung oder Homeoffice?: Homeoffice für 2-3 Tage/Woche
Schlafgäste pro Jahr: 10
offene oder geschlossene Architektur: offen
konservativ oder moderne Bauweise: modern
offene Küche, Kochinsel: Küche direkt am Esszimmer, verbunden über Schiebetür
Anzahl Essplätze: 6
Kamin: ja
Musik/Stereowand: nein
Balkon, Dachterrasse: nein
Garage, Carport: Doppelcarport -> 2 Stellplätze s.o.
Nutzgarten, Treibhaus: nein
weitere Wünsche/Besonderheiten/Tagesablauf, gern auch Begründungen, warum dieses oder das nicht sein soll: Galeriefenster vom EG ins OG -> ich weiß, dass Galerien hier nicht allzu beliebt sind, uns gefällt diese jedoch sehr
Hausentwurf
Von wem stammt die Planung: selfmade mit Baubroschüren und Eindrücken von Häusern von Freunden sowie Musterhäusern
Was gefällt besonders? Warum? Offener Wohnbereich; hier Mittelpunkt des Lebens und Treffpunkt; Mittelholmtreppe
Was gefällt nicht? Warum? Flurgröße im OG; gefühlt ist es verschenkter Platz, weil es wirklich nur als Flur/Gang zu den Zimmern genutzt werden soll
Preisschätzung lt Architekt/Planer: noch offen
Persönliches Preislimit fürs Haus, inkl Ausstattung: 270 T€ ohne Elektro, Heizung, Sanitär und Außenanlagen -> Grundstück schon abgezogen. Wir bauen im Nordwesten Deutschlands
favorisierte Heiztechnik: Wärmepumpe
Wenn Ihr verzichten müsst, auf welche Details/Ausbauten
-könnt Ihr verzichten:
-könnt Ihr nicht verzichten: Größe der Ankleide bedingt durch die Größe von Ikea Pax, Galeriefenster, Dusche im EG Bad, Raffstores im EG
Warum ist der Entwurf so geworden, wie er jetzt ist?
Ein Gemisch aus vielen Beispielen aus div. Magazinen...
Was ist die wichtigste/grundlegende Frage zum Grundriss in 130 Zeichen zusammengefasst?
Ich bin gespannt auf Eure Meinungen und würde mich über Verbesserungsvorschläge freuen J
Fenster habe ich jetzt erst mal außer Betracht gelassen, wir sind noch ganz am Anfang und es geht erst mal nur um die Raumaufteilung…
Vielen Dank vorab für Eure Hilfe und viele Grüße
Karina
ergänzt 22.9.: Lageplan




ich bin neu im Forum, beobachte hier jedoch schon etwas länger und habe schon einiges an Wissen angelesen.
Anbei sind die Grundrisse vom EG und OG für ein Einfamilienhaus; ich weiß, dass die Maße noch nicht zur Geschossflächenzahl passen, es ist nur erst mal eine grobe Skizze, die ich nach und nach verbessern möchte.
Hier nun die Details:
Bebauungsplan/Einschränkungen
Größe des Grundstücks: 500qm, Hintergrundstück
Hang: Nein
Grundflächenzahl: 0,2 -> 100qm
Geschossflächenzahl: 0,3 -> 150qm ohne Bad im OG
Baufenster, Baulinie und –grenze: lediglich 3m Abstand zur Grenze einzuhalten
Randbebauung
Anzahl Stellplatz 2
Geschossigkeit 1,5
Dachform Pultdach
Stilrichtung Modern
Ausrichtung Südwest
Maximale Höhen/Begrenzungen: Traufhöhe Max 4,5m
weitere Vorgaben: Alter Bebauungsplan -> Bad oben sowie Luftraum zählt in Geschossflächenzahl nicht rein; ebenso keine versiegelten Flächen außerhalb
Anforderungen der Bauherren
Stilrichtung, Dachform, Gebäudetyp: Massive Bauweise, eher modern gehalten, große Fenster
Keller, Geschosse: kein Keller, 1,5-geschossig
Anzahl der Personen, Alter: 2 Erwachsene, 1 Kind (3 insgesamt geplant)
Raumbedarf im EG, OG: siehe Grundriss
Büro: Familiennutzung oder Homeoffice?: Homeoffice für 2-3 Tage/Woche
Schlafgäste pro Jahr: 10
offene oder geschlossene Architektur: offen
konservativ oder moderne Bauweise: modern
offene Küche, Kochinsel: Küche direkt am Esszimmer, verbunden über Schiebetür
Anzahl Essplätze: 6
Kamin: ja
Musik/Stereowand: nein
Balkon, Dachterrasse: nein
Garage, Carport: Doppelcarport -> 2 Stellplätze s.o.
Nutzgarten, Treibhaus: nein
weitere Wünsche/Besonderheiten/Tagesablauf, gern auch Begründungen, warum dieses oder das nicht sein soll: Galeriefenster vom EG ins OG -> ich weiß, dass Galerien hier nicht allzu beliebt sind, uns gefällt diese jedoch sehr
Hausentwurf
Von wem stammt die Planung: selfmade mit Baubroschüren und Eindrücken von Häusern von Freunden sowie Musterhäusern
Was gefällt besonders? Warum? Offener Wohnbereich; hier Mittelpunkt des Lebens und Treffpunkt; Mittelholmtreppe
Was gefällt nicht? Warum? Flurgröße im OG; gefühlt ist es verschenkter Platz, weil es wirklich nur als Flur/Gang zu den Zimmern genutzt werden soll
Preisschätzung lt Architekt/Planer: noch offen
Persönliches Preislimit fürs Haus, inkl Ausstattung: 270 T€ ohne Elektro, Heizung, Sanitär und Außenanlagen -> Grundstück schon abgezogen. Wir bauen im Nordwesten Deutschlands
favorisierte Heiztechnik: Wärmepumpe
Wenn Ihr verzichten müsst, auf welche Details/Ausbauten
-könnt Ihr verzichten:
-könnt Ihr nicht verzichten: Größe der Ankleide bedingt durch die Größe von Ikea Pax, Galeriefenster, Dusche im EG Bad, Raffstores im EG
Warum ist der Entwurf so geworden, wie er jetzt ist?
Ein Gemisch aus vielen Beispielen aus div. Magazinen...
Was ist die wichtigste/grundlegende Frage zum Grundriss in 130 Zeichen zusammengefasst?
Ich bin gespannt auf Eure Meinungen und würde mich über Verbesserungsvorschläge freuen J
Fenster habe ich jetzt erst mal außer Betracht gelassen, wir sind noch ganz am Anfang und es geht erst mal nur um die Raumaufteilung…
Vielen Dank vorab für Eure Hilfe und viele Grüße
Karina
ergänzt 22.9.: Lageplan
kklk18 schrieb:
Grundflächenzahl: 0,2 -> 100qm
Geschossflächenzahl: 0,3 -> 150qm ohne Bad im OG
[...] Geschossigkeit 1,5
Dachform PultdachDa sehe ich so ziemlich nichts zusammenpassen. Die Herausrechnung des Bades aus der Geschossflächenzahl verstehe ich nicht.kklk18 schrieb:
gefühlt ist es verschenkter Platz, weil es wirklich nur als Flur/Gang zu den Zimmern genutzt werden sollDennoch fühlt man sich beim "Transit" von einem Raum zum anderen nicht gerne als Rohrpost. Galerie und Flurfläche sparen kriege ich nicht so recht zusammen.kklk18 schrieb:
Ein Gemisch aus vielen Beispielen aus div. Magazinen...Milchreis mit Dillgurken - gerührt, nicht geschüttelt https://www.instagram.com/11antgmxde/
https://www.linkedin.com/company/bauen-jetzt/
11ant, zunächst einmal vielen Dank für Deine Antwort.
Oje, das klingt ja zunächst nicht so gut.
Grund für die Galerie ist, dass wir gerne ein großes Fenster, welches sich über zwei Geschosse erstreckt als Highlight des Hauses hätten.
Vllt noch mal zum Bebauungsplan aus 1984 -> alte Baunutzungsverordnung:
Grundflächenzahl: 0,2 -> 500*0,2=100
Geschossflächenzahl: 0,3 -> 500*0,3=150
Die Geschossigkeit mit 1,5 meint genau genommen: 1-geschossig mit ausgebautem DG
Ein Haus mit Pultdach würde in den Bebauungsplan passen, ein paar Grundstücke weiter (gleicher Bebauungsplan) steht ein Haus, welches ähnlich unseren Wünschen ist.
Die Herausrechnung des Bades sowie des Luftraums aus der Geschossflächenzahl resultiert aus der Aussage des Herren beim Bauamt, wo wir schon waren, um uns zu erkundigen.
Das Bad, welches sich nicht in einem Vollgeschoss befindet, ist nach damaliger Rechtslage kein Aufenthaltsraum und wird daher aus der Geschossflächenzahl (die sich nach den Außenmaßen bestimmt) wieder herausgerechnet. Ebenso wird wahrscheinlich mit dem Ankleidezimmer (da Abstellraum) verfahren werden.
Ich hoffe, ich konnte etwas Klarheit schaffen
Oje, das klingt ja zunächst nicht so gut.
Grund für die Galerie ist, dass wir gerne ein großes Fenster, welches sich über zwei Geschosse erstreckt als Highlight des Hauses hätten.
Vllt noch mal zum Bebauungsplan aus 1984 -> alte Baunutzungsverordnung:
Grundflächenzahl: 0,2 -> 500*0,2=100
Geschossflächenzahl: 0,3 -> 500*0,3=150
Die Geschossigkeit mit 1,5 meint genau genommen: 1-geschossig mit ausgebautem DG
Ein Haus mit Pultdach würde in den Bebauungsplan passen, ein paar Grundstücke weiter (gleicher Bebauungsplan) steht ein Haus, welches ähnlich unseren Wünschen ist.
Die Herausrechnung des Bades sowie des Luftraums aus der Geschossflächenzahl resultiert aus der Aussage des Herren beim Bauamt, wo wir schon waren, um uns zu erkundigen.
Das Bad, welches sich nicht in einem Vollgeschoss befindet, ist nach damaliger Rechtslage kein Aufenthaltsraum und wird daher aus der Geschossflächenzahl (die sich nach den Außenmaßen bestimmt) wieder herausgerechnet. Ebenso wird wahrscheinlich mit dem Ankleidezimmer (da Abstellraum) verfahren werden.
Ich hoffe, ich konnte etwas Klarheit schaffen
O
Obstlerbaum21.09.18 22:09War im Eingangspost eine Doppelhaushälfte erwähnt? Wie auch immer: Badezimmer nach Südwesten geöffnet, dafür das Kind nur im Hochsommer überhaupt ein paar Minuten Sonne am Morgen? Sollte es sich nicht um eine Doppelhaushälfte handeln, wiegt der Fall noch schwerer...
Obstlerbaum schrieb:
War im Eingangspost eine Doppelhaushälfte erwähnt? Wie auch immer: Badezimmer nach Südwesten geöffnet, dafür das Kind nur im Hochsommer überhaupt ein paar Minuten Sonne am Morgen? Sollte es sich nicht um eine Doppelhaushälfte handeln, wiegt der Fall noch schwerer...Nein, es handelt sich um ein freistehendes Einfamilienhaus und keine Doppelhaushälfte.
Ich habe die Nordausrichtung noch mal an den Lageplan angepasst, da ist mir ein Fehler passiert, sorry.
Die angepassten Dateien habe ich im Eingangspost hochgeladen.
Die Kinderzimmer sind zur Süd bzw Westseite. Bad und Elternschlafzimmer zur Nordseite.
Das Budget und das Haus passen nicht zusammen.
Versucht 4 gerade Außenwände zu bekommen.
Das Haus ist zu Klein für gerade Treppe und Galerie
Es fehlt an Stauplatz - Außer der überdimensionierten Ankleide
Wo ist die Garderobe für 5 Personen?
Hauswirtschaftsraum/Haustechnik/Abstellraum zu klein.
Schon mal versucht die Küche zu möblieren?
Nehmt die Türe Hauswirtschaftsraum Küche raus. Nimmt euch im Hauswirtschaftsraum wertvolle Fläche. Küche bekommt Türe zum Flur.
Treppe sieht sehr klein aus.
OG
Ankleide fast so groß wie die Kinderzimmer.
Im Badezimmer schon mal Badewanne, Dusche, WC und Waschbecken eingezeichnet? Ein richtiger Schrank sollte auch noch rein für Handtücher und Hygieneartikel für 5 Personen
Flur und Galerie sind Platzfresser. Gerade den 2 kleinen Kinderzimmer würde etwas mehr nicht schaden.
Was passiert mit dem Erker Essen im OG?
Zeichnet mal in allen Räumen eine richtige Möblierung ein im Maßstab
Versucht 4 gerade Außenwände zu bekommen.
Das Haus ist zu Klein für gerade Treppe und Galerie
Es fehlt an Stauplatz - Außer der überdimensionierten Ankleide
Wo ist die Garderobe für 5 Personen?
Hauswirtschaftsraum/Haustechnik/Abstellraum zu klein.
Schon mal versucht die Küche zu möblieren?
Nehmt die Türe Hauswirtschaftsraum Küche raus. Nimmt euch im Hauswirtschaftsraum wertvolle Fläche. Küche bekommt Türe zum Flur.
Treppe sieht sehr klein aus.
OG
Ankleide fast so groß wie die Kinderzimmer.
Im Badezimmer schon mal Badewanne, Dusche, WC und Waschbecken eingezeichnet? Ein richtiger Schrank sollte auch noch rein für Handtücher und Hygieneartikel für 5 Personen
Flur und Galerie sind Platzfresser. Gerade den 2 kleinen Kinderzimmer würde etwas mehr nicht schaden.
Was passiert mit dem Erker Essen im OG?
Zeichnet mal in allen Räumen eine richtige Möblierung ein im Maßstab
Ähnliche Themen