Hallo in die Runde,
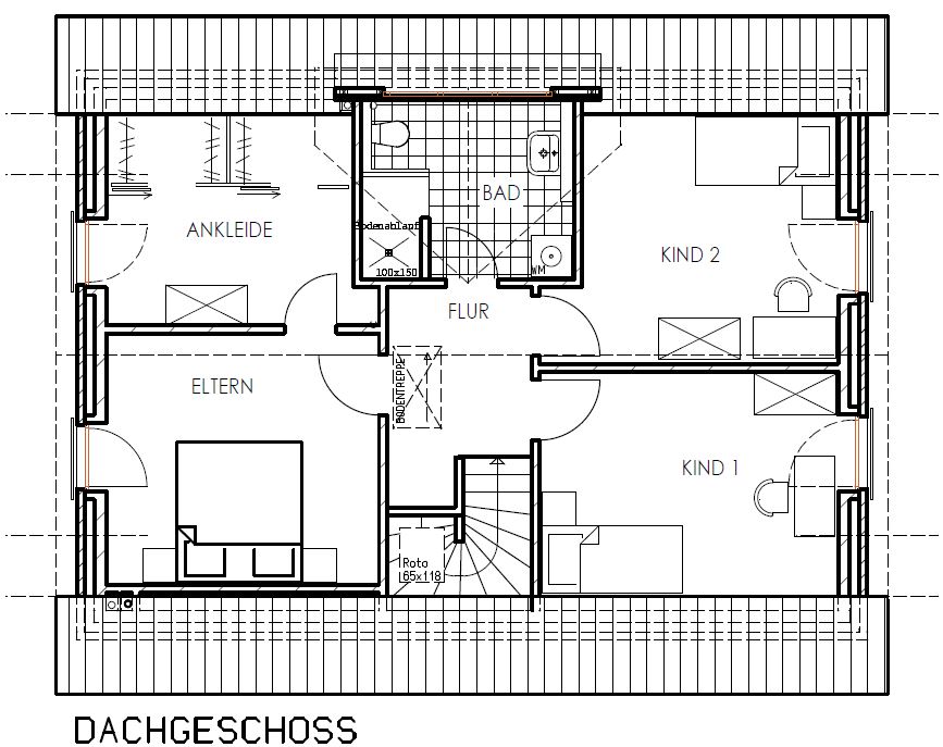
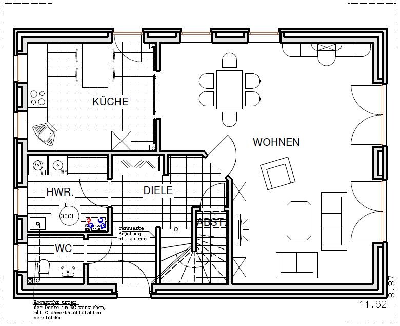
wir planen einen Einfamilienhaus-Neubau. Aktuell sind unsere Wünsche bereits im Grundriss eingezeichnet. Vielleicht hat aber noch der ein oder andere von euch eine schöne Idee oder Tipp zur Planung. Nord-Süd-Achse geht von der Außenecke Küche (Norden) zur Außenecke Wohnen (Süden).
Wir sind für Vorschläge offen. 🙂
Gruß Marco

wir planen einen Einfamilienhaus-Neubau. Aktuell sind unsere Wünsche bereits im Grundriss eingezeichnet. Vielleicht hat aber noch der ein oder andere von euch eine schöne Idee oder Tipp zur Planung. Nord-Süd-Achse geht von der Außenecke Küche (Norden) zur Außenecke Wohnen (Süden).
Wir sind für Vorschläge offen. 🙂
Gruß Marco
F
friedel2712.05.14 18:55.
Maße haben wir in unserer Skizze leider nicht, jedoch die ca. Wohnfläche
Wohnen - ca. 40,5qm
Küche - 13,3qm
Hauswirtschaftsraum - 5,8qm
WC - 2,5qm
Diele - 10,5qm
Abstellr. unter der Treppe - 2,2qm
Eltern - 13,2qm
Kind 1 - 12,4qm
Kind 2 -12,7qm
Ankleide - 9,8qm
Bad - 8qm
Flur 6qm
Im Bad haben wir bewusst auf die Wanne verzichtet und uns für eine große bodengleiche Dusche entschieden.Wir stellen lieber die Waschmaschine ins Bad.
Die große Ankleide hat sich so ergeben und soll dann auch als Bügelzimmer genutzt werden.
Kind 1 wird von mir als Homeoffice und Kind 2 als Gästezimmer, bzw Nähzimmer genutzt.
In der Küche wird es später keine tote Ecke geben. Die Küchenzeile soll bis an die Schiebetür gehen.
Im Wohnzimmer wird später die Couch natürlich nicht mit dem Rücken zum Fenster stehen.
Die Garderobe war ursprünglich zwischen WC und Haustür geplant. Allerdings ist dort nicht viel Platz und so haben wir uns für die jetzige Variante mit 1,6m breite entschieden. Geschlossen soll sie mit einer deckenhohen 2teiligen Schiebetür.
Gruß Marco
Wohnen - ca. 40,5qm
Küche - 13,3qm
Hauswirtschaftsraum - 5,8qm
WC - 2,5qm
Diele - 10,5qm
Abstellr. unter der Treppe - 2,2qm
Eltern - 13,2qm
Kind 1 - 12,4qm
Kind 2 -12,7qm
Ankleide - 9,8qm
Bad - 8qm
Flur 6qm
Im Bad haben wir bewusst auf die Wanne verzichtet und uns für eine große bodengleiche Dusche entschieden.Wir stellen lieber die Waschmaschine ins Bad.
Die große Ankleide hat sich so ergeben und soll dann auch als Bügelzimmer genutzt werden.
Kind 1 wird von mir als Homeoffice und Kind 2 als Gästezimmer, bzw Nähzimmer genutzt.
In der Küche wird es später keine tote Ecke geben. Die Küchenzeile soll bis an die Schiebetür gehen.
Im Wohnzimmer wird später die Couch natürlich nicht mit dem Rücken zum Fenster stehen.
Die Garderobe war ursprünglich zwischen WC und Haustür geplant. Allerdings ist dort nicht viel Platz und so haben wir uns für die jetzige Variante mit 1,6m breite entschieden. Geschlossen soll sie mit einer deckenhohen 2teiligen Schiebetür.
Gruß Marco
W
wadenkneifer12.05.14 19:41Moin,
wenn die Kinderzimmer sowieso "nur" als Büro und als Gästezimmer genutzt werden sollen und ausgeschlossen ist, dass es Kinderzimmer werden würde ich einiges an dem Grundriss auf dem Kopf stellen:
- Das Badezimmer auf die Süd-Ost-Seite mit Badewanne.
- Gästezimmer auf die Süd-West-Seite
- Büro auf die Nord-West-Seite (kühler zum Arbeiten, weniger direkte Sonneneinstrahlung).
- Schlafzimmer in die Ankleide und Ankleide ins jetzige Bad mit direktem Zugang vom Schlafzimmer
Der Hauswirtschaftsraum mit knapp 6 QM und großem Speicher ist ziemlich knapp bemessen. Auch wenn die Waschmaschine oben im Bad steht kann man sich dort kaum umdrehen. Waschmaschine im Bad wäre für mich übrigens No-Go, ich stell gerne abends mal ne Maschine an und lass die über Nacht laufen. Das stört im Hauswirtschaftsraum deutlich weniger als im Bad.
Warum soll das Abgasrohr durchs Gäste-WC geführt werden? gibts dort keine andere Lösung?
Wie möchtest Du das Wohnzimmer/die Sitzecke stellen, damit keine großen Rückenflächen zur Tür stehen?
Die Treppe spart natürlich Platz, finde ich aber sehr unschön zu gehen.
Das Fenster im Schlafzimmer erscheint mir sehr klein zu sein. Hat das die ausreichende Größe? Ebenso die Fenster in den Kinderzimmern.
Hast Du schon Ansichten vom Haus vorliegen? Die Fenster scheinen sehr unterschiedlich zu sein und von den Positionen nicht aufeinander abgestimmt, wenn ich das so richtig interpretiere.
Viele Grüße
Michael
wenn die Kinderzimmer sowieso "nur" als Büro und als Gästezimmer genutzt werden sollen und ausgeschlossen ist, dass es Kinderzimmer werden würde ich einiges an dem Grundriss auf dem Kopf stellen:
- Das Badezimmer auf die Süd-Ost-Seite mit Badewanne.
- Gästezimmer auf die Süd-West-Seite
- Büro auf die Nord-West-Seite (kühler zum Arbeiten, weniger direkte Sonneneinstrahlung).
- Schlafzimmer in die Ankleide und Ankleide ins jetzige Bad mit direktem Zugang vom Schlafzimmer
Der Hauswirtschaftsraum mit knapp 6 QM und großem Speicher ist ziemlich knapp bemessen. Auch wenn die Waschmaschine oben im Bad steht kann man sich dort kaum umdrehen. Waschmaschine im Bad wäre für mich übrigens No-Go, ich stell gerne abends mal ne Maschine an und lass die über Nacht laufen. Das stört im Hauswirtschaftsraum deutlich weniger als im Bad.
Warum soll das Abgasrohr durchs Gäste-WC geführt werden? gibts dort keine andere Lösung?
Wie möchtest Du das Wohnzimmer/die Sitzecke stellen, damit keine großen Rückenflächen zur Tür stehen?
Die Treppe spart natürlich Platz, finde ich aber sehr unschön zu gehen.
Das Fenster im Schlafzimmer erscheint mir sehr klein zu sein. Hat das die ausreichende Größe? Ebenso die Fenster in den Kinderzimmern.
Hast Du schon Ansichten vom Haus vorliegen? Die Fenster scheinen sehr unterschiedlich zu sein und von den Positionen nicht aufeinander abgestimmt, wenn ich das so richtig interpretiere.
Viele Grüße
Michael
Ist es wirklich so, dass oben links Nord und unten rechts Süd ist????? 😱
Dann werdet Ihr über ein halbes Jahr im "Dunkeln" leben. Natürlich fällt durch jedes Fenster Licht, dennoch wird es kein (direktes) Sonnenlicht sein.
Die schöne Westsonne habt Ihr gar nicht, ausser am Abend im WC und Hauswirtschaftsraum.
Ich würde deshalb das Haus um 90 Grad drehen... oder besser noch in der Mitte spiegeln... Wie auch immer: mit der Standardvariante Rechteck als Hausgrundriss kann man auf jeden Fall die Räume besser an den Himmelsrichtungen anordnen.
Aber ohne Lage des Grundrisses (Zufahrt, Anfahrt, Nachbarbebauung etc) kann man jetzt da auch keine weiteren Tipps geben.
-> Treppe, Hauswirtschaftsraum und WC im Norden, Küche im Osten, Wohnräume im Süden und Westen.
Auch wenn zur Zeit keine Badewanne gebraucht wird, sollte eine Wanne in einem Einfamilienhaus Standard sein. Vlt müsst Ihr mal wegen Krankheit Bäder nehmen?! Auch wegen des Wiederverkaufswert sollte diese vorhanden sein: Platz ist ja immens - Wände kann man oben auch schieben (nur muss der Architekt, Bauunternehmer auch mal etwas für sein Geld tun)
Auch sollte ein Platz für Trockner zumindest eingeplant werden, auch wenn man diesen noch nicht hat oder für nötig hält.
Aber dann bitte nicht als Turm im Bad, sondern als separate Einheit, zB in der Ankleide in einer Nische integriert.
Dann werdet Ihr über ein halbes Jahr im "Dunkeln" leben. Natürlich fällt durch jedes Fenster Licht, dennoch wird es kein (direktes) Sonnenlicht sein.
Die schöne Westsonne habt Ihr gar nicht, ausser am Abend im WC und Hauswirtschaftsraum.
Ich würde deshalb das Haus um 90 Grad drehen... oder besser noch in der Mitte spiegeln... Wie auch immer: mit der Standardvariante Rechteck als Hausgrundriss kann man auf jeden Fall die Räume besser an den Himmelsrichtungen anordnen.
Aber ohne Lage des Grundrisses (Zufahrt, Anfahrt, Nachbarbebauung etc) kann man jetzt da auch keine weiteren Tipps geben.
-> Treppe, Hauswirtschaftsraum und WC im Norden, Küche im Osten, Wohnräume im Süden und Westen.
Auch wenn zur Zeit keine Badewanne gebraucht wird, sollte eine Wanne in einem Einfamilienhaus Standard sein. Vlt müsst Ihr mal wegen Krankheit Bäder nehmen?! Auch wegen des Wiederverkaufswert sollte diese vorhanden sein: Platz ist ja immens - Wände kann man oben auch schieben (nur muss der Architekt, Bauunternehmer auch mal etwas für sein Geld tun)
Auch sollte ein Platz für Trockner zumindest eingeplant werden, auch wenn man diesen noch nicht hat oder für nötig hält.
Aber dann bitte nicht als Turm im Bad, sondern als separate Einheit, zB in der Ankleide in einer Nische integriert.
Ähnliche Themen