Hausbau - Ratgeber
Bauherrenhilfe
- Bauherrenhilfe vor Vertragsabschluss
-- Warum einen unabhängigen Baubetreuer?
-- Vertragsgrundlagen
-- Bausumme
-- Zahlungsplan zur Kostenkontrolle
-- Pflichten des Bauherren vor Vertragsabschluss
-- Unterlagen beim Hausbau vor Vertragsabschluss
- Bauherrenhilfe nach Vertragsabschluss
-- Bauantrag bei Behörden
-- Bau-Genehmigungsverfahren bei Baubehörden
-- Bauspezifische Versicherungen
-- Bauzeitenplan
-- Baubeginn - die Letzten Pflichten der Bauherrschaft
- Bauherrenhilfe während der Bauzeit
- Gewährleistungsansprüche
- Bauabnahme
Baufinanzierung
- Baufinanzierung - Allgemeine Fragen
- Kreditarten
- Kredit-Konditionen
- Bausparen
- Staatliche Förderungen
- Verkehrswert
- Haushaltsrechnung und Bonität
Hausbau Planung
- Haustypen
- Hausbau Vorbereitungsarbeiten
- Das Baugrundstück
- Baugrund beim Hausbau
- Baurecht
- Gebäudeschutz
- Erdarbeiten und Wasserhaltung
- Stützmauern
- Einfriedung
- Untergeschoss
- Kanalisation
- Tragende Elemente
- Nichttragende Innenwände
- Fundation / Fundament
- Deckenkonstruktionen
- Dächer
- Kaminanlagen
- Treppen Rampen Leitern
- Dachbeläge und Spengler
- Fenster
- Sonnen und Wetterschutz
- Aussenputze
- Einbauten, Küchen, Türen
- Bodenbeläge und Unterlagsböden
- Parkett
- Gips, Wand, Decke
Haustechnik und Energie
- Heiztechnik
- Lüftung und Klimatechnik
- Sanitärtechnik
- Elektrotechnik
- Erneuerbare Energie
Whirlpools / Jacuzzi
Hausbau Magazin
- Baufinanzierung trotz Krise?
- Das Blockhaus
- Moderne Dämmstoffe im Vergleich
- Erker Vor- und Nachteile
- Glasflächen beim Hausbau
- Günstig ein Haus Bauen
- Mediterraner Hausbaustil
- Mehrgenerationenhaus
- Moderne Architektur
- Gartengestaltung leicht gemacht
- Traditioneller Ziegelbau
- Villa als höchster Traum
- Im Eigenheim Ruhestand geniessen
- Altbau sanieren
- Kauf einer Holzgarage
- Immobilienmakler
- Arbeitshandschuhe für den Winter
- Zuhause verschönern
- Outdoor-Plissees
- Schlafzimmer planen
- Terrassenüberdachung
- Wohngebäudeversicherung
- Zaunarten und Eigenschaften
- Hauseingang gestalten
- Der perfekte Grundriss
- Sparsamer heizen im Altbau
- Einfamilienhaus smart finanzieren
- Planung einer PV-Anlage
- Neues Haus
- Immobilienfinanzierung
- Installation einer Photovoltaikanlage
- Asbest erkennen und entfernen
- Gartenpflege im Frühling – worauf achten
- Sauna im Fokus - Wellness zuhause
- Erfolgreich vermieten
- Die perfekte Winterbekleidung
- Das Niedrigenergiehaus
- Der April und seine Stürme
- Architektonische Vielfalt
- Ökologisch und nachhaltig bauen
- Das perfekte Schlafzimmer
- Nachhaltige Energieversorgung
- Zukunftsorientiert bauen
- Nachhaltigkeit beim Hausbau
- Tiny Houses
- Wärmepumpen als nachhaltige Heizvariante
- Maßgeschneiderten Kleiderschrank
- Der richtige Baukredit
- Ratgeber für erfolgreichen Hausbau
- Haus als Altersvorsorge
Do-it-yourself Anleitungen
- Verlegeanleitung für Bodenbeläge und Parkett
- Bodenbeläge und Parkett reinigen und pflegen
- Malerarbeiten am Haus
- Garten Tipps
- Umzug und Reinigung

ᐅ Grundrissplanung Doppelhaushälfte (150qm): Eure Meinung?

Erstellt am: 28.04.17 21:11
R
RahliMarcel
R
RahliMarcel
28.04.17 21:11
Hallo zusammen,

wir sind in der Planung zu unserer Doppelhaushälfte einen Schritt weiter und haben vom Architekten des Bauträgers einen Entwurf bekommen, den wir zusammen besprochen hatten.

Was meint ihr? Fällt Euch noch etwas auf - gerne kommentieren.

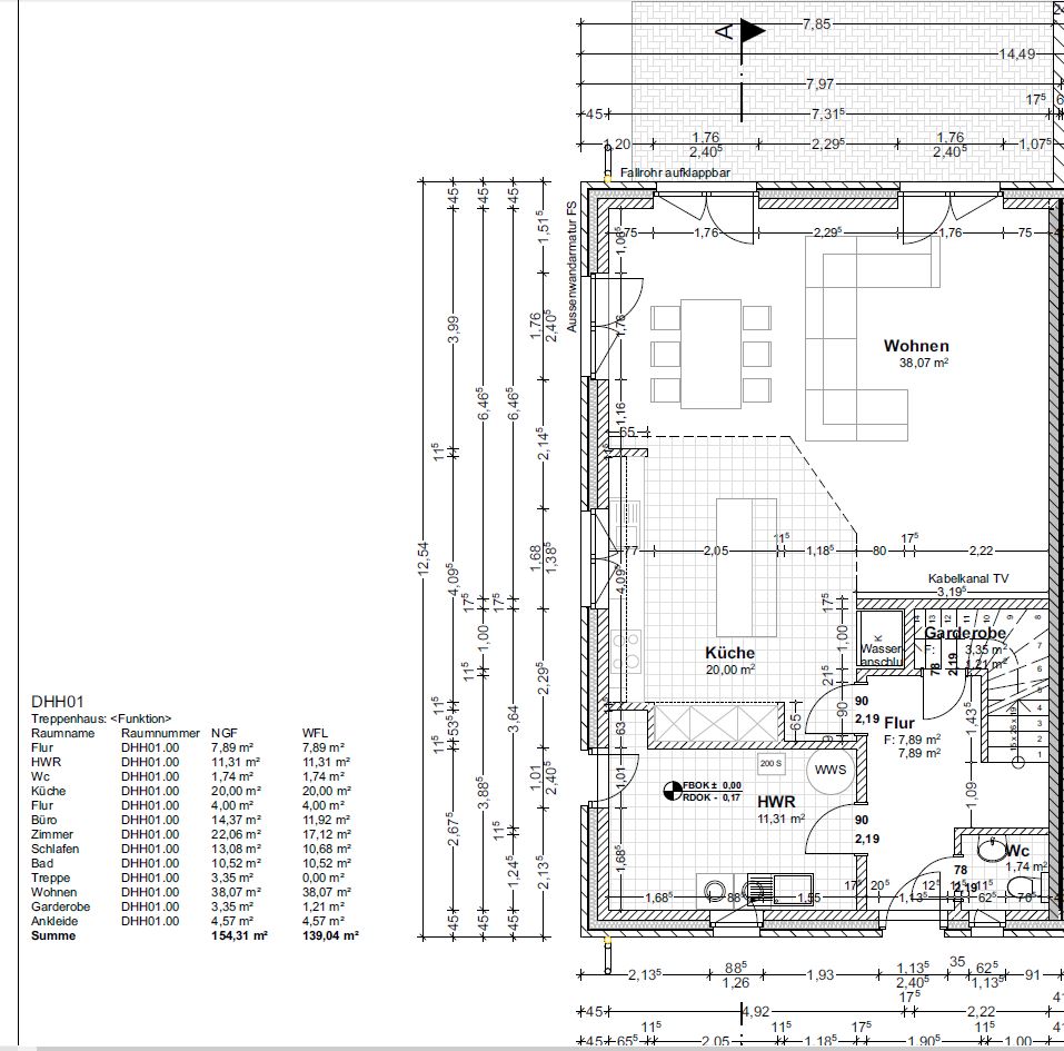
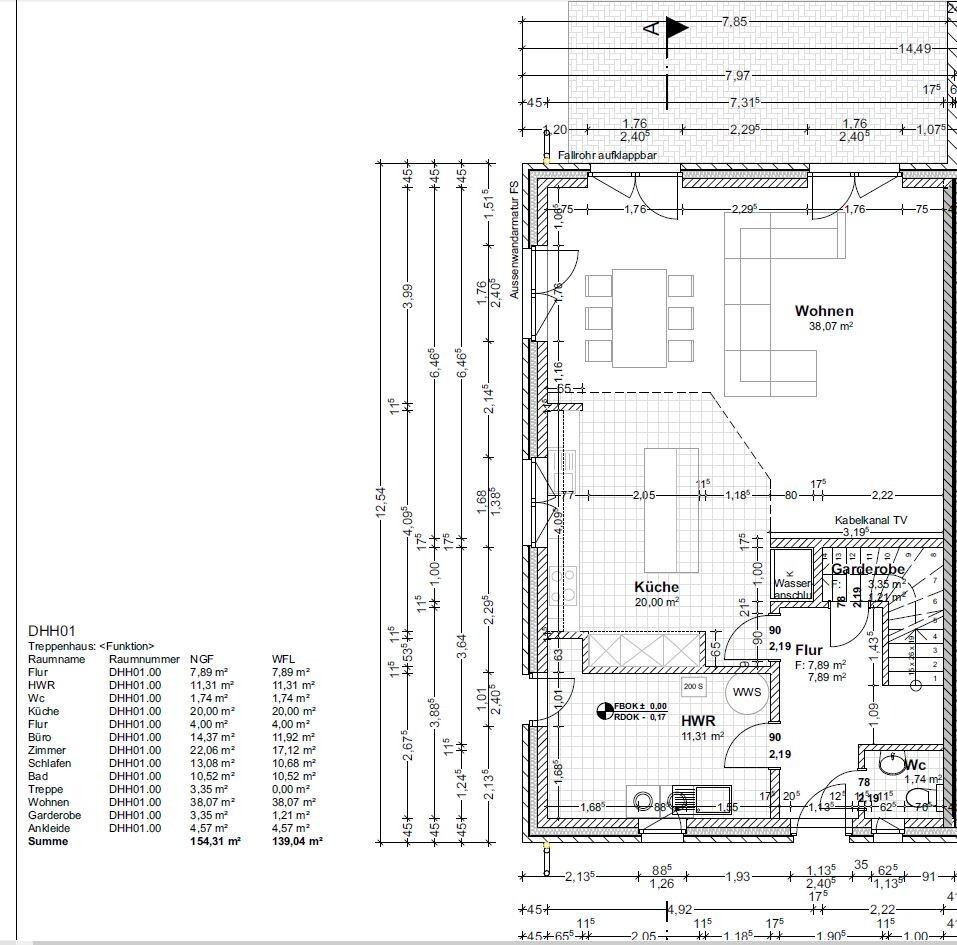
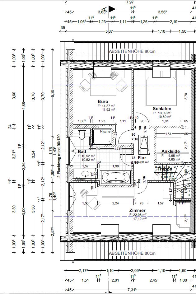
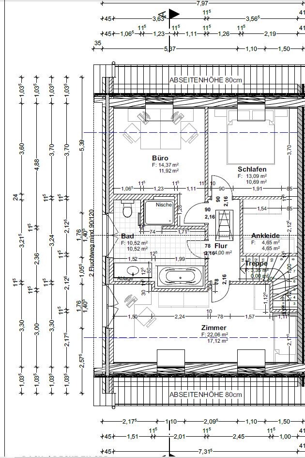
Größe
Das Grundstück ist 465qm groß (Grundflächenzahl & Geschossflächenzahl sind 0,3) und das Haus soll 154,31qm (DIN) haben. Kniestpck / Drempelhöhe sind Außen bei 50cm vorgeschrieben, innen auf 80cm angehoben. Die Terrasse ist östlich ausgerichtet.

Was war uns wichtig:
  • großer Wohn & Essbereich
  • Side by Side-Kühlschrank & Hochschränk in Wände eingefasst
  • Trockner & Waschmaschine im Hauswirtschaftsraum
  • Kleine Flure
  • Im Obergeschoss
  • großes Kinderzimmer mit Bett-Nische
  • kleines Schlafzimmer
  • Büro
  • eingefasste Duschnische
R
RahliMarcel
28.04.17 21:16

Grundrissplan eines Hauses mit Wohnbereich, Küche und Flur, maßstabgetreu

Grundrissplan eines Wohnhauses mit Büro, Schlafraum, Bad, Flur und Treppe

Technische Dach- und Deckenplanung mit Materialliste für Hausbau

Technische Rohbau- und Fundamentzeichnung mit Dach, Decken, Wänden und Mauerwerk
M
Marvinius
28.04.17 21:42
Küche und Büro: Man kommt zur Tür rein und steht zunächst vor einer Wand, finde ich eher ungünstig. Küche ist sehr groß und wird damit auch eher teuer, habt Ihr das schon berücksichtigt?
R
RobsonMKK
28.04.17 21:53
Wer wird denn in dem Haus wohnen?
G
Grym
28.04.17 22:23
65cm zur Ankleide sind arg wenig, ebenso 74cm zur Dusche. Würde mich dann an einer normalen Tür orientieren, also ca. 90cm Durchgang jeweils.

Natürlich ist der Grundriss nicht 100% optimal, aber schon nicht schlecht. Gestaltungsmöglichkeiten sind ja wegen Beschränkungen im Platzangebot und der Tatsache Doppelhaushälfte beschränkt. Die Küche finde ich nicht groß, sondern normal und gut.

So eine im Raum stehende Couch muss man mögen.

Nur maximal 1 Kind geplant, oder?

Ankleide bisschen knapp, aber deswegen darf da trotzdem kein Nischendurchgang hin.

Garderobe etwas weit vom Eingang entfernt.

Hauswirtschaftsraum gut und groß.

Schlafzimmer: Bett ist unter dem Fenster??
Y
yvonnebo
28.04.17 22:32
Die Anordnung der Räume werdet ihr euch sicherlich genau überlegt haben.

Ich würde allerdings des Zugang ins WC auf die andere Wand verlegen, irgendwo müssen ja die Straßenschuhe ausgezogen werden. Da läuft man ja dann immer durch um aufs WC zu gehen.
Küche und Büro finde ich den Zugang auch unglücklich, besser wäre vielleicht eine Wand in 45° für die Tür zu setzen.
küchetürdoppelhaushälftehauswirtschaftsraumbettschlafzimmerankleide