ᐅ Grundriss Einfamilienhaus 1,5 Geschosse, Satteldach ohne Keller, 190m²
Erstellt am: 06.03.23 10:05
D
droopy987D
droopy98706.03.23 10:05Moin,
hier zunächst die Beantwortung der Fragen. Unser Planung sieht ein Einfamilienhaus mit ca. 190 m² nach Din 277 vor.
Bebauungsplan/Einschränkungen
Größe des Grundstücks: 700 m²
Hang: nein
Grundflächenzahl: 0,3
Geschossflächenzahl: 2
Baufenster, Baulinie und -grenze:
Randbebauung:
Anzahl Stellplatz: 2
Geschossigkeit: 1,5
Dachform: Satteldach
Stilrichtung: Einfamilienhaus
Ausrichtung: Richtung Westen
Maximale Höhen/Begrenzungen: max. 9m Höhe
weitere Vorgaben
Anforderungen der Bauherren
Stilrichtung, Dachform, Gebäudetyp: Einfamilienhaus mit Satteldach
Keller, Geschosse: Keller nein, EG+OG
Anzahl der Personen, Alter: 2 Erwachsene + 2 Kinder geplant
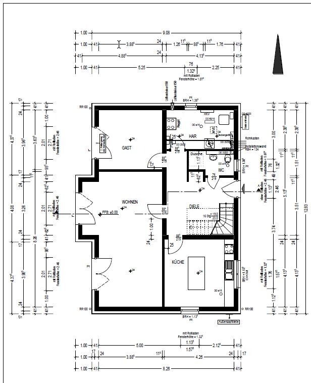
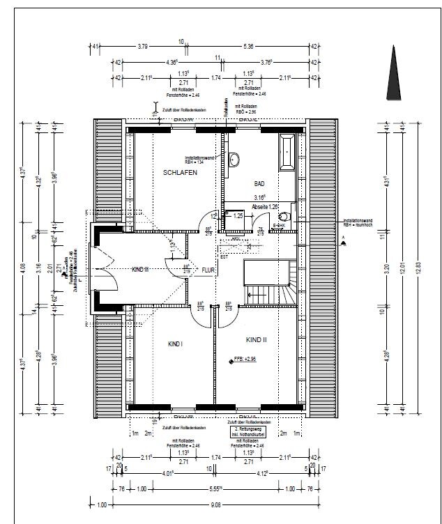
Raumbedarf im EG, OG: EG --> Wohnzimmer, Küche, Gästezimmer, Duschbad, HAR. OG --> Schlafzimmer, Bad, 2 Kinderzimmer + Büro, ggfs. kleiner Abstellraum
Büro: Familiennutzung oder Homeoffice? Homeoffice
Schlafgäste pro Jahr:
offene oder geschlossene Architektur: eher geschlossen, aber generell offen für alles
konservativ oder moderne Bauweise: modern
offene Küche, Kochinsel: eher geschlossene Küche, ohne Insel
Anzahl Essplätze: 4
Kamin: nein
Musik/Stereowand: nein
Balkon, Dachterrasse: nein
Garage, Carport: Ja, Carport geplant
Nutzgarten, Treibhaus
weitere Wünsche/Besonderheiten/Tagesablauf, gern auch Begründungen, warum dieses oder das nicht sein soll:
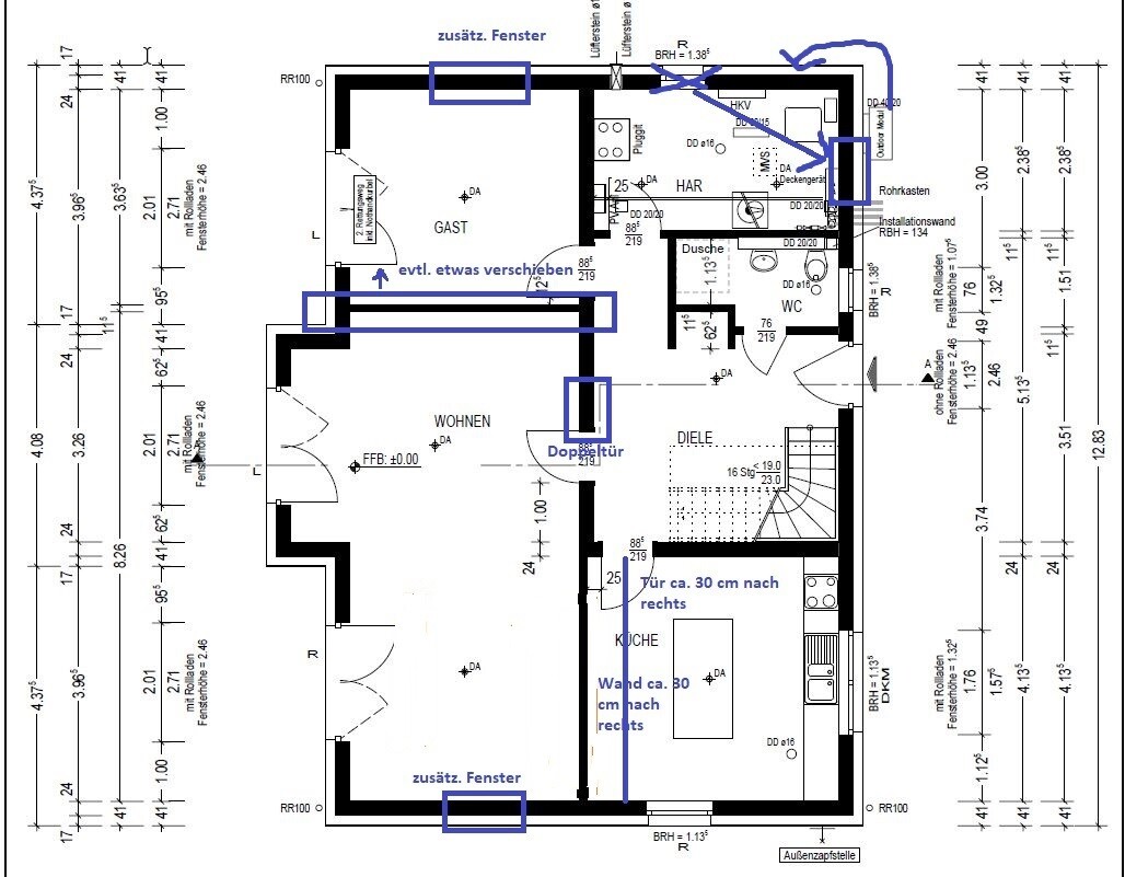
Küche sollte eher geschlossen sein zum Wohnzimmer wegen Gerüchen etc. Daher die Wand zum Wohnzimmer. Diese würden wir allerdings gerne ein bisschen Richtung Küche verschieben, um im Wohnzimmer eine Nische für Sofa / TV zu bekommen. Platzierung des TVs und des sofas im EG ist für uns noch eine Herausforderung. Ideen sind gerne genommen.
Im OG wollen wir die Wand zum Bad etwas verschieben, damit man im Schlafzimmer quasi hinter die Tür den schrank stellen kann, damit man nicht, wenn man reinkommt, direkt auf einen Schrank läuft. Aber nur soweit verschieben, damit die Dusche noch hinter die Tür passt im Bad. Wir haben uns auch sehr lange Gedanken gemacht, ob wir auch noch eine Ankleide realisieren wollen bzw. das Giebelzimmer dafür nutzen wollen, haben uns aber dagegen entschieden, da das Zimmer uns dafür "zu schade" ist. Da wir das Schlafzimmer genau dort haben wollen, wo es jetzt ist und auch wollen, dass die Kinderzimmer gleich sind, gibt es keine andere Möglichkeiten bzgl. Ankleide. Zumindest sind uns keine mehr eingefallen. Solltet ihr noch eine Idee haben, um eine Ankleide zu realisieren, gerne her damit.
Die Positionierung der einzelnen Zimmer haben wir uns überlegt. So soll die Küche im EG nach Osten zeigen, um morgens dann ein bisschen Sonne in der Küche zu haben. Im OG sollen beide Kinderzimmer nach Süden zeigen, damit diese auch hell sind. Daher auch das Schlafzimmer im Norden. Aufgrund dessen ergibt sich auch die Platzierung des Bads und des Giebels.
Hausentwurf
Von wem stammt die Planung:
-Planer eines Bauunternehmens
Was gefällt besonders? Warum?
Giebelzimmer im OG, Größe der einzelnen Räume, helles Wohnzimmer durch die 3 Türen.
Was gefällt nicht? Warum?
Ankleide fehlt bzw. nur schwer realisierbar bei der derzeitigen Platzierung der Räume. Wohnzimmer durch Wand zur Küche ggfs. etwas zu klein. Möglichkeiten zur Platzierung von Sofa und TV schwierig.
Preisschätzung lt Architekt/Planer:
Persönliches Preislimit fürs Haus, inkl Ausstattung:
favorisierte Heiztechnik: Wärmepumpe
Wenn Ihr verzichten müsst, auf welche Details/Ausbauten
-könnt Ihr verzichten: Ankleide
-könnt Ihr nicht verzichten: helles, großes Wohnzimmer. Schlafzimmer sollte so gestaltet sein, dass man nicht direkt vor den Schrank läuft, wenn man reingeht.
Warum ist der Entwurf so geworden, wie er jetzt ist? ZB
Standardentwurf vom Planer? Mehr oder weniger Standardentwurf
Entsprechende/Welche Wünsche wurden vom Architekten umgesetzt? Küche geschlossen, Duschbad im EG
Ein Gemisch aus vielen Beispielen aus div. Magazinen...
Was macht ihn in Euren Augen besonders gut oder schlecht? Generelle Aufteilung der Zimmer gefällt uns sehr.
Was ist die wichtigste/grundlegende Frage zum Grundriss in 130 Zeichen zusammengefasst?
Andere Aufteilung des EGs für Platzierung von Sofa/TV + Möglichkeiten Ankleide im OG? --> Optimale Aufteilung der ca. 190 m²
Wir wären euch sehr dankbar für Anregungen und Tipps zu unserem Bauvorhaben! Ein paar Anpassungen haben wir unten schon eingezeichnet, sind aber generell offen. Vielen Dank vorab!




hier zunächst die Beantwortung der Fragen. Unser Planung sieht ein Einfamilienhaus mit ca. 190 m² nach Din 277 vor.
Bebauungsplan/Einschränkungen
Größe des Grundstücks: 700 m²
Hang: nein
Grundflächenzahl: 0,3
Geschossflächenzahl: 2
Baufenster, Baulinie und -grenze:
Randbebauung:
Anzahl Stellplatz: 2
Geschossigkeit: 1,5
Dachform: Satteldach
Stilrichtung: Einfamilienhaus
Ausrichtung: Richtung Westen
Maximale Höhen/Begrenzungen: max. 9m Höhe
weitere Vorgaben
Anforderungen der Bauherren
Stilrichtung, Dachform, Gebäudetyp: Einfamilienhaus mit Satteldach
Keller, Geschosse: Keller nein, EG+OG
Anzahl der Personen, Alter: 2 Erwachsene + 2 Kinder geplant
Raumbedarf im EG, OG: EG --> Wohnzimmer, Küche, Gästezimmer, Duschbad, HAR. OG --> Schlafzimmer, Bad, 2 Kinderzimmer + Büro, ggfs. kleiner Abstellraum
Büro: Familiennutzung oder Homeoffice? Homeoffice
Schlafgäste pro Jahr:
offene oder geschlossene Architektur: eher geschlossen, aber generell offen für alles
konservativ oder moderne Bauweise: modern
offene Küche, Kochinsel: eher geschlossene Küche, ohne Insel
Anzahl Essplätze: 4
Kamin: nein
Musik/Stereowand: nein
Balkon, Dachterrasse: nein
Garage, Carport: Ja, Carport geplant
Nutzgarten, Treibhaus
weitere Wünsche/Besonderheiten/Tagesablauf, gern auch Begründungen, warum dieses oder das nicht sein soll:
Küche sollte eher geschlossen sein zum Wohnzimmer wegen Gerüchen etc. Daher die Wand zum Wohnzimmer. Diese würden wir allerdings gerne ein bisschen Richtung Küche verschieben, um im Wohnzimmer eine Nische für Sofa / TV zu bekommen. Platzierung des TVs und des sofas im EG ist für uns noch eine Herausforderung. Ideen sind gerne genommen.
Im OG wollen wir die Wand zum Bad etwas verschieben, damit man im Schlafzimmer quasi hinter die Tür den schrank stellen kann, damit man nicht, wenn man reinkommt, direkt auf einen Schrank läuft. Aber nur soweit verschieben, damit die Dusche noch hinter die Tür passt im Bad. Wir haben uns auch sehr lange Gedanken gemacht, ob wir auch noch eine Ankleide realisieren wollen bzw. das Giebelzimmer dafür nutzen wollen, haben uns aber dagegen entschieden, da das Zimmer uns dafür "zu schade" ist. Da wir das Schlafzimmer genau dort haben wollen, wo es jetzt ist und auch wollen, dass die Kinderzimmer gleich sind, gibt es keine andere Möglichkeiten bzgl. Ankleide. Zumindest sind uns keine mehr eingefallen. Solltet ihr noch eine Idee haben, um eine Ankleide zu realisieren, gerne her damit.
Die Positionierung der einzelnen Zimmer haben wir uns überlegt. So soll die Küche im EG nach Osten zeigen, um morgens dann ein bisschen Sonne in der Küche zu haben. Im OG sollen beide Kinderzimmer nach Süden zeigen, damit diese auch hell sind. Daher auch das Schlafzimmer im Norden. Aufgrund dessen ergibt sich auch die Platzierung des Bads und des Giebels.
Hausentwurf
Von wem stammt die Planung:
-Planer eines Bauunternehmens
Was gefällt besonders? Warum?
Giebelzimmer im OG, Größe der einzelnen Räume, helles Wohnzimmer durch die 3 Türen.
Was gefällt nicht? Warum?
Ankleide fehlt bzw. nur schwer realisierbar bei der derzeitigen Platzierung der Räume. Wohnzimmer durch Wand zur Küche ggfs. etwas zu klein. Möglichkeiten zur Platzierung von Sofa und TV schwierig.
Preisschätzung lt Architekt/Planer:
Persönliches Preislimit fürs Haus, inkl Ausstattung:
favorisierte Heiztechnik: Wärmepumpe
Wenn Ihr verzichten müsst, auf welche Details/Ausbauten
-könnt Ihr verzichten: Ankleide
-könnt Ihr nicht verzichten: helles, großes Wohnzimmer. Schlafzimmer sollte so gestaltet sein, dass man nicht direkt vor den Schrank läuft, wenn man reingeht.
Warum ist der Entwurf so geworden, wie er jetzt ist? ZB
Standardentwurf vom Planer? Mehr oder weniger Standardentwurf
Entsprechende/Welche Wünsche wurden vom Architekten umgesetzt? Küche geschlossen, Duschbad im EG
Ein Gemisch aus vielen Beispielen aus div. Magazinen...
Was macht ihn in Euren Augen besonders gut oder schlecht? Generelle Aufteilung der Zimmer gefällt uns sehr.
Was ist die wichtigste/grundlegende Frage zum Grundriss in 130 Zeichen zusammengefasst?
Andere Aufteilung des EGs für Platzierung von Sofa/TV + Möglichkeiten Ankleide im OG? --> Optimale Aufteilung der ca. 190 m²
Wir wären euch sehr dankbar für Anregungen und Tipps zu unserem Bauvorhaben! Ein paar Anpassungen haben wir unten schon eingezeichnet, sind aber generell offen. Vielen Dank vorab!
Es wäre geschickt, die Maßlinien nicht so abzuschneiden. Mit der Verschiebung der Wand geriete die Küchentür zu nah unter die Treppe. Bei 190 qm sehe ich noch deutlich Potential nach unten ;-)
https://www.instagram.com/11antgmxde/
https://www.linkedin.com/company/bauen-jetzt/
https://www.instagram.com/11antgmxde/
https://www.linkedin.com/company/bauen-jetzt/
H
hanghaus202306.03.23 20:49Für mich ist das Grundstück 34*20m = 680 qm
Warum ist da außen rum nix geplant?
Wo soll der CP hin?
Warum wird die Frage nach dem Budget nicht beantwortet?
Ohne Angabe des Budgets für das Haus keine Hilfe.
Warum bleibt man unter der max. Höhe?
Was sagt der Bebauungsplan zu Kniestock, Dachform und Neigungen?
Warum ist da außen rum nix geplant?
Wo soll der CP hin?
Warum wird die Frage nach dem Budget nicht beantwortet?
Ohne Angabe des Budgets für das Haus keine Hilfe.
Warum bleibt man unter der max. Höhe?
Was sagt der Bebauungsplan zu Kniestock, Dachform und Neigungen?
H
hanghaus202306.03.23 20:54Wo sind die Baugrenzen? 4 Min. mal wieder.
Im EG sehe ich durch die verschlossene Küche schon ein kleines Stellproblem, denn ihr wollt wohl dort eben keine Insel, sondern einen Essplatz mit 4 Plätzen. Dann bedenken, dass man mit Tablett oder so das „feine Essen“ für Gäste wie damals, als es unseren Großmüttern leichte Perlen auf die Stirn getrieben hat, über einen langen Weg rüber bringen muss. Da man zum Glück heute eben nicht mehr ständig von stinkendem Essen reden muss, sondern nebenbei aromatischen Düften der vollen Gewürzvielfalt genießen kann, möchte man eben nicht dem Küchenbenutzern zu viel Arbeit machen und kurze Wege und Sozialkontakte gönnen. Aber gut, muss jeder selbst wissen. Zumindest wäre eine direkte Türöffnung von Kü zum Allraum sinnvoll.
Ansonsten empfinde ich die Außenmaße dieses Hauses für diesen Standardgrundriss nicht gelungen. Hier wäre etwas mehr Tiefe und weniger Länge etwas angebrachter. Dann hätte man da das notwendige und dort wo zu viel, kann man es abziehen ( siehe zb das zu lange WZ/Ess, aber in der Breite fehlen 50,60cm). Man könnte den Kinderzimmer den Erker gönnen, die Kinderzimmer wären vom Schnitt her auch ansprechend, aber besser belichtet, da die Räuge nicht so lang ins Hausinnere gehen.
Die Schlafzimmer/Schrank und Küche/Zugang sind wahrlich jetzt nicht ideal und werden auch in der einfachen Umsetzung von Wände versetzen nicht besser, ohne andere Einschränkungen akzeptieren zu müssen.
Auch eine Wandverschiebung im recht großen Gast verspricht dort nur eine Stellwand weniger. Und ja: der Erker… immer wieder ist es der Erker, der meist zu klein gewählt ist, dass er Mehrwert hat als einfach nur störende Ecken zu produzieren.
Statt dessen hängt ihr oben an einem Raum, der eigentlich nicht notwendig, noch geplant wurde, sondern weil er zu „schade ist“, jetzt da ist. Welchen Mehrwert versprecht Ihr Euch von diesem Raum?
Sind die Außenmaß vom GU so vorgegeben?
Einige Einwände noch:
Küche gehört zur Aussenterrasse (wie sie auch zum Esstisch gehört),
Sonnenlicht durch breitere Fenster mit Brüstung erreichen mehr Raum als Sonnenlicht durch schmale brüstungslose Fenster.
Garderobe fehlt bzw ist zu klein. Da sehe ich auch keinen ausreichenden Kleiderschrank für 4 Personen.
Nur mal so: der Tausch WC und Hauswirtschaftsraum würde hier schon eine große Stellflächengewinnung bringen.
Dem Flur fehlt Tageslicht.
Das Stufenmass mit 23 ist zu schmal Und könnte schwer zu gehen sein. Hier erkennt man wieder (auch mit der unüblichen Wendelung) die fehlende Breite des Hauses.
Es ist übrigens nett, wenn man seinen eigenen Fragepost etwas kontrolliert und auch auf Fragen von willigen Usern eingeht, die Dir helfen wollen.
Ansonsten empfinde ich die Außenmaße dieses Hauses für diesen Standardgrundriss nicht gelungen. Hier wäre etwas mehr Tiefe und weniger Länge etwas angebrachter. Dann hätte man da das notwendige und dort wo zu viel, kann man es abziehen ( siehe zb das zu lange WZ/Ess, aber in der Breite fehlen 50,60cm). Man könnte den Kinderzimmer den Erker gönnen, die Kinderzimmer wären vom Schnitt her auch ansprechend, aber besser belichtet, da die Räuge nicht so lang ins Hausinnere gehen.
Die Schlafzimmer/Schrank und Küche/Zugang sind wahrlich jetzt nicht ideal und werden auch in der einfachen Umsetzung von Wände versetzen nicht besser, ohne andere Einschränkungen akzeptieren zu müssen.
Auch eine Wandverschiebung im recht großen Gast verspricht dort nur eine Stellwand weniger. Und ja: der Erker… immer wieder ist es der Erker, der meist zu klein gewählt ist, dass er Mehrwert hat als einfach nur störende Ecken zu produzieren.
Statt dessen hängt ihr oben an einem Raum, der eigentlich nicht notwendig, noch geplant wurde, sondern weil er zu „schade ist“, jetzt da ist. Welchen Mehrwert versprecht Ihr Euch von diesem Raum?
Sind die Außenmaß vom GU so vorgegeben?
Einige Einwände noch:
Küche gehört zur Aussenterrasse (wie sie auch zum Esstisch gehört),
Sonnenlicht durch breitere Fenster mit Brüstung erreichen mehr Raum als Sonnenlicht durch schmale brüstungslose Fenster.
Garderobe fehlt bzw ist zu klein. Da sehe ich auch keinen ausreichenden Kleiderschrank für 4 Personen.
Nur mal so: der Tausch WC und Hauswirtschaftsraum würde hier schon eine große Stellflächengewinnung bringen.
Dem Flur fehlt Tageslicht.
Das Stufenmass mit 23 ist zu schmal Und könnte schwer zu gehen sein. Hier erkennt man wieder (auch mit der unüblichen Wendelung) die fehlende Breite des Hauses.
Es ist übrigens nett, wenn man seinen eigenen Fragepost etwas kontrolliert und auch auf Fragen von willigen Usern eingeht, die Dir helfen wollen.
D
droopy98707.03.23 17:05Moin,
erstmal danke für eure Antworten. Ich war gestern und heute beruflich sehr stark eingespannt, sodass ich erst jetzt antworten kann. Das tut mir leid. Genauso, dass ich einige Infos wohl gestern beim Posting vergessen habe. Dies habe ich jetzt nachgeholt. Siehe unten.
Preis für das Haus aktuell (über Bauträger): 380.000 €. Unser Budget für das Haus mit allem liegt bei ca. 430.000 €
Warum bleiben wir unter der maximalen Höhe? Weil uns anderthalb geschossig reicht!
Bebauungsplan: Keine weiteren Vorgaben. Nur max. 2 Vollgeschosse, sonst nichts.
Habe einen weiteren Plan hochgeladen. Zu den Nachbarn und zur Straße 3m.





erstmal danke für eure Antworten. Ich war gestern und heute beruflich sehr stark eingespannt, sodass ich erst jetzt antworten kann. Das tut mir leid. Genauso, dass ich einige Infos wohl gestern beim Posting vergessen habe. Dies habe ich jetzt nachgeholt. Siehe unten.
11ant schrieb:Ich habe die Grundrisse nochmal separat und im ganzen hochgeladen, mit allen Maßangaben. Was meinst du mit "Potential nach unten"? Also die Überlegung war, die Tür zur Küche soweit unter die Treppe zu schieben, wie es geht, um die Wand zur Küche noch recht verschieben zu können.
Es wäre geschickt, die Maßlinien nicht so abzuschneiden. Mit der Verschiebung der Wand geriete die Küchentür zu nah unter die Treppe. Bei 190 qm sehe ich noch deutlich Potential nach unten ;-)
hanghaus2023 schrieb:Korrekte Angabe der Grundstücksgröße. Außenplanungen habe wir bisher nur grob gemacht. Den Carport und die Zuwegung habe ich mal grob eingezeichnet und hochgeladen, genauso wie die Terrasse.
Für mich ist das Grundstück 34*20m = 680 qm
Warum ist da außen rum nix geplant?
Wo soll der CP hin?
Warum wird die Frage nach dem Budget nicht beantwortet?
Ohne Angabe des Budgets für das Haus keine Hilfe.
Warum bleibt man unter der max. Höhe?
Was sagt der Bebauungsplan zu Kniestock, Dachform und Neigungen?
Preis für das Haus aktuell (über Bauträger): 380.000 €. Unser Budget für das Haus mit allem liegt bei ca. 430.000 €
Warum bleiben wir unter der maximalen Höhe? Weil uns anderthalb geschossig reicht!
Bebauungsplan: Keine weiteren Vorgaben. Nur max. 2 Vollgeschosse, sonst nichts.
hanghaus2023 schrieb:
Wo sind die Baugrenzen? 4 Min. mal wieder.
Habe einen weiteren Plan hochgeladen. Zu den Nachbarn und zur Straße 3m.
Ähnliche Themen