ᐅ Grundriss Einfamilienhaus ca. 140m² - Abtrennbares Treppenhaus
Erstellt am: 21.04.15 14:30
D
derelvisWichtige Details:
Bebauungsplan/Einschränkungen:
Größe des Grundstücks: 5,2ar (25*21m)
Ausrichtung:
Hang: leichter Südhang 1m Gefälle auf 25m
Baufenster, Baulinie und -grenze: 2,5m
Randbebauung: Garage
Anzahl Stellplatz: 2
Geschossigkeit: 1,5 Geschosse
Dachform: Satteldach
Anforderungen der Bauherren:
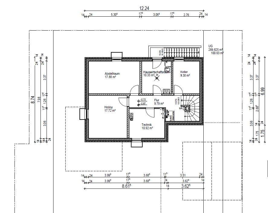
Keller
Anzahl der Personen, Alter: 2+Kind (2J.)
Raumbedarf: ca. 135-140qm
Büro: Familiennutzung
konservative Bauweise
offene Küche: evtl. (nur als L) oder mit Schiebetür
Anzahl Essplätze: Standard:4 Sonst bis 12
Kamin: Ja
Musik/Stereowand: Länge min. 3,5m
Balkon, Dachterrasse: nein
Garage, Carport: Doppelgarage oder G+CP
Hallo zusammen,
im Anhang findet ihr unser geplantes Haus. Es ist ein mehrfach überarbeiteter Architektenentwurf. Wir sind sehr zufrieden mit unserem Entwurf, allerdings übersieht man ja doch manchmal etwas.
Wer Vorschläge / Kritik hat, bitte nicht zurückhalten.
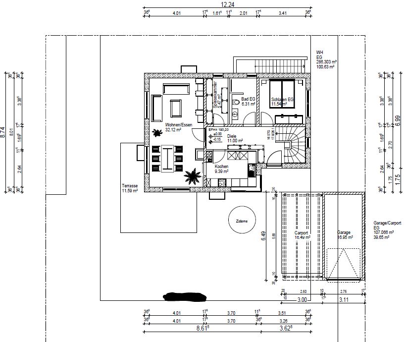
Was sicher ein Kritikpunkt ist, ist das Treppenhaus am "Ende des Hauses",
dies ist aber für uns wichtig, da wir eine abtrennbare Treppe haben wollen und den "Eingangslärm" vom Wohnzimmer weghalten wollen. Wir wollen kein Einfamilienhaus mit integrierter, offener Treppe.
Wenn uns jemand eine bessere Lösung skizieren kann, würden wir uns natürlich freuen.




- Einfahrt nur im Süden möglich
- Speis in der Nähe der Küche
- Abtrennbare Wohneinheiten
- EG fürs Alter komplett bewohnbar (Noch ist das eingezeichnete Schlafzimmer allerdings ein Arbeitszimmer)
- Keller
- ca. 135-140qm
- Kniestock 1,2m
Bebauungsplan/Einschränkungen:
Größe des Grundstücks: 5,2ar (25*21m)
Ausrichtung:
Hang: leichter Südhang 1m Gefälle auf 25m
Baufenster, Baulinie und -grenze: 2,5m
Randbebauung: Garage
Anzahl Stellplatz: 2
Geschossigkeit: 1,5 Geschosse
Dachform: Satteldach
Anforderungen der Bauherren:
Keller
Anzahl der Personen, Alter: 2+Kind (2J.)
Raumbedarf: ca. 135-140qm
Büro: Familiennutzung
konservative Bauweise
offene Küche: evtl. (nur als L) oder mit Schiebetür
Anzahl Essplätze: Standard:4 Sonst bis 12
Kamin: Ja
Musik/Stereowand: Länge min. 3,5m
Balkon, Dachterrasse: nein
Garage, Carport: Doppelgarage oder G+CP
Hallo zusammen,
im Anhang findet ihr unser geplantes Haus. Es ist ein mehrfach überarbeiteter Architektenentwurf. Wir sind sehr zufrieden mit unserem Entwurf, allerdings übersieht man ja doch manchmal etwas.
Wer Vorschläge / Kritik hat, bitte nicht zurückhalten.
Was sicher ein Kritikpunkt ist, ist das Treppenhaus am "Ende des Hauses",
dies ist aber für uns wichtig, da wir eine abtrennbare Treppe haben wollen und den "Eingangslärm" vom Wohnzimmer weghalten wollen. Wir wollen kein Einfamilienhaus mit integrierter, offener Treppe.
Wenn uns jemand eine bessere Lösung skizieren kann, würden wir uns natürlich freuen.
Eigentlich ein passabler Grundriss, aber könnte man noch optimieren.
Im OG würde ich das WC nicht aus dem Bad rausnehmen. Das kann man auch schön im Bad abtrennen, wenn du magst sogar mir Tür, aber so ist es unpraktisch. Bsp. willst gerade in die Dusche, bist schon ausgezogen und du musst noch mal auf Toilette. Also nackig oder Handtuch umwickeln und mal kurz über den Flur zum Klo.
Wenn du später im EG komplett wohnen willst, dann wird das Schlafzimmer etwas zu klein. Bedenke mit dem Alter kommen auch die Gebrechen und evtl. wird Hilfe zum aufstehen, anziehen usw. benötigt. Ebenso das Bad, ist für später einfach zu klein. Badewanne im Alter sollte auch ein Must have sein.
Mit dem Kamin an der Stelle, könnte es für nen Esstisch etwas eng werden. Würde den Kamin evtl. an die Außenwand zwischen die Terrassentür und das Fenster setzen.
In der Ankleide bleibt auch nicht viel Platz für nen hohen Kleiderschrank.
ja, das sind jetzt mal die Punkte, die mir auf die Schnelle aufgefallen sind.
Im OG würde ich das WC nicht aus dem Bad rausnehmen. Das kann man auch schön im Bad abtrennen, wenn du magst sogar mir Tür, aber so ist es unpraktisch. Bsp. willst gerade in die Dusche, bist schon ausgezogen und du musst noch mal auf Toilette. Also nackig oder Handtuch umwickeln und mal kurz über den Flur zum Klo.
Wenn du später im EG komplett wohnen willst, dann wird das Schlafzimmer etwas zu klein. Bedenke mit dem Alter kommen auch die Gebrechen und evtl. wird Hilfe zum aufstehen, anziehen usw. benötigt. Ebenso das Bad, ist für später einfach zu klein. Badewanne im Alter sollte auch ein Must have sein.
Mit dem Kamin an der Stelle, könnte es für nen Esstisch etwas eng werden. Würde den Kamin evtl. an die Außenwand zwischen die Terrassentür und das Fenster setzen.
In der Ankleide bleibt auch nicht viel Platz für nen hohen Kleiderschrank.
ja, das sind jetzt mal die Punkte, die mir auf die Schnelle aufgefallen sind.
E
EveundGerd21.04.15 22:29Ich bin ebenfalls der Meinung, dass das Schlafzimmer unten zu klein ist.
Welcher Standard soll den gebaut werden? Evtl ist ein Kamin überflüssig, wenn auch sicher schick.
Welcher Standard soll den gebaut werden? Evtl ist ein Kamin überflüssig, wenn auch sicher schick.
@Manu1976 :
Das Bad war am Anfang offen, es war aber ein spezieller Wunsch von mir dies zu trennen.
Wir sind noch zu dritt. Allerdings ist noch min. ein Kind geplant und was das für das Bad morgens und abends heißt, brauche ich wohl niemand erzählen.
Dass das Schlafzimmer klein ist, gebe ich zu.
Allerdings haben wir uns Zimmer mit genau diesen Maßen (3,4 * 3,4m) in einer Musterhaussiedlung angeschaut und sind zu dem Entschluss gekommen, dass man so durchaus schlafen kann.
Eigentlich war ein Zimmer mit 3*3m geplant, 4*4m, was angemessen wäre, wären 7m² mehr. Diese Kosten auf 3 Etagen sind einfach zu teuer. Deshalb haben wir diesen Kompromiss geschlossen.
Das Selbe gilt für das Bad.
Wichtig ist uns nur eine Möglichkeit zu schaffen im EG zu schlafen. Ob das für einen selbst ist, oder für einen Elternteil, oder für Besuch das steht noch nicht fest.
Wichtig war uns nur, die Möglichkeit einzurichten.
Die Sache mit dem Kamin sehe ich auch nicht so. Ich habe einige Musterhäuser mit 3m Breite im Essbereich gesehen. Das war eher knapp.
3,50m war absolut ausreichend. Da wir dort nur einen "kleinen" wassergeführten Kamin hinstellen wollen, der ca. 50cm benötigt, sehe ich hier bei 4m Breite absolut kein Problem.
Die Ankleide hat Platz für ca. 3m hohe kleiderschränke und ca. 4-5m flachere Kleiderschränke. Das reicht uns.
Fazit: Mehr Platz wäre sicher schön, aber man hat auch ein Budget.
@EveundGerd:
Es wird massiv mit Architekt gebaut und soll Kfw70 Standard erreichen. Allerdings nicht um jeden Preis.
Einen Kamin wollen wir auf jeden Fall.
Das Bad war am Anfang offen, es war aber ein spezieller Wunsch von mir dies zu trennen.
Wir sind noch zu dritt. Allerdings ist noch min. ein Kind geplant und was das für das Bad morgens und abends heißt, brauche ich wohl niemand erzählen.
Dass das Schlafzimmer klein ist, gebe ich zu.
Allerdings haben wir uns Zimmer mit genau diesen Maßen (3,4 * 3,4m) in einer Musterhaussiedlung angeschaut und sind zu dem Entschluss gekommen, dass man so durchaus schlafen kann.
Eigentlich war ein Zimmer mit 3*3m geplant, 4*4m, was angemessen wäre, wären 7m² mehr. Diese Kosten auf 3 Etagen sind einfach zu teuer. Deshalb haben wir diesen Kompromiss geschlossen.
Das Selbe gilt für das Bad.
Wichtig ist uns nur eine Möglichkeit zu schaffen im EG zu schlafen. Ob das für einen selbst ist, oder für einen Elternteil, oder für Besuch das steht noch nicht fest.
Wichtig war uns nur, die Möglichkeit einzurichten.
Die Sache mit dem Kamin sehe ich auch nicht so. Ich habe einige Musterhäuser mit 3m Breite im Essbereich gesehen. Das war eher knapp.
3,50m war absolut ausreichend. Da wir dort nur einen "kleinen" wassergeführten Kamin hinstellen wollen, der ca. 50cm benötigt, sehe ich hier bei 4m Breite absolut kein Problem.
Die Ankleide hat Platz für ca. 3m hohe kleiderschränke und ca. 4-5m flachere Kleiderschränke. Das reicht uns.
Fazit: Mehr Platz wäre sicher schön, aber man hat auch ein Budget.
@EveundGerd:
Es wird massiv mit Architekt gebaut und soll Kfw70 Standard erreichen. Allerdings nicht um jeden Preis.
Einen Kamin wollen wir auf jeden Fall.
J
Jochen10422.04.15 15:25Hallo,
ich frage mal bewusst nach:
Seid ihr sicher, dass ihr einen Keller haben möchtet und nicht dafür lieber ein paar m² mehr in den beiden oberen Etagen?
Das Grundstück sieht ja zumindest auf dem Plan relativ eben und auch groß genug aus. Zudem wäre das auch für das Alter einfacher.
ich frage mal bewusst nach:
Seid ihr sicher, dass ihr einen Keller haben möchtet und nicht dafür lieber ein paar m² mehr in den beiden oberen Etagen?
Das Grundstück sieht ja zumindest auf dem Plan relativ eben und auch groß genug aus. Zudem wäre das auch für das Alter einfacher.
Ähnliche Themen