ᐅ Grundriss Einfamilienhaus 240m², 2 Vollgeschosse ohne Keller, Massiv
Erstellt am: 12.11.23 13:40
H
Haus LuniH
Haus Luni12.11.23 13:40Hallo zusammen,
wir sind ein junges Pärchen und planen ein Einfamilienhaus für uns und unsere zukünftigen Kinder. In der folgenden Tabelle haben wir unser Bauvorhaben zusammengefasst. Wir freuen uns auf Eure Bewertungen und Meinungen zu unserem Grundriss. Wir sind sehr gespannt was für Verbesserungsvorschläge Ihr so habt! 🙂
Anbei der:
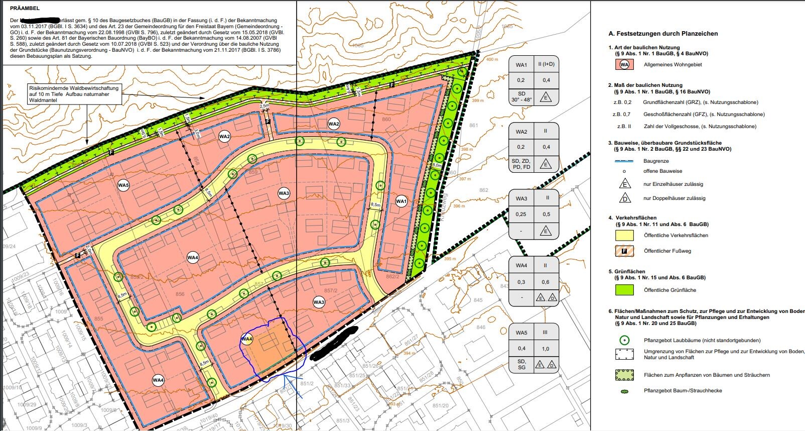
- Bebauungsplan
- Grundriss



wir sind ein junges Pärchen und planen ein Einfamilienhaus für uns und unsere zukünftigen Kinder. In der folgenden Tabelle haben wir unser Bauvorhaben zusammengefasst. Wir freuen uns auf Eure Bewertungen und Meinungen zu unserem Grundriss. Wir sind sehr gespannt was für Verbesserungsvorschläge Ihr so habt! 🙂
| Bebauungsplan/Einschränkungen | |
| Größe des Grundstücks | 708m² |
| Hang | Ebenes Grundstück |
| Grundflächenzahl | 0,3 |
| Geschossflächenzahl | 0,6 |
| Baufenster, Baulinie und -grenze | offene Bauweise |
| Randbebauung | bei Garagen möglich (9 Meter) |
| Anzahl Stellplatz | 2 in der Garage (Doppelgarage); 2 vor der Garage |
| Geschossigkeit | 2 Vollgeschosse |
| Dachform | SD; WD |
| Stilrichtung | |
| Ausrichtung | Siehe Grundrissplan |
| Maximale Höhen/Begrenzungen | 8m |
| weitere Vorgaben | |
| Anforderungen der Bauherren | |
| Stilrichtung, Dachform, Gebäudetyp | Stadtvilla |
| Keller, Geschosse | 2 Vollgeschosse; ohne Keller |
| Anzahl der Personen, Alter | Familie bestehend aus 2 Personen (junges Paar mit dem Wunsch 2 Kinder zu bekommen) |
| Raumbedarf im EG, OG | EG: Küche; Esszimmer; Wohnzimmer; Speise; Technik mit Hauswirtschaft; Hobbyraum/Gästezimmer OG: Schlafzimmer mit Ankleide; Kind1; Kind 2; Büro (Home Office); Badezimmer |
| Büro: Familiennutzung oder Homeoffice? | Homeoffice |
| Schlafgäste pro Jahr | 1 |
| offene oder geschlossene Architektur | geschlossene |
| konservativ oder moderne Bauweise | modern |
| offene Küche, Kochinsel | Ja; Ja |
| Anzahl Essplätze | 8 feste Essplätze; sollte jedoch sehr erweiterbar sein (bis zu 16 Personen sollten an den Tisch passen) ; da wir oft (jeden Monat) viele Gäste bekommen |
| Kamin | Nein |
| Musik/Stereowand | Nein |
| Balkon, Dachterrasse | Nein |
| Garage, Carport | Doppelgarage |
| Nutzgarten, Treibhaus | Nein |
| weitere Wünsche/Besonderheiten/Tagesablauf, | - Wohnzimmer: geräuschtechnisch von dem Essbereich und der Küche entkoppeln, jedoch möchten wir keine Wand mauern/reinziehen. - Doppelflügeltür in Wohn-/Essbereich: unsicher ob es eine Doppelflügeltür, Tür mit Festelement oder eine Aufsatz-Schiebetür sein soll; die Tür dient lediglich dem Schallschutz zum OG am Abend, wenn wir uns im EG aufhalten und die Kinder bereits schlafen. Die Tür wird über den Tag offen bleiben; die Tür soll aus Klarglas bestehen (Stil:Lofttür). - Schiebetür zur Küche: wird reingemacht für kürzere Laufwege zur Speise/WC und von dem Eingang in die Küche wegen den Lebensmitteln. - Badezimmer OG: hier sind wir uns noch unsicher: Sowohl die Türen als auch die Fenster können beliebig bewegt werden; da es kein Kinderzimmer Bad geben wird sollte hier eine Badewanne, Dusche, waschtisch, WC und ein Bidet vorhanden sein. |
| Hausentwurf | |
| Von wem stammt die Planung: | Do-it-Yourself: Selbstentworfen; Grundriss ähnelt dem Elternhaus mit einigen Veränderungen. |
| Was gefällt besonders? Warum? | genügend große Zimmer sind vorhanden, um ggf. ein 3 Kind unter zu bringen; das EG kann im hohen Alter vollkommen genutzt werden (altersgerecht); große bodentiefe Fenster für ein tolles Tageslicht; Insel als Arbeitsfläche und Stauraum |
| Was gefällt nicht? Warum? | Wohnzimmer ist sehr offen, wenn jemand in der Küche werkelt wird das vermutlich stören. |
| Preisschätzung laut Architekt/Planer: | Noch nicht vorhanden |
| Persönliches Preislimit fürs Haus, inkl. Ausstattung: | 550.000 |
| favorisierte Heiztechnik: | Favorit: Sole-Wasser-Wärmepumpe+Photovoltaik+Zentrale Lüftungsanlage; Aus Kostengründen wird es wahrscheinlich: Luft-Wasser-Wärmepumpe+Photovoltaik+Zentrale Lüftungsanlage |
| Wenn Ihr verzichten müsst, auf welche Details/Ausbauten | |
| -könnt Ihr verzichten: | Badewanne (diese wird eigentlich nur wegen den Kindern mit eingeplant) |
| -könnt Ihr nicht verzichten: | |
| Warum ist der Entwurf so geworden, wie er jetzt ist? ZB | Online wurde viel recherchiert bezüglich des Grundrisses; Elternhaus wurde vor 3 Jahren gebaut und dieser Grundriss wurde auf unsere Wünsche angepasst. Der Grundriss sieht ähnlich aus und ich (Mann) habe selbst ein Jahr in dem Elternhaus gewohnt) |
| Was macht ihn in Euren Augen besonders gut oder schlecht? | Haus sollte grundsätzlich praktisch sein (kurze Laufwege, nicht zu extravagant gestaltet, smart durchdacht, etc.) und zu möglichst vielen veränderten Lebenssituationen passen (derzeit sind wir nur zu zweit, planen aber 2-3 Kinder und wollen auch im hohen Alter noch in dem Haus wohnen). Das Haus soll einfach, pflegeleicht (nicht viele Ablageflächen, die verstauben, nicht viel Deko) und optisch ansprechend sein. Bisheriger Tagesablauf: Unter der Woche kommen wir beide arbeitstechnisch erst am Abend heim, danach wird geduscht, gekocht und zusammen gegessen. Danach sehen wir meistens Fern. Am Wochenende treffen wir uns häufig mit Freunden und Verwandten. Da kommen auch schneller mal 12-14 Personen o.ä. zusammen. Wir sind bisher zu 2 und planen 2 Kinder. Meine Frau hat des öfteren Home Office (2-3 Tage die Woche) während ich meistens zu meiner Arbeitsstätte fahren muss. Wir haben beide studiert und wollen nicht den Anschluss zum Berufsleben verlieren. Aus diesem Grund soll das Haus praktisch und pflegeleicht sein, damit wir uns in unserer Freizeit auf die Dinge konzentrieren können, die uns Spaß machen. |
Anbei der:
- Bebauungsplan
- Grundriss
Erstmal möchte ich Euch loben, dass Ihr mit einfachen, aber zielführenden Mitteln als digitalen Programmen mit Bleistift und Millimeterpapier Euer Haus zeichnet. Man bekommt viel mehr Gefühl für das Haus und dem Grundstück, weil man einfach mehr Gefühl für die Maße bekommt.
Die Frage, die sich stellt: was soll mit den 55000€ abgedeckt werden? Ihr sprecht von smart, auch die Doppelgarage ist eingezeichnet und scheint gedanklich schon fest. Sollen die „vorhandenen“ 550000€ alles abdecken, auch Garage, ggf auch Außenanlagen und Baunebenkostein oder tatsächlich nur das Haus?
@Harakiri deutet es schon an: für 550000€ nur für das Haus bekommt Ihr keine 240qm. Ihr müsstet so ungefähr auf 180qm kommen, wenn man pauschal mit 3000€/Qm Wohnfläche rechnet.
Wenn man sich das OG anschaut, habt Ihr Euch das EG so gezeichnet, dass Eure Wünsche recht großzügig und ohne Engpässe funktionieren, und das OG hat sich ergeben. Die Schlafzimmer (inkl Kinderzimmer) sind überdimensioniert. Das eine mit knapp 7 Meter Länge ist größer als ein Wohnzimmer einer Durchschnittsfamilie. Das ist überzogen und eben nicht budgetfreundlich.
Ihr müsst also Prioritäten setzen und einkürzen.
Ihr schreibt, dass das Haus ähnlich vor drei Jahren gebaut wurde. Ich gehe davon aus, um eine ganze Nummer kleiner?
Ihr seht am OG, dass mal „so einfach vergrößern“ nicht so einfach funktioniert, dafür hängen EG und OG zu viel in Abhängigkeit.
Was man machen kann: OG radikal einkürzen. Aber dadurch entstehen Flachdach oder zusätzliche Dächer im EG, die auch ihren Preis haben.
Die Frage, die sich stellt: was soll mit den 55000€ abgedeckt werden? Ihr sprecht von smart, auch die Doppelgarage ist eingezeichnet und scheint gedanklich schon fest. Sollen die „vorhandenen“ 550000€ alles abdecken, auch Garage, ggf auch Außenanlagen und Baunebenkostein oder tatsächlich nur das Haus?
@Harakiri deutet es schon an: für 550000€ nur für das Haus bekommt Ihr keine 240qm. Ihr müsstet so ungefähr auf 180qm kommen, wenn man pauschal mit 3000€/Qm Wohnfläche rechnet.
Wenn man sich das OG anschaut, habt Ihr Euch das EG so gezeichnet, dass Eure Wünsche recht großzügig und ohne Engpässe funktionieren, und das OG hat sich ergeben. Die Schlafzimmer (inkl Kinderzimmer) sind überdimensioniert. Das eine mit knapp 7 Meter Länge ist größer als ein Wohnzimmer einer Durchschnittsfamilie. Das ist überzogen und eben nicht budgetfreundlich.
Ihr müsst also Prioritäten setzen und einkürzen.
Ihr schreibt, dass das Haus ähnlich vor drei Jahren gebaut wurde. Ich gehe davon aus, um eine ganze Nummer kleiner?
Ihr seht am OG, dass mal „so einfach vergrößern“ nicht so einfach funktioniert, dafür hängen EG und OG zu viel in Abhängigkeit.
Was man machen kann: OG radikal einkürzen. Aber dadurch entstehen Flachdach oder zusätzliche Dächer im EG, die auch ihren Preis haben.
Haus Luni schrieb:
Haus sollte grundsätzlich praktisch sein (kurze Laufwege, nicht zu extravagant gestaltet, smart durchdacht, etc.) und zu möglichst vielen veränderten Lebenssituationen passen (derzeit sind wir nur zu zweit, planen aber 2-3 Kinder und wollen auch im hohen Alter noch in dem Haus wohnen). Das Haus soll einfach, pflegeleicht (nicht viele Ablageflächen, die verstauben, nicht viel Deko) und optisch ansprechend sein.Haus Luni schrieb:
Aus diesem Grund soll das Haus praktisch und pflegeleicht sein, damit wir uns in unserer Freizeit auf die Dinge konzentrieren können, die uns Spaß machen.Dadurch, dass das Haus ja recht groß und weitläufig ist, werden die Laufwege automatisch lang.Ein Arbeitszimmer von ü15qm eignet sich natürlich gut für ein Schlafzimmer im Alter - ein leerstehendes Geschoss mit riesen Zimmern nicht. Auch ist ein täglicher oder nächtlicher Gang im Alter zur Toilette von 8 Laufmetern und ein Duschbad von 5qm nicht altersgerecht.
Grundsätzlich sagt man, dass man für die nächsten 20 Jahre planen sollte, damit der Fokus seines Lebens abgedeckt ist.
Zur weiteren Planung empfehle ich, das Büro nach oben zu verlegen und die Raumgrößen anzupassen. Im OG könnte auch noch ein kleiner Hauswirtschaftsraum Platz haben, damit der Technikraum im EG verkleinert werden kann.
Und eine Diele von 8 Metern Länge ist Im Grunde genommen wenig alltagstauglich, weil einfach zu lang.
X
xMisterDx12.11.23 16:23Ähh ja. Speisekammer braucht man nicht.
Technikraum und Hauswirtschaftsraum mit insgesamt 20m² völlig überzogen. Allein da könnt ihr im EG schon locker 12-15m² sparen.
2 Arbeitszimmer? Braucht man die wirklich?
Gäste können auf der Couch schlafen. Wegen 2, 3 mal im Jahr extra ein Zimmer freizuhalten ist verplempertes Geld.
Dagegen wirkt der Allraum mit 56m² fast schon wieder klein. Wir haben auf 152m² auch 57m² Wohnzimmer und Küche... aber halt keinen so irre großen Flur und auch keine 20m² für Heizung und "Technik".
Und im Alter könnt ihr das eh knicken. Wenn einer oder beide Probleme mit dem Gehen bekommen, könnt ihr 240m² Haus und 700m² Grundstück nicht mehr in Schuss halten und müsst ausziehen. Ist so.
Technikraum und Hauswirtschaftsraum mit insgesamt 20m² völlig überzogen. Allein da könnt ihr im EG schon locker 12-15m² sparen.
2 Arbeitszimmer? Braucht man die wirklich?
Gäste können auf der Couch schlafen. Wegen 2, 3 mal im Jahr extra ein Zimmer freizuhalten ist verplempertes Geld.
Dagegen wirkt der Allraum mit 56m² fast schon wieder klein. Wir haben auf 152m² auch 57m² Wohnzimmer und Küche... aber halt keinen so irre großen Flur und auch keine 20m² für Heizung und "Technik".
Und im Alter könnt ihr das eh knicken. Wenn einer oder beide Probleme mit dem Gehen bekommen, könnt ihr 240m² Haus und 700m² Grundstück nicht mehr in Schuss halten und müsst ausziehen. Ist so.
Ähnliche Themen