ᐅ Grundriss Einfamilienhaus, 230 qm Wohnfläche, Osthang, Bauhausstil
Erstellt am: 24.08.22 13:42
R
RoterPapageiR
RoterPapagei24.08.22 13:42Bebauungsplan/Einschränkungen
Größe des Grundstücks: 610 qm, rechteckig (etwa 15 x 40 m)
Hang: Osthang, etwa 28% Gefälle. Straße talwärts. Haus soll im bergseitig oberen Drittel positioniert werden (Sichtschutz und Aussicht).
Grundflächenzahl: n. a. (kein Bebauungsplan)
Geschossflächenzahl: n. a.
Baufenster, Baulinie und -grenze: n. a.
Randbebauung: mutmaßlich 2,50 Meter in alle Richtungen
Anzahl Stellplatz: n. a.
Geschossigkeit: n. a.
Dachform: n. a.
Stilrichtung: n. a.
Ausrichtung: n. a.
Maximale Höhen/Begrenzungen: n. a.
weitere Vorgaben: Es existiert kein Bebauungsplan. Allerdings sind in der Straße verschiedenste Haustypen zu finden, sodass architektonisch wohl fast alles möglich sein sollte.
Anforderungen der Bauherren
Stilrichtung, Dachform, Gebäudetyp: Bauhausstil, präferiert Flachdach (ggf. auch Pultdach)
Keller, Geschosse: Keller als Wohnkeller im Hang integriert, darüber zwei Geschosse
Anzahl der Personen, Alter: Bislang 3 Personen, 33 und 32 Jahre sowie ein Säugling
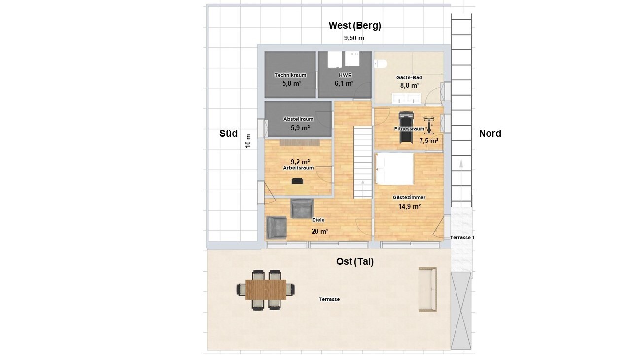
Raumbedarf im EG, OG: EG: Küche, Speise mit Spülnische, Wohnzimmer, Arbeitszimmer, WC, Eingangsbereich mit Ankleide
OG: Elternschlafzimmer mit Ankleide, zwei Kinderzimmer, Bad, Dachterrasse
Kellergeschoss: Gästezimmer, Gästebad, Arbeitszimmer, Hauswirtschaftsraum, Technikraum, Abstellraum, Fitnessraum
Büro: Familiennutzung oder Homeoffice? Bislang Familiennutzung, Homeoffice perspektivisch
Schlafgäste pro Jahr: Schwiegereltern würden häufig vorbeikommen
offene oder geschlossene Architektur: offen
konservativ oder moderne Bauweise: modern
offene Küche, Kochinsel: Offene Küche mit Kochinsel
Anzahl Essplätze: Ein großer esstisch
Kamin: präferiert, wie im Grundriss
Musik/Stereowand: evtl. im Wohnzimmer
Balkon, Dachterrasse: Dachterrasse zum Tal (Ostseite)
Garage, Carport: Doppelgarage separat vom Haus an Straße in Hang gegraben
Nutzgarten, Treibhaus: nein
weitere Wünsche/Besonderheiten/Tagesablauf, gern auch Begründungen, warum dieses oder das nicht sein soll: Keine Belüftungsanlage, kein Smarthome, Photovoltaikanlage
Hausentwurf
Von wem stammt die Planung:-Do-it-Yourself.
Wohnfläche: etwa 230 qm (mit Dachterrasse hälftig gerechnet)
Nutzfläche: etwa 260 qm
Was gefällt besonders? Warum? Die Auskragungen nach Osten und Süden, die Glasfronten, die Integration in den Hang, gerade Treppe, lange Sichtachse im Erdgeschoss
Was gefällt nicht? Warum? evtl. Eingangsbereich, da zu klein? Wohnzimmer zu klein?
Preisschätzung lt Architekt/Planer: gibt noch keine
Persönliches Preislimit fürs Haus, inkl Ausstattung: n. a.
favorisierte Heiztechnik: Luft-Wasser-Wärmepumpe, Fußbodenheizung
Wenn Ihr verzichten müsst, auf welche Details/Ausbauten
-könnt Ihr verzichten: Auskragungen, wenn viel teurer, Flachdach wenn viel teurer
-könnt Ihr nicht verzichten: Glasfronten
Warum ist der Entwurf so geworden, wie er jetzt ist?
Die Grundrisse sind ein erster Entwurf, der vollständig in Eigenregie erarbeitet wurde und als ersten Ansatz zur Diskussion dienen soll. Für die Erstellung habe ich mich an drei wesentlichen Grundpfeilern orientiert: der Hangorientierung, den Himmelsrichtungen und der Form des Grundstücks. Aufgrund des Ost-Hanges war für mich gesetzt, dass Richtung Osten (schöner Blick zum Tal) die größeren, bodentiefen Glasfronten und das Wohn- bzw. Esszimmer im Erdgeschoss sowie das Gästezimmer im Kellergeschoss zu positionieren sind. Um von der Küche dann auch die Möglichkeit zu haben, nach draußen zu gelangen und die Sonne zu nutzen, ist die Küche im Erdgeschoss daran angrenzend an der Südseite geplant, hier ebenfalls mit größeren Glasfronten. Ein weiterer Gedanke bei der Planung war, dass man direkt nach Betreten des Hauses eine lange Sichtachse in das Tal bekommt. Auch deshalb wurde der Eingang an der Bergseite positioniert. Funktionelle Räume (Bad, Technik, Ankleide, Speis etc.) sind prinzipiell bergseitig (Westen) orientiert. Ferner sind alle WCs übereinander angeordnet, um die Leitungen zu vereinfachen. Die zwei Auskragungen von jeweils 1 m sollen ein wenig Schatten spenden, sind aber in erster Linie ästhetischer Natur und wären im Zweifel verzichtbar. Ursprünglich war es ein reiner Kubus von 10 x 10, aber diese Variante gefällt meiner Frau und mir deutlich besser. Die Glasfronten sind nicht final bemessen und nur ein Anhaltspunkt. Wenn das statisch nicht geht, können diese auch etwas kleiner ausfallen. Die gerade Treppe ist sicher ein Diskussionspunkt, wobei ich gerade Treppen optisch sehr ansprechend finde.
Bezüglich Sichtschutz bzw. Nachbarn: Talseitig aufgrund der Hanglage nicht relevant. Bergseitig wäre ein Haus angrenzend, deshalb hier auch keine offenen Fronten. Zu den Seiten (Norden und Süden) jeweils weiter straßenwärts lokalisierte Häuser und zuästzlich dazwischen hohe Bäume und Sträucher. Insofern fast vollständiger Sichtschutz.
Bitte bei den Grundrissen die nicht zu den Terrassen gehörenden Außenbereiche ignorieren, da diese nur zur behilfsmäßigen Simulation der Hanglage genutzt wurden.
Was ist die wichtigste/grundlegende Frage zum Grundriss in 130 Zeichen zusammengefasst?
Geht unser Entwurf in die richtige Richtung oder gibt es hier große Mängel, die nicht beachtet wurden?
Der Plan dient u. a. dazu, bei verschiedenen Unternehmen erste Vergleiche einzuholen, was ein vergleichbares Haus aktuell kosten würde. Uns ist klar, dass bei einem solche Projekt bei der weiteren Planung ein Architekt mit an Bord sein muss.
Wir sind für jede Antwort sehr dankbar!







Größe des Grundstücks: 610 qm, rechteckig (etwa 15 x 40 m)
Hang: Osthang, etwa 28% Gefälle. Straße talwärts. Haus soll im bergseitig oberen Drittel positioniert werden (Sichtschutz und Aussicht).
Grundflächenzahl: n. a. (kein Bebauungsplan)
Geschossflächenzahl: n. a.
Baufenster, Baulinie und -grenze: n. a.
Randbebauung: mutmaßlich 2,50 Meter in alle Richtungen
Anzahl Stellplatz: n. a.
Geschossigkeit: n. a.
Dachform: n. a.
Stilrichtung: n. a.
Ausrichtung: n. a.
Maximale Höhen/Begrenzungen: n. a.
weitere Vorgaben: Es existiert kein Bebauungsplan. Allerdings sind in der Straße verschiedenste Haustypen zu finden, sodass architektonisch wohl fast alles möglich sein sollte.
Anforderungen der Bauherren
Stilrichtung, Dachform, Gebäudetyp: Bauhausstil, präferiert Flachdach (ggf. auch Pultdach)
Keller, Geschosse: Keller als Wohnkeller im Hang integriert, darüber zwei Geschosse
Anzahl der Personen, Alter: Bislang 3 Personen, 33 und 32 Jahre sowie ein Säugling
Raumbedarf im EG, OG: EG: Küche, Speise mit Spülnische, Wohnzimmer, Arbeitszimmer, WC, Eingangsbereich mit Ankleide
OG: Elternschlafzimmer mit Ankleide, zwei Kinderzimmer, Bad, Dachterrasse
Kellergeschoss: Gästezimmer, Gästebad, Arbeitszimmer, Hauswirtschaftsraum, Technikraum, Abstellraum, Fitnessraum
Büro: Familiennutzung oder Homeoffice? Bislang Familiennutzung, Homeoffice perspektivisch
Schlafgäste pro Jahr: Schwiegereltern würden häufig vorbeikommen
offene oder geschlossene Architektur: offen
konservativ oder moderne Bauweise: modern
offene Küche, Kochinsel: Offene Küche mit Kochinsel
Anzahl Essplätze: Ein großer esstisch
Kamin: präferiert, wie im Grundriss
Musik/Stereowand: evtl. im Wohnzimmer
Balkon, Dachterrasse: Dachterrasse zum Tal (Ostseite)
Garage, Carport: Doppelgarage separat vom Haus an Straße in Hang gegraben
Nutzgarten, Treibhaus: nein
weitere Wünsche/Besonderheiten/Tagesablauf, gern auch Begründungen, warum dieses oder das nicht sein soll: Keine Belüftungsanlage, kein Smarthome, Photovoltaikanlage
Hausentwurf
Von wem stammt die Planung:-Do-it-Yourself.
Wohnfläche: etwa 230 qm (mit Dachterrasse hälftig gerechnet)
Nutzfläche: etwa 260 qm
Was gefällt besonders? Warum? Die Auskragungen nach Osten und Süden, die Glasfronten, die Integration in den Hang, gerade Treppe, lange Sichtachse im Erdgeschoss
Was gefällt nicht? Warum? evtl. Eingangsbereich, da zu klein? Wohnzimmer zu klein?
Preisschätzung lt Architekt/Planer: gibt noch keine
Persönliches Preislimit fürs Haus, inkl Ausstattung: n. a.
favorisierte Heiztechnik: Luft-Wasser-Wärmepumpe, Fußbodenheizung
Wenn Ihr verzichten müsst, auf welche Details/Ausbauten
-könnt Ihr verzichten: Auskragungen, wenn viel teurer, Flachdach wenn viel teurer
-könnt Ihr nicht verzichten: Glasfronten
Warum ist der Entwurf so geworden, wie er jetzt ist?
Die Grundrisse sind ein erster Entwurf, der vollständig in Eigenregie erarbeitet wurde und als ersten Ansatz zur Diskussion dienen soll. Für die Erstellung habe ich mich an drei wesentlichen Grundpfeilern orientiert: der Hangorientierung, den Himmelsrichtungen und der Form des Grundstücks. Aufgrund des Ost-Hanges war für mich gesetzt, dass Richtung Osten (schöner Blick zum Tal) die größeren, bodentiefen Glasfronten und das Wohn- bzw. Esszimmer im Erdgeschoss sowie das Gästezimmer im Kellergeschoss zu positionieren sind. Um von der Küche dann auch die Möglichkeit zu haben, nach draußen zu gelangen und die Sonne zu nutzen, ist die Küche im Erdgeschoss daran angrenzend an der Südseite geplant, hier ebenfalls mit größeren Glasfronten. Ein weiterer Gedanke bei der Planung war, dass man direkt nach Betreten des Hauses eine lange Sichtachse in das Tal bekommt. Auch deshalb wurde der Eingang an der Bergseite positioniert. Funktionelle Räume (Bad, Technik, Ankleide, Speis etc.) sind prinzipiell bergseitig (Westen) orientiert. Ferner sind alle WCs übereinander angeordnet, um die Leitungen zu vereinfachen. Die zwei Auskragungen von jeweils 1 m sollen ein wenig Schatten spenden, sind aber in erster Linie ästhetischer Natur und wären im Zweifel verzichtbar. Ursprünglich war es ein reiner Kubus von 10 x 10, aber diese Variante gefällt meiner Frau und mir deutlich besser. Die Glasfronten sind nicht final bemessen und nur ein Anhaltspunkt. Wenn das statisch nicht geht, können diese auch etwas kleiner ausfallen. Die gerade Treppe ist sicher ein Diskussionspunkt, wobei ich gerade Treppen optisch sehr ansprechend finde.
Bezüglich Sichtschutz bzw. Nachbarn: Talseitig aufgrund der Hanglage nicht relevant. Bergseitig wäre ein Haus angrenzend, deshalb hier auch keine offenen Fronten. Zu den Seiten (Norden und Süden) jeweils weiter straßenwärts lokalisierte Häuser und zuästzlich dazwischen hohe Bäume und Sträucher. Insofern fast vollständiger Sichtschutz.
Bitte bei den Grundrissen die nicht zu den Terrassen gehörenden Außenbereiche ignorieren, da diese nur zur behilfsmäßigen Simulation der Hanglage genutzt wurden.
Was ist die wichtigste/grundlegende Frage zum Grundriss in 130 Zeichen zusammengefasst?
Geht unser Entwurf in die richtige Richtung oder gibt es hier große Mängel, die nicht beachtet wurden?
Der Plan dient u. a. dazu, bei verschiedenen Unternehmen erste Vergleiche einzuholen, was ein vergleichbares Haus aktuell kosten würde. Uns ist klar, dass bei einem solche Projekt bei der weiteren Planung ein Architekt mit an Bord sein muss.
Wir sind für jede Antwort sehr dankbar!
RoterPapagei schrieb:
Persönliches Preislimit fürs Haus, inkl Ausstattung: n. a.Das ist gut, in diesem Preisrahmen wird sich das Projekt auch ungefähr bewegen 😀
R
RoterPapagei24.08.22 14:40Gudeen. schrieb:
Das ist gut, in diesem Preisrahmen wird sich das Projekt auch ungefähr bewegen 😀Wir haben das absolute Limit noch nicht eruiert, sind aber recht gut aufgestellt. Das Grundstück ist schon gekauft und weiterhin ein guter Eigenkapitalstock + hohes und stetig steigendes Einkommen vorhanden. Wenn das Projekt wie hier dargestellt aber finanziell ausufernd ist, dann sind wir über diese Auskunft und die Gründe natürlich dankbar. Wir sind beide Laien und genau deshalb posten wir unsere Idee hier.Die Glasfassade ist teuer, die Größe ebenfalls.
Innendrin ist der Grundriss grausam.
Die Proportionen der Räume passen nicht zueinander, die Küche ist als solche nicht zu gebrauchen, der Gast muss durch ein Mini Fitnesszimmer, um zur Toilette zu kommen und muss nachts zwei Türen schließen, es gibt unnötige Engstellen wie z.B im Schlafzimmer zur Ankleide (die ungünstig platziert ist).
Das Haus würde sehr teuer werden, werft den Entwurf weg und sucht Euch einen Architekten und beauftragt ihn für alle Leistungsphasen.
Jetzt mal Butter bei die Fische: Wie hoch ist Euer Budget? Das hier baut man nicht mal ebenso für für 700k.
Innendrin ist der Grundriss grausam.
Die Proportionen der Räume passen nicht zueinander, die Küche ist als solche nicht zu gebrauchen, der Gast muss durch ein Mini Fitnesszimmer, um zur Toilette zu kommen und muss nachts zwei Türen schließen, es gibt unnötige Engstellen wie z.B im Schlafzimmer zur Ankleide (die ungünstig platziert ist).
Das Haus würde sehr teuer werden, werft den Entwurf weg und sucht Euch einen Architekten und beauftragt ihn für alle Leistungsphasen.
Jetzt mal Butter bei die Fische: Wie hoch ist Euer Budget? Das hier baut man nicht mal ebenso für für 700k.
R
RoterPapagei24.08.22 14:51SoL schrieb:
Die Glasfassade ist teuer, die Größe ebenfalls.
Innendrin ist der Grundriss grausam.
Die Proportionen der Räume passen nicht zueinander, die Küche ist als solche nicht zu gebrauchen, der Gast muss durch ein Mini Fitnesszimmer, um zur Toilette zu kommen und muss nachts zwei Türen schließen, es gibt unnötige Engstellen wie z.B im Schlafzimmer zur Ankleide (die ungünstig platziert ist).
Das Haus würde sehr teuer werden, werft den Entwurf weg und sucht Euch einen Architekten und beauftragt ihn für alle Leistungsphasen.
Jetzt mal Butter bei die Fische: Wie hoch ist Euer Budget? Das hier baut man nicht mal ebenso für für 700k.Okay. Dann ist das so. Vielen Dank für die ehrliche Antwort! Hatte schon damit gerechnet.N
Neubau202224.08.22 14:51RoterPapagei schrieb:
Wir haben das absolute Limit noch nicht eruiert, sind aber recht gut aufgestellt. Das Grundstück ist schon gekauft und weiterhin ein guter Eigenkapitalstock + hohes und stetig steigendes Einkommen vorhanden. Wenn das Projekt wie hier dargestellt aber finanziell ausufernd ist, dann sind wir über diese Auskunft und die Gründe natürlich dankbar. Wir sind beide Laien und genau deshalb posten wir unsere Idee hier.Bei Hanglage und den Wünschen bist Du vermutlich bei mind. 3.500 € / qm * 230 qm = 805.000 €. Dazu Baunebenkosten und Aufmusterung. Werdet vermutlich an die 1 Mio. € rankommen.
Budget ist schon sehr wichtig, weil wenn ihr mit 500.000 € kommt, braucht man sich hier nicht weiter zu bemühen..
Ähnliche Themen