ᐅ Grundriss Einfamilienhaus, 200qm, Holzhaus im amerikanischen Stil, Bodenplatte
Erstellt am: 22.06.24 13:10
T
TRomz_yS
Schorsch_baut24.06.24 13:23Hi zusammen,
danke für all eure Mühe und Gedanken!
Ich versuche allem zu folgen, zu verstehen und grundsätzlich zu berücksichtigen.
Derweil habe ich einen neuen EG-Entwurf, diesmal gemalt. Was denkt ihr?
Auch wenn der ein oder andere die Schmutzschleuse/Schleuse/Übergang Carport-Haus nicht nachvollziehen kann, so wird diese Art Raum auf anderen dt. Seiten durchaus für gut befunden und niemand will es mehr missen. Insofern werden wir daran festhalten, weil auch wir es praktisch finden.
Mal sehen, ob ich das OG ansatzweise nachgezogen bekomme. Ich finde die Auswirkungen, die man unten tätigt auf ein OG mit Dachschrägen mehr als schwierig.
Zu euren Gedanken:
Erdgeschoss
Wir sind mit dem Architekten nun bei 2/3 der Leistung (und waren bisher nie zufrieden). Eine letzte kleine Anpassungsphase gibt es noch und die wollen wir so gut es geht nutzen. Daher wollten wir so viel Feedback wie möglich einfließen lassen. Kann man bei Architekten hier eig. die Reißleine ziehen und zu einem anderen gehen? Aber wahrscheinlich lohnt das nicht bzw. man legt wieder das übliche 3-Leistungsphasenhonorar auf den Tisch.
Wir hatten mit einer Hausbaufirma auch Grundrisszeichnungen, da war die Treppe um 90° gedreht. Damit wird der Flur durchaus kompakter, allerdings sorgt bei einem Baufenster, welches eher breit als tief ist, eine Treppe in die Tiefe dafür, dass der Küche, Esszimmer-Wohnzimmer-Bereich schmaler und die Terrasse hinten nur 2m, tief war. Deshalb sind wir den Weg mit dem Architekten gegangen.
Dies einfach noch zur Erklärung und ergänzend, sofern relevant.
Viele Grüße

danke für all eure Mühe und Gedanken!
Ich versuche allem zu folgen, zu verstehen und grundsätzlich zu berücksichtigen.
Derweil habe ich einen neuen EG-Entwurf, diesmal gemalt. Was denkt ihr?
Auch wenn der ein oder andere die Schmutzschleuse/Schleuse/Übergang Carport-Haus nicht nachvollziehen kann, so wird diese Art Raum auf anderen dt. Seiten durchaus für gut befunden und niemand will es mehr missen. Insofern werden wir daran festhalten, weil auch wir es praktisch finden.
Mal sehen, ob ich das OG ansatzweise nachgezogen bekomme. Ich finde die Auswirkungen, die man unten tätigt auf ein OG mit Dachschrägen mehr als schwierig.
Zu euren Gedanken:
Erdgeschoss
- die Laufrichtung der Treppe war durchaus im 1. Entwurf des Architekten gedreht. Allerdings hätte man dann unten, wenn man zum Haus reinkommt, immer die dicke Treppenwand (Treppe soll verkleidet werden) vor der Nase. Und die Doppelflügeltür (Glas mit Sprossen) zum Wohnzimmer sähe zwischen Treppenwand und Flurwand arg erdrückt aus und würde nicht wirken. Deshalb wurde die Laufrichtung geändert. Aber wie es scheint, hat der Architekt hier auch nicht mehr gemacht als er musste, denn wir ihr festgestellt habt, kommt man nun direkt oben im dunkleren, engen Abschnitt des Flurs raus... das war mir so gar nicht bewusst, aber jetzt , wo ihr es sagt...
- großer Flur: ich glaube, dieser ist einfach der Lage der Treppe plus WZ-Tür geschuldet. Ich finde es auch suboptimal, dass der Flur größer als das Büro ist, wüsste aber keine andere Lösung.
- Speisekammer: diese ist nur dazu da, dass hier Küchengeräte gelagert (Eismaschine) bzw. direkt angeschlossen auf der 120cm Arbeitsplatte stehen (Toaster, Airfryer). Plus Lagerung von Vorräten etc. in Auszügen und Hängeschrank.. Noch Platz finden soll ein 60er Tiefkühlschrank, da in der Küche nur ein Kühlschrank (ohne Eisfach) steht. Wir haben keine Getränkekisten oder sonstige Flaschen, die ich aufbewahren muss. Außer vlt. mal für eine Feier und dafür kann ich dann das Lager/den Kellerersatz nutzen.
- in dem Durchgang Carport-Haus stehen vorrangig Kleiderschränke und ein großer Schuhschrank plus eine kleine Sitzbank. Super fand ich die Idee mit der Gartentür. Diese habe ich hinzugefügt, so kann man nun auch hier rein aus dem Garten. Zum Vorschlag, Speise mit Mud zu kombinieren: Hier wollte ich ungern den Airfryer anschmeißen, weil dann die Klamotten riechen. Auch mag ich Lebensmittelvorräte nicht mit "Draußenklamotten" mischen. Sorry.
- Essbereich/WZ: Der verloren geglaubte Platz rechts der Essecke ist eigentlich für eine große Zimmerpflanze angedacht oder Weihnachtsbaum (ich bin halt voll die X-Mas-Deko-Maus). Wenn ich das WZ näher an das Kü-Esszimmer rücke, kann ich dergleichen nirgends hinstellen, glaube ich.
- das Büro oben - zwischen Schlafzimmer und Kinderzimmer - unterzubringen ist insofern leider keine Option, als dass wir beide dort tagsüber arbeiten und abends/in der Freizeit auch am PC sitzen/dort lauter Musik hören etc. Zudem sind dort Schrägen, die mit den höhenverstellbaren Schreibtischen und hohen Bücherregalen kollidieren würden.
- Flur: ich finde ihn auch echt nicht gut gelöst vom Architekten. Diese Sitzecke stammt von ihm, so Möbel haben wir aber gar nicht. Ich würde den Platz wohl mit neuen Kommoden/Regalen/Stauraum irgendwann füllen...
- der "allroom" ist auch nur durch uns entstanden, weil der Platz und Raum "noch übrig war". Eigentlich traurig...
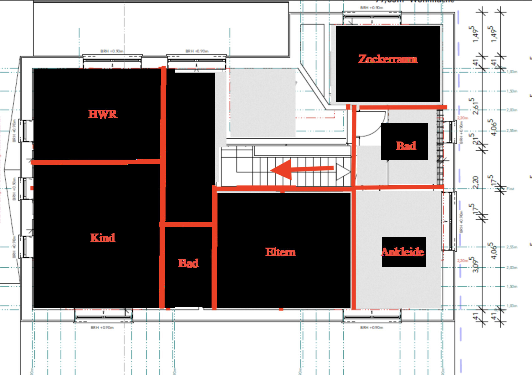
- zum Bad: im ersten Entwurf war ein Masterbad und Kinderzimmer-Bad vorgesehen. Das Kinderzimmer-Bad ist aus irgendeinem Grund im 2. Entwurf verschwunden. Die 2. Dusche für Gäste damit auch. Sie wurde einfach komplett vergessen. Und nun muss ein neues Gästebad her...
Wir sind mit dem Architekten nun bei 2/3 der Leistung (und waren bisher nie zufrieden). Eine letzte kleine Anpassungsphase gibt es noch und die wollen wir so gut es geht nutzen. Daher wollten wir so viel Feedback wie möglich einfließen lassen. Kann man bei Architekten hier eig. die Reißleine ziehen und zu einem anderen gehen? Aber wahrscheinlich lohnt das nicht bzw. man legt wieder das übliche 3-Leistungsphasenhonorar auf den Tisch.
Wir hatten mit einer Hausbaufirma auch Grundrisszeichnungen, da war die Treppe um 90° gedreht. Damit wird der Flur durchaus kompakter, allerdings sorgt bei einem Baufenster, welches eher breit als tief ist, eine Treppe in die Tiefe dafür, dass der Küche, Esszimmer-Wohnzimmer-Bereich schmaler und die Terrasse hinten nur 2m, tief war. Deshalb sind wir den Weg mit dem Architekten gegangen.
Dies einfach noch zur Erklärung und ergänzend, sofern relevant.
Viele Grüße
S
Schorsch_baut24.06.24 14:07Du schaffst einen extra Miniraum nun sogar ohne Tageslicht! für ein paar Küchengeräte, ohne dort wirklich eine Arbeitsfläche oder Spülmöglichkeit zu haben. Auf 120 cm passt nicht viel und dann schleppst Du immer alles hin und her. Und der Weg vom Auto zur Speis ist nun auch nicht mehr logisch.
Das kannst Du alles besser in verschließbaren Arbeitsflächen/ Schränken in der Küche verstauen. Und willst Du wirklich immer aus dem Auto kommend mit Sack und Pack in den Mini-Mudroom und dann direkt in die Küche? Das ist doch auch nix. Dafür ist die Garderobe im Eingang jetzt noch kleiner.
Das kannst Du alles besser in verschließbaren Arbeitsflächen/ Schränken in der Küche verstauen. Und willst Du wirklich immer aus dem Auto kommend mit Sack und Pack in den Mini-Mudroom und dann direkt in die Küche? Das ist doch auch nix. Dafür ist die Garderobe im Eingang jetzt noch kleiner.
S
Schorsch_baut24.06.24 14:48TRomz_y schrieb:
Ich finde die Auswirkungen, die man unten tätigt auf ein OG mit Dachschrägen mehr als schwierig.Sehe ich es richtig, dass Ihr bezüglich der Dachformen und Gauben Euch die Fassade ausgesucht habt und jetzt versucht, drinnen alles fein zu machen?Das halte ich für den falschen Weg.
TRomz_y schrieb:
Kann man bei Architekten hier eig. die Reißleine ziehen und zu einem anderen gehen?Kann man. Aber der richtige Weg wäre zu kommunizieren, was einem warum nicht so gefällt, dass er es anders machen kann und verbessert.S
Schorsch_baut24.06.24 15:27ypg schrieb:
Sehe ich es richtig, dass Ihr bezüglich der Dachformen und Gauben Euch die Fassade ausgesucht habt und jetzt versucht, drinnen alles fein zu machen?
Das halte ich für den falschen Weg.Ich würde auch erst das Raumprogramm entwerfen. Bei den modern Farmhouse Varianten gibt es ja auch Häuser mit anderen Giebelformen, die trotzdem diesen klassischen Look haben.Ähnliche Themen