ᐅ Grundriss Einfamilienhaus, 200qm, Holzhaus im amerikanischen Stil, Bodenplatte
Erstellt am: 22.06.24 13:10
T
TRomz_yTRomz_y schrieb:
Der Grundriss ist eigentlich aus einer Beschreibung des Alltags heraus entstanden.Dann müsste nach Deinen Änderungen gesagt worden sein, dass Du lange und komplizierte Wege magst. Statt aufgeräumter, rechteckiger Räume Nischen und Trennwände. Weite Wege (Garderobe).. Verteilung dieser auf zwei Ecken des Hauses (Schleuse und Ecke planoben rechts)TRomz_y schrieb:
Ich kenne genug normale Garderoben in Häusern, die überquellen und immer unordentlich wirken.Ja, und das wird bei Dir ebenso sein. Denn ich sehe keine großzügige Garderobe am Eingangsbereich.TRomz_y schrieb:
Die normale Garderobe in den MudRoom zu packen widerspricht auch der eigentlichen Philosophie des Mud Rooms.Eigentlich nicht.TRomz_y schrieb:
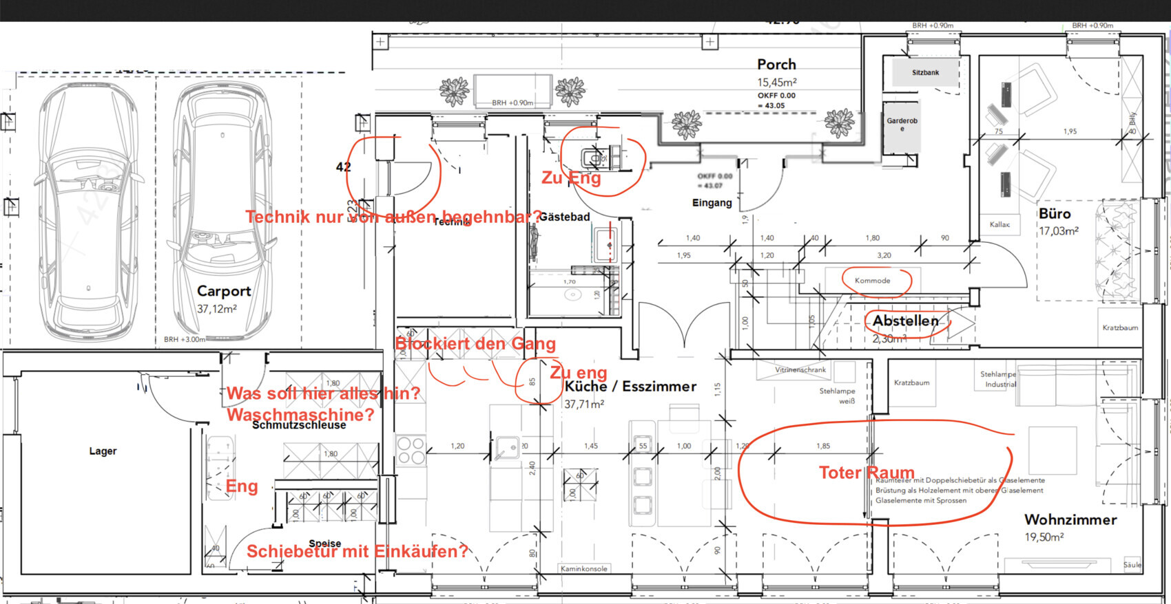
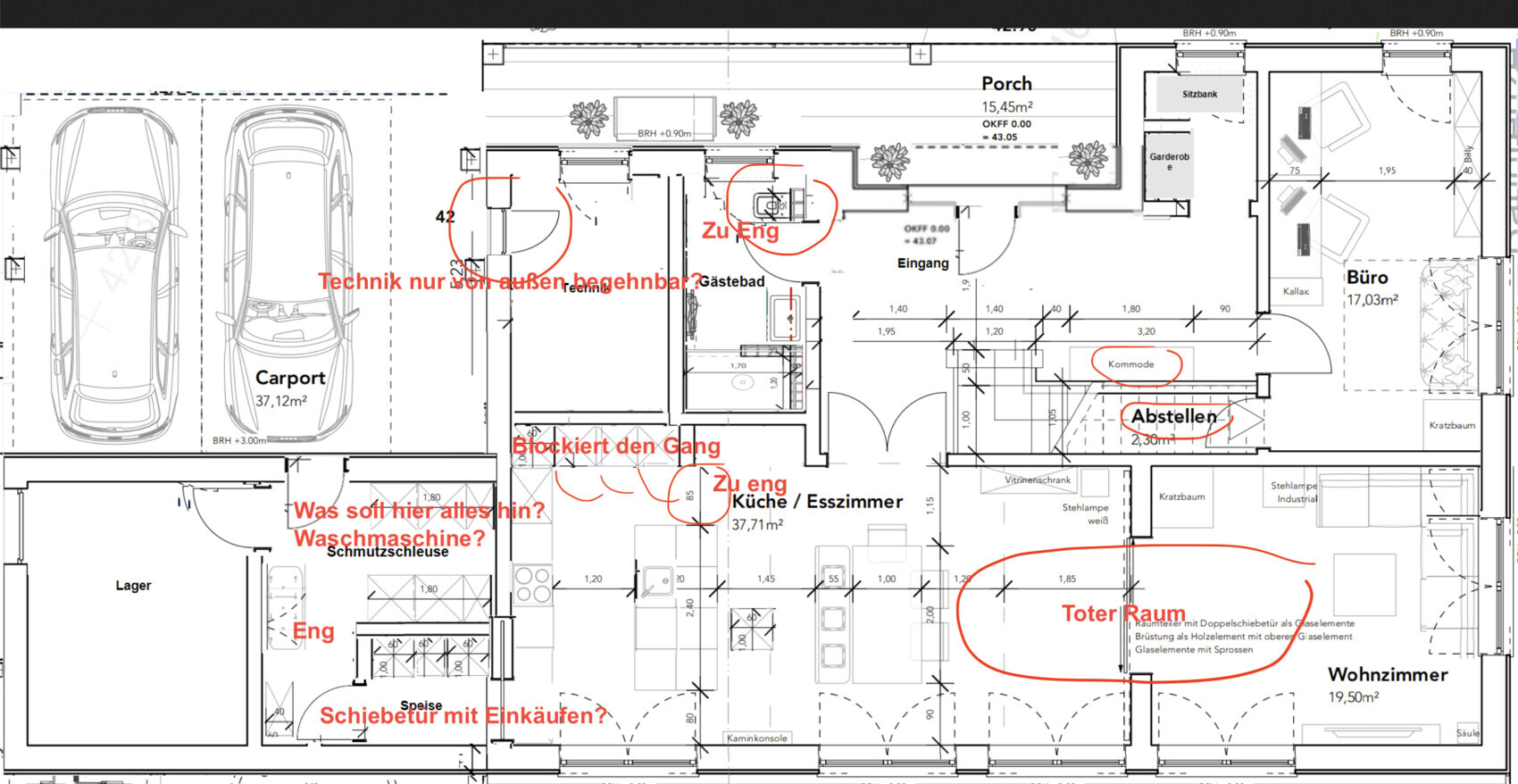
Was meinst du genau mit "Schmutzschleuse und Speis behindern sich irgendwie gegenseitig"?Naja, sind halt kleine Wege anstatt eines Raumes mit Übersicht.TRomz_y schrieb:
Warum funktioniert die Speisekammer nicht?Du planst nur Hochschränke als Stauraum. Keine Ablage. Du wirst Dir selbst im Weg stehen. Ein Backblech mit Kuchen kann man nicht zwischenlagern außer in der „Schmutzschleuse“. Was für ein Wort.. Ich dachte, so etwas gibt es nur auf Bauernhöfen..TRomz_y schrieb:
Der Rest der Küche (4-5 m) sind reine Arbeitsfläche.ich rede von Abstellfläche. Arbeitsinsel ist klar. Aber da will man doch nicht zig Gegenstände des Alltagsgebrauch abstellen?!TRomz_y schrieb:
Könntest du genauer erklären, warum das WC nicht funktioniert?Guckst Du selbst. 35cm ist die Toi breit, Du selbst 50 plus. Du schubberst an der Wand. Ca. 90 cm Minimum braucht eine Toilette.Waschbecken ebenso. Der rechte Ellenbogen stößt an.
TRomz_y schrieb:
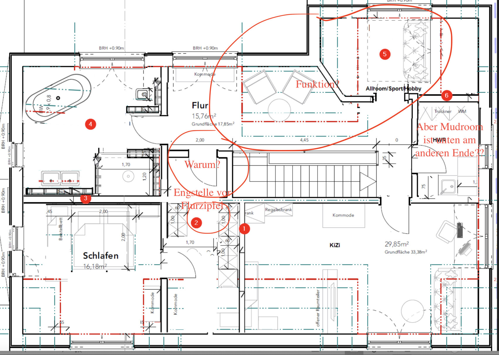
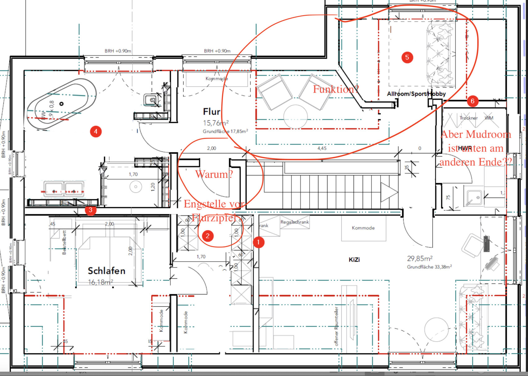
Technik kleiner als 10qm ist ein No Go.Zahlen sind wie Schall und Rauch. Nogo könnte eher sein, dass man den Technikraum nicht vom Haus aus betreten kann. Ich habe mir sagen lassen, dass viele jeden Tag ihre Technik überprüfen oder besuchen, um zu kontrollieren. Gerade mit der heutzutage neuen Technik.Wie schon gesagt: es ist alles sehr unrund und zerklüftet. Nebenbei muss ich auch sagen, dass ich den Eindruck habe, dass Du eher an gewissen Räumlichkeiten festhälst als die Funktion zu sehen, aufgrund der man diese Räume einrichtet.
Es ist doch egal, wie man die Räume nennt, Hauptsache, das Haus funktioniert im Tageswerk und -Ablauf. Bei Deinen Entwurf weiß man doch gar nicht, wo man jetzt sein Paar Schuhe hingestellt hat, ob im Mudroom, sorry, Schmutzschleuse oder in der Garderobe,
Du hast halt geflickt, und flicken ist nie gut.
S
Schorsch_baut24.06.24 07:17Du musst mit den Einkäufen mindestens zwei, eher drei Türen aufmachen in engen Räumen. Für ein bestimmtes Szenario. Schlechtes Wetter. Du baust überall Schmutzsuffangbereiche ein, damit das Haus rein bleibt. Damit baust Du aber zig Ecken, wo sich Zeug ansammeln wird.
Wir haben einen Hintereingang ins Haus vom Garten aus. Das ist unsere Waschküche. Und einen Vordereingang, der hauptsächlich benutzt wird. Dadurch haben wir auch tatsächlich zwei getrennte Kleideransammlungen. Garten- und Pferde- und Hundekram hinten, der Rest vorne. Dein Vordereingang erinnert mich an die gute Stube meiner Oma, die niemals benutzt wurde. Und für einen heimlichen Haupteingang, Lager und Durchgang ist das zu eng.
Wir haben einen Hintereingang ins Haus vom Garten aus. Das ist unsere Waschküche. Und einen Vordereingang, der hauptsächlich benutzt wird. Dadurch haben wir auch tatsächlich zwei getrennte Kleideransammlungen. Garten- und Pferde- und Hundekram hinten, der Rest vorne. Dein Vordereingang erinnert mich an die gute Stube meiner Oma, die niemals benutzt wurde. Und für einen heimlichen Haupteingang, Lager und Durchgang ist das zu eng.
S
Schorsch_baut24.06.24 09:06Je länger ich den Grundriss anschaue, desto unsinniger erscheint er mir. Man merkt, dass Ihr ein deutsches, klassisches Raumprogramm in einen pseudo-amerikanischen Grundriss pressen wollt, der durch die äußere Form und ein paar Gimmicks vorgegeben wird.
Ich sehe da auch keinen begabten oder interessierten Architekten am Werk.
Ihr habt extrem viel Lauffläche und Platzverschwendung und dann knubbelt sich alles in Ecken. Weitläufig, ja, großzügig, nein. Man muss immer um irgendwelche Ecken, durch Türen und hin und her. Der Hauswirtschaftsraum ist am komplett anderen Ende von Haus, wenn man in der Schmutzschleuse mit dreckigen Sachen steht. Ich empfehle Euch, entwede konsequent bei amerikanischen Grundrissen zu bleiben oder neu zu planen. Der Entwurf ist für die Tonne.


Ich sehe da auch keinen begabten oder interessierten Architekten am Werk.
Ihr habt extrem viel Lauffläche und Platzverschwendung und dann knubbelt sich alles in Ecken. Weitläufig, ja, großzügig, nein. Man muss immer um irgendwelche Ecken, durch Türen und hin und her. Der Hauswirtschaftsraum ist am komplett anderen Ende von Haus, wenn man in der Schmutzschleuse mit dreckigen Sachen steht. Ich empfehle Euch, entwede konsequent bei amerikanischen Grundrissen zu bleiben oder neu zu planen. Der Entwurf ist für die Tonne.
S
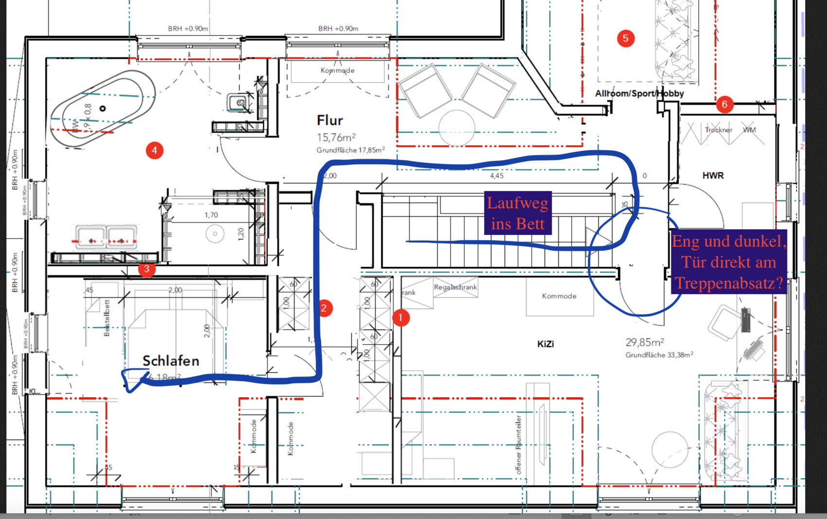
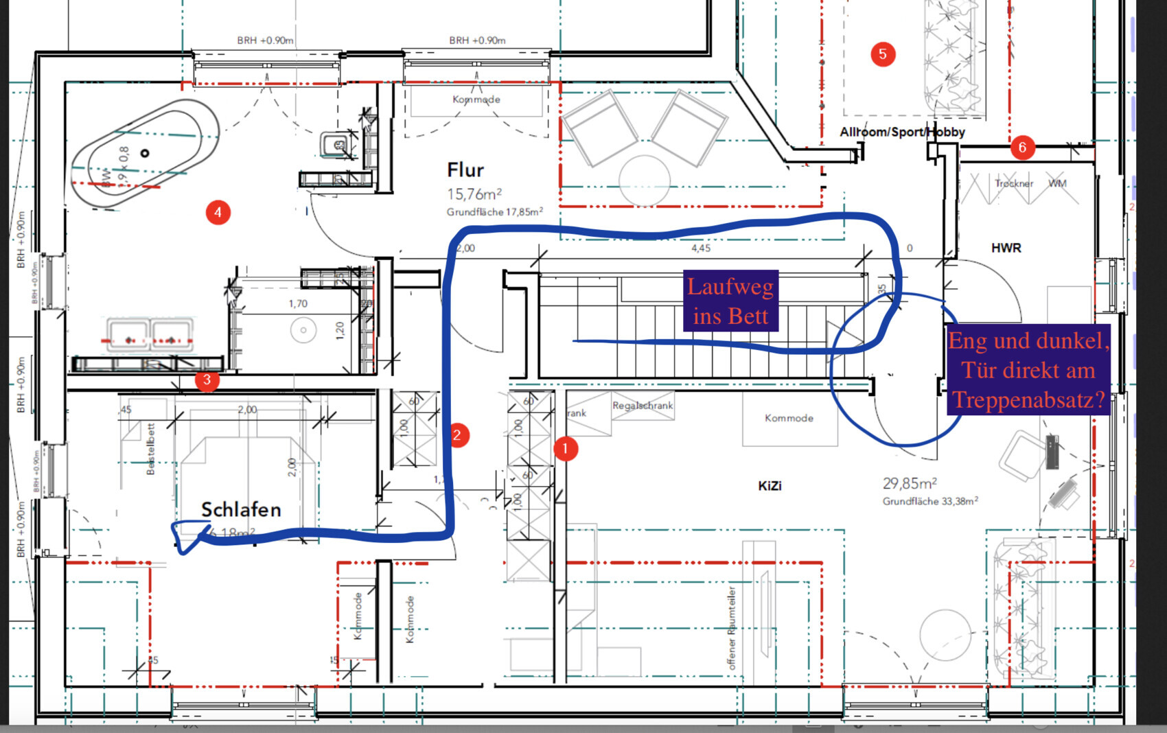
Schorsch_baut24.06.24 09:20Die Treppe ist auch ganz schlecht geplant. Der Austritt oben eng, dunkel, verwinkelt. Da bekommst Du kein größeres Möbel hoch. Der Weg zum Bett ist lang und drei mal um die Ecke. Wanne, Doppelbett, Schränke, wie soll das durch die Gänge transportiert werden? Das könnt Ihr nur durch Fenster reinheben lassen und wenn ich mir anschaue, dass die Möblierung größtenteils mit Ikea geplant wird, seh ich dafür nicht das Budget. Tut mir echt leid, aber das ist ein Luftschloss.

S
Schorsch_baut24.06.24 09:32Ich habe gerade den Laufrichtungspfeil der Treppe falsch gelesen. Der Weg zum Bett ist damit zwar kürzer, aber das Problem der engen Gänge bleibt.
Ähnliche Themen