Hausbau - Ratgeber
Bauherrenhilfe
- Bauherrenhilfe vor Vertragsabschluss
-- Warum einen unabhängigen Baubetreuer?
-- Vertragsgrundlagen
-- Bausumme
-- Zahlungsplan zur Kostenkontrolle
-- Pflichten des Bauherren vor Vertragsabschluss
-- Unterlagen beim Hausbau vor Vertragsabschluss
- Bauherrenhilfe nach Vertragsabschluss
-- Bauantrag bei Behörden
-- Bau-Genehmigungsverfahren bei Baubehörden
-- Bauspezifische Versicherungen
-- Bauzeitenplan
-- Baubeginn - die Letzten Pflichten der Bauherrschaft
- Bauherrenhilfe während der Bauzeit
- Gewährleistungsansprüche
- Bauabnahme
Baufinanzierung
- Baufinanzierung - Allgemeine Fragen
- Kreditarten
- Kredit-Konditionen
- Bausparen
- Staatliche Förderungen
- Verkehrswert
- Haushaltsrechnung und Bonität
Hausbau Planung
- Haustypen
- Hausbau Vorbereitungsarbeiten
- Das Baugrundstück
- Baugrund beim Hausbau
- Baurecht
- Gebäudeschutz
- Erdarbeiten und Wasserhaltung
- Stützmauern
- Einfriedung
- Untergeschoss
- Kanalisation
- Tragende Elemente
- Nichttragende Innenwände
- Fundation / Fundament
- Deckenkonstruktionen
- Dächer
- Kaminanlagen
- Treppen Rampen Leitern
- Dachbeläge und Spengler
- Fenster
- Sonnen und Wetterschutz
- Aussenputze
- Einbauten, Küchen, Türen
- Bodenbeläge und Unterlagsböden
- Parkett
- Gips, Wand, Decke
Haustechnik und Energie
- Heiztechnik
- Lüftung und Klimatechnik
- Sanitärtechnik
- Elektrotechnik
- Erneuerbare Energie
Whirlpools / Jacuzzi
Hausbau Magazin
- Baufinanzierung trotz Krise?
- Das Blockhaus
- Moderne Dämmstoffe im Vergleich
- Erker Vor- und Nachteile
- Glasflächen beim Hausbau
- Günstig ein Haus Bauen
- Mediterraner Hausbaustil
- Mehrgenerationenhaus
- Moderne Architektur
- Gartengestaltung leicht gemacht
- Traditioneller Ziegelbau
- Villa als höchster Traum
- Im Eigenheim Ruhestand geniessen
- Altbau sanieren
- Kauf einer Holzgarage
- Immobilienmakler
- Arbeitshandschuhe für den Winter
- Zuhause verschönern
- Outdoor-Plissees
- Schlafzimmer planen
- Terrassenüberdachung
- Wohngebäudeversicherung
- Zaunarten und Eigenschaften
- Hauseingang gestalten
- Der perfekte Grundriss
- Sparsamer heizen im Altbau
- Einfamilienhaus smart finanzieren
- Planung einer PV-Anlage
- Neues Haus
- Immobilienfinanzierung
- Installation einer Photovoltaikanlage
- Asbest erkennen und entfernen
- Gartenpflege im Frühling – worauf achten
- Sauna im Fokus - Wellness zuhause
- Erfolgreich vermieten
- Die perfekte Winterbekleidung
- Das Niedrigenergiehaus
- Der April und seine Stürme
- Architektonische Vielfalt
- Ökologisch und nachhaltig bauen
- Das perfekte Schlafzimmer
- Nachhaltige Energieversorgung
- Zukunftsorientiert bauen
- Nachhaltigkeit beim Hausbau
- Tiny Houses
- Wärmepumpen als nachhaltige Heizvariante
- Maßgeschneiderten Kleiderschrank
- Der richtige Baukredit
- Ratgeber für erfolgreichen Hausbau
- Haus als Altersvorsorge
Do-it-yourself Anleitungen
- Verlegeanleitung für Bodenbeläge und Parkett
- Bodenbeläge und Parkett reinigen und pflegen
- Malerarbeiten am Haus
- Garten Tipps
- Umzug und Reinigung

ᐅ Grundriss Einfamilienhaus 150qm - Fenster- und Badplanung

Erstellt am: 06.04.22 11:49
R
RIU2807
R
RIU2807
06.04.22 11:49
Liebe Mitglieder des Forums,

bald steht die Werkplanung für unseren Neubau (Massivhaus) als Einfamilienhaus für 4 Personen (2 Erwachsene, 2 Kinder) an. Da ich schon öfter im Forum mitgelesen habe und jede Meinung als wertvoll empfinde, möchte ich nun gerne unseren Gesamtentwurf einstellen und beschreibe die Details unten im Fragebogen. Grundsätzlich haben wir versucht, wegen der hohen Baupreise und der Grundstücksgröße mit möglichst wenig Gesamtfläche auszukommen. Die grundsätzliche Raumaufteilung und Hausmaße sind nicht mehr änderbar. Wir sind mit der Lage des Hauses und Ausrichtung der Räume im Grundstück aber insgesamt sehr zufrieden (eine 90°-Drehung des Hauses wurde getestet, jedoch verworfen). Uns geht es folglich vor allem um die Innen- bzw. Fassadengestaltung.

Uns erscheint in der Kosten-/Nutzenabwägung der Entwurf im Grundatz ein guter Kompromiss zu sein, der die für uns wichtigsten Aspekte umsetzt.

Ich möchte gerne fragen, ob jemand im Entwurf grundsätzlich Probleme sieht?
Uns ist bewusst, dass im EG die Abtrennung des Wohnbereichs vom Koch- und Essbereich die Bewegungsfläche einschränkt, allerdings ist die Abtrennung für uns alternativlos - wir haben Erfahrung mit einem offenen Wohn-/Essbereich sowie mit einer Abtrennung des Kochbereichs von Essen und Wohnen und zu unseren Lebensgewohnheiten passt ein abgetrenntes Wohnzimmer am besten.
Die gerade Treppe war ursprünglich kein absolutes Muss, ist aber der favorisierte Treppentyp.

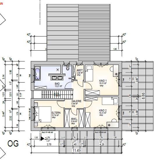
Unsicher sind wir uns im Besonderen noch wegen der Fensterplanung, welche noch völlig offen ist - angefangen im OG im Elternschlafzimmer.
Hier hätten wir gerne die Möglichkeit das Bett an die Nordwest- oder Südwestwand zu stellen, wissen jedoch nicht, wie wir dann am besten die Fenster einplanen sollen, da uns eine möglichst symmetrische Ansicht des Hauses von der Straße aus (Nordwesten) wichtig ist. Es ist grundsätzlich für uns in Ordnung, wenn das Bett bei einer Variante unter dem Fenster stünde. Wie groß müsste das Fenster etwa sein, damit bei einer Brüstungshöhe auf 120cm ausreichend Licht in den Raum kommt? Oder würdet ihr in jedem Fall ein Fenster auf der anderen Wand einplanen (so würde das Bett bei beiden Varianten unter einem Fenster stehen)? Wie würdet ihr dann die weiteren Fenster auf der Südwestseite des Hauses (Ankleide, Kinderzimmer) planen? Habt ihr ganz andere Lösungen?
Aktuell sind im OG in den beiden Kinderzimmern auf der Südostseite zudem Fenster mit einer Brüsthungshöhe von 55 cm eingezeichnet - diese würden wir voraussichtlich zugunsten der Stellmöglichkeiten auf Standardbrüstungshöhe setzen. Im OG wird beschattet mit Rollläden.

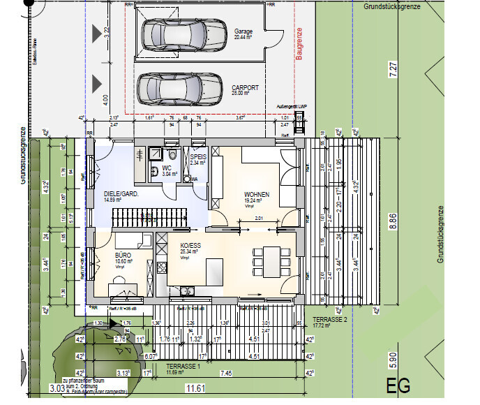
Im EG findet sich im Wohnbereich zudem neben der Terrassentür ein weiteres bodentiefes Element - dieses würden wir ebenfalls auf Standardbrüstungshöhe setzen, da hiervor sicher ein Sofa stehen wird. In der Küche soll das Fenster anders als im Plan eingezeichnet auf Ebene der Arbeitsplatte positioniert sein, d.h. die Arbeitsplatte soll in das Fenster hineinlaufen.
Im Essbereich sind wir uns hinsichtlich der Fensterplanung noch vollkommen unsicher. Beschattet wird im EG mit Raffstores. Die Hebeschiebetür ergibt aus unserer Sicht keinen Sinn, weil man die Öffnung nicht vollständig nutzen kann. Ich füge anbei einmal zwei Ideen für die Fensterplanung im Essbereich ein: (1) zwei Terrassentüren und Fensterfronten, (2) eine Terrassentür mit Fensterfront sowie ein Fenster mit Brüstungshöhe 55cm (als Sitzfenster nutzbar). Wie findet ihr diese Ideen?

Ein weiterer Punkt ist die Badplanung:
Der Architekt und zwei Badplaner empfehlen uns die T-Lösung mit Badewanne an der Nordwestwand (Fenster darüber). Der wenige Stauraum stört uns allerdings (kein Platz für einen Hochschrank). Hättet ihr bezüglich des Stauraums Ideen/Anmerkungen oder gar alternative Grundrissideen für das Bad?


Bebauungsplan/Einschränkungen
Größe des Grundstücks: 490qm
Anzahl Stellplatz: 2
Geschossigkeit: 2

Anforderungen der Bauherren
Keller, Geschosse: Keller + 2 Vollgeschosse
Anzahl der Personen, Alter
Raumbedarf im EG, OG
Büro: Homeoffice für 1 Person
Kamin: nein, aber Wäscheabwurfschacht
Garage, Carport: Garage mit Carport

weitere Wünsche/Besonderheiten/Tagesablauf, gern auch Begründungen, warum dieses oder das nicht sein soll:
Im Keller wünschten wir uns: 1 obligatorischer Technikraum mit Waschmaschine und Trockner, 1 Werkstatt- und Lagerraum, 1 weiterer Lagerraum sowie einien Hobbyraum (mit Fußbodenheizung)

Wir haben uns im EG gewünscht: 1 Büro für Homeoffice (alternativ als Schlafraum für 1 Person nutzbar), Kochen/Essen abgetrennt vom Wohnbereich, Wohnen/Essen/Kochen L-förmig angeordnet, Küche mit Halbinsel, Gäste-WC mit optionaler Duschmöglichkeit und Abstellraum, die finale Raumhöhe im EG wird 2,60m sein.

Im OG war unser Wunsch: Familienbad (T-form wird uns hier vom Architekten und zwei Badplanern empfohlen), kleiner Abstellraum, 2 Kinderzimmer, Elternschlafzimmer, Ankleide (der Eingang über den Flur ist bewusst gewählt und wird so favorisiert)

Hausentwurf
Von wem stammt die Planung:
-Architekt eines Bauunternehmens

Was gefällt besonders? Warum?: Grundsätzliche Wünsche berücksichtigt; gute Flächenausnutzung, Ausrichtung der Räume, kleiner "Rundumlauf" im EG (Flur, Küche/Essen, Wohnen) möglich, wenig Flurfläche im OG, gleichgroße Kinderzimmer, Eckterrasse möglich; Wäschewabwurfschacht
Was gefällt nicht? Warum?: Badplanung, Sorge wegen zu geringer Raumgröße im Essbereich, aktuelle Fensterplanung:
-
favorisierte Heiztechnik: luftwärmepumpe

Wenn Ihr verzichten müsst, auf welche Details/Ausbauten
-könnt Ihr verzichten: T-Lösung im Bad, hohe Brüstungshöhen von Fenstern
-könnt Ihr nicht verzichten: Abtrennung des Wohnbereichs

Warum ist der Entwurf so geworden, wie er jetzt ist? ZB
gute Raumausnutzung, gute Ausrichtung der Räume, o.g. Wünsche

Was ist die wichtigste/grundlegende Frage zum Grundriss in 130 Zeichen zusammengefasst?
Welche Stauraumlösungen oder Alternativen sehr ihr zur T-Lösung im Bad? Welche Ideen/Anregungen/Empfehlungen habt ihr hinsichtlich der Fensterplanung?

Wir freuen uns auf eure Anregungen, Empfehlungen und Meinungen!

Lageplan: Zwei rote Baukörper auf einem Grundstück, Nord oben, umliegende Bebauung.


Grundriss eines Hauses mit Garage, Carport, Wohnzimmer, Büro, Terrasse und Garten.


Grundriss Obergeschoss: Galerie, Elternzimmer, zwei Kinderzimmer, Bad, Ankleide, Abstellraum.


2D-Grundriss Kellergeschoss mit Flur, Kellern, Treppen und Hobbyraum


Vier Ansichten eines Hauses mit Garage, Garten und Bäumen - Nordost/Südost/Nordwest/Südwest


Grundriss: Küche/Essen mit Esstisch und Stühlen, 25,71 m²; angrenzende Räume und Türen sichtbar.


Weißes zweistöckiges Haus mit rotem Dach, Garage und Garten; Figur steht am Eingang.


Weißes zweistöckiges Haus mit rotem Dach, Glasfront, Person am Eingang, Garten.


Grundriss eines Küchen- und Essraums (25,71 m²) mit Insel und Esstisch.


Zweistöckiges Haus mit rotem Dach, Garten und Garage; Innen Wohnzimmer und Esstisch sichtbar.
1
11ant
06.04.22 14:40
RIU2807 schrieb:

bald steht die Werkplanung für unseren Neubau (Massivhaus) als Einfamilienhaus für 4 Personen (2 Erwachsene, 2 Kinder) an. Da ich schon öfter im Forum mitgelesen habe und jede Meinung als wertvoll empfinde, möchte ich nun gerne unseren Gesamtentwurf einstellen und beschreibe die Details unten im Fragebogen.
Dafür erst´mal herzlichen Dank, daß Du zu einer solchen Frage das ganze Haus zeigst und nicht bloß den Badezimmergrundriss. So wie auf dem Übersichtsplan dargestellt, gefällt mir das Haus gut, und auch in den Grundrissen finde ich es okay. Die bunten Ansichten scheinen mir aber doch recht stark abzuweichen - geht das denn überhaupt noch (ohne im genehmigungsverfahren Verzögerungen zu verursachen) ? - ich interpretiere "Werkplanung" als abgeschlossene Einreichplanung, und die Variationen der Fenstergrößen und teilweise auch -lagen zwischen den beiden Zeichnungsvarianten erscheinen mir über den Rahmen üblicher Tekturen hinauszugehen. Ich würde das "Treppenfenster" wohl nicht so hoch gehen lassen, d.h. seinen Sturz etwa auf die Firsthöhe der Garage legen (als einzige Abweichung zu den Fassaden in der Version des Übersichtsplanes).
https://www.instagram.com/11antgmxde/
https://www.linkedin.com/company/bauen-jetzt/
R
RIU2807
06.04.22 15:05
Vielen Dank für die Rückmeldung.
Änderungen bei den Fenstern sind laut Auskunft unseres Bauamts kein Problem, so lange Absturzsicherungen etc. eingehalten werden und wir - so wörtlich - "die Anzahl der Fenster nicht verdoppeln".
D
driver55
07.04.22 10:50
RIU2807 schrieb:

Sorge wegen zu geringer Raumgröße im Essbereich
Berechtigt. Halte ich auch für zu knapp, vor allem, weil abgetrennt zu Wohnen und Küche zu groß.
Wenn trennen, dann nur Küche separat.

„Schlimm“ finde ich auch den Eingangsbereich mit dem „ZickZackLauf“ und der Treppenzugang.

Wenn die Werkplanung kurz bevorsteht sind mögliche Änderungen (außen) ohnehin nur Kosmetik.
A
aw39_bonn
07.04.22 16:22
RIU2807 schrieb:


Ein weiterer Punkt ist die Badplanung:
Der Architekt und zwei Badplaner empfehlen uns die T-Lösung mit Badewanne an der Nordwestwand (Fenster darüber). Der wenige Stauraum stört uns allerdings (kein Platz für einen Hochschrank). Hättet ihr bezüglich des Stauraums Ideen/Anmerkungen oder gar alternative Grundrissideen für das Bad?


Hierzu einfach vielleicht folgenden Ansatz wählen:

- Was braucht ihr an "Utensilien" im Badezimmer, die dort im direkten Zugriff sein sollen (Handtücher, Kosmetika, Pflegeprodukte)
- Wie viel Raum nimmt das üblicherweise ein?
- WElche Art des Zugriffs/Zugriffsbeschränkung ist sinnvoll (Medikamente bei KLeinkindern eher in Deckenhöhe bspw.)
- Welche Stauraumbedarf kommt ergibt sich hieraus?

Prinzipiell bin ich ein Fan von integrierten Lösungen, die man bspw. in den Trockenbau integrieren kann (man bemühe hier das visuelle soziale netzwerk mit dem begriff bathroom storage).

Konkret könnte dies bspw. so aussehen, dass ihr an der Kopfseite der Badewanne eine deckenhohe Trennwand einzieht, und zwischen der neu entstehenden Trennwand und der bereits bestehenden Außenwand des Badezimmers Regalböden einbaut (mit einer Tür kann man das ganze auch versehen)

Vielleicht ein konstruktiver Gedanke noch zur Toilette:

Qua Anlage frisst diese mit Zugang und dazugehörigen Wänden recht viel Raum, ohne Tür erfüllt sie aber vermutlich nicht den gewünschten Zweck (das Bad kann parallel genutzt werden). Entweder ihr verbaut hier - falls nicht ohnehin schon geplant - eine Tür (Einfache Schiebetüren don´t do the job hab ich jetzt nach mehrfachem Antreffen in Hotelzimmern gelernt 😉) oder ihr verzichtet auf die kleine "Kackecke" und legt den Grundriss des Badezimmers davon losgelöst an.
G
gutentag
08.04.22 08:21
Ich würde den Eingang und das WC tauschen. Dann ist der Eingang mit überdacht.
fensterplanungessbereichterrassentürküchewerkplanungentwurfbettkinderzimmerkellergarage