Grundrissoptimierung - Kamin-Problem

4,80 Stern(e) 6 Votes
Zuletzt aktualisiert 19.11.2025
Sie befinden sich auf der Seite 5 der Diskussion zum Thema: Grundrissoptimierung - Kamin-Problem
>> Zum 1. Beitrag <<

HomeSweetHome1

HomeSweetHome1

Da steht aber der Schornstein in EG und OG nicht übereinander.
Einen Schornstein in die Wand zu integrieren wurde von unserem GU damals abgelehnt, das würde Risse geben.
Wir hätten ihn auch gerne in der Wand gehabt, da diese (EG) jedoch tragend ist, wurde uns seitens des Architekten auch gesagt, dass das nicht geht.
 
HomeSweetHome1

HomeSweetHome1

Danke schon einmal für alle, die sich die Mühe gemacht haben den Text zu lesen, sich Gedanken gemacht haben und schlussendlich auch geantwortet haben!

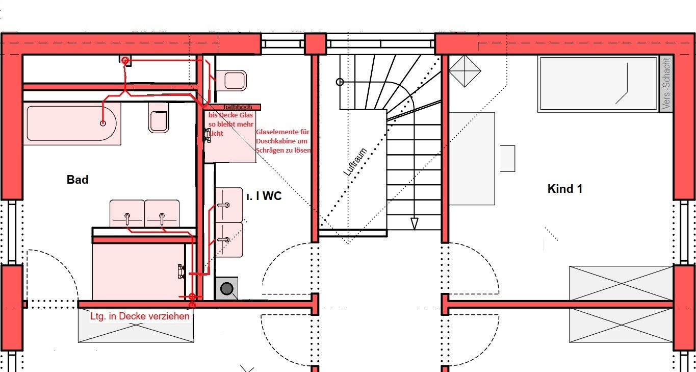
Ich habe heute gedanklich nochmal das Duschbad umgeplant und hoffe, dass der Architekt am Montag sagt, dass das so umsetzbar ist. So verschwindet der Kamin im Duschbad und in einem Einbauschrank.

Ich bin gespannt..
Grundriss eines Stockwerks mit Bad, Gäste-WC, Treppe und Kinderzimmer.

Grundriss eines Wohnhauses: Diele, Büro, SPK, Garderobe, Kamin und Treppenhaus.
 
11ant

11ant

Sorry, nicht falsch verstehen, aber bitte beim Thema bleiben.
Trotzdem danke für deine Meinung und deine Mühe.
Die "Mühe" ist kein Selbstzweck, sondern soll nützen. Ich bleibe immer beim Thema, nur wenn ich auch bei der Frage bliebe (in dem Sinne, wider weiterreichenden Sachverstandes am Tellerrand ihrer Formulierung halt zu machen), grenzte das an unterlassene Hilfeleistung (und dafür macht man nicht freiwilligen Dienst in einer Ambulanz).
Wir hätten ihn auch gerne in der Wand gehabt, da diese (EG) jedoch tragend ist, wurde uns seitens des Architekten auch gesagt, dass das nicht geht.
Das stimmt nur so ungefähr bzw. vereinfacht gesagt; und in diesem Sinne ist eine Firstpfette eben auch eine "tragende Wand".
Also zum einen: Was hat denn das Grundstück mit meiner Frage und dem Keller zu tun?
Und zum zweiten: was bitte hat den mein Forenname mit der Planung des Architekten zu tun?
Wenn sich jemand wie eine Selberplaners Software nennt (und das Entwurfsergebnis zwar im optischen Gewand einer fachlichen Planung daherkommt, aber strukturell das Wesen einer Laienplanung atmet), dann liegt mein Schluss einfach nahe.
Mit der Kaminpositionsfrage hat das Grundstück weniger zu tun (auf die Nachbarabstände des Kamins wurde ja bereits hingewiesen), aber mit der ökonomischen Seite der Entscheidung "pro oder contra Keller" hat das Grundstück sehr viel zu tun. Wenn nun also plötzlich ein Keller als vorgesehen offenbar wird, schließt sich diese Rückfrage pfeilgerade an wie das "Amen" in der Kirche.
 
HomeSweetHome1

HomeSweetHome1

Die "Mühe" ist kein Selbstzweck, sondern soll nützen. Ich bleibe immer beim Thema, nur wenn ich auch bei der Frage bliebe (in dem Sinne, wider weiterreichenden Sachverstandes am Tellerrand ihrer Formulierung halt zu machen), grenzte das an unterlassene Hilfeleistung (und dafür macht man nicht freiwilligen Dienst in einer Ambulanz).

Das stimmt nur so ungefähr bzw. vereinfacht gesagt; und in diesem Sinne ist eine Firstpfette eben auch eine "tragende Wand".

Wenn sich jemand wie eine Selberplaners Software nennt (und das Entwurfsergebnis zwar im optischen Gewand einer fachlichen Planung daherkommt, aber strukturell das Wesen einer Laienplanung atmet), dann liegt mein Schluss einfach nahe.
Mit der Kaminpositionsfrage hat das Grundstück weniger zu tun (auf die Nachbarabstände des Kamins wurde ja bereits hingewiesen), aber mit der ökonomischen Seite der Entscheidung "pro oder contra Keller" hat das Grundstück sehr viel zu tun. Wenn nun also plötzlich ein Keller als vorgesehen offenbar wird, schließt sich diese Rückfrage pfeilgerade an wie das "Amen" in der Kirche.
Die Software sagt mir leider nix, sorry!

Aber jetzt mal "Butter bei de Fische": wo ist denn genau die besagte Laienplanung Ihrer Meinung nach genau? Bitte mal um Aufzählung, was genau alles schlecht geplant sei..

(Bis auf die Stellfläche im Schlafzimmer, die hier schon genannt wurde)

Als Info:
ja, der Vorratsraum ist bewusst nicht an der Küche geplant, da hier ein direkter Zugang zu Garage und zum Garten besteht.
Mit 3 Kids ist ein Keller unabdingbar. Und dieser war auch nicht Teil der Frage.
Welche Frage schließt sich dann "pfeilgerade" an? Ob wir einen Keller benötigen?
 
11ant

11ant

Die Software sagt mir leider nix, sorry!
Aber jetzt mal "Butter bei de Fische": wo ist denn genau die besagte Laienplanung Ihrer Meinung nach genau? Bitte mal um Aufzählung, was genau ALLES schlecht geplant sei..
Kein Sorry, ich bin eher erleichtert, wenn die Inspiration zu Deinem Forennamen nicht von SH3D herrührt. Beispiele von Hättenerfahreneplanendeandersgemachtpunkten wurden Dir bereits mehrere aufgezählt.
Mit 3 Kids ist ein Keller unabdingbar. Und dieser war auch nicht Teil der Frage.
Welche Frage schließt sich dann "pfeilgerade" an? Ob wir einen Keller benötigen?
Ich kenne keine Kids, die einen Keller nachfragen würden - allerdings viele, die zu faul sind, abgelegtes Gerümpel in die Bucht zu stellen. Hier wird stets versucht, Bauprojekte ganzheitlich zu sehen, und entsprechend Konzeptverbesserungen aufzuzeigen. Auf der Suche nach Antwortetbittekeinjotamehralsichgefragthabe-Foren wüßte ich Dir keines zu empfehlen. Daher macht es Sinn, hier nicht nur den Kamin und die von ihm architektonisch betroffenen Stockwerke darzustellen, sondern das gesamte Raumprogramm. Aus einem Keller als nicht unerheblicher Kostenposition leitet sich unweigerlich die Rückfrage ab, welches Votum die Topographie des Grundstückes in die Waagschale wirft (siehe hier mit dem Stichwort "11ant Kellerregel" bzw. extern mit der Suchphrase "Mit oder ohne Keller: eine Regel als Entscheidungswerkzeug"). Es gibt natürlich auch Leute, denen die Tabuisierung ihrer Keller-Frage pauschal an 100k Mehrkosten wert ist.
Auf die sind wir hier aber eher weniger eingerichtet (wie gesagt: ganzheitlicher Rat).
 
B

Bertram100

wo ist denn genau die besagte Laienplanung Ihrer Meinung nach genau?
Der Eingangsbereich mit Garderobe ist furchtbar. Nur in Minireihenhäusern stolpert man aus Versehen beim Rausgehen und dabei Kinder vor der Tür wegsortieren über den Treppenantritt. Bei so einem grossen Haus ist mir das unverständlich dass ihr das so haben wollt.
 
Zuletzt aktualisiert 19.11.2025
Im Forum Grundrissplanung / Grundstücksplanung gibt es 2536 Themen mit insgesamt 87979 Beiträgen


Ähnliche Themen zu Grundrissoptimierung - Kamin-Problem
Nr.ErgebnisBeiträge
1Einfamilienhaus 160m2 mit Keller, 500m2 Grundstück 108
2Budget Grundstück und bauen mit Keller 21
3200m2 Einfamilienhaus für 4-5 Personen ohne Keller auf schmalem Grundstück 67
4Grundrissoptimierung Einfamilienhaus mit Keller auf kleinem Grundstück - Seite 3178
5Keller oder Grundstück begradigen? 43
6Einfamilienhaus bauen mit/ohne Keller bei kleinem Grundstück - Seite 765
7Einfamilienhaus 220qm mit Keller auf 700qm Grundstück 41
8Straße ca. 50cm über Grundstück - Auffüllen oder Keller 24
9Teures Grundstück + Einfamilienhaus 155 qm + Keller KFW40+, finanzierbar? - Seite 260
10Bebauung Grundstück - Keller ja oder nein? 75
11Grundriss-Entwurf: Einfamilienhaus mit Keller; 560qm Grundstück - Seite 365
12Grundriss-Entwurf: Einfamilienhaus; mit Keller; 800qm Grundstück 10
13Einfamilienhaus-Optimierung und -Planung (180qm + DG ohne Keller) 159
14Grundrissidee 200qm (+ exkl. Keller) Satteldach 30
15Grundriss für Einfamilienhaus mit 200m² mit Einliegerwohnung 75 +Keller 140m² +Garage 56m² 59
16Grundriss Einfamilienhaus ca. 160m², Haupteingang im Keller, Nordhang 1700m² 22
17Haus mit oder ohne Keller? - Erfahrungen - Seite 220
18Massivhaus mit Keller. Reicht unser Budget? 11
19Eigenheim Bauen? Grundstück in Aussicht - Seite 219
20Grundstück jetzt-Hausbau nächstes Jahr 23

Oben