ᐅ Grundriss EG - Einfamilienhaus mit Option OG später abzutrennen
Erstellt am: 06.05.15 12:28
C
Christian123C
Christian12306.05.15 12:28Hallo zusammen,
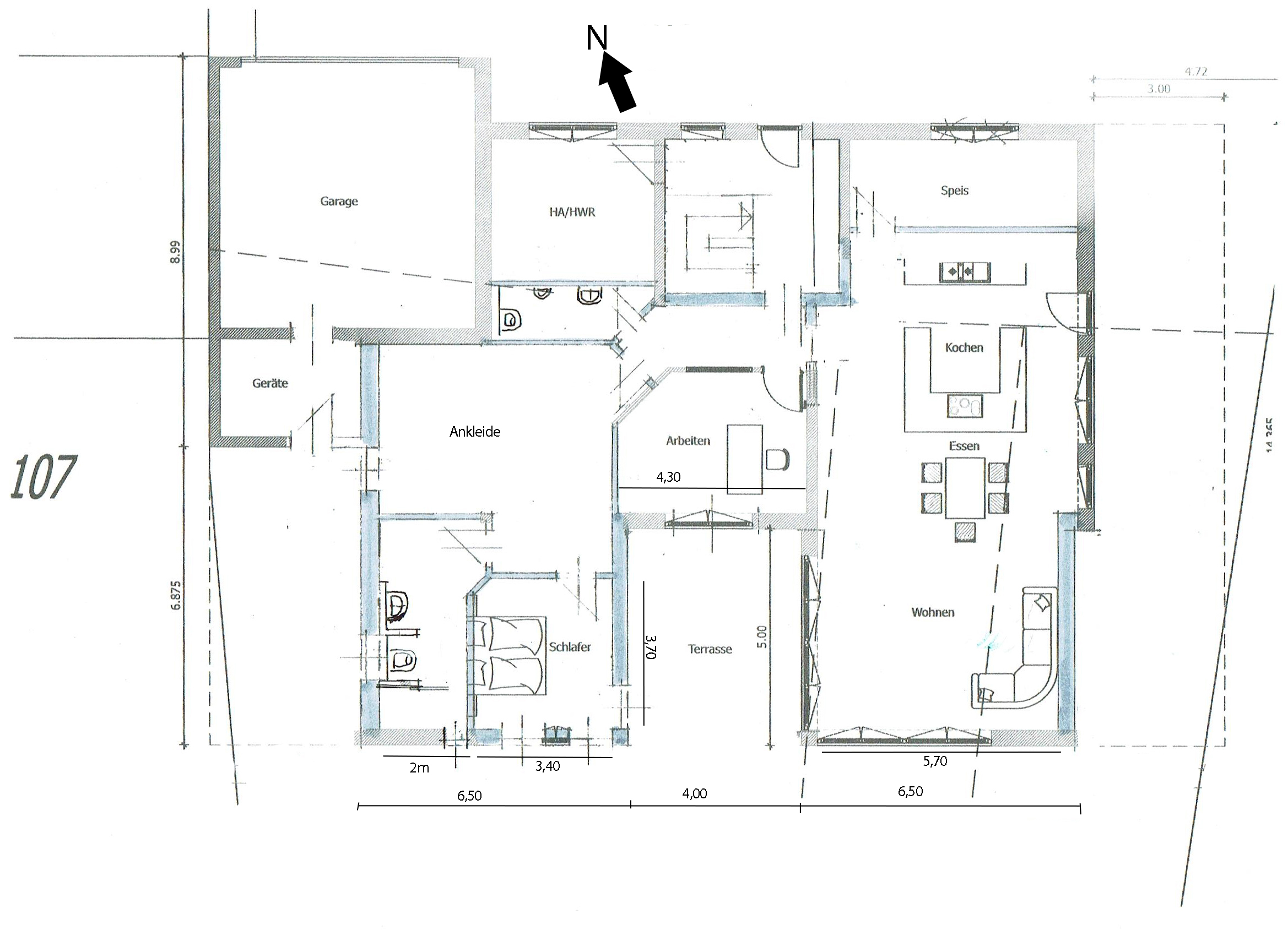
die Planungen für unser Haus laufen und ich hätte gerne eure Meinung zum ersten Entwurf des EGs.
Eckdaten:
-Grundstück: 1300m2
-2 stöckig mit Flachdach
-Garage muss an der Stelle an den Nachbarn gesetzt werden
-„Hinten raus“ nur grün mit anschließendem Wald (keinerlei Bebauung), weshalb versucht wurde, -die Wohnräume in den hinteren Bereich zu setzen, Nutzräume wie Hauswirtschaftsraum und Speis zur Straßenseite auszurichten
-große Ankleide, da hier neben einem Schminkbereich (…) auch noch jede Menge Kleidung untergebracht werden muss und da kein Keller gebaut werden soll hier zB auch die Winterkleidung eingelagert wird
-das OG wird unspektakulär: 3 Zimmer zwischen 15 und 20 m2 + großes Badezimmer (ca. 22m2)
-OG soll später den Kindern (quasi alleine) gehören und wir haben im EG unsere Ruhe 😀
-Wohn- und Schlafzimmer würden nicht überbaut werden, die Räume im OG würden sich auf den vorderen Teil beschränken
-Option für ganz später evtl.: OG vermieten (würde so geplant werden, dass dies mit dem Einbau einer Wohnungstür komplett abgeschlossen ist. Im EG könnte dann ebenfalls eine Wohnungseingangstür eingebaut werden (auf dem Grundriss schon vorgesehen), dann Vermietung oder komplette Wohnung für die/den Großen
-um noch etwas mehr Licht in den Flur zu bekommen, wäre zwischen Flur und dem kleinen Arbeitszimmer ein feststehendes Fenster geplant
-das Arbeitszimmer würde für die ersten Babyjahre evtl. als kleines Kinderzimmer umfunktioniert
-Kamin evtl an dem Rücksprung zwischen Wohn- und Essbereich
-im Badezimmer sind Dusche, WC und waschbecken untergebracht, dazu das Gäste-WC mit WC, Pissoir und Waschbecken
Persönliche Situation:
2 Personen (Ende 20) mit Planung auf 4 aufzustocken
Sorry, dass das Ganze momentan noch so "unsauber" gezeichnet und wenig übersichtlich auf den ersten Blick ist... 😳
PS: Die Möblierung ist natürlich noch mutwillig...die Couch wäre an der Stelle zB völliger Unsinn...kommt davon, dass mir ein Freund einen ersten Grundriss mit einem CAD-Programm erstellt hatte, an dem wir nun die ganze Zeit probieren.

die Planungen für unser Haus laufen und ich hätte gerne eure Meinung zum ersten Entwurf des EGs.
Eckdaten:
-Grundstück: 1300m2
-2 stöckig mit Flachdach
-Garage muss an der Stelle an den Nachbarn gesetzt werden
-„Hinten raus“ nur grün mit anschließendem Wald (keinerlei Bebauung), weshalb versucht wurde, -die Wohnräume in den hinteren Bereich zu setzen, Nutzräume wie Hauswirtschaftsraum und Speis zur Straßenseite auszurichten
-große Ankleide, da hier neben einem Schminkbereich (…) auch noch jede Menge Kleidung untergebracht werden muss und da kein Keller gebaut werden soll hier zB auch die Winterkleidung eingelagert wird
-das OG wird unspektakulär: 3 Zimmer zwischen 15 und 20 m2 + großes Badezimmer (ca. 22m2)
-OG soll später den Kindern (quasi alleine) gehören und wir haben im EG unsere Ruhe 😀
-Wohn- und Schlafzimmer würden nicht überbaut werden, die Räume im OG würden sich auf den vorderen Teil beschränken
-Option für ganz später evtl.: OG vermieten (würde so geplant werden, dass dies mit dem Einbau einer Wohnungstür komplett abgeschlossen ist. Im EG könnte dann ebenfalls eine Wohnungseingangstür eingebaut werden (auf dem Grundriss schon vorgesehen), dann Vermietung oder komplette Wohnung für die/den Großen
-um noch etwas mehr Licht in den Flur zu bekommen, wäre zwischen Flur und dem kleinen Arbeitszimmer ein feststehendes Fenster geplant
-das Arbeitszimmer würde für die ersten Babyjahre evtl. als kleines Kinderzimmer umfunktioniert
-Kamin evtl an dem Rücksprung zwischen Wohn- und Essbereich
-im Badezimmer sind Dusche, WC und waschbecken untergebracht, dazu das Gäste-WC mit WC, Pissoir und Waschbecken
Persönliche Situation:
2 Personen (Ende 20) mit Planung auf 4 aufzustocken
Sorry, dass das Ganze momentan noch so "unsauber" gezeichnet und wenig übersichtlich auf den ersten Blick ist... 😳
PS: Die Möblierung ist natürlich noch mutwillig...die Couch wäre an der Stelle zB völliger Unsinn...kommt davon, dass mir ein Freund einen ersten Grundriss mit einem CAD-Programm erstellt hatte, an dem wir nun die ganze Zeit probieren.
Was ist das für eine komische Küchenmöbilierung? Eine Insel in U-Form? Da ist man ja total eingekeilt! Und was ist das hinter der Insel für ein Teil, das so weit von der Wand zur Speisekammer steht?
Also wir haben auch viel Kleidung. Aber in eure geplante Ankleide bekämen wir die komplette Kleidung von uns 5en (davon 4 Weiber ;-) ) unter incl. Winterkleidung, Bettwäsche, Handtücher usw. Und wir hätten immer noch Platz :-D
Wie groß ist denn die Treppe? Die kommt mir ein bissel eng/klein/steil vor.
Der Essbereich wirkt auch irgendwie klein. Für ne 4-köpfige Familie sicher ausreichend, aber groß Besuch dürft ihr nicht bekommen. Wo würdet ihr die Couch dann hinstellen, wenn nicht an diese Stelle? Sehe da irgendwie nicht wirklich ne andere Möglichkeit außer noch vor die bodentiefe Fenster, aber dann sind diese erstens sinnlos und 2. kommt ihr nicht mehr auf die Terrasse. So wie sie jetzt steht, wo soll der TV hin?
Das Gäste-WC ohne Tageslicht finde ich für ein Einfamilienhaus ein no-Go.
Vielleicht zeigst du auch mal ne Außenansicht. Und ne bessere Bemaßung, wo man die qm erkennen kann, wäre auch gut.
Irgendwie finde ich den Grundriss, so wie er jetzt ist, ungemütlich.
Also wir haben auch viel Kleidung. Aber in eure geplante Ankleide bekämen wir die komplette Kleidung von uns 5en (davon 4 Weiber ;-) ) unter incl. Winterkleidung, Bettwäsche, Handtücher usw. Und wir hätten immer noch Platz :-D
Wie groß ist denn die Treppe? Die kommt mir ein bissel eng/klein/steil vor.
Der Essbereich wirkt auch irgendwie klein. Für ne 4-köpfige Familie sicher ausreichend, aber groß Besuch dürft ihr nicht bekommen. Wo würdet ihr die Couch dann hinstellen, wenn nicht an diese Stelle? Sehe da irgendwie nicht wirklich ne andere Möglichkeit außer noch vor die bodentiefe Fenster, aber dann sind diese erstens sinnlos und 2. kommt ihr nicht mehr auf die Terrasse. So wie sie jetzt steht, wo soll der TV hin?
Das Gäste-WC ohne Tageslicht finde ich für ein Einfamilienhaus ein no-Go.
Vielleicht zeigst du auch mal ne Außenansicht. Und ne bessere Bemaßung, wo man die qm erkennen kann, wäre auch gut.
Irgendwie finde ich den Grundriss, so wie er jetzt ist, ungemütlich.
Ein wunderschönes Atrium habt ihr da, aber leider ist es nicht wirklich Zentrum des Hauses. Ich würde die Küche da platzieren, wo jetzt das Arbeitszimmer ist, dann kann man auch direkt mit Essen und Getränken auf die Terrasse. Aktuelle Küchenmöblierung gefällt mir auch nicht.
Die Ankleide macht mir Angst!! viel zu groß und Gefahr zum Kellerersatzraum zu werden, Mini-Schlafzimmer so eingekeilt...
Wie sieht das OG aus? Schlaft ihr mit den Kindern auf einer Etage so lange sie klein sind?
Die Ankleide macht mir Angst!! viel zu groß und Gefahr zum Kellerersatzraum zu werden, Mini-Schlafzimmer so eingekeilt...
Wie sieht das OG aus? Schlaft ihr mit den Kindern auf einer Etage so lange sie klein sind?
Ähnliche Themen