Hallo zusammen,
wir können in knapp 4 Wochen ein klassisches Handtuchgrundstück zur Bebauung mit einer Doppelhaushälfte kaufen. Der Baunachbar kommt aus dem Bekanntenkreis, wir halten es für sinnvoll, wenn beide Haushälften vom selben GÜ geplant und gebaut werden. Für das Grundstück gibt es keinen Bebauungsplan, aber eine Dorfbildsatzung, die relativ viel Spielraum lässt.
Die Nachbarhälfte wird traufseitig zur Straße stehen, wir überlegen unsere Haushälfte giebelseitig zur Straße auszurichten und den Nachbarfirst fortzuführen. (Ich hoffe im Schnittbild wird klar was gemeint ist.) Wir gewinnen dadurch in zwei Zimmern mehr Raumhöhe und es sieht nicht mehr so nach klassischer Doppelhaushälfte aus.
Beim Nachbar ist der Keller fix gesetzt, nach den bisherigen Gesprächen wurde uns geraten ebenfalls mit Keller zu bauen, da sich die Ersparnis aufgrund der Mehrkosten für die Gründung und das zwangsläufig etwas größere Haus in Grenzen halten würden. Kann das jemand bewerten?
Aufgrund der Dachform, hätten wir auf dem Dachboden auch ohne Keller vermutlich genug Stauraum.
Bebauungsplan/Einschränkungen
Größe des Grundstücks: 380m² (ca. 13,5m x 28m)
Hang: nein
Randbebauung: Doppelhaushälfte, ansonsten Grenzabstand nach Landesbauordnung BaWü
Dachform: symmetrisches Satteldach, (min. 48°)
Stilrichtung: klassisch, stehendes Fensterformat
Anforderungen der Bauherren
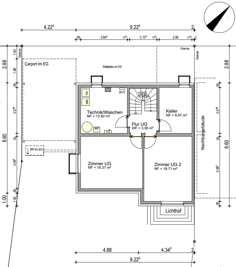
1,5 Geschosse, Kniestock 1,20, Keller (zumindest relativ sicher)
Anzahl der Personen, Alter: 4 (38, 36, 6, 2)
Raumbedarf:
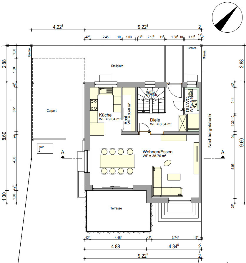
EG: Wohn-, Essbereich, Kochen, Gästebad mit Dusche,
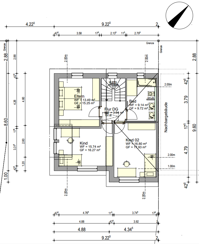
OG: 2 Kinderzimmer, Schlafzimmer, Bad
Büro: kombiniertes Arbeits-/Gästezimmer im Keller, vorauss. 1-2 Tage Homeoffice/Woche
Schlafgäste pro Jahr: 2 Personen ca. 5x/Jahr
offene oder geschlossene Architektur: offen, soweit möglich
konservativ oder moderne Bauweise: außen konservativ, innen gerne modern
offene Küche, Kochinsel: offen
Anzahl Essplätze: mindestens 4, besser 6 (mit Option auf 8)
Kamin: nein
Musik/Stereowand: nein
Balkon, Dachterrasse: nein
Garage, Carport: Carport
Nutzgarten, Treibhaus: ggf. kleiner Nutzgarten, aber keine hohe Prio
Hausentwurf
Von wem stammt die Planung:
Planer eines Bauunternehmens nach der zweiten Abstimmung
Was gefällt besonders? Warum?:
- Aufteilung Wohn-, Essbereich
- vergleichbare Größe Kinderzimmer
- relativ wenig „Verkehrsfläche“
Was gefällt nicht? Warum?:
- Wir sind unsicher, ob Garderobe, Küche und Bad platzmäßig ausreichen.
- relativ viel ungenutzter Raum im Dachboden
- Schlafzimmer hat nur 1 Fenster
- Bad: Aufteilung und kleines Fenster
Preisschätzung lt Architekt/Planer: ~450.000.- (über Kubatur geschätzt, inkl. Erdarbeiten & Aushub)
Persönliches Preislimit fürs Haus, inkl. Ausstattung: ~450.000.-
favorisierte Heiztechnik: Luft-Wasser-Wärmepumpe mit Fußbodenheizung
Wenn Ihr verzichten müsst, auf welche Details/Ausbauten
- könnt Ihr verzichten: evtl. die Speisekammer
- könnt Ihr nicht verzichten: zweites WC, Gäste-/Arbeitszimmer
Warum ist der Entwurf so geworden, wie er jetzt ist?
Anpassungen der ersten beiden Entwürfe des Planers nach unseren Wünschen (Dusche in Gäste-WC, ursprünglich geplanten Geräteschuppen hinter Carport entfernt um Platz für Fenster im EG zu schaffen, Bad und Schlafzimmer getauscht)
Was ist die wichtigste/grundlegende Frage zum Grundriss in 130 Zeichen zusammengefasst?
Kann Küche, Bad und Garderobe mehr Raum gegeben werden, ohne das Haus bedeutend größer (teurer) zu machen?
Vielen Dank für eure Anregungen und Meinungen, gerne auch kritische.





wir können in knapp 4 Wochen ein klassisches Handtuchgrundstück zur Bebauung mit einer Doppelhaushälfte kaufen. Der Baunachbar kommt aus dem Bekanntenkreis, wir halten es für sinnvoll, wenn beide Haushälften vom selben GÜ geplant und gebaut werden. Für das Grundstück gibt es keinen Bebauungsplan, aber eine Dorfbildsatzung, die relativ viel Spielraum lässt.
Die Nachbarhälfte wird traufseitig zur Straße stehen, wir überlegen unsere Haushälfte giebelseitig zur Straße auszurichten und den Nachbarfirst fortzuführen. (Ich hoffe im Schnittbild wird klar was gemeint ist.) Wir gewinnen dadurch in zwei Zimmern mehr Raumhöhe und es sieht nicht mehr so nach klassischer Doppelhaushälfte aus.
Beim Nachbar ist der Keller fix gesetzt, nach den bisherigen Gesprächen wurde uns geraten ebenfalls mit Keller zu bauen, da sich die Ersparnis aufgrund der Mehrkosten für die Gründung und das zwangsläufig etwas größere Haus in Grenzen halten würden. Kann das jemand bewerten?
Aufgrund der Dachform, hätten wir auf dem Dachboden auch ohne Keller vermutlich genug Stauraum.
Bebauungsplan/Einschränkungen
Größe des Grundstücks: 380m² (ca. 13,5m x 28m)
Hang: nein
Randbebauung: Doppelhaushälfte, ansonsten Grenzabstand nach Landesbauordnung BaWü
Dachform: symmetrisches Satteldach, (min. 48°)
Stilrichtung: klassisch, stehendes Fensterformat
Anforderungen der Bauherren
1,5 Geschosse, Kniestock 1,20, Keller (zumindest relativ sicher)
Anzahl der Personen, Alter: 4 (38, 36, 6, 2)
Raumbedarf:
EG: Wohn-, Essbereich, Kochen, Gästebad mit Dusche,
OG: 2 Kinderzimmer, Schlafzimmer, Bad
Büro: kombiniertes Arbeits-/Gästezimmer im Keller, vorauss. 1-2 Tage Homeoffice/Woche
Schlafgäste pro Jahr: 2 Personen ca. 5x/Jahr
offene oder geschlossene Architektur: offen, soweit möglich
konservativ oder moderne Bauweise: außen konservativ, innen gerne modern
offene Küche, Kochinsel: offen
Anzahl Essplätze: mindestens 4, besser 6 (mit Option auf 8)
Kamin: nein
Musik/Stereowand: nein
Balkon, Dachterrasse: nein
Garage, Carport: Carport
Nutzgarten, Treibhaus: ggf. kleiner Nutzgarten, aber keine hohe Prio
Hausentwurf
Von wem stammt die Planung:
Planer eines Bauunternehmens nach der zweiten Abstimmung
Was gefällt besonders? Warum?:
- Aufteilung Wohn-, Essbereich
- vergleichbare Größe Kinderzimmer
- relativ wenig „Verkehrsfläche“
Was gefällt nicht? Warum?:
- Wir sind unsicher, ob Garderobe, Küche und Bad platzmäßig ausreichen.
- relativ viel ungenutzter Raum im Dachboden
- Schlafzimmer hat nur 1 Fenster
- Bad: Aufteilung und kleines Fenster
Preisschätzung lt Architekt/Planer: ~450.000.- (über Kubatur geschätzt, inkl. Erdarbeiten & Aushub)
Persönliches Preislimit fürs Haus, inkl. Ausstattung: ~450.000.-
favorisierte Heiztechnik: Luft-Wasser-Wärmepumpe mit Fußbodenheizung
Wenn Ihr verzichten müsst, auf welche Details/Ausbauten
- könnt Ihr verzichten: evtl. die Speisekammer
- könnt Ihr nicht verzichten: zweites WC, Gäste-/Arbeitszimmer
Warum ist der Entwurf so geworden, wie er jetzt ist?
Anpassungen der ersten beiden Entwürfe des Planers nach unseren Wünschen (Dusche in Gäste-WC, ursprünglich geplanten Geräteschuppen hinter Carport entfernt um Platz für Fenster im EG zu schaffen, Bad und Schlafzimmer getauscht)
Was ist die wichtigste/grundlegende Frage zum Grundriss in 130 Zeichen zusammengefasst?
Kann Küche, Bad und Garderobe mehr Raum gegeben werden, ohne das Haus bedeutend größer (teurer) zu machen?
Vielen Dank für eure Anregungen und Meinungen, gerne auch kritische.
zeehdeeh schrieb:
Der Baunachbar kommt aus dem Bekanntenkreis, wir halten es für sinnvoll, wenn beide Haushälften vom selben GÜ geplant und gebaut werden.Leider ist diese Klugheit selten geworden.zeehdeeh schrieb:
Beim Nachbar ist der Keller fix gesetzt, nach den bisherigen Gesprächen wurde uns geraten ebenfalls mit Keller zu bauen, da sich die Ersparnis aufgrund der Mehrkosten für die Gründung und das zwangsläufig etwas größere Haus in Grenzen halten würden. Kann das jemand bewerten?Bei gemeinsamer Planung und Koordination (der Mitkellerer sollte möglichst nicht nach dem Ohnekellerer bauen) ist das Problem deutlich entschärft. Ob einen Keller "wegzulassen" Geld spart, darüber redet das Grundstück ein Wörtchen mit. Und schließlich müßten die Räume ja sonst irgendwo anders hin, sofern sie eine bedarfsindizierte Verwendung haben.zeehdeeh schrieb:
Die Nachbarhälfte wird traufseitig zur Straße stehen, wir überlegen unsere Haushälfte giebelseitig zur Straße auszurichten und den Nachbarfirst fortzuführen. [...] und es sieht nicht mehr so nach klassischer Doppelhaushälfte aus.Hierzu empfehle ich das Beispiel von @MadameP - mit weiteren siehe https://www.hausbau-forum.de/threads/grundstuecksnutzung-fuer-doppelhaus-bzw-doppelhaushaelften.34427/page-2#post-392478https://www.instagram.com/11antgmxde/
https://www.linkedin.com/company/bauen-jetzt/
Nun ja, die Speis (aber: wie u.a. das Dusch-WC zeigt, ist es bis zum befriedigenden Grundriss ohnehin noch ein Stück Weg) hat da ja eh keinen Platz, da die "Frankfurter Küche" für vier Personen nicht ernst gemeint sein kann. Ich vermute auch den populären "Fehler", "EG up" statt "OG down" zu entwerfen.
https://www.instagram.com/11antgmxde/
https://www.linkedin.com/company/bauen-jetzt/
https://www.instagram.com/11antgmxde/
https://www.linkedin.com/company/bauen-jetzt/
zeehdeeh schrieb:
Schlafzimmer hat nur 1 Fenster
- Bad: Aufteilung und kleines Fensterzeehdeeh schrieb:
könnt Ihr verzichten: evtl. die SpeisekammerMit sowas kann man ja gut leben.ich würde im EG mal versuchen, die Speis wegzulassen, die planmittige Wand um ca. 80 cm nach planunten zu versetzen, dann neben der Dusche eine Garderobenkammer und ggü der Treppe einen Einbauschrank über die Treppenbreite zu machen.
Ich persönlich würde dann ggü der Eingangstür die Doppeltür setzen und dann.., WZ und Küche tauschen. Eventuell ergibt sich dann noch ein Plätzchen für den Gefrierschrank 😉
Warum Tausch? Weil in der Konsequenz mit dem Eingang zum Allraum eher der aktive Küchenraum als Durchgangsraum dienen sollte und hinten das WZ mit Sofa.
Vielen Dank für die Hinweise und entschuldigt bitte die Funkstille, ich hatte leider die letzten zwei Tage den Kopf nicht frei....
Ich fange am besten mal vorne an:
Kannst du einen Hinweis geben, was am OG sinnvoller gemacht werden könnte, damit das EG besser funktioniert? Oder geht das nur mit einer Änderung der Außenmaße?
Die bisherige Idee war, das Haus so breit zu machen, dass an der Seite noch ausreichend Platz für den Carport und einen Durchgang zum Garten ist. Grundsätzlich ist aber auch eine etwas schmalere, dafür längliche Form möglich. Dann setze ich dem Nachbarn eben ein Stückchen Wand auf die Grenze, die er von der Terrasse aus bewundern kann. 😎 Ich hänge nicht an dem beinahe Quadrat.
Wir hatten auch schon einen Entwurf, bei dem eine Garage ins Haus integriert war um an der Westseite im EG Fenster zu ermöglichen. Auf den ersten Blick (für uns) gut, auf den zweiten sind dann relativ große Räume im OG dabei rausgekommen und natürlich deutlich höhere Kosten.
Aber der Gefrierschrank ist ein Punkt, der könnte zwar ans planobere Ende mit Türöffnung in den "Schlauch", dann blieben dafür auch nur noch ca. 2 Meter übrig auf denen man mit dem Backblech hängen bleiben kann 😎... Speis wird in der Form wohl verworfen...
Tatsächlich hatten wir im Nachgang zur oben erwähnten Planung mit Garage im Haus auch überlegt, Küche und WZ umgedreht anzuordnen. Meine Frau befürchtet nur, dass im WZ dann nicht genug Licht ankommt und mit der Vorstellung, dass das einzige WZ-Fenster zur Straße geht, tut sie sich auch schwer. (Wieder das Thema mit der Vorstellungskraft, derzeit gehen knapp 4 Meter Fenster Richtung Süden in den Garten.) Ich denke mit den momentanen Wänden würde das WZ wahrscheinlich etwas "schlauchig" werden, weil die Öffnung zum Essbereich an der schmaleren Seite liege würde.
Falls noch jemand eine Idee hat...immer her damit.
Ich fange am besten mal vorne an:
11ant schrieb:Die Beiträge eines gewissen Mitglieds mit gelbem Avatar könnten bei dieser Meinungsbildung nicht ganz unbeteiligt gewesen sein...;)
Leider ist diese Klugheit selten geworden.
11ant schrieb:Das Projekt von MadameP finde ich spannend, wird in unserem Fall aber leider nicht funktionieren. Das Nachbargrundstück ist etwas breiter ist als unseres, dafür ist es etwas weniger tief und es fehlt eine ganze Ecke. Bei zwei giebelseitigen Häusern bliebe beim Nachbarn noch weniger Garten übrig, deshalb ist bei ihm die traufseitige Ausrichtung zur Straße fix gesetzt.
Hierzu empfehle ich das Beispiel von @MadameP - mit weiteren siehe https://www.hausbau-forum.de/threads/grundstuecksnutzung-fuer-doppelhaus-bzw-doppelhaushaelften.34427/page-2#post-392478
11ant schrieb:Ich weiß nicht ob der Plan "EG up" oder "OG down" entstanden ist, wobei ich das OG abgesehen vom Bad ganz gut finde. Mit der Anordnung im Bad bin ich noch nicht so zufrieden und ein wenig mehr Fläche könnte evtl. auch nicht schaden. Ich werde mal noch ein bisschen kritzeln, vielleicht fällt mir was ein...erfahrener Input ist hier gerne willkommen!
Ich vermute auch den populären "Fehler", "EG up" statt "OG down" zu entwerfen.
Kannst du einen Hinweis geben, was am OG sinnvoller gemacht werden könnte, damit das EG besser funktioniert? Oder geht das nur mit einer Änderung der Außenmaße?
Die bisherige Idee war, das Haus so breit zu machen, dass an der Seite noch ausreichend Platz für den Carport und einen Durchgang zum Garten ist. Grundsätzlich ist aber auch eine etwas schmalere, dafür längliche Form möglich. Dann setze ich dem Nachbarn eben ein Stückchen Wand auf die Grenze, die er von der Terrasse aus bewundern kann. 😎 Ich hänge nicht an dem beinahe Quadrat.
Wir hatten auch schon einen Entwurf, bei dem eine Garage ins Haus integriert war um an der Westseite im EG Fenster zu ermöglichen. Auf den ersten Blick (für uns) gut, auf den zweiten sind dann relativ große Räume im OG dabei rausgekommen und natürlich deutlich höhere Kosten.
ypg schrieb:Ehrlich gesagt waren wir zunächst ganz glücklich, dass es eine Speis überhaupt in den Plan geschafft hat. Dabei war der Anwendungsfall "Backblech" aber auch gar nicht angedacht, mehr die Möglichkeit übersichtlichere Staufläche als bei einem 60 tiefen Schrank zu haben, quasi das Kellerregal im EG.
Wie soll denn die Speis von einem Meter Breite und ü3 Meter Länge begangen und genutzt werden? Stell da mal einen Gefrierschrank rein und simuliere das Tragen eines vollen Backbleches... mir fehlt da der Notausgang 😉
Aber der Gefrierschrank ist ein Punkt, der könnte zwar ans planobere Ende mit Türöffnung in den "Schlauch", dann blieben dafür auch nur noch ca. 2 Meter übrig auf denen man mit dem Backblech hängen bleiben kann 😎... Speis wird in der Form wohl verworfen...
ypg schrieb:Natürlich sind größere Fenster im Schlafzimmer nichts überlebenswichtiges. Wahrscheinlich fehlt es da momentan etwas an meiner Vorstellungskraft, im momentanen Schlafzimmer haben wir 3 Meter Südfenster. Das wirkt schon toll, auch wenn das für den bestimmungsgemäßen Gebrauch des Raumes ja nicht relevant ist.
Mit sowas kann man ja gut leben.
ypg schrieb:Verschiebung der Wand für mehr Garderobenplatz, oder auch allgemeinen Stauraum finde ich grundsätzlich gut und werde versuchen das zu zeichnen. Ohne Tausch von Küche und WZ wird dann aber das WZ evtl. etwas kurz.
ich würde im EG mal versuchen, die Speis wegzulassen, die planmittige Wand um ca. 80 cm nach planunten zu versetzen, dann neben der Dusche eine Garderobenkammer und ggü der Treppe einen Einbauschrank über die Treppenbreite zu machen.
Ich persönlich würde dann ggü. der Eingangstür die Doppeltür setzen und dann.., WZ und Küche tauschen. Eventuell ergibt sich dann noch ein Plätzchen für den Gefrierschrank 😉
Warum Tausch? Weil in der Konsequenz mit dem Eingang zum Allraum eher der aktive Küchenraum als Durchgangsraum dienen sollte und hinten das WZ mit Sofa.
Tatsächlich hatten wir im Nachgang zur oben erwähnten Planung mit Garage im Haus auch überlegt, Küche und WZ umgedreht anzuordnen. Meine Frau befürchtet nur, dass im WZ dann nicht genug Licht ankommt und mit der Vorstellung, dass das einzige WZ-Fenster zur Straße geht, tut sie sich auch schwer. (Wieder das Thema mit der Vorstellungskraft, derzeit gehen knapp 4 Meter Fenster Richtung Süden in den Garten.) Ich denke mit den momentanen Wänden würde das WZ wahrscheinlich etwas "schlauchig" werden, weil die Öffnung zum Essbereich an der schmaleren Seite liege würde.
Falls noch jemand eine Idee hat...immer her damit.
Ähnliche Themen