ᐅ Grundriss: Doppelhaushälfte 8x12m Meinungen und kreative Ideen erwünscht :-)
Erstellt am: 28.04.20 13:37
J
JucruzloEscroda schrieb:
Nö, sehe ich nicht so. Geschossigkeiten setzt der Bebauungsplan nicht fest. Aber was ich von dem "Ding" halte, habe ich ja schon in grünen Farben beschrieben.Ja gäbe es in der Nähe etwas Auswahl dann käme das auch definitiv nicht in Frage Wenn wir aber nicht auswandern wollen dann ist das eine der einzigen Optionen... Aber was meinst du dürfte man da noch draus machen? Irgendwas hilfreiches für unseren Fall?
kaho674 schrieb:
Dann wird das mit den Franz. Balkonen für die Kidis aber schwierig. Oder sind das 2 Gauben?Ja sind Gauben
also wir haben innen eine Schräge ab etwa 1,80 (haben wir beim Nachbarn gesehen und so würden wir das auch haben wollen). Deshalb stört uns die bei der Planung wenig - aber deshalb auf jeden Fall Gauben.
kaho674 schrieb:
Ansichten würden helfen.weiß leider absolut nicht wie ich die Ansichten von Außen einstellen kann Bin totaler Neuling was das angeht. Leute ich hätte noch mal ne Frage an alle:
was schätzt Ihr in etwa auf was für Kosten wir kommen?
(kein Keller, keine Hanglage)
S
saralina8701.05.20 11:10Bei den Kosten kommt es natürlich extrem auf die Ausstattung an, genau wie auf Bauart, kfw-Standard und regionale Unterschiede.
Wir rechnen aktuell mit 400k exklusive Grundstück für 144qm Wohnfläche (auch ohne Keller, keine Hanglage, keine Garage, keine Gauben, keine Balkone).
Ich denke mal so um den Dreh könnte sich das bei euch auch bewegen.
Wir rechnen aktuell mit 400k exklusive Grundstück für 144qm Wohnfläche (auch ohne Keller, keine Hanglage, keine Garage, keine Gauben, keine Balkone).
Ich denke mal so um den Dreh könnte sich das bei euch auch bewegen.
saralina87 schrieb:
Bei den Kosten kommt es natürlich extrem auf die Ausstattung an, genau wie auf Bauart, kfw-Standard und regionale Unterschiede.
Wir rechnen aktuell mit 400k exklusive Grundstück für 144qm Wohnfläche (auch ohne Keller, keine Hanglage, keine Garage, keine Gauben, keine Balkone).
Ich denke mal so um den Dreh könnte sich das bei euch auch bewegen.danke dir
ok an diese Summe haben wir auch in etwa gedacht. Ich les hier nur super oft "damit kommt du nicht hin" etc - daher wollt ich mal nachfragen was Ihr bei uns so schätzt nicht das ich Komplett aus dem Ruder laufe
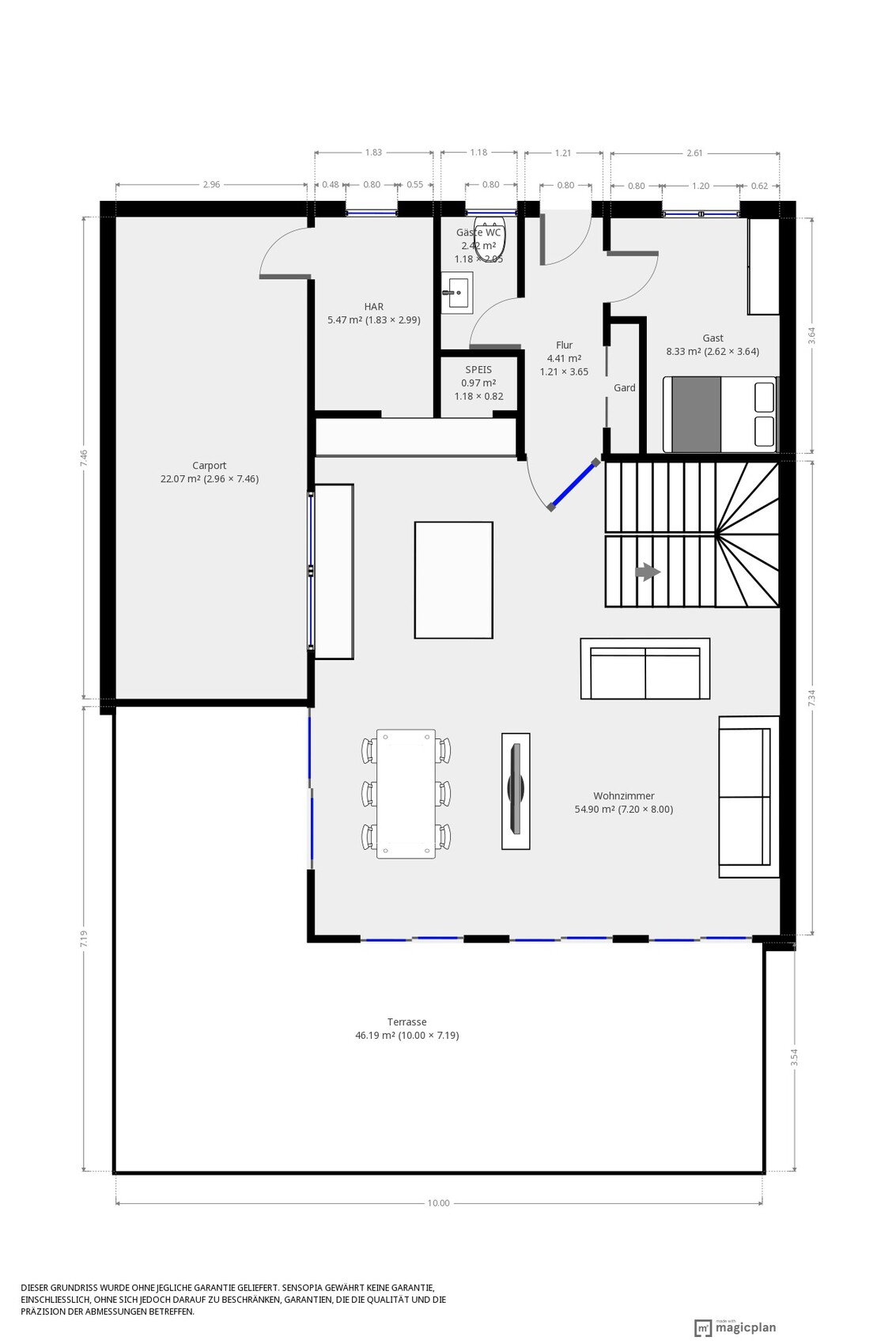
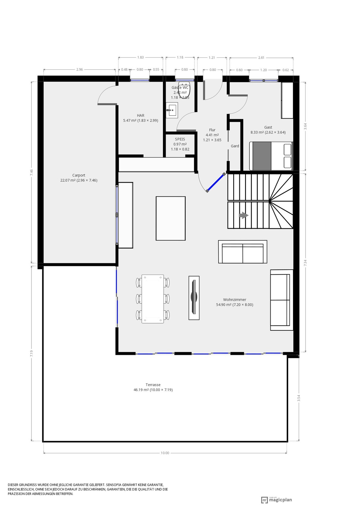
So ihr lieben hab mal nach eurem Input bisschen was geändert
(Fenster im OG noch nicht gesetzt)
Was sagt ihr? Besser so?
Also an sich gefällt es mir super - aber Irgendwie sind das im OG sehr sehr viele Türen ... was sagt ihr zu den Einbauschränken in den Kinderzimmer? Find die Kinderzimmer werden dadurch zwar kleiner aber dafür wird auch kein fetter schrank gebraucht.
Und ist der Waschraum etwas deplatziert oder meint ihr geht das?
Hätte nur sorge das es etwas laut wird neben dem Kinderzimmer - wüsste aber andrerseits nicht wo der sonst hin soll ...


(Fenster im OG noch nicht gesetzt)
Was sagt ihr? Besser so?
Also an sich gefällt es mir super - aber Irgendwie sind das im OG sehr sehr viele Türen ... was sagt ihr zu den Einbauschränken in den Kinderzimmer? Find die Kinderzimmer werden dadurch zwar kleiner aber dafür wird auch kein fetter schrank gebraucht.
Und ist der Waschraum etwas deplatziert oder meint ihr geht das?
Hätte nur sorge das es etwas laut wird neben dem Kinderzimmer - wüsste aber andrerseits nicht wo der sonst hin soll ...
Ähnliche Themen